Тристаен апартамент в модерен нов комплекс до "Симеоновско шосе"
Цена:
183 460 € (2 000 €/м2)
*Указаните цени и наличности от свободни имоти в проекта са индикативни. За актуална ценова информация, моля свържете се с нас!
Реф. Номер: STO-135417 / 4817
Местоположение: Малинова долина / София карта
Тип на сграда/комплекс: Жилищен
Площи на жилищата: 91.73 м2
Типове имоти в сградата/комплекса: Тристайни апартаменти
Реф. Номер: STO-135417 / 4817
Местоположение: Малинова долина / София
Тип на сграда/комплекс: Жилищен
Клас на сградата/комплекса:
Площи на жилищата: 91.73 м2
Типове имоти в сградата/комплекса: Тристайни апартаменти
Проектът включва три свободностоящи жилищни сгради с подземен паркинг, уютни общи пространства и изцяло жилищна надземна част до четири етажа и подпокривно ниво.
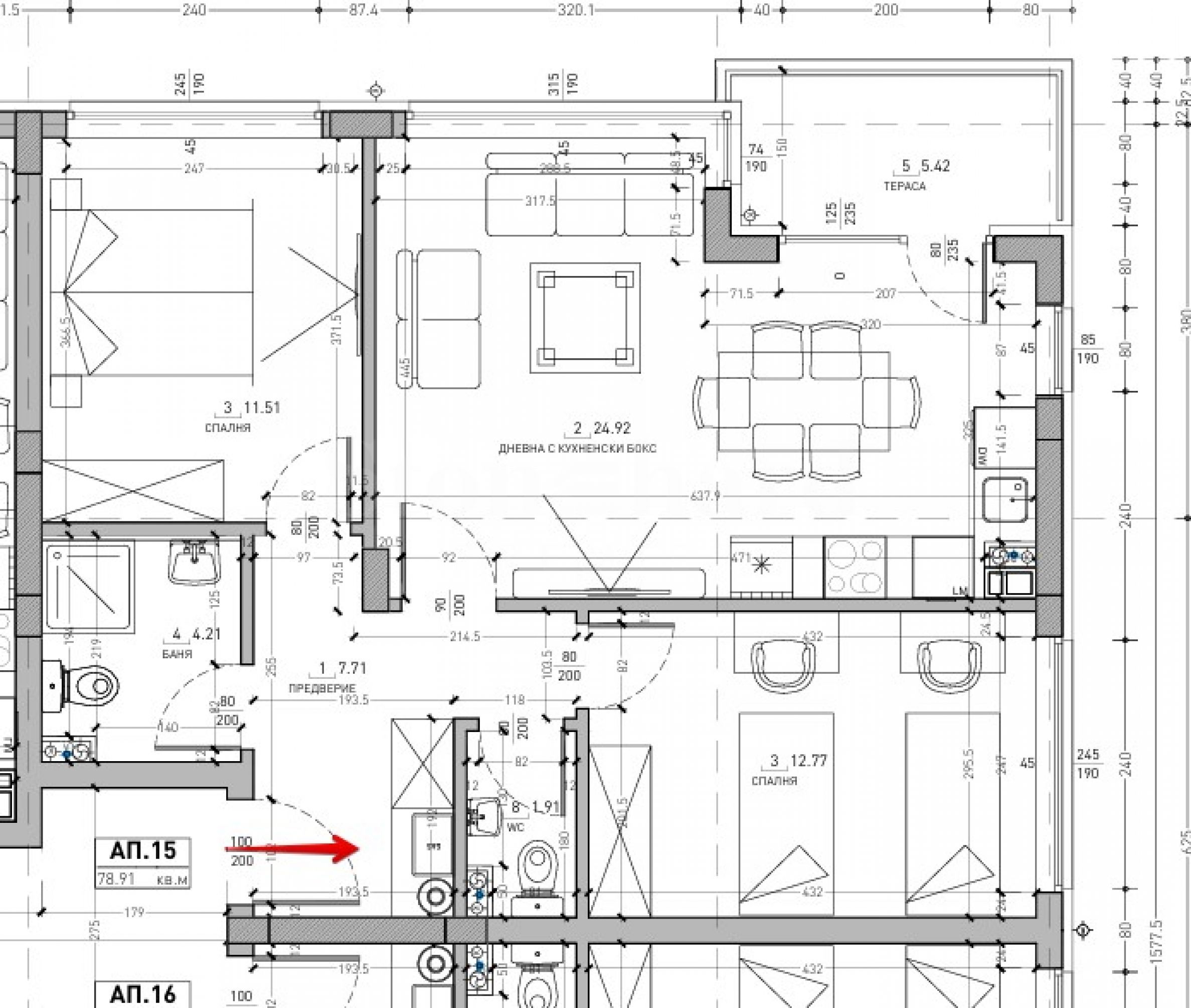
Апартаментът е разположен на 2-ри етаж и има обща площ 91.73 кв.м, чиста площ 78.91 кв.м. Състои се от антре, баня/тоалетна, тоалетна, дневна с кухня и трапезария, тераса към дневната, две спални. Предлага се в степен на завършеност по БДС (на шпакловка и замазка).
*Офертната цена е по Схема на плащане - 1 (50%/30%/10%/10%).
Характеристики на Етап 2:
• Етап 2 е в процес на реализация с планирано завършване през април 2028 г.
• 178 функционални жилища – едностайни, двустайни и тристайни апартаменти;
• 190 бр. паркоместа и гаражи;
• Зелени площи, гледки към планината и дворове към имоти на първите нива.
Стартирал е и Етап 1 от комплекса, от още три сгради. Двата етапа ще оформят съвременен жилищен ансамбъл в сърцето на "Малинова долина".
Качествено строителство:
• Стоманобетонна конструкция;
• Покриви с XPS топлоизолация;
• PVC дограма, троен стъклопакет със стъкло "четири сезона";
• Отопление на ток чрез климатици и на газ;
• Светла височина на жилищните помещения - 2.60 м;
• Тухлени зидарии 25 см.
Локация и предимства:
• Тих и зелен район, в подножието на Витоша;
• В близост до бул. "Симеоновско шосе", бул. "Св. Климент Охридски" и Околовръстен път;
• Близо до НСА, Студентски град, супермаркети, спортни центрове и заведения;
• Развиваща се инфраструктура и инвестиционен потенциал.
Гъвкави схеми на плащане - избор според бюджета и етапа на строителството:
Схема №1:
• 50% при предварителен договор;
• 30% при Акт 14;
• 10% при Акт 15;
• 10% при Акт 16.
*Офертните цени са по Схема 1.
Схема №2:
• 30% при предварителен договор;
• 30% при Акт 14;
• 30% при Акт 15;
• 10% при Акт 16.
Схема №3:
• 30% при предварителен договор;
• 70% при Акт 16.
Защо да изберете този проект:
• Съвременна архитектура и комфортни жилищни разпределения;
• Сигурна и зелена среда за живеене;
• Отлична инвестиция в бързо развиващ се район на София;
• Баланс между градски удобства и близост до природата.
Очакваме Вашето запитване
Ако желаете да организирате оглед на имот, който Ви интересува, или да посетите някой от нашите офиси, моля свържете се с нас. За да уговорите ден и час за среща или оглед, можете да се обадите на посочения в обявата телефон или да изпратите запитване чрез електронната поща. Нашият консултант ще Ви съдейства с всички необходими подробности и ще уговори удобно за Вас време.
Търсите подходящия за Вас имот?
Не се колебайте да се свържете с нас и да ни разкажете за Вашите нужди и предпочитания. Нашият екип ще проведе задълбочено проучване на пазара, за да Ви предложи имоти, които точно отговарят на Вашите критерии. Разполагаме с изключително портфолио от висококачествени и ексклузивни жилища, които са достъпни само за нашите клиенти. За да сте първите, които ще получите информация за тях – свържете се с нас.
Допълнителни услуги
Като ценен клиент на нашата компания, Вие ще имате привилегията да ползвате напълно безплатно услугите на нашия опитен юридически екип. В допълнение, предлагаме комплексни решения, включващи имуществена застраховка, безплатна финансова консултация, както и изгодни условия за финансиране. Нашите услуги се разпростират и в сферата на препродажбата, отдаването под наем и управлението на имоти. Осигуряваме висококачествени ремонтни дейности и обзавеждане чрез специализирани фирми, които са част от нашата корпоративна група и са наши дългогодишни професионални партньори.
Местоположение на картата
ПРАВА
ПРОДАЖБА
ПРОЕКТ
Мезонет с голяма панорамна тераса с гледка към цяла София, до бул. "Сливница"
Банишора / София / София / България карта
Площ: 224.88 м2
Цена: 395 000 € /// 1 756 €/м2
ПРОДАЖБА
ПРОЕКТ
Тристаен апартамент с две тераси и подземно паркомясто в комплекс Кошер
Манастирски ливади - Изток / София / София / България карта
Площ: 129 м2
Цена: 550 000 € /// 4 264 €/м2
Жилищна сграда с два входа на метри от метростанция и моста "Чавдар"
НПЗ Хаджи Димитър / София / София / България карта
Завършване: Ноември, 2026 г.
Цени на имотите: 199 000 - 410 000 €
Цени на м²: 2 611 - 2 640 €/м2
Изберете тази опция и ще Ви уведомяваме по имейла при настъпили промени по статуса на офертата, например:
• Промяна на цената;
• Имотът влезе в промоционално предложение;
• Имотът бъде резервран или продаден;
• Други новости, свързани с имота.
• Имотът бъде свален от продажба;
Може да се отпишете от нотификациите лесно, когато пожелаете.• Промени по условията на офертата;
• Промяна в сумата на инвестицията;
• Предметът на инвестицията е изцяло реализиран;
• Валидността на офертата е изтекла.
Може лесно да се отпишете, ако в бъдеще решите, че повече не желаете да следите тази оферта.
За да получите абсолютно коректна информация относно свободните имоти, налични за продажба в проекта и техните актуални цени, моля свържете се с нашия офис на посочената информация за контакт.
Ние полагаме усилия, за да поддържаме нашите ценови листи абсолютно актуални и коректни, но често това е невъзможно, предвид големия брой нови проекти в нашия каталог и силно динамичните продажби.
Благодарим Ви за проявеното разбиране!



...В качеството си на доказан спецалист Stonehard PREMIER работи по пазарното позициониране и продажбите на множество проекти ново строителство, чиято реализация ни е поверена от водещи предприемачески компании в България и чужбина...