Комфортен тристаен апартамент в комплекс от затворен тип със собствен парк
Цена:
284 769 € (2 650 €/м2)
*Указаните цени и наличности от свободни имоти в проекта са индикативни. За актуална ценова информация, моля свържете се с нас!
Реф. Номер: SOF-135169 / 3396
Местоположение: Малинова долина / София карта
Тип на сграда/комплекс: Жилищен
Площи на жилищата: 107.46 м2
Типове имоти в сградата/комплекса: Тристайни апартаменти
Реф. Номер: SOF-135169 / 3396
Местоположение: Малинова долина / София
Тип на сграда/комплекс: Жилищен
Клас на сградата/комплекса:
Площи на жилищата: 107.46 м2
Типове имоти в сградата/комплекса: Тристайни апартаменти
ПРЕД АКТ 15!
Местоположението е комуникативно, в близост до ул. "Проф. Крикор Азарян", която осигурява достъп до бул. "Симеоновско шосе" и бул. "Климент Охридски", а от там и до всички точки на столицата. На пешеходно разстояние се намират Зимния дворец на спорта, Национална Спортна Академия, парк "Въртопо" и всички удобства на Студентски град.
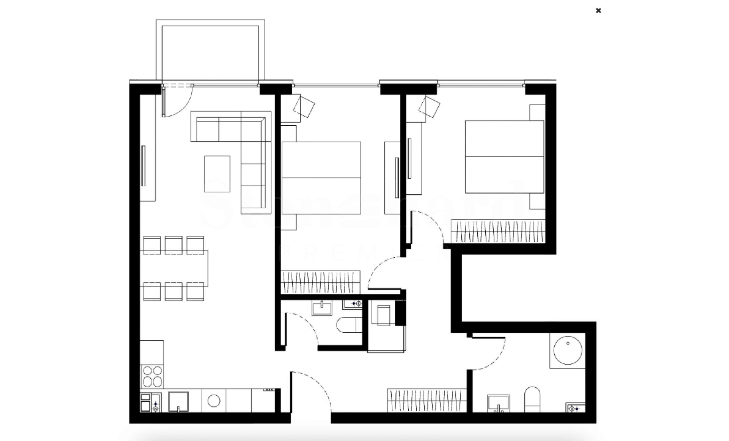
Имотът е ситуиран на 3-ти етаж от общо 4, ориентиран е на север/изток и предлага 119.59 кв.м обща площ.
Разпределение:
антре/коридор;
баня с тоалетна - 5.67 кв.м;
тоалетна - 2.27 кв.м;
склад/мокро помещение;
спалня - 14.95 кв.м;
втора спалня - 12.95 кв.м;
дневна с кухня и трапезария - 26.79 кв.м;
тераса - 4.05 кв.м. Апартаментът се продава със стени с гипсова мазилка, подове с циментова мазилка, вътрешно основно окабеляване, Ел. и ВиК инсталации, луксозни входни врати.
За комплекса
Състои се от три 4-етажни сгради и собствен парк с площ 1 500 кв.м, с богато озеленяване и без автомобилен трафик, които ще осигурят на живущите спокойна атмосфера на живот. Апартаментите са с функционални разпределения и благоприятни изложения, като голяма част от тях предлагат гледки към Витоша.
Паркирането е решено с подземни гаражи, с опция за закупуването, на цени от 34 000 евро (66 498 лв.).
Технически характеристики:
конструкция - стоманобетонна, монолитна конструкция;
хидроизолационна система в целия сутерен, както и на тавани и тераси;
топлоизолация на фасадата - 12 см EPS с декоративна облицовка от системата Caparol Meldorfer (клинкерни тухли);
покривна изолация 12 см XPS;
общи части с настилки от гранитогрес във вид на естествен камък, тавани - гипсокартон с LED осветление;
асансьори - Orona;
металопластмасова 6-камерна дограма Deceuninck, троен стъклопакет;
домофонна система за контролиран достъп;
отопление на ток с предвидена инсталация за термопомпа. Винаги чист въздух без топлинни загуби
Жилищата ще разполагат с индивидуална система за рекуперация, която осигурява обмен на въздуха, като това позволява постоянен поток от чист и свеж въздух. Използва се както през студения, така и през топлия сезон.
Отстояния:
1.6 км от най-големия търговски център в столицата - Ring Mall Sofia;
300 м от парк "Въртопо II";
2 км от парк "Студентски";
500 м от автобусна спирка;
3 км от метростанция "Младост";
в района има магазини Фантастико, Кауфланд, LIDL;
множество магазини, кафенета и заведения за хранене в кв. "Студентски град", който е в близост до обекта. Проектът е дело на строително-инвестиционна компания с 15-годишен опит в областта на жилищното, промишленото и инфраструктурното строителство у нас.
За допълнителна информация относно интересуващия Ви тип имот, моля свържете се с отговорния брокер по офертата.
Местоположение на картата
ПРОДАЖБА
ПРОЕКТ
Тристаен апартамент с двор за продажба в „Бел Вали“, м-т "Камбаните"
Младост 4 / София / София / България карта
Площ: 160.63 м2
Цена: 415 000 € /// 2 584 €/м2
ПРОДАЖБА
ПРОЕКТ
Тристаен апартамент с двор за продажба в „Бел Вали“, м-т "Камбаните"
м-т Камбаните / София / София / България карта
Площ: 160.63 м2
Цена: 415 000 € /// 2 584 €/м2
ПРОДАЖБА
ПРОЕКТ
Нов, прекрасен тристаен апартамент в модерен комплекс в кв. "Бояна"
Бояна / София / София / България карта
Площ: 120 м2
Цена: 370 000 € /// 3 083 €/м2
Изберете тази опция и ще Ви уведомяваме по имейла при настъпили промени по статуса на офертата, например:
• Промяна на цената;
• Имотът влезе в промоционално предложение;
• Имотът бъде резервран или продаден;
• Други новости, свързани с имота.
• Имотът бъде свален от продажба;
Може да се отпишете от нотификациите лесно, когато пожелаете.• Промени по условията на офертата;
• Промяна в сумата на инвестицията;
• Предметът на инвестицията е изцяло реализиран;
• Валидността на офертата е изтекла.
Може лесно да се отпишете, ако в бъдеще решите, че повече не желаете да следите тази оферта.
За да получите абсолютно коректна информация относно свободните имоти, налични за продажба в проекта и техните актуални цени, моля свържете се с нашия офис на посочената информация за контакт.
Ние полагаме усилия, за да поддържаме нашите ценови листи абсолютно актуални и коректни, но често това е невъзможно, предвид големия брой нови проекти в нашия каталог и силно динамичните продажби.
Благодарим Ви за проявеното разбиране!



...В качеството си на доказан спецалист Stonehard PREMIER работи по пазарното позициониране и продажбите на множество проекти ново строителство, чиято реализация ни е поверена от водещи предприемачески компании в България и чужбина...