Реф. Номер: LXH-134623 / 3789
Местоположение: Черноморец карта
Тип на сграда/комплекс: Жилищен
Клас на сградата/комплекса: Премиум
Площи на жилищата: 78.34 м2
Типове имоти в сградата/комплекса: Двустайни апартаменти
Реф. Номер: LXH-134623
Местоположение: Черноморец
Тип на сграда/комплекс: Жилищен
Клас на сградата/комплекса: Премиум
Площи на жилищата: 78.34 м2
Типове имоти в сградата/комплекса: Двустайни апартаменти
Тук луксът се преоткрива с ново измерение!
Тук Ви очаква разнообразие от активности, посветени на здравословния начин на живот. Сред тях са вдъхновяващи семинари на здравни и спортни теми, ритрийт програми за презареждане, уелнес и СПА процедури, групови занимания и отлични условия за водни спортове, изкуства и други забавления, търговска зона и магазини, изискани ресторанти и барове, които ще допълнят цялостната визия и удобства, създавайки идеална атмосфера за социални срещи и незабравима почивка.
Грандиозен ризорт
Проектът ще се превърне в най-елитния и луксозен жилищен ваканционен комплекс по цялото Българско Черноморие, развиван през последните 15 години - затворен комплекс от премиум клас на първа линия море и пясъчен плаж.
Комплексът ще е идеално разположен на Царския плаж между курортите Черноморец и Созопол, до прочутия къмпинг Градина. Инвеститорът на проекта е уважавана компания с 20-годишен опит, 15 построени комплекса в страната и 100 000 реализирани жилищни площи.
Срок на завършване - май 2028 г.
С Разрешение за строеж!
БЕЗ КОМИСИОНИ И БЕЗ ТАКСИ! ДИРЕКТНА ОФЕРТА ОТ ИНВЕСТИТОРА!
Ексклузивен агент по продажбите LUXIMMO GROUP.
От първа до четвърта линия море, върху впечатляващи 200 000 кв.м, проектът ще бъде със застроени сгради, улици, алеи и над 130 000 кв.м уникална паркова зона, и ще включва:
• на първа линия - 9 едноетажни вили, всяка със собствен двор и опция за басейн, с 3 броя открити паркоместа;
• на втора линия - 24 двуетажни редови къщи, общо 8 структури по три броя, с опция за самостоятелен басейн, с двор и обособени паркоместа;
• на трета линия - 4 многофамилни жилищни сгради на 3 етажа, с 1 подземно ниво с паркоместа и складове; просторни тристайни и четиристайни апартаменти, само на 100 метра по права линия от морето;
• на четвърта линия - 5 многофамилни жилищни сгради с по 1 подземно ниво с паркоместа и складове; с по-малки имоти от тип студиа и двустайни жилища, на 200 метра по права линия от морето.
За достъп до всяка сграда е проектирана вътрешна мрежа от автомобилни и пешеходни връзки за максимално удобство.
9 сгради с колекция от първокласни апартаменти
Комплексът е проектиран така, че всяка жилищна сграда разполага с озеленени площи, детски и спортни площадки, подземни паркоместа. Към всеки от апартаментите на първи етаж има предвиден озеленен двор, а самите сгради са с озеленен покрив. Светлата височина на апартаментите - 2.60 м.
За жилищата на последните етажи във всички сгради са предвидени системи за термопомпа.
На третата линия от плажа ще са разположени 4 сгради по 3 етажа + терасовиден, с просторни тристайни и четиристайни апартаменти, само на 100 метра по права линия от морето. Апартаментите тук се предлагат на шпакловка и замазка, с опция за обзавеждане.
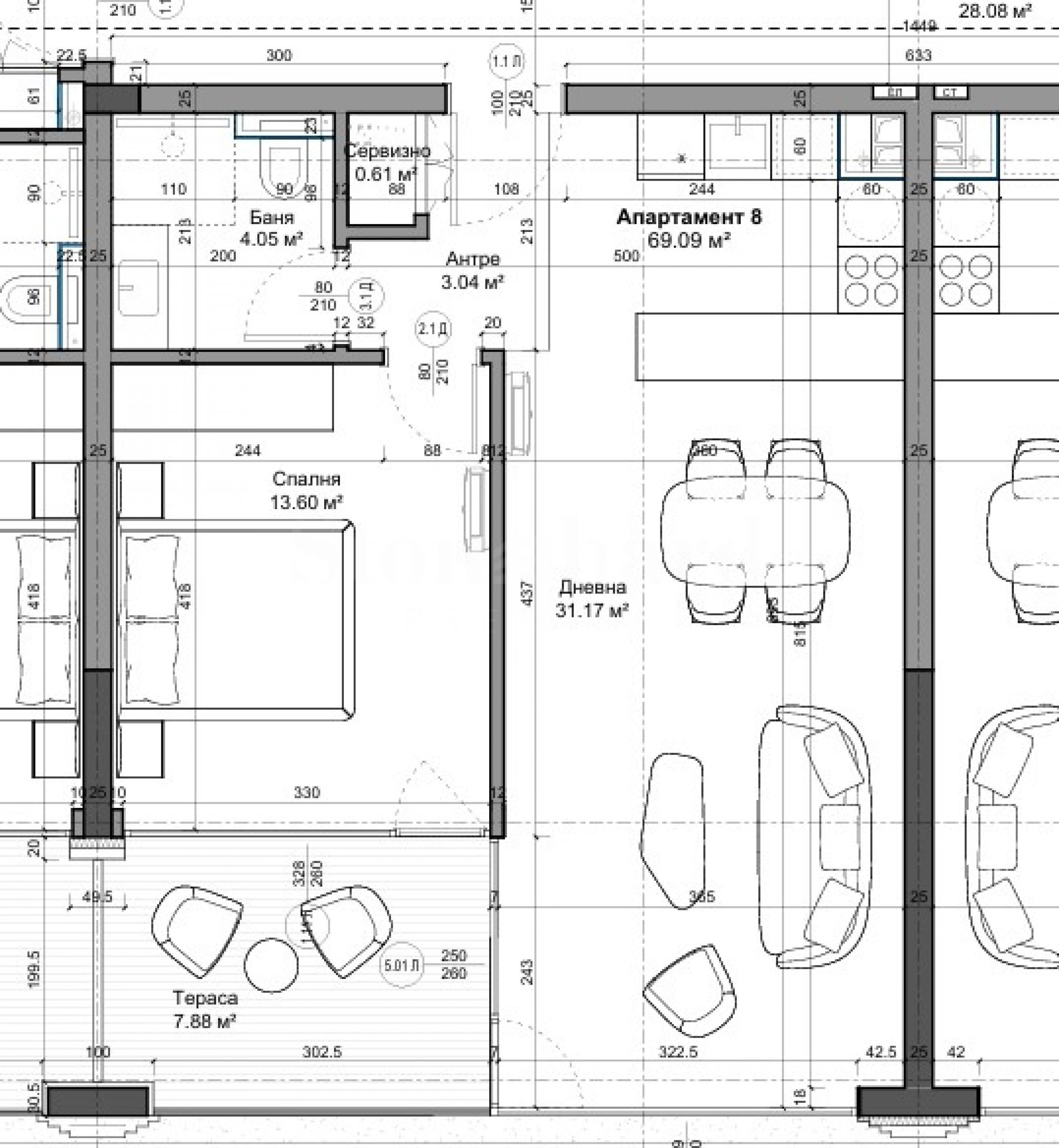
На четвъртата морска линия, само на 200 метра по права линия от морето са проектирани 5 сгради с басейни, всяка на 4 етажа + терасовиден, с по-малки жилища - студиа и двустайни имоти, в степен на завършеност по БДС, с опция за обзавеждане. Имотът, който представяме за продажба, е част от тази четвърта линия сгради. Намира се на втори етаж, с източно изложение и има обща площ 78.34 кв.м (69.09 чиста площ).
Разпределение:
• антре, склад;
• баня/тоалетна;
• спалня - 13.60 кв.м;
• дневна с кухня и трапезария - 31.17 кв.м;
• тераса - 7.88 кв.м.
Първият етап на ризорта ще разполага с:
• 33 еднофамилни къщи и вили;
• 292 бр. апартаменти;
• 403 външни и подземни паркоместа;
• 120 места за велосипеди;
• Спортен комплекс с открити и закрити игрища;
• Медицински център;
• СПА и уелнес с Healthy програми;
• Заведения в парковата зона и на плажната ивица.
Такса поддръжка - ≈30 лв. (15 €) на кв.м от обща застроена площ на годишна база.
* Целогодишната поддръжка включва 24/7 видеонаблюдение, поддръжка и почистване на басейни, градини, паркове и общите части на комплекса и сградите.
Очакваме Вашето запитване
Ако желаете да организирате оглед на имот, който Ви интересува, или да посетите някой от нашите офиси, моля свържете се с нас. За да уговорите ден и час за среща или оглед, можете да се обадите на посочения в обявата телефон или да изпратите запитване чрез електронната поща. Нашият консултант ще Ви съдейства с всички необходими подробности и ще уговори удобно за Вас време.
Търсите подходящия за Вас имот?
Не се колебайте да се свържете с нас и да ни разкажете за Вашите нужди и предпочитания. Нашият екип ще проведе задълбочено проучване на пазара, за да Ви предложи имоти, които точно отговарят на Вашите критерии. Разполагаме с изключително портфолио от висококачествени и ексклузивни жилища, които са достъпни само за нашите клиенти. За да сте първите, които ще получите информация за тях – свържете се с нас.
Допълнителни услуги
Като ценен клиент на нашата компания, Вие ще имате привилегията да ползвате напълно безплатно услугите на нашия опитен юридически екип. В допълнение, предлагаме комплексни решения, включващи имуществена застраховка, безплатна финансова консултация, както и изгодни условия за финансиране. Нашите услуги се разпростират и в сферата на препродажбата, отдаването под наем и управлението на имоти. Осигуряваме висококачествени ремонтни дейности и обзавеждане чрез специализирани фирми, които са част от нашата корпоративна група и са наши дългогодишни професионални партньори.
Местоположение на картата
Тук луксът се преоткрива с ново измерение!
Тук Ви очаква разнообразие от активности, посветени на здравословния начин на живот. Сред тях са вдъхновяващи семинари на здравни и спортни теми, ритрийт програми за презареждане, уелнес и СПА процедури, групови занимания и отлични условия за водни спортове, изкуства и други забавления, търговска зона и магазини, изискани ресторанти и барове, които ще допълнят цялостната визия и удобства, създавайки идеална атмосфера за социални срещи и незабравима почивка.
Грандиозен ризорт
Проектът ще се превърне в най-елитния и луксозен жилищен ваканционен комплекс по цялото Българско Черноморие, развиван през последните 15 години - затворен комплекс от премиум клас на първа линия море и пясъчен плаж.
Комплексът ще е идеално разположен на Царския плаж между курортите Черноморец и Созопол, до прочутия къмпинг Градина. Инвеститорът на проекта е уважавана компания с 20-годишен опит, 15 построени комплекса в страната и 100 000 реализирани жилищни площи.
Срок на завършване - май 2028 г.
С Разрешение за строеж!
БЕЗ КОМИСИОНИ И БЕЗ ТАКСИ! ДИРЕКТНА ОФЕРТА ОТ ИНВЕСТИТОРА!
Ексклузивен агент по продажбите LUXIMMO GROUP.
От първа до четвърта линия море, върху впечатляващи 200 000 кв.м, проектът ще бъде със застроени сгради, улици, алеи и над 130 000 кв.м уникална паркова зона, и ще включва:
• на първа линия - 9 едноетажни вили, всяка със собствен двор и опция за басейн, с 3 броя открити паркоместа;
• на втора линия - 24 двуетажни редови къщи, общо 8 структури по три броя, с опция за самостоятелен басейн, с двор и обособени паркоместа;
• на трета линия - 4 многофамилни жилищни сгради на 3 етажа, с 1 подземно ниво с паркоместа и складове; просторни тристайни и четиристайни апартаменти, само на 100 метра по права линия от морето;
• на четвърта линия - 5 многофамилни жилищни сгради с по 1 подземно ниво с паркоместа и складове; с по-малки имоти от тип студиа и двустайни жилища, на 200 метра по права линия от морето.
За достъп до всяка сграда е проектирана вътрешна мрежа от автомобилни и пешеходни връзки за максимално удобство.
9 сгради с колекция от първокласни апартаменти
Комплексът е проектиран така, че всяка жилищна сграда разполага с озеленени площи, детски и спортни площадки, подземни паркоместа. Към всеки от апартаментите на първи етаж има предвиден озеленен двор, а самите сгради са с озеленен покрив. Светлата височина на апартаментите - 2.60 м.
За жилищата на последните етажи във всички сгради са предвидени системи за термопомпа.
На третата линия от плажа ще са разположени 4 сгради по 3 етажа + терасовиден, с просторни тристайни и четиристайни апартаменти, само на 100 метра по права линия от морето. Апартаментите тук се предлагат на шпакловка и замазка, с опция за обзавеждане.
На четвъртата морска линия, само на 200 метра по права линия от морето са проектирани 5 сгради с басейни, всяка на 4 етажа + терасовиден, с по-малки жилища - студиа и двустайни имоти, в степен на завършеност по БДС, с опция за обзавеждане. Имотът, който представяме за продажба, е част от тази четвърта линия сгради. Намира се на втори етаж, с източно изложение и има обща площ 78.34 кв.м (69.09 чиста площ).
Разпределение:
• антре, склад;
• баня/тоалетна;
• спалня - 13.60 кв.м;
• дневна с кухня и трапезария - 31.17 кв.м;
• тераса - 7.88 кв.м.
Първият етап на ризорта ще разполага с:
• 33 еднофамилни къщи и вили;
• 292 бр. апартаменти;
• 403 външни и подземни паркоместа;
• 120 места за велосипеди;
• Спортен комплекс с открити и закрити игрища;
• Медицински център;
• СПА и уелнес с Healthy програми;
• Заведения в парковата зона и на плажната ивица.
Такса поддръжка - ≈30 лв. (15 €) на кв.м от обща застроена площ на годишна база.
* Целогодишната поддръжка включва 24/7 видеонаблюдение, поддръжка и почистване на басейни, градини, паркове и общите части на комплекса и сградите.
Очакваме Вашето запитване
Ако желаете да организирате оглед на имот, който Ви интересува, или да посетите някой от нашите офиси, моля свържете се с нас. За да уговорите ден и час за среща или оглед, можете да се обадите на посочения в обявата телефон или да изпратите запитване чрез електронната поща. Нашият консултант ще Ви съдейства с всички необходими подробности и ще уговори удобно за Вас време.
Търсите подходящия за Вас имот?
Не се колебайте да се свържете с нас и да ни разкажете за Вашите нужди и предпочитания. Нашият екип ще проведе задълбочено проучване на пазара, за да Ви предложи имоти, които точно отговарят на Вашите критерии. Разполагаме с изключително портфолио от висококачествени и ексклузивни жилища, които са достъпни само за нашите клиенти. За да сте първите, които ще получите информация за тях – свържете се с нас.
Допълнителни услуги
Като ценен клиент на нашата компания, Вие ще имате привилегията да ползвате напълно безплатно услугите на нашия опитен юридически екип. В допълнение, предлагаме комплексни решения, включващи имуществена застраховка, безплатна финансова консултация, както и изгодни условия за финансиране. Нашите услуги се разпростират и в сферата на препродажбата, отдаването под наем и управлението на имоти. Осигуряваме висококачествени ремонтни дейности и обзавеждане чрез специализирани фирми, които са част от нашата корпоративна група и са наши дългогодишни професионални партньори.
Тук луксът се преоткрива с ново измерение!
Тук Ви очаква разнообразие от активности, посветени на здравословния начин на живот. Сред тях са вдъхновяващи семинари на здравни и спортни теми, ритрийт програми за презареждане, уелнес и СПА процедури, групови занимания и отлични условия за водни спортове, изкуства и други забавления, търговска зона и магазини, изискани ресторанти и барове, които ще допълнят цялостната визия и удобства, създавайки идеална атмосфера за социални срещи и незабравима почивка.
Грандиозен ризорт
Проектът ще се превърне в най-елитния и луксозен жилищен ваканционен комплекс по цялото Българско Черноморие, развиван през последните 15 години - затворен комплекс от премиум клас на първа линия море и пясъчен плаж.
Комплексът ще е идеално разположен на Царския плаж между курортите Черноморец и Созопол, до прочутия къмпинг Градина. Инвеститорът на проекта е уважавана компания с 20-годишен опит, 15 построени комплекса в страната и 100 000 реализирани жилищни площи.
Срок на завършване - май 2028 г.
С Разрешение за строеж!
БЕЗ КОМИСИОНИ И БЕЗ ТАКСИ! ДИРЕКТНА ОФЕРТА ОТ ИНВЕСТИТОРА!
Ексклузивен агент по продажбите LUXIMMO GROUP.
От първа до четвърта линия море, върху впечатляващи 200 000 кв.м, проектът ще бъде със застроени сгради, улици, алеи и над 130 000 кв.м уникална паркова зона, и ще включва:
• на първа линия - 9 едноетажни вили, всяка със собствен двор и опция за басейн, с 3 броя открити паркоместа;
• на втора линия - 24 двуетажни редови къщи, общо 8 структури по три броя, с опция за самостоятелен басейн, с двор и обособени паркоместа;
• на трета линия - 4 многофамилни жилищни сгради на 3 етажа, с 1 подземно ниво с паркоместа и складове; просторни тристайни и четиристайни апартаменти, само на 100 метра по права линия от морето;
• на четвърта линия - 5 многофамилни жилищни сгради с по 1 подземно ниво с паркоместа и складове; с по-малки имоти от тип студиа и двустайни жилища, на 200 метра по права линия от морето.
За достъп до всяка сграда е проектирана вътрешна мрежа от автомобилни и пешеходни връзки за максимално удобство.
9 сгради с колекция от първокласни апартаменти
Комплексът е проектиран така, че всяка жилищна сграда разполага с озеленени площи, детски и спортни площадки, подземни паркоместа. Към всеки от апартаментите на първи етаж има предвиден озеленен двор, а самите сгради са с озеленен покрив. Светлата височина на апартаментите - 2.60 м.
За жилищата на последните етажи във всички сгради са предвидени системи за термопомпа.
На третата линия от плажа ще са разположени 4 сгради по 3 етажа + терасовиден, с просторни тристайни и четиристайни апартаменти, само на 100 метра по права линия от морето. Апартаментите тук се предлагат на шпакловка и замазка, с опция за обзавеждане.
На четвъртата морска линия, само на 200 метра по права линия от морето са проектирани 5 сгради с басейни, всяка на 4 етажа + терасовиден, с по-малки жилища - студиа и двустайни имоти, в степен на завършеност по БДС, с опция за обзавеждане. Имотът, който представяме за продажба, е част от тази четвърта линия сгради. Намира се на втори етаж, с източно изложение и има обща площ 78.34 кв.м (69.09 чиста площ).
Разпределение:
• антре, склад;
• баня/тоалетна;
• спалня - 13.60 кв.м;
• дневна с кухня и трапезария - 31.17 кв.м;
• тераса - 7.88 кв.м.
Първият етап на ризорта ще разполага с:
• 33 еднофамилни къщи и вили;
• 292 бр. апартаменти;
• 403 външни и подземни паркоместа;
• 120 места за велосипеди;
• Спортен комплекс с открити и закрити игрища;
• Медицински център;
• СПА и уелнес с Healthy програми;
• Заведения в парковата зона и на плажната ивица.
Такса поддръжка - ≈30 лв. (15 €) на кв.м от обща застроена площ на годишна база.
* Целогодишната поддръжка включва 24/7 видеонаблюдение, поддръжка и почистване на басейни, градини, паркове и общите части на комплекса и сградите.
Очакваме Вашето запитване
Ако желаете да организирате оглед на имот, който Ви интересува, или да посетите някой от нашите офиси, моля свържете се с нас. За да уговорите ден и час за среща или оглед, можете да се обадите на посочения в обявата телефон или да изпратите запитване чрез електронната поща. Нашият консултант ще Ви съдейства с всички необходими подробности и ще уговори удобно за Вас време.
Търсите подходящия за Вас имот?
Не се колебайте да се свържете с нас и да ни разкажете за Вашите нужди и предпочитания. Нашият екип ще проведе задълбочено проучване на пазара, за да Ви предложи имоти, които точно отговарят на Вашите критерии. Разполагаме с изключително портфолио от висококачествени и ексклузивни жилища, които са достъпни само за нашите клиенти. За да сте първите, които ще получите информация за тях – свържете се с нас.
Допълнителни услуги
Като ценен клиент на нашата компания, Вие ще имате привилегията да ползвате напълно безплатно услугите на нашия опитен юридически екип. В допълнение, предлагаме комплексни решения, включващи имуществена застраховка, безплатна финансова консултация, както и изгодни условия за финансиране. Нашите услуги се разпростират и в сферата на препродажбата, отдаването под наем и управлението на имоти. Осигуряваме висококачествени ремонтни дейности и обзавеждане чрез специализирани фирми, които са част от нашата корпоративна група и са наши дългогодишни професионални партньори.
Къщи и апартаменти в бъдещия най-елитен комплекс по Българско Черноморие
Черноморец / Бургас / България карта
Клас на сградата: Премиум
Планирано начало: Февруари, 2025 г.
Очаквано завършване: Май, 2028 г.
Цени на имотите: Цена при запитване
Апартаменти ново строителство на 200 метра от плажа в Черноморец
Черноморец / Бургас / България карта
Завършване: Октомври, 2025 г.
Цени на имотите: 93 500 - 118 500 €
Цени на м²: 1 322 - 1 421 €/м2
Изберете тази опция и ще Ви уведомяваме по имейла при настъпили промени по статуса на офертата, например:
• Промяна на цената;
• Имотът влезе в промоционално предложение;
• Имотът бъде резервран или продаден;
• Други новости, свързани с имота.
• Имотът бъде свален от продажба;
Може да се отпишете от нотификациите лесно, когато пожелаете.• Промени по условията на офертата;
• Промяна в сумата на инвестицията;
• Предметът на инвестицията е изцяло реализиран;
• Валидността на офертата е изтекла.
Може лесно да се отпишете, ако в бъдеще решите, че повече не желаете да следите тази оферта.



...В качеството си на доказан спецалист Stonehard PREMIER работи по пазарното позициониране и продажбите на множество проекти ново строителство, чиято реализация ни е поверена от водещи предприемачески компании в България и чужбина...