Тристаен апартамент в модерна нова сграда на бул. "Симеоновско шосе"
Цена:
285 978 € (без ДДС) (2 200 €/м2 (без ДДС))
*Указаните цени и наличности от свободни имоти в проекта са индикативни. За актуална ценова информация, моля свържете се с нас!
Реф. Номер: SOF-134065 / 4689
Местоположение: Витоша / София карта
Тип на сграда/комплекс: Жилищен
Клас на сградата/комплекса: Стандартен
Площи на жилищата: 129.99 м2
Типове имоти в сградата/комплекса: Тристайни апартаменти
Реф. Номер: SOF-134065 / 4689
Местоположение: Витоша / София
Тип на сграда/комплекс: Жилищен
Клас на сградата/комплекса: Стандартен
Площи на жилищата: 129.99 м2
Типове имоти в сградата/комплекса: Тристайни апартаменти
Стартирало строителство - септември 2025 г. Очакван Акт 16 - през лято 2027 г.
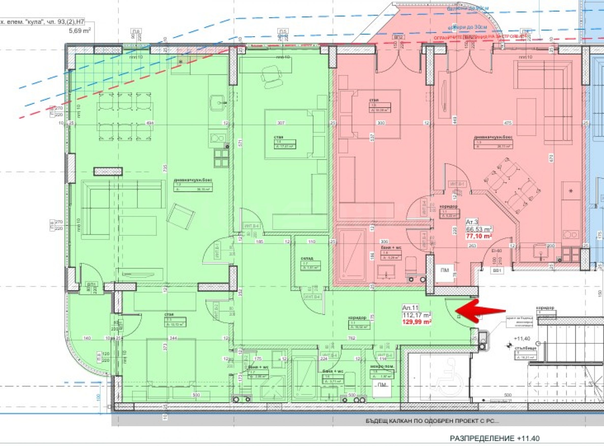
Имотът е разположен на 5-и етаж и има обща площ 129.99 кв.м, чиста площ - 112.17 кв.м. Състои се от антре/коридор, баня с тоалетна, склад, мокро помещение, дневна с кухня и трапезария, тераса, спалня със собствена баня и излаз на тераса към дневната, втора спалня. Предлага се в степен на завършеност по БДС. Отоплението е решено с парно на газ, както и изградена климатична инсталация за мултисплит система.
Има възможност за закупуване на паркоместа и гаражи.
Посочената цена е без ДДС.
За сградата
Сградата е бутикова, с общо 9 апартамента, магазин на партерно ниво с 4 открити паркоместа, още подземни 4 паркоместа и 11 гаража.
Разпределена е на 6 нива, с подземно ниво с паркоместа и гаражи, магазин на ниво партер и пет жилищни етажа с двустайни и тристайни апартаменти.
Планирано е да се използват най-съвременни технологии, в комбинация с висок клас материали и оборудване от водещи световни производители.
Технически спецификации:
• Покриви – изолирани с топлоизолация каменна вата 15 см и хидроизолация с TPO или PVC мембрана, завършек по бордове с пластифицирана ламарина;
• Фасади – изолирани с 10 см топлоизолация EPS 10 см; пакет от система Baumit със завършено покритие от силикатна мазилка в цвят, декорация от еталбонд или HPL, естествен мрамор частично по фасади;
• Тераси с гранитогрес и перваз от естествен гранит по окрайчващ борд;
• Стълбища – стъпала, под – естествен гранит, стени измазани, шпакловани, боядисани с латекс. Алуминиев стълбищен парапет – тип "Робот", цвят "Антрацит". Монтирани лихт-бутони, сензори за движение и плафониери;
• Изпълнени ВиК и ЕЛ-връзки на тапа, домофонна инсталация с видеокамера. Изградена инсталация за видеонаблюдение на ниво партер към всички входове. Прокарани инсталационни пакети за интернет доставчици;
• Дограма – висок клас петкамерен профил Salamander, с трислоен стъклопакет 4+4+6, включително нискоемисионно стъкло;
• Входна интериорна метална врата с HPL декоративно покритие 70 мм. Изолирана с твърда вата, метални панти, многоточково заключване;
• Гаражи – измазани и боядисани стени и тавани. Монтирани гаражни врати с ел. задвижване. Монтирани собствени ел. табла;
• Балконски парапети – алуминий с частично триплексово стъкло, напълно завършени, изпълнени съгласно проекта;
• Асансьор – Orona (Испания), вносител и поддръжка UNIKEN.
За инвеститора
Строителната фирма е специализирана в строителството на сгради и съоръжения, пътна инфраструктура, всички видове довършителни работи, строителство "до ключ", саниране на обществени и жилищни сгради, строителни ремонти, вътрешни и външни електро и ВиК инсталации, вертикална планировка на сгради, възстановяване, рехабилитация, изолация и саниране на стари сгради.
Очакваме Вашето запитване
Ако желаете да организирате оглед на имот, който Ви интересува, или да посетите някой от нашите офиси, моля свържете се с нас. За да уговорите ден и час за среща или оглед, можете да се обадите на посочения в обявата телефон или да изпратите запитване чрез електронната поща. Нашият консултант ще Ви съдейства с всички необходими подробности и ще уговори удобно за Вас време.
Търсите подходящия за Вас имот?
Не се колебайте да се свържете с нас и да ни разкажете за Вашите нужди и предпочитания. Нашият екип ще проведе задълбочено проучване на пазара, за да Ви предложи имоти, които точно отговарят на Вашите критерии. Разполагаме с изключително портфолио от висококачествени и ексклузивни жилища, които са достъпни само за нашите клиенти. За да сте първите, които ще получите информация за тях – свържете се с нас.
Допълнителни услуги
Като ценен клиент на нашата компания, Вие ще имате привилегията да ползвате напълно безплатно услугите на нашия опитен юридически екип. В допълнение, предлагаме комплексни решения, включващи имуществена застраховка, безплатна финансова консултация, както и изгодни условия за финансиране. Нашите услуги се разпростират и в сферата на препродажбата, отдаването под наем и управлението на имоти. Осигуряваме висококачествени ремонтни дейности и обзавеждане чрез специализирани фирми, които са част от нашата корпоративна група и са наши дългогодишни професионални партньори.
Местоположение на картата
ПРОДАЖБА
ПРОЕКТ
Дизайнерски тристаен апартамент в емблематичен комплекс на бул. "България"
Манастирски ливади - Изток / София / София / България карта
Площ: 99 м2
Цена: 450 000 € /// 4 545 €/м2
ПРАВА
ПРОДАЖБА
ПРОЕКТ
Просторен, дизайнерски апартамент с паркомясто в луксозна сграда с Акт 16
Малинова долина / София / София / България карта
Клас на сградата/комплекса: Висок стандарт
Площ: 136 м2
Цена: 396 000 € /// 2 912 €/м2
Апартаменти различни типове в нова сграда с елегантна, съвременна архитектура в кв.Горубляне
Горубляне / София / София / България карта
Планирано начало: Февруари, 2026 г.
Очаквано завършване: Декември, 2027 г.
Цени на имотите: 72 557 - 248 851 €
Цени на м²: 1 850 - 1 850 €/м2
Изберете тази опция и ще Ви уведомяваме по имейла при настъпили промени по статуса на офертата, например:
• Промяна на цената;
• Имотът влезе в промоционално предложение;
• Имотът бъде резервран или продаден;
• Други новости, свързани с имота.
• Имотът бъде свален от продажба;
Може да се отпишете от нотификациите лесно, когато пожелаете.• Промени по условията на офертата;
• Промяна в сумата на инвестицията;
• Предметът на инвестицията е изцяло реализиран;
• Валидността на офертата е изтекла.
Може лесно да се отпишете, ако в бъдеще решите, че повече не желаете да следите тази оферта.
За да получите абсолютно коректна информация относно свободните имоти, налични за продажба в проекта и техните актуални цени, моля свържете се с нашия офис на посочената информация за контакт.
Ние полагаме усилия, за да поддържаме нашите ценови листи абсолютно актуални и коректни, но често това е невъзможно, предвид големия брой нови проекти в нашия каталог и силно динамичните продажби.
Благодарим Ви за проявеното разбиране!



...В качеството си на доказан спецалист Stonehard PREMIER работи по пазарното позициониране и продажбите на множество проекти ново строителство, чиято реализация ни е поверена от водещи предприемачески компании в България и чужбина...