Реф. Номер: SOF-134001 / 3632
Местоположение: Лозенец / София карта
Тип на сграда/комплекс: Жилищен
Площи на жилищата: 181.95 м2
Типове имоти в сградата/комплекса: Многостайни апартаменти
Реф. Номер: SOF-134001
Местоположение: Лозенец / София
Тип на сграда/комплекс: Жилищен
Клас на сградата/комплекса:
Площи на жилищата: 181.95 м2
Типове имоти в сградата/комплекса: Многостайни апартаменти
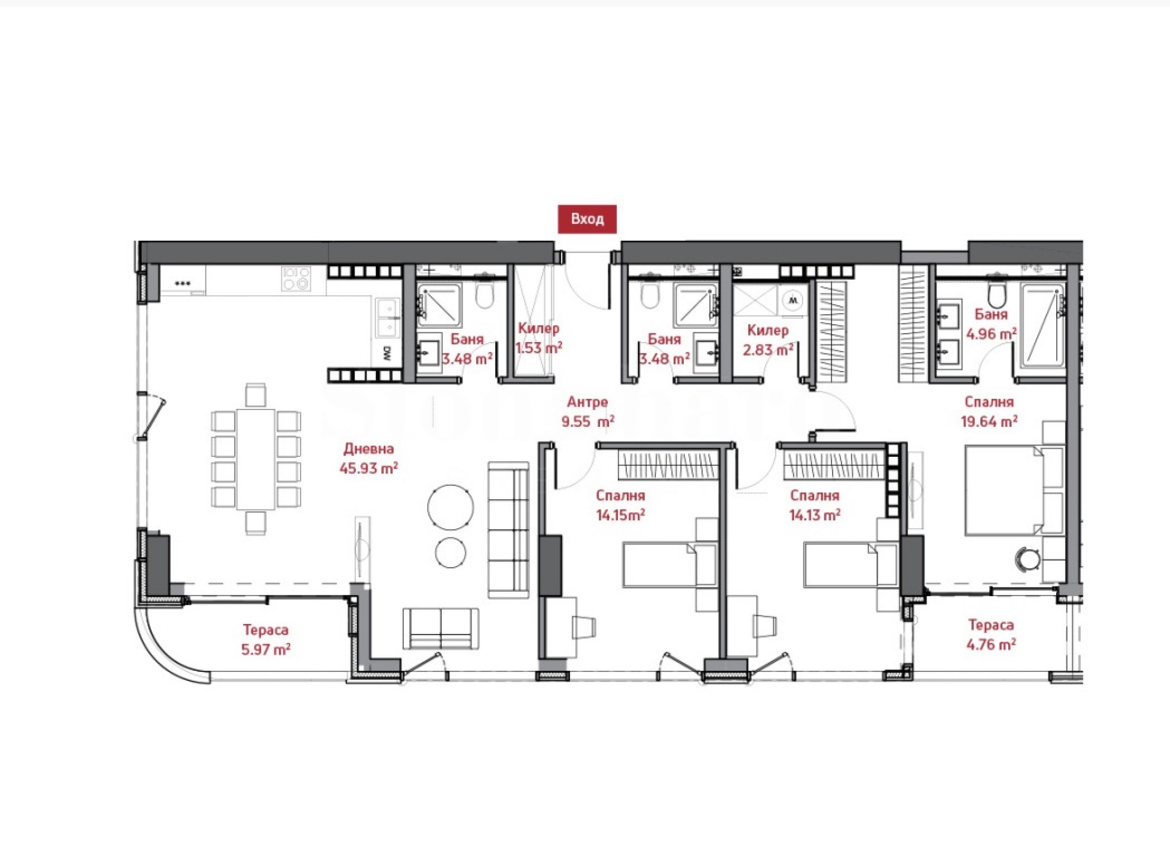
Жилището се отличава с изключителен простор и светлина благодарение на южното и източното изложение, както и с впечатляващи гледки към града и планината. Разпределението е:
• входно антре – 9,33 кв.м;
• дневна – 49,28 кв.м;
•. спалня – 19,81 кв.м;
• спалня – 15,48 кв.м;
• спалня – 14,6 кв.м;
• гардероб – 4,65 кв.м;
• баня – 5,02 кв.м;
• баня – 3,53 кв.м;
• баня – 3,55 кв.м;
• складово помещение – 2,77 кв.м;
• тераса – 5,11 кв.м;
• тераса – 4,66 кв.м.
Апартаментът се предава на шпакловка и замазка, предоставяйки възможност бъдещият собственик да реализира собствен стил и интериорни решения.
Локация и предимства на района
Сградата се намира в една от най-престижните части на София – с удобен достъп до Южен парк, Paradise Center, болница „Токуда“ и основни транспортни артерии. Районът предлага балансирана комбинация от динамичен градски живот и спокойствие, със зелени пространства, модерни заведения, спортни и търговски обекти на пешеходно разстояние. Това е място, което обединява удобството на централната локация с уюта на зелена и тиха градска среда.
Комплекс и технически характеристики
Жилищната среда е проектирана с внимание към детайла – зелени площи, алеи за разходка и спорт, обособени зони за отдих и детска площадка. Подземното ниво е предвидено изцяло за паркиране, което позволява максимално озеленяване и чиста визия на пространството.
В цената на имота са включени:
• Разводка за монтиране на индивидуална термопомпа за отопление и охлаждане;
• Разводка за подово отопление и климатици в дневната и спалнята;
• Тръбна разводка за лира и подово отопление в банята;
• 24-часова рецепция, охрана и видеонаблюдение;
• Една година безплатна поддръжка след въвеждане в експлоатация.
Технически предимства на сградата:
• Фасада със стъклено-алуминиева система и висок клас топлоизолация;
• Алуминиева дограма Schüco с тройни стъклопакети Guardian;
• Зидария с тухли Wienerberger Porotherm – 25 см външни и 12 см вътрешни стени;
• Модерен асансьор KONE Monospace;
• Възможност за закупуване на подземно паркомясто или гараж.
Това е имот, който съчетава простор, три спални, три бани и панорамни гледки от висок етаж, превръщайки го в изключителен избор както за собствен дом, така и за престижна инвестиция.
Свържете се с нас, за да откриете повече за този изключителен имот и да насрочите оглед.
Местоположение на картата
Жилището се отличава с изключителен простор и светлина благодарение на южното и източното изложение, както и с впечатляващи гледки към града и планината. Разпределението е:
• входно антре – 9,33 кв.м;
• дневна – 49,28 кв.м;
•. спалня – 19,81 кв.м;
• спалня – 15,48 кв.м;
• спалня – 14,6 кв.м;
• гардероб – 4,65 кв.м;
• баня – 5,02 кв.м;
• баня – 3,53 кв.м;
• баня – 3,55 кв.м;
• складово помещение – 2,77 кв.м;
• тераса – 5,11 кв.м;
• тераса – 4,66 кв.м.
Апартаментът се предава на шпакловка и замазка, предоставяйки възможност бъдещият собственик да реализира собствен стил и интериорни решения.
Локация и предимства на района
Сградата се намира в една от най-престижните части на София – с удобен достъп до Южен парк, Paradise Center, болница „Токуда“ и основни транспортни артерии. Районът предлага балансирана комбинация от динамичен градски живот и спокойствие, със зелени пространства, модерни заведения, спортни и търговски обекти на пешеходно разстояние. Това е място, което обединява удобството на централната локация с уюта на зелена и тиха градска среда.
Комплекс и технически характеристики
Жилищната среда е проектирана с внимание към детайла – зелени площи, алеи за разходка и спорт, обособени зони за отдих и детска площадка. Подземното ниво е предвидено изцяло за паркиране, което позволява максимално озеленяване и чиста визия на пространството.
В цената на имота са включени:
• Разводка за монтиране на индивидуална термопомпа за отопление и охлаждане;
• Разводка за подово отопление и климатици в дневната и спалнята;
• Тръбна разводка за лира и подово отопление в банята;
• 24-часова рецепция, охрана и видеонаблюдение;
• Една година безплатна поддръжка след въвеждане в експлоатация.
Технически предимства на сградата:
• Фасада със стъклено-алуминиева система и висок клас топлоизолация;
• Алуминиева дограма Schüco с тройни стъклопакети Guardian;
• Зидария с тухли Wienerberger Porotherm – 25 см външни и 12 см вътрешни стени;
• Модерен асансьор KONE Monospace;
• Възможност за закупуване на подземно паркомясто или гараж.
Това е имот, който съчетава простор, три спални, три бани и панорамни гледки от висок етаж, превръщайки го в изключителен избор както за собствен дом, така и за престижна инвестиция.
Свържете се с нас, за да откриете повече за този изключителен имот и да насрочите оглед.
Жилището се отличава с изключителен простор и светлина благодарение на южното и източното изложение, както и с впечатляващи гледки към града и планината. Разпределението е:
• входно антре – 9,33 кв.м;
• дневна – 49,28 кв.м;
•. спалня – 19,81 кв.м;
• спалня – 15,48 кв.м;
• спалня – 14,6 кв.м;
• гардероб – 4,65 кв.м;
• баня – 5,02 кв.м;
• баня – 3,53 кв.м;
• баня – 3,55 кв.м;
• складово помещение – 2,77 кв.м;
• тераса – 5,11 кв.м;
• тераса – 4,66 кв.м.
Апартаментът се предава на шпакловка и замазка, предоставяйки възможност бъдещият собственик да реализира собствен стил и интериорни решения.
Локация и предимства на района
Сградата се намира в една от най-престижните части на София – с удобен достъп до Южен парк, Paradise Center, болница „Токуда“ и основни транспортни артерии. Районът предлага балансирана комбинация от динамичен градски живот и спокойствие, със зелени пространства, модерни заведения, спортни и търговски обекти на пешеходно разстояние. Това е място, което обединява удобството на централната локация с уюта на зелена и тиха градска среда.
Комплекс и технически характеристики
Жилищната среда е проектирана с внимание към детайла – зелени площи, алеи за разходка и спорт, обособени зони за отдих и детска площадка. Подземното ниво е предвидено изцяло за паркиране, което позволява максимално озеленяване и чиста визия на пространството.
В цената на имота са включени:
• Разводка за монтиране на индивидуална термопомпа за отопление и охлаждане;
• Разводка за подово отопление и климатици в дневната и спалнята;
• Тръбна разводка за лира и подово отопление в банята;
• 24-часова рецепция, охрана и видеонаблюдение;
• Една година безплатна поддръжка след въвеждане в експлоатация.
Технически предимства на сградата:
• Фасада със стъклено-алуминиева система и висок клас топлоизолация;
• Алуминиева дограма Schüco с тройни стъклопакети Guardian;
• Зидария с тухли Wienerberger Porotherm – 25 см външни и 12 см вътрешни стени;
• Модерен асансьор KONE Monospace;
• Възможност за закупуване на подземно паркомясто или гараж.
Това е имот, който съчетава простор, три спални, три бани и панорамни гледки от висок етаж, превръщайки го в изключителен избор както за собствен дом, така и за престижна инвестиция.
Свържете се с нас, за да откриете повече за този изключителен имот и да насрочите оглед.
ПРОДАЖБА
ПРОЕКТ
Многостаен апартамент в нова, луксозна сграда в "Бояна" в София
Бояна / София / София / България карта
Площ: 169.60 м2
Цена: 390 080 € /// 2 300 €/м2
ПРАВА
Synerga Premium Complex - пространство за живот, вдъхновено от природата и града
Младост 3 / София / София / България карта
Клас на сградата: Луксозен
Завършване: Декември, 2027 г.
Цени на имотите: 204 271 - 877 422 € (без ДДС)
Цени на м²: 2 430 - 3 200 €/м2 (без ДДС)
ПРОДАЖБА
ПРОЕКТ
Четиристаен апартамент в иновативен комплекс с Акт 16 в кв. "Бояна"
Бояна / София / София / България карта
Клас на сградата/комплекса: Висок стандарт
Площ: 212.60 м2
Цена: 510 240 € /// 2 400 €/м2
Изберете тази опция и ще Ви уведомяваме по имейла при настъпили промени по статуса на офертата, например:
• Промяна на цената;
• Имотът влезе в промоционално предложение;
• Имотът бъде резервран или продаден;
• Други новости, свързани с имота.
• Имотът бъде свален от продажба;
Може да се отпишете от нотификациите лесно, когато пожелаете.• Промени по условията на офертата;
• Промяна в сумата на инвестицията;
• Предметът на инвестицията е изцяло реализиран;
• Валидността на офертата е изтекла.
Може лесно да се отпишете, ако в бъдеще решите, че повече не желаете да следите тази оферта.



...В качеството си на доказан спецалист Stonehard PREMIER работи по пазарното позициониране и продажбите на множество проекти ново строителство, чиято реализация ни е поверена от водещи предприемачески компании в България и чужбина...