Луксозна къща в затворен комплекс с висок клас ново строителство в Годеч
на картата
Цена:
223 119 € (без ДДС)
*Указаните цени и наличности от свободни имоти в проекта са индикативни. За актуална ценова информация, моля свържете се с нас!
Реф. Номер: Kbs 133667 / 4784
Местоположение: Годеч карта
Тип на сграда/комплекс: Жилищен
Площи на жилищата: 117 м2
Типове имоти в сградата/комплекса: Къщи
Реф. Номер: Kbs 133667 / 4784
Местоположение: Годеч
Тип на сграда/комплекс: Жилищен
Клас на сградата/комплекса:
Площи на жилищата: 117 м2
Типове имоти в сградата/комплекса: Къщи
Всяка къща е проектирана с големи френски прозорци, а дворовете с площ от 600 до 800 кв.м. Ви предоставят истинска свобода за почивка, игри и градинарство. На разположение са и паркоместа или гаражи, както и допълнителен паркинг за гости в началото на комплекса.
Жителите на комплекса ще се насладят на богато озеленени общи части с целогодишна поддръжка, открит басейн, детска площадка и уютна зона за релакс. Вътрешните алеи са осветени и проектирани за спокойни разходки, а инфраструктурата е напълно завършена – изградена канализация, нов водопровод, електроснабдяване и 500 метра нов асфалтов път.
Архитектурната визия на комплекса съчетава изчистени линии, естествени материали като камък и дърво и внимателно подбрани фасадни решения. Висок клас изолация, дограма Rehau Geneo с троен стъклопакет, модерни входни врати и надеждни покривни решения, гарантират дълготрайно качество и енергийна ефективност. Отоплението е предвидено чрез термопомпа и подово отопление, а интериорът се предава на шпакловка и замазка, с възможност за завършване „до ключ“ по индивидуален проект.
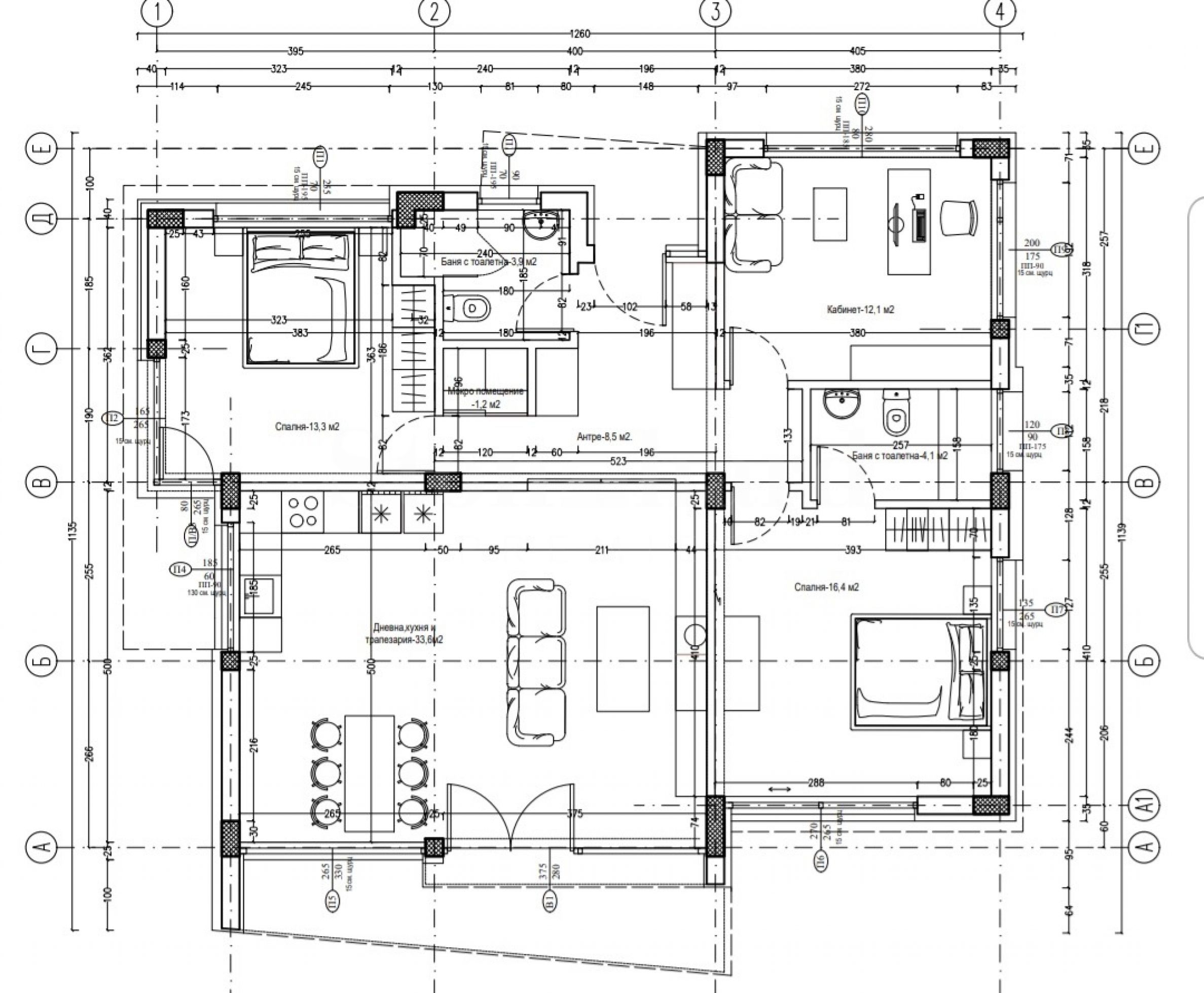
Конкретната оферта е за едноетажна къща, предлагаща функционално разпределение на 117,6 кв.м. РЗП, включващо просторна дневна с кухня, родителска спалня с баня с тоалетна, спалня, кабинет, баня с тоалетна.
Гаражът с площ 25 кв.м. и практичните складови пространства осигуряват пълен комфорт за всяко семейство.
Очакваме Вашето запитване
Ако желаете да организирате оглед на имот, който Ви интересува, или да посетите някой от нашите офиси, моля свържете се с нас. За да уговорите ден и час за среща или оглед, можете да се обадите на посочения в обявата телефон или да изпратите запитване чрез електронната поща. Нашият консултант ще Ви съдейства с всички необходими подробности и ще уговори удобно за Вас време.
Търсите подходящия за Вас имот?
Не се колебайте да се свържете с нас и да ни разкажете за Вашите нужди и предпочитания. Нашият екип ще проведе задълбочено проучване на пазара, за да Ви предложи имоти, които точно отговарят на Вашите критерии. Разполагаме с изключително портфолио от висококачествени и ексклузивни жилища, които са достъпни само за нашите клиенти. За да сте първите, които ще получите информация за тях – свържете се с нас.
Допълнителни услуги
Като ценен клиент на нашата компания, Вие ще имате привилегията да ползвате напълно безплатно услугите на нашия опитен юридически екип. В допълнение, предлагаме комплексни решения, включващи имуществена застраховка, безплатна финансова консултация, както и изгодни условия за финансиране. Нашите услуги се разпростират и в сферата на препродажбата, отдаването под наем и управлението на имоти. Осигуряваме висококачествени ремонтни дейности и обзавеждане чрез специализирани фирми, които са част от нашата корпоративна група и са наши дългогодишни професионални партньори.
Местоположение на картата
Луксозни къщи в затворен комплекс с висок клас ново строителство в Годеч
Годеч / София / България карта
Завършване: Декември, 2025 г.
Цени на имотите: 223 119 - 389 110 € (без ДДС)
Цени на м²: 1 670 - 1 907 €/м2 (без ДДС)
Изберете тази опция и ще Ви уведомяваме по имейла при настъпили промени по статуса на офертата, например:
• Промяна на цената;
• Имотът влезе в промоционално предложение;
• Имотът бъде резервран или продаден;
• Други новости, свързани с имота.
• Имотът бъде свален от продажба;
Може да се отпишете от нотификациите лесно, когато пожелаете.• Промени по условията на офертата;
• Промяна в сумата на инвестицията;
• Предметът на инвестицията е изцяло реализиран;
• Валидността на офертата е изтекла.
Може лесно да се отпишете, ако в бъдеще решите, че повече не желаете да следите тази оферта.
За да получите абсолютно коректна информация относно свободните имоти, налични за продажба в проекта и техните актуални цени, моля свържете се с нашия офис на посочената информация за контакт.
Ние полагаме усилия, за да поддържаме нашите ценови листи абсолютно актуални и коректни, но често това е невъзможно, предвид големия брой нови проекти в нашия каталог и силно динамичните продажби.
Благодарим Ви за проявеното разбиране!



...В качеството си на доказан спецалист Stonehard PREMIER работи по пазарното позициониране и продажбите на множество проекти ново строителство, чиято реализация ни е поверена от водещи предприемачески компании в България и чужбина...