Реф. Номер: SOF-133350 / 4623
Местоположение: Витоша / София карта
Тип на сграда/комплекс: Жилищен
Клас на сградата/комплекса: Висок стандарт
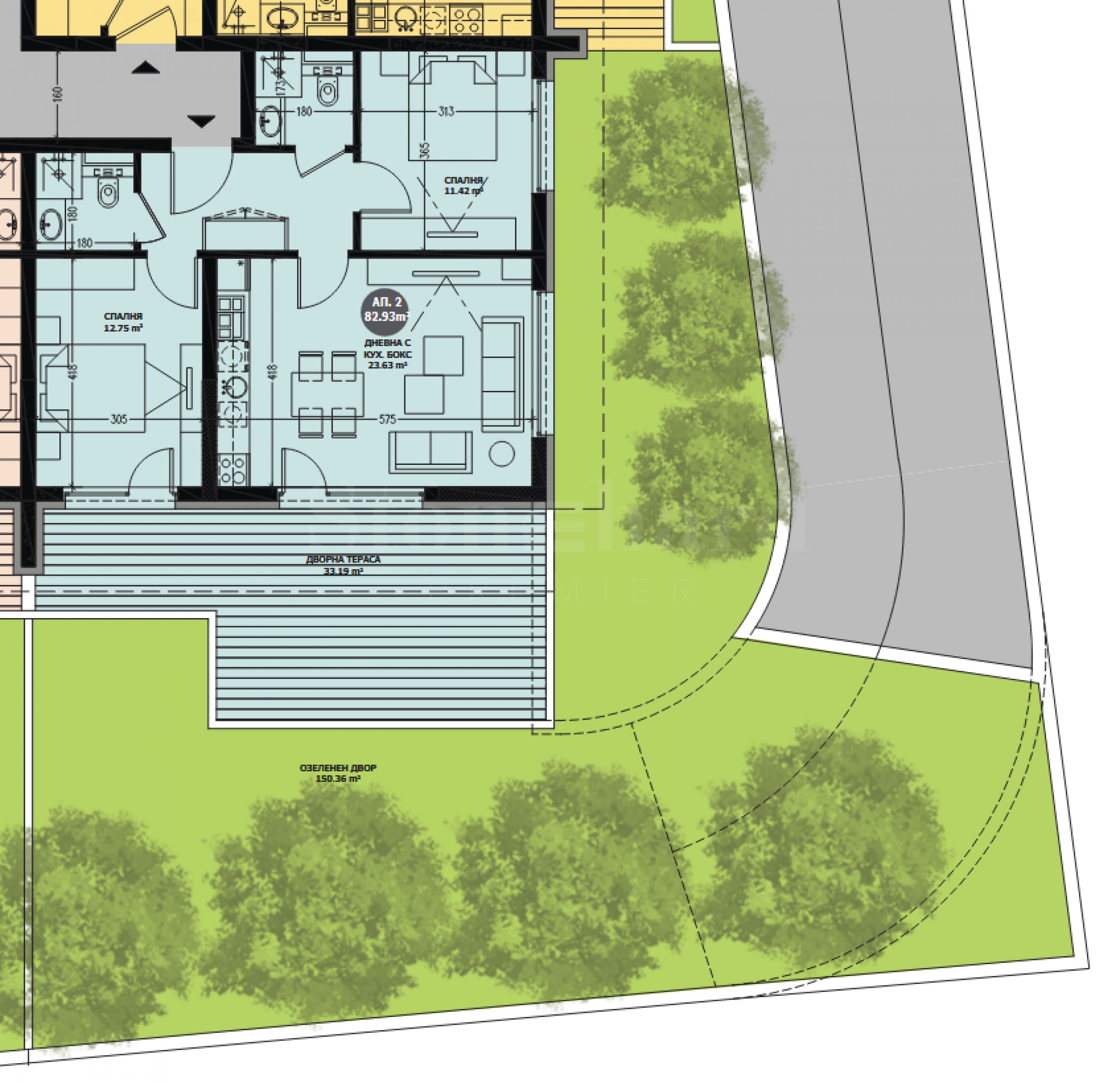
Площи на жилищата: 82.93 м2
Типове имоти в сградата/комплекса: Тристайни апартаменти
Реф. Номер: SOF-133350
Местоположение: Витоша / София
Тип на сграда/комплекс: Жилищен
Клас на сградата/комплекса: Висок стандарт
Площи на жилищата: 82.93 м2
Типове имоти в сградата/комплекса: Тристайни апартаменти
Старт на строителството - юли 2025 г.
Планирано завършване - декември 2028 г.
Локация
Комплексът е ситуиран на стратегическо място, съчетаващо тишина и уединение с удобна връзка до централните части на София. Квартал „Витоша“ се утвърждава като една от най-перспективните и модерни зони на столицата, отличаваща се с нискоетажно застрояване и преобладаващо затворени жилищни комплекси – фактори, които създават усещане за сигурност и спокойствие.
В непосредствена близост се намират всички необходими удобства за комфортен начин на живот – супермаркетите „Фантастико“ и „Кауфланд“, аптека, детска градина, зелени площи и детски площадки, салони за красота и други търговски обекти.
Само на няколко минути с автомобил са бул. „Черни връх“ и Околовръстният път – основни пътни артерии, които осигуряват лесен и бърз достъп до ключови локации в града.
Несъмненото предимство на района остава близостта до планината – естествен източник на чист въздух, прохлада в летните месеци и впечатляващи гледки през всички сезони.
За комплекса
Комплексът се състои от четири сгради, като всяка от тях разполага с четири жилищни и един подземен етаж. Фасадата е с прави, изчистени линии и елементи от естествен камък, придаващи изискан акцент към общата визия. Освен стилна отвън, фасадата е ефективна отвътре благодарение на поставената топлоизолационна система EPS с дебелина 10 см, гарантираща енергийната ефективност през цялата година. Покривът и сутеренът са с хидроизолация Penetron - международен лидер в областта.
Общите части и входовете са луксозно изпълнени по индивидуален дизайнерски проект, с настилки и облицовки, съгласно визията на сградите. За придвижването между етажите са планирани персонализирани испански асансьори ORONA. Вътрешния двор е професионално озеленен. Сигурността е гарантирана чрез домофонна инсталация - видео домофон с контрол на достъпа.
Апартаментът
Жилището се намира на партерен етаж в четириетажна сграда и предлага обща площ от 82.93 кв.м, като чистата застроена площ възлиза на 71.06 кв.м. С височина на таваните от 3 метра, помещенията изобилстват от дневна светлина, а усещането за простор е осезаемо. Просторното и функционално разпределение включва входно антре, светла дневна с кухненски бокс, две самостоятелни спални – всяка със собствена баня, както и слънчева тераса с директен достъп към двора.
Особено предимство на имота е прилежащото дворно пространство с площ от 150.36 кв.м – перфектно за създаване на уютна градина, кът за отдих, детска зона или място за приятни събирания на открито през топлите месеци.
Апартаментът се продава по БДС – на шпакловка и замазка, и е оборудван с блиндирана входна врата от висок клас с четиристранно заключване. Терасата е завършена с мразоустойчив гранитогрес, който съчетава дълготрайност с стилен външен вид.
Осигурена е шумоизолация между апартаментите за по-високо ниво на комфорт и уединение на всички обитатели.
Предвидено е отопление на газ, като необходимите тръбни връзки са прокарани до входната врата. Предвидени са инсталации за подово отопление.
Към имота може да бъде закупено и подземно паркомясто, като гаражът е оборудван с висококачествени врати от марката Hormann.
Висок клас дограма
За прозорците е избран немския бранд Rehau Artevo - фирма с дългогодишен опит, насочена към създаването на дограма, която да е по-устойчива, по-стабилна и с високо ниво на топлоизолация. Благодарение на оптималното използване на високотехнологичния материал RAU-FIPRO X в комбинация с изключителния технологичен опит на REHAU, ARTEVO задава нови стандарти за качество. Онова, което отличава метода им на работа от останалите е интегрираното иновативно фолио LowE, което намалява топлинното излъчване до 5 % и предотвратява нежеланата конвекция на въздуха в камерите. Това позволява да бъдат постигнати стойности на Uf до 0,81 W/m²K. За цвят е избран антрацит (графитен), който допълва цялостната визия на жилищата.
Електрическа инсталация и канализация
Сградите разполагат с изградена трипроводна електрическа инсталация с хоризонтална и вертикална разводка, както и монтирани електрическо табло за апартаментите с дефектнотокова защита за повишена безопасност. Жилищата разполагат и с окабеляване за интернет и телевизия във всяка стая.
Водоснабдяването и канализацията са изпълнени с модерна тръбна система – PPR и PVC щрангове и инсталация в сутерена. Вътрешната водопроводна мрежа в апартаментите е изградена с полипропиленови тръби „на тапа“ и включва монтирани индивидуални водомери.
Схема за плащане
• 30% - Предварителен договор;
• 30% - Акт 14;
• 30% - Акт 15;
• 10% - Акт 16.
Очакваме Вашето запитване
Ако желаете да организирате оглед на имот, който Ви интересува, или да посетите някой от нашите офиси, моля свържете се с нас. За да уговорите ден и час за среща или оглед, можете да се обадите на посочения в обявата телефон или да изпратите запитване чрез електронната поща. Нашият консултант ще Ви съдейства с всички необходими подробности и ще уговори удобно за Вас време.
Търсите подходящия за Вас имот?
Не се колебайте да се свържете с нас и да ни разкажете за Вашите нужди и предпочитания. Нашият екип ще проведе задълбочено проучване на пазара, за да Ви предложи имоти, които точно отговарят на Вашите критерии. Разполагаме с изключително портфолио от висококачествени и ексклузивни жилища, които са достъпни само за нашите клиенти. За да сте първите, които ще получите информация за тях – свържете се с нас.
Допълнителни услуги
Като ценен клиент на нашата компания, Вие ще имате привилегията да ползвате напълно безплатно услугите на нашия опитен юридически екип. В допълнение, предлагаме комплексни решения, включващи имуществена застраховка, безплатна финансова консултация, както и изгодни условия за финансиране. Нашите услуги се разпростират и в сферата на препродажбата, отдаването под наем и управлението на имоти. Осигуряваме висококачествени ремонтни дейности и обзавеждане чрез специализирани фирми, които са част от нашата корпоративна група и са наши дългогодишни професионални партньори.
Местоположение на картата
Старт на строителството - юли 2025 г.
Планирано завършване - декември 2028 г.
Локация
Комплексът е ситуиран на стратегическо място, съчетаващо тишина и уединение с удобна връзка до централните части на София. Квартал „Витоша“ се утвърждава като една от най-перспективните и модерни зони на столицата, отличаваща се с нискоетажно застрояване и преобладаващо затворени жилищни комплекси – фактори, които създават усещане за сигурност и спокойствие.
В непосредствена близост се намират всички необходими удобства за комфортен начин на живот – супермаркетите „Фантастико“ и „Кауфланд“, аптека, детска градина, зелени площи и детски площадки, салони за красота и други търговски обекти.
Само на няколко минути с автомобил са бул. „Черни връх“ и Околовръстният път – основни пътни артерии, които осигуряват лесен и бърз достъп до ключови локации в града.
Несъмненото предимство на района остава близостта до планината – естествен източник на чист въздух, прохлада в летните месеци и впечатляващи гледки през всички сезони.
За комплекса
Комплексът се състои от четири сгради, като всяка от тях разполага с четири жилищни и един подземен етаж. Фасадата е с прави, изчистени линии и елементи от естествен камък, придаващи изискан акцент към общата визия. Освен стилна отвън, фасадата е ефективна отвътре благодарение на поставената топлоизолационна система EPS с дебелина 10 см, гарантираща енергийната ефективност през цялата година. Покривът и сутеренът са с хидроизолация Penetron - международен лидер в областта.
Общите части и входовете са луксозно изпълнени по индивидуален дизайнерски проект, с настилки и облицовки, съгласно визията на сградите. За придвижването между етажите са планирани персонализирани испански асансьори ORONA. Вътрешния двор е професионално озеленен. Сигурността е гарантирана чрез домофонна инсталация - видео домофон с контрол на достъпа.
Апартаментът
Жилището се намира на партерен етаж в четириетажна сграда и предлага обща площ от 82.93 кв.м, като чистата застроена площ възлиза на 71.06 кв.м. С височина на таваните от 3 метра, помещенията изобилстват от дневна светлина, а усещането за простор е осезаемо. Просторното и функционално разпределение включва входно антре, светла дневна с кухненски бокс, две самостоятелни спални – всяка със собствена баня, както и слънчева тераса с директен достъп към двора.
Особено предимство на имота е прилежащото дворно пространство с площ от 150.36 кв.м – перфектно за създаване на уютна градина, кът за отдих, детска зона или място за приятни събирания на открито през топлите месеци.
Апартаментът се продава по БДС – на шпакловка и замазка, и е оборудван с блиндирана входна врата от висок клас с четиристранно заключване. Терасата е завършена с мразоустойчив гранитогрес, който съчетава дълготрайност с стилен външен вид.
Осигурена е шумоизолация между апартаментите за по-високо ниво на комфорт и уединение на всички обитатели.
Предвидено е отопление на газ, като необходимите тръбни връзки са прокарани до входната врата. Предвидени са инсталации за подово отопление.
Към имота може да бъде закупено и подземно паркомясто, като гаражът е оборудван с висококачествени врати от марката Hormann.
Висок клас дограма
За прозорците е избран немския бранд Rehau Artevo - фирма с дългогодишен опит, насочена към създаването на дограма, която да е по-устойчива, по-стабилна и с високо ниво на топлоизолация. Благодарение на оптималното използване на високотехнологичния материал RAU-FIPRO X в комбинация с изключителния технологичен опит на REHAU, ARTEVO задава нови стандарти за качество. Онова, което отличава метода им на работа от останалите е интегрираното иновативно фолио LowE, което намалява топлинното излъчване до 5 % и предотвратява нежеланата конвекция на въздуха в камерите. Това позволява да бъдат постигнати стойности на Uf до 0,81 W/m²K. За цвят е избран антрацит (графитен), който допълва цялостната визия на жилищата.
Електрическа инсталация и канализация
Сградите разполагат с изградена трипроводна електрическа инсталация с хоризонтална и вертикална разводка, както и монтирани електрическо табло за апартаментите с дефектнотокова защита за повишена безопасност. Жилищата разполагат и с окабеляване за интернет и телевизия във всяка стая.
Водоснабдяването и канализацията са изпълнени с модерна тръбна система – PPR и PVC щрангове и инсталация в сутерена. Вътрешната водопроводна мрежа в апартаментите е изградена с полипропиленови тръби „на тапа“ и включва монтирани индивидуални водомери.
Схема за плащане
• 30% - Предварителен договор;
• 30% - Акт 14;
• 30% - Акт 15;
• 10% - Акт 16.
Очакваме Вашето запитване
Ако желаете да организирате оглед на имот, който Ви интересува, или да посетите някой от нашите офиси, моля свържете се с нас. За да уговорите ден и час за среща или оглед, можете да се обадите на посочения в обявата телефон или да изпратите запитване чрез електронната поща. Нашият консултант ще Ви съдейства с всички необходими подробности и ще уговори удобно за Вас време.
Търсите подходящия за Вас имот?
Не се колебайте да се свържете с нас и да ни разкажете за Вашите нужди и предпочитания. Нашият екип ще проведе задълбочено проучване на пазара, за да Ви предложи имоти, които точно отговарят на Вашите критерии. Разполагаме с изключително портфолио от висококачествени и ексклузивни жилища, които са достъпни само за нашите клиенти. За да сте първите, които ще получите информация за тях – свържете се с нас.
Допълнителни услуги
Като ценен клиент на нашата компания, Вие ще имате привилегията да ползвате напълно безплатно услугите на нашия опитен юридически екип. В допълнение, предлагаме комплексни решения, включващи имуществена застраховка, безплатна финансова консултация, както и изгодни условия за финансиране. Нашите услуги се разпростират и в сферата на препродажбата, отдаването под наем и управлението на имоти. Осигуряваме висококачествени ремонтни дейности и обзавеждане чрез специализирани фирми, които са част от нашата корпоративна група и са наши дългогодишни професионални партньори.
Старт на строителството - юли 2025 г.
Планирано завършване - декември 2028 г.
Локация
Комплексът е ситуиран на стратегическо място, съчетаващо тишина и уединение с удобна връзка до централните части на София. Квартал „Витоша“ се утвърждава като една от най-перспективните и модерни зони на столицата, отличаваща се с нискоетажно застрояване и преобладаващо затворени жилищни комплекси – фактори, които създават усещане за сигурност и спокойствие.
В непосредствена близост се намират всички необходими удобства за комфортен начин на живот – супермаркетите „Фантастико“ и „Кауфланд“, аптека, детска градина, зелени площи и детски площадки, салони за красота и други търговски обекти.
Само на няколко минути с автомобил са бул. „Черни връх“ и Околовръстният път – основни пътни артерии, които осигуряват лесен и бърз достъп до ключови локации в града.
Несъмненото предимство на района остава близостта до планината – естествен източник на чист въздух, прохлада в летните месеци и впечатляващи гледки през всички сезони.
За комплекса
Комплексът се състои от четири сгради, като всяка от тях разполага с четири жилищни и един подземен етаж. Фасадата е с прави, изчистени линии и елементи от естествен камък, придаващи изискан акцент към общата визия. Освен стилна отвън, фасадата е ефективна отвътре благодарение на поставената топлоизолационна система EPS с дебелина 10 см, гарантираща енергийната ефективност през цялата година. Покривът и сутеренът са с хидроизолация Penetron - международен лидер в областта.
Общите части и входовете са луксозно изпълнени по индивидуален дизайнерски проект, с настилки и облицовки, съгласно визията на сградите. За придвижването между етажите са планирани персонализирани испански асансьори ORONA. Вътрешния двор е професионално озеленен. Сигурността е гарантирана чрез домофонна инсталация - видео домофон с контрол на достъпа.
Апартаментът
Жилището се намира на партерен етаж в четириетажна сграда и предлага обща площ от 82.93 кв.м, като чистата застроена площ възлиза на 71.06 кв.м. С височина на таваните от 3 метра, помещенията изобилстват от дневна светлина, а усещането за простор е осезаемо. Просторното и функционално разпределение включва входно антре, светла дневна с кухненски бокс, две самостоятелни спални – всяка със собствена баня, както и слънчева тераса с директен достъп към двора.
Особено предимство на имота е прилежащото дворно пространство с площ от 150.36 кв.м – перфектно за създаване на уютна градина, кът за отдих, детска зона или място за приятни събирания на открито през топлите месеци.
Апартаментът се продава по БДС – на шпакловка и замазка, и е оборудван с блиндирана входна врата от висок клас с четиристранно заключване. Терасата е завършена с мразоустойчив гранитогрес, който съчетава дълготрайност с стилен външен вид.
Осигурена е шумоизолация между апартаментите за по-високо ниво на комфорт и уединение на всички обитатели.
Предвидено е отопление на газ, като необходимите тръбни връзки са прокарани до входната врата. Предвидени са инсталации за подово отопление.
Към имота може да бъде закупено и подземно паркомясто, като гаражът е оборудван с висококачествени врати от марката Hormann.
Висок клас дограма
За прозорците е избран немския бранд Rehau Artevo - фирма с дългогодишен опит, насочена към създаването на дограма, която да е по-устойчива, по-стабилна и с високо ниво на топлоизолация. Благодарение на оптималното използване на високотехнологичния материал RAU-FIPRO X в комбинация с изключителния технологичен опит на REHAU, ARTEVO задава нови стандарти за качество. Онова, което отличава метода им на работа от останалите е интегрираното иновативно фолио LowE, което намалява топлинното излъчване до 5 % и предотвратява нежеланата конвекция на въздуха в камерите. Това позволява да бъдат постигнати стойности на Uf до 0,81 W/m²K. За цвят е избран антрацит (графитен), който допълва цялостната визия на жилищата.
Електрическа инсталация и канализация
Сградите разполагат с изградена трипроводна електрическа инсталация с хоризонтална и вертикална разводка, както и монтирани електрическо табло за апартаментите с дефектнотокова защита за повишена безопасност. Жилищата разполагат и с окабеляване за интернет и телевизия във всяка стая.
Водоснабдяването и канализацията са изпълнени с модерна тръбна система – PPR и PVC щрангове и инсталация в сутерена. Вътрешната водопроводна мрежа в апартаментите е изградена с полипропиленови тръби „на тапа“ и включва монтирани индивидуални водомери.
Схема за плащане
• 30% - Предварителен договор;
• 30% - Акт 14;
• 30% - Акт 15;
• 10% - Акт 16.
Очакваме Вашето запитване
Ако желаете да организирате оглед на имот, който Ви интересува, или да посетите някой от нашите офиси, моля свържете се с нас. За да уговорите ден и час за среща или оглед, можете да се обадите на посочения в обявата телефон или да изпратите запитване чрез електронната поща. Нашият консултант ще Ви съдейства с всички необходими подробности и ще уговори удобно за Вас време.
Търсите подходящия за Вас имот?
Не се колебайте да се свържете с нас и да ни разкажете за Вашите нужди и предпочитания. Нашият екип ще проведе задълбочено проучване на пазара, за да Ви предложи имоти, които точно отговарят на Вашите критерии. Разполагаме с изключително портфолио от висококачествени и ексклузивни жилища, които са достъпни само за нашите клиенти. За да сте първите, които ще получите информация за тях – свържете се с нас.
Допълнителни услуги
Като ценен клиент на нашата компания, Вие ще имате привилегията да ползвате напълно безплатно услугите на нашия опитен юридически екип. В допълнение, предлагаме комплексни решения, включващи имуществена застраховка, безплатна финансова консултация, както и изгодни условия за финансиране. Нашите услуги се разпростират и в сферата на препродажбата, отдаването под наем и управлението на имоти. Осигуряваме висококачествени ремонтни дейности и обзавеждане чрез специализирани фирми, които са част от нашата корпоративна група и са наши дългогодишни професионални партньори.
ПРАВА
ПРОДАЖБА
ПРОЕКТ
Просторен, дизайнерски апартамент с паркомясто в луксозна сграда с Акт 16
Малинова долина / София / София / България карта
Клас на сградата/комплекса: Висок стандарт
Площ: 136 м2
Цена: 434 900 € /// 3 198 €/м2
Апартаменти в Етап 2 на модерен комплекс близо до "Симеоновско шосе"
Малинова долина / София / София / България карта
Завършване: Април, 2028 г.
Цени на имотите: 69 346 - 192 316 €
Цени на м²: 1 575 - 1 995 €/м2
Апартаменти в Етап 1 на модерен комплекс близо до "Симеоновско шосе"
Малинова долина / София / София / България карта
Завършване: Март, 2028 г.
Цени на имотите: 114 096 - 247 180 €
Цени на м²: 1 828 - 2 296 €/м2
Изберете тази опция и ще Ви уведомяваме по имейла при настъпили промени по статуса на офертата, например:
• Промяна на цената;
• Имотът влезе в промоционално предложение;
• Имотът бъде резервран или продаден;
• Други новости, свързани с имота.
• Имотът бъде свален от продажба;
Може да се отпишете от нотификациите лесно, когато пожелаете.• Промени по условията на офертата;
• Промяна в сумата на инвестицията;
• Предметът на инвестицията е изцяло реализиран;
• Валидността на офертата е изтекла.
Може лесно да се отпишете, ако в бъдеще решите, че повече не желаете да следите тази оферта.



...В качеството си на доказан спецалист Stonehard PREMIER работи по пазарното позициониране и продажбите на множество проекти ново строителство, чиято реализация ни е поверена от водещи предприемачески компании в България и чужбина...