Апартамент с три спални в модерен комплекс в кв. "Славейков", Бургас
Цена:
ЦЕНА ПРИ ЗАПИТВАНЕ
*Указаните цени и наличности от свободни имоти в проекта са индикативни. За актуална ценова информация, моля свържете се с нас!
Реф. Номер: LXH-132967 / 4590
Местоположение: Славейков / Бургас карта
Тип на сграда/комплекс: Жилищен
Площи на жилищата: 151.40 м2
Типове имоти в сградата/комплекса: Четиристайни апартаменти
Реф. Номер: LXH-132967 / 4590
Местоположение: Славейков / Бургас
Тип на сграда/комплекс: Жилищен
Клас на сградата/комплекса:
Площи на жилищата: 151.40 м2
Типове имоти в сградата/комплекса: Четиристайни апартаменти
Старт на строителството - август 2025 г.
Срок на завършване - 36 месеца.
Представяме за продажба четиристаен апартамент в модерен комплекс от четири сгради, ситуиран на главна пътна артерия в кв. "Славейков", до ключов булевард, с бърз достъп до всички точки на Бургас.
Покупка без комисиона.
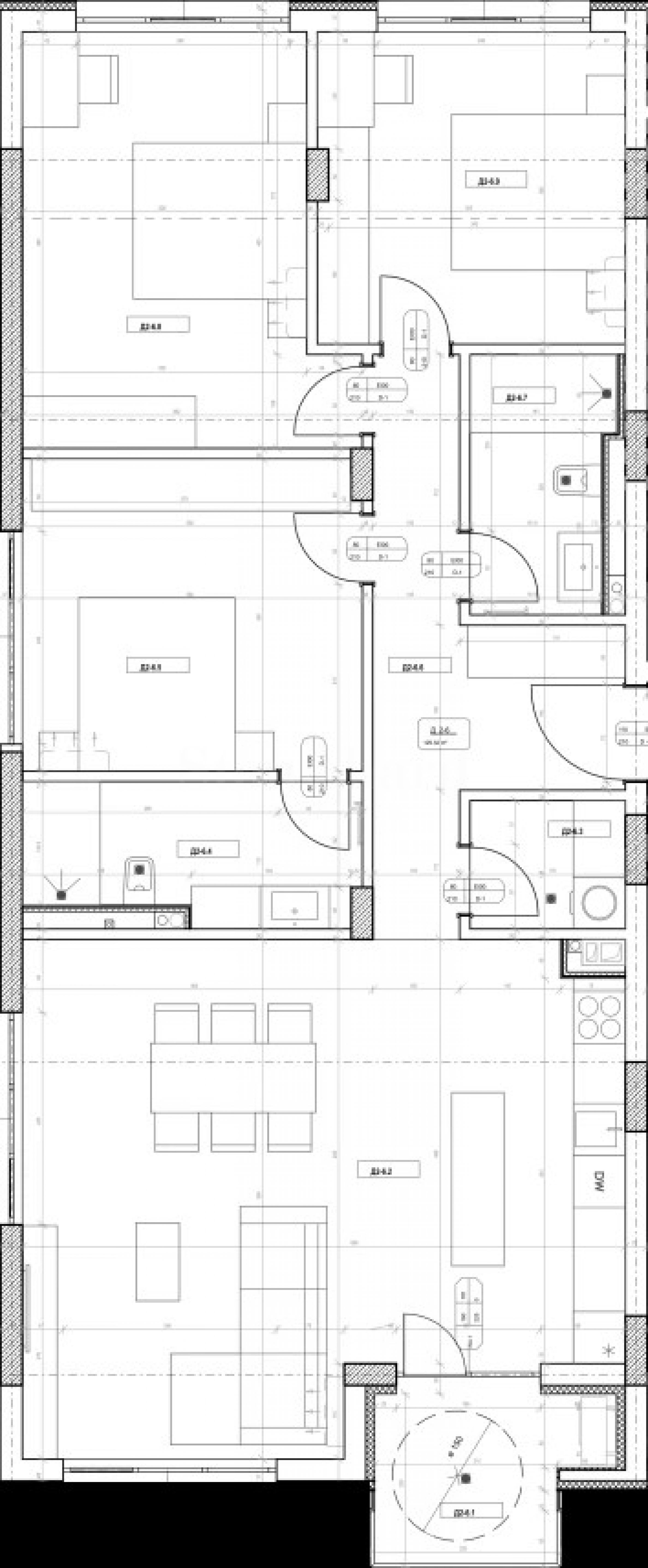
Имотът е с обща площ от 151,40 кв.м, разположен на 3-ти етаж, със следното разпределение:
• антре/коридор;
• дневна с кухня;
• три спални;
• две бани с тоалет;
• мокро помещение;
• тераса.
Издава се в степен на завършеност по БДС, качествено ново строителство.
Сградите ще бъдат със съвременен дизайн и функционалност, създадени с мисъл за живот, уют и работа. Ще разполагат на територията си с:
• жилищна част, с разнообразие от двустайни, тристайни и четиристайни апартаменти;
• търговски обекти;
• офис-площи и многофункционална конферентна зала;
• зони за отдих и зелени площи;
• апартхотел.
Без такса поддръжка.
Имотите са с площ от 57,06 кв.м до 152,36 кв.м, ситуирани в 4 сгради, съдържащи офиси, търговски обекти, кафене, жилища, подземен и надземен паркинг и зона за отдих за живущите в комплекса.
На ниво партер са предвидени допълнителни паркоместа за посетители и част от апартаментите в комплекса. Осигурени са и необходимите места за велосипеди.
Очакваме Вашето запитване
Ако желаете да организирате оглед на имот, който Ви интересува, или да посетите някой от нашите офиси, моля свържете се с нас. За да уговорите ден и час за среща или оглед, можете да се обадите на посочения в обявата телефон или да изпратите запитване чрез електронната поща. Нашият консултант ще Ви съдейства с всички необходими подробности и ще уговори удобно за Вас време.
Търсите подходящия за Вас имот?
Не се колебайте да се свържете с нас и да ни разкажете за Вашите нужди и предпочитания. Нашият екип ще проведе задълбочено проучване на пазара, за да Ви предложи имоти, които точно отговарят на Вашите критерии. Разполагаме с изключително портфолио от висококачествени и ексклузивни жилища, които са достъпни само за нашите клиенти. За да сте първите, които ще получите информация за тях – свържете се с нас.
Допълнителни услуги
Като ценен клиент на нашата компания, Вие ще имате привилегията да ползвате напълно безплатно услугите на нашия опитен юридически екип. В допълнение, предлагаме комплексни решения, включващи имуществена застраховка, безплатна финансова консултация, както и изгодни условия за финансиране. Нашите услуги се разпростират и в сферата на препродажбата, отдаването под наем и управлението на имоти. Осигуряваме висококачествени ремонтни дейности и обзавеждане чрез специализирани фирми, които са част от нашата корпоративна група и са наши дългогодишни професионални партньори.
Местоположение на картата
ПРОДАЖБА
ПРОЕКТ
Четиристаен апартамент с морска гледка в кв. "Сарафово", Бургас
Сарафово / Бургас / Бургас / България карта
Площ: 250 м2
Цена: 209 000 € /// 836 €/м2
Апартаменти в нов комплекс с модерна визия в кв. "Славейков", Бургас
Славейков / Бургас / Бургас / България карта
Планирано начало: Август, 2025 г.
Очаквано завършване: Август, 2028 г.
Цени на имотите: ЦЕНА ПРИ ЗАПИТВАНЕ
Апартаменти в нов, модерен жилищен комплекс от затворен тип в кв. "Хоризонт"
Хоризонт / Бургас / Бургас / България карта
Завършване: Април, 2028 г.
Цени на имотите: 90 546 - 418 844 €
Цени на м²: 1 423 - 1 571 €/м2
Изберете тази опция и ще Ви уведомяваме по имейла при настъпили промени по статуса на офертата, например:
• Промяна на цената;
• Имотът влезе в промоционално предложение;
• Имотът бъде резервран или продаден;
• Други новости, свързани с имота.
• Имотът бъде свален от продажба;
Може да се отпишете от нотификациите лесно, когато пожелаете.• Промени по условията на офертата;
• Промяна в сумата на инвестицията;
• Предметът на инвестицията е изцяло реализиран;
• Валидността на офертата е изтекла.
Може лесно да се отпишете, ако в бъдеще решите, че повече не желаете да следите тази оферта.
За да получите абсолютно коректна информация относно свободните имоти, налични за продажба в проекта и техните актуални цени, моля свържете се с нашия офис на посочената информация за контакт.
Ние полагаме усилия, за да поддържаме нашите ценови листи абсолютно актуални и коректни, но често това е невъзможно, предвид големия брой нови проекти в нашия каталог и силно динамичните продажби.
Благодарим Ви за проявеното разбиране!



...В качеството си на доказан спецалист Stonehard PREMIER работи по пазарното позициониране и продажбите на множество проекти ново строителство, чиято реализация ни е поверена от водещи предприемачески компании в България и чужбина...