Южен двустаен апартамент с гледка към басейна в Sunny View Central 8
на картата
Цена:
87 886 € (1 361 €/м2)
*Указаните цени и наличности от свободни имоти в проекта са индикативни. За актуална ценова информация, моля свържете се с нас!
Реф. Номер: SVC-132121 / 4519
Местоположение: Слънчев бряг карта
Тип на сграда/комплекс: Жилищен
Площи на жилищата: 64.56 м2
Типове имоти в сградата/комплекса: Двустайни апартаменти
Реф. Номер: SVC-132121 / 4519
Местоположение: Слънчев бряг
Тип на сграда/комплекс: Жилищен
Клас на сградата/комплекса:
Площи на жилищата: 64.56 м2
Типове имоти в сградата/комплекса: Двустайни апартаменти
ПРЕДВАРИТЕЛНИ ПРОДАЖБИ! БЕЗ КОМИСИОНА ОТ КУПУВАЧА!
Старт на строителството - oктомври 2025 г. Акт 16 - юни 2026 г.
Sunny View Central е комплекс от затворен тип с ваканционни имоти и множество удобства за обитателите си, разположен на отлично местоположение на пешеходно разстояние от Cacao Beach и Bedroom. Комплексът се радва на пълна заетост през летния сезон, като имотите тук се използват както за лично ползване, така и за отдаване под наем.
Жилищата в новата сграда ще се възползват от всички удобства на вече функциониращата част на комплекса!
В продажба са нови апартаменти от тип студио, двустайни и един тристаен имот, които се предлагат в степен на завършване "до ключ", без мебели. Има възможност за пълно обзавеждане на имотите срещу допълнително заплащане.
Параметри на имота
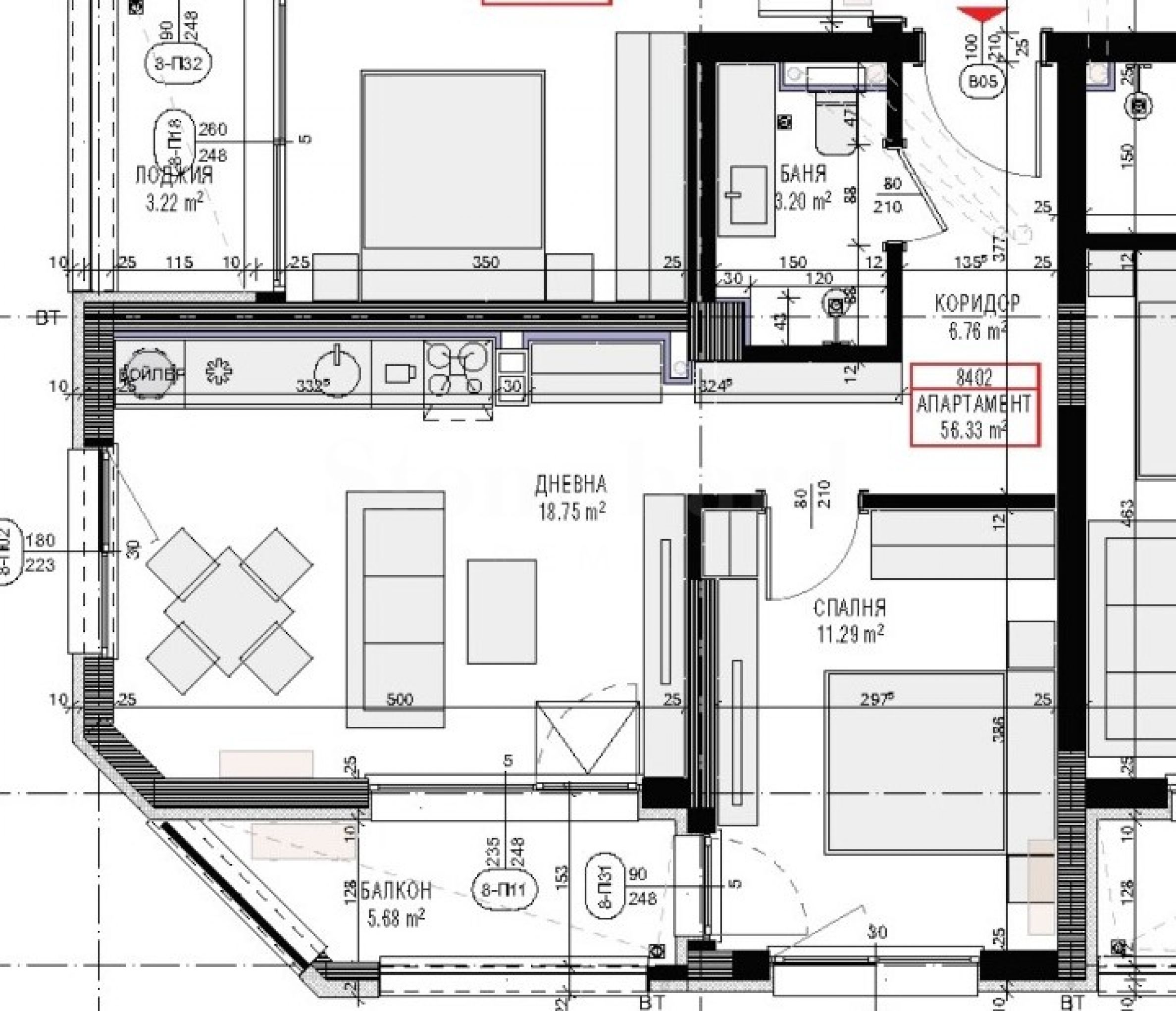
Жилището с обща площ от 64.56 кв.м е разположено на 4-ти етаж от 5, с южно/източно изложение и гледка към басейна, със следното разпределение:
• антре;
• всекидневна с кухненска част;
• спалня;
• баня с тоалетна;
• тераса.
Апартаментите в сградата ще са завършени "до ключ", както следва:
• общи части - стени, подови настилки и т.н.: под - плочки, стени – боя, модерни асансьори;
• 5-камерна PVC дограма с трислоен стъклопакет;
• входна врата: тип - масив от МДФ, със секретна заключалка, патрон, вътрешни врати от МДФ;
• външна изолация: EPS 5 cm;
• хол: стени боядисани с бял латекс, ламиниран паркет HNDF (сертификат европейски стандарт), с дебелина от 6 мм до 8 мм, цокъл;
• баня и тоалетна: интериорни врати водонепроницаеми, полу секретна ключалка, напълно покрити с керамични плочки, на светли цветове; таваните са боядисани с водоустойчива бяла боя латекс;
• баня: кран за топла и студена вода, тоалетна с казанче, мивка и смесител за топла и студена вода, осветление;
• възможност за луксозни довършителни работи по апартамента при допълнително заплащане;
• инсталации за кабелна телевизия, безжичен Интернет, СОТ, пожароизвестителна система.
Има възможност за закупуване или наемане на паркомясто, както и за свободно паркиране в комплекса.
Локация
Местоположението на Sunny View Central е недалеч от центъра на курорта, където се намират най-добрите ресторанти, кафенета и магазини. В близост е също и Старият град на Несебър, с множество забележителности и исторически паметници. Мястото е изключително подходящо за плаж и практикуване на различни водни спортове, както и за СПА процедури.
Удобства на територията:
• целогодишна рецепция;
• ресторант и лоби бар;
• три външни басейна с душове;
• пречистваща система за водата в басейните със солна електролиза;
• парк и детска площадка, външен фитнес;
• паркинг, зарядни станции за ел. автомобили;
• система за разпознаване на рег. номера на автомобилите за паркинга;
• контролиран достъп в целия комплекс и жива охрана;
• целогодишна поддръжка;
• офиси;
• интернет и телевизия - локална с гъвкави пакети за собствениците.
Годишната такса поддръжка в размер на 12 евро/кв.м включва:
• текущо благоустрояване и поддръжка на зелените площи и декоративните растения;
• следене и предприемане на спешни мерки при наличието на екстремни и форсмажорни обстоятелства срещу евентуални щети;
• текуща поддръжка на санитарните и водопроводни инсталации;
• текущо почистване, осветление и поддръжка на общите части;
• експлоатация и поддръжка на басейна за месеците през летния сезон и зазимяването му;
• текущо сметосъбиране и сметоизвозване на боклука от общите части;
• целогодишно основно почистване на общите части;
• други услуги и действия, които компанията сметне за необходими с оглед изпълнението на възложените задължения.
Защо да закупите апартамент в комплекс Sunny View Central?
• Разположение в курорта Слънчев бряг, близо до плажовете Cacao Beach и Bedroom и на пешеходно разстояние от Несебър;
• Отлична архитектура, добро вътрешно разпределение и множество екстри;
• Просторни апартаменти, подходящи за семейни ваканции;
• Висококачествено, луксозно строителство с отлични материали;
• Опции за обзавеждане, осигурена поддръжка и отдаване под наем на имотите на хотелски принцип;
• Строителна компания с безупречна репутация и множество построени в срок и работещи комплекси с ваканционни апартаменти, сред които "Съни Вю Норт" и "Съни Вю Саут" в Слънчев бряг.
Стандартна схема:
• 10% - Депозит;
• 40% - на Предварителен договор;
• 10% - на кота 15 м;
• 10% - на Акт 14;
• 20% - на Акт 15;
• 10% - на Акт 16.
План отстъпка от 50 €/кв.м:
• 10% - Депозит;
• 90% - на Предварителен договор.
План добавка от 100 €/кв.м:
• 10% - Депозит;
• 40% - на Предварителен договор;
• 50% - на Акт 15.
За повече информация, моля свържете се с нас.
Местоположение на картата
ПРАВА
ПРОЕКТ
Апартаменти "до ключ" в Sunny View Central 7
Слънчев бряг / Бургас / България карта
Цени на имотите: 79 895 - 215 706 €
Цени на м²: 683 - 1 824 €/м2
Aпартаменти в елегантен комплекс с басейн в Слънчев бряг
Слънчев бряг / Бургас / България карта
Завършване: Юни, 2026 г.
Цени на имотите: 128 000 - 232 725 €
Цени на м²: 1 447 - 1 663 €/м2
Апартаменти в нова сграда с елегантна визия в Слънчев бряг
Слънчев бряг / Бургас / България карта
Завършване: Октомври, 2026 г.
Цени на имотите: 59 398 - 173 033 €
Цени на м²: 1 510 - 2 700 €/м2
Изберете тази опция и ще Ви уведомяваме по имейла при настъпили промени по статуса на офертата, например:
• Промяна на цената;
• Имотът влезе в промоционално предложение;
• Имотът бъде резервран или продаден;
• Други новости, свързани с имота.
• Имотът бъде свален от продажба;
Може да се отпишете от нотификациите лесно, когато пожелаете.• Промени по условията на офертата;
• Промяна в сумата на инвестицията;
• Предметът на инвестицията е изцяло реализиран;
• Валидността на офертата е изтекла.
Може лесно да се отпишете, ако в бъдеще решите, че повече не желаете да следите тази оферта.
За да получите абсолютно коректна информация относно свободните имоти, налични за продажба в проекта и техните актуални цени, моля свържете се с нашия офис на посочената информация за контакт.
Ние полагаме усилия, за да поддържаме нашите ценови листи абсолютно актуални и коректни, но често това е невъзможно, предвид големия брой нови проекти в нашия каталог и силно динамичните продажби.
Благодарим Ви за проявеното разбиране!



...В качеството си на доказан спецалист Stonehard PREMIER работи по пазарното позициониране и продажбите на множество проекти ново строителство, чиято реализация ни е поверена от водещи предприемачески компании в България и чужбина...