Тристаен апартамент до метростанция "Сливница" в кв. "Люлин 8"
на картата
Цена:
184 464 € (1 874 €/м2)
*Указаните цени и наличности от свободни имоти в проекта са индикативни. За актуална ценова информация, моля свържете се с нас!
Реф. Номер: SOF-131643 / 4038
Местоположение: Люлин 8 / София карта
Тип на сграда/комплекс: Жилищен
Площи на жилищата: 98.44 м2
Типове имоти в сградата/комплекса: Тристайни апартаменти
Реф. Номер: SOF-131643 / 4038
Местоположение: Люлин 8 / София
Тип на сграда/комплекс: Жилищен
Клас на сградата/комплекса:
Площи на жилищата: 98.44 м2
Типове имоти в сградата/комплекса: Тристайни апартаменти
Планирано завършване на сградата - 12.2026 г.
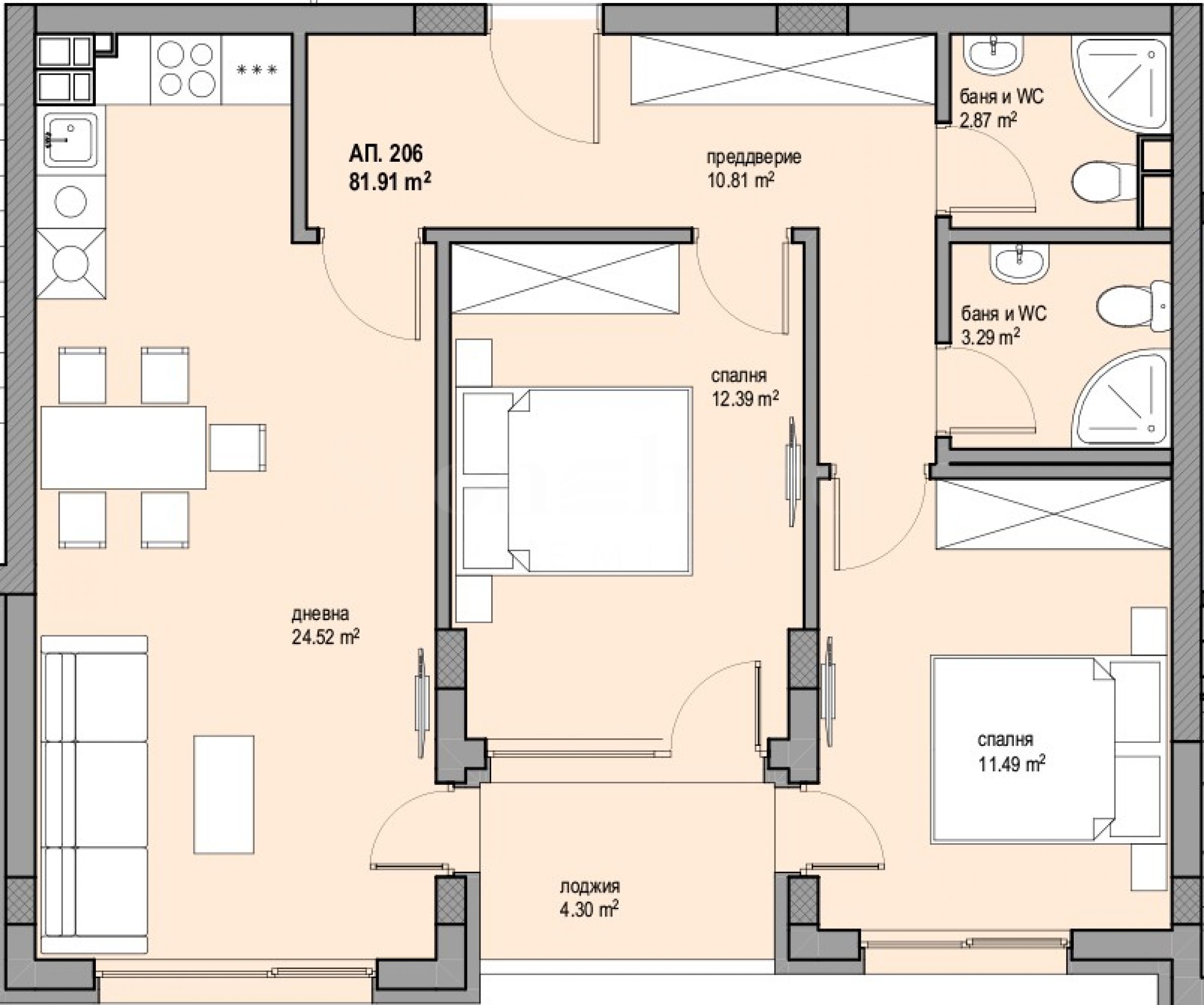
Имотът от 98.44 кв.м е разположен на 2-ри етаж във вход "Б" и има благоприятно изложение юг/запад. Състои се от антре, две бани с тоалетни, дневна с кухня, две спални, тераса с излаз от трите стаи.
Апартаментите в сградата се издават в степен на завършеност по БДС:
PVC дограма с шесткамерен, немски профил с троен стъклопакет, с едно нискоемисионно стъкло;
входна апартаментна врата - блиндирана, с висок клас секретна брава;
отопление посредством електрическа енергия с изпълнени изводи за климатици;
завършени стени и тавани до гипсова мазилка с положени в ръбовете алуминиеви ъглопротектори; тавани на неотопляеми помещения, които граничат с отопляеми, с положена топлоизолация от XPS екструдиран пенополистирен; в баните, тоалетни и мокри помещения с изпълнена варо-циментова мазилка;
циментова замазка по пода; тераси с настилка от гранитогрес;
монтирано апартаментно табло, разположено в близост до входната врата на жилището;
слаботокови инсталации – изпълнена по проект с монтирана слаботокова кутия при входната врата;
окабеляване за СОТ във всеки апартамент;
видеодомофонна инсталация - изпълнено окабеляване, видеодомофони в апартаментите и монтирано видеодомофонно табло до входната врата;
монтирани електромери. Локация
Сградата се намира в непосредствена близост до главните столични пътни артерии – бул. "Сливница", бул. "Пенчо Владигеров", ул. "Филиповско шосе" и Околовръстен път. На 5 км е от Лъвов мост и Централна Гара. Кварталът е с добре изградена транспортна инфраструктура и се обслужва от всички видове градски транспорт: метростанция "Сливница", автобуси 82, 108, 309, 83, 49, 54, 47, 48, 42 и тролейбус 6.
В близост е до детски градини – ОДЗ №139 Панорама, ДГ №73 Маргарита, ОДЗ №31 Люлин и учебни заведения – 56 СУ "Проф. Константин Иречек",137 СУ Ангел Кънчев. В района има и различи вериги супермаркети – HIT Max, Metro, Фантастико, Billa, Технополис, Praktiker, а за любителите на разходките – Западен парк, Северен парк, с бърз достъп до екопътека "Пътека на здравето" – Банкя и Конна база "ген. Крум Лекарски" – Божурище.
За сградата
Сградата ще се откроява с атрактивна фасада с клинкерни плочки.
Състои се от 2 входа и 6 надземни етажа, разпределени по следния начин:
складовите помещения са в сутеренния етаж, където и паркирането е решено с очертани единични паркоместа, двойни гаражни клетки, както и с външни паркоместа;
партерен етаж – 2 търговски помещения, два апартамента и гаражи;
от втори и до шести жилищен етаж – двустайни и тристайни апартаменти с функционално разпределение. Технически характеристики на сградата:
монолитна, стоманобетонна безгредова конструкция на фундаментна плоча;
с хидроизолации на основите на сградата - система Kryton international Inc. Krystol Waterstop System;
зидарии с керамични тухли на WIENERBERGER;
външни ограждащи стени - керамични тухли Porotherm 25 см и топлоизолационна система /пенополистирол EPS/;
за вътрешни тухлени стени - керамични тухли Porotherm 12 см, с шумоизолация между апартаментите;
плосък покрив с положени пластове по детайл - пароизолация, топлоизолация от екструдиран пенополистирол - XPS, армирана замазка с наклон, два пласта рулонна битумна хидроизолация; без термомостове по конструктивните елементи;
общи части - гранитогрес или естествен камък;
асансьори с луксозни кабини с автоматични врати. Очакваме Вашето запитване
Ако желаете да организирате оглед на имот, който Ви интересува, или да посетите някой от нашите офиси, моля свържете се с нас. За да уговорите ден и час за среща или оглед, можете да се обадите на посочения в обявата телефон или да изпратите запитване чрез електронната поща. Нашият консултант ще Ви съдейства с всички необходими подробности и ще уговори удобно за Вас време.
Търсите подходящия за Вас имот?
Не се колебайте да се свържете с нас и да ни разкажете за Вашите нужди и предпочитания. Нашият екип ще проведе задълбочено проучване на пазара, за да Ви предложи имоти, които точно отговарят на Вашите критерии. Разполагаме с изключително портфолио от висококачествени и ексклузивни жилища, които са достъпни само за нашите клиенти. За да сте първите, които ще получите информация за тях – свържете се с нас.
Допълнителни услуги
Като ценен клиент на нашата компания, Вие ще имате привилегията да ползвате напълно безплатно услугите на нашия опитен юридически екип. В допълнение, предлагаме комплексни решения, включващи имуществена застраховка, безплатна финансова консултация, както и изгодни условия за финансиране. Нашите услуги се разпростират и в сферата на препродажбата, отдаването под наем и управлението на имоти. Осигуряваме висококачествени ремонтни дейности и обзавеждане чрез специализирани фирми, които са част от нашата корпоративна група и са наши дългогодишни професионални партньори.
Местоположение на картата
ПРАВА
ПРОДАЖБА
ПРОЕКТ
Просторен, дизайнерски апартамент с паркомясто в луксозна сграда с Акт 16
Малинова долина / София / София / България карта
Клас на сградата/комплекса: Висок стандарт
Площ: 136 м2
Цена: 434 900 € /// 3 198 €/м2
ПРАВА
Нова жилищна сграда до парк "Заимов" и на метри от "Докторски паметник"
Оборище / София / София / България карта
Завършване: Април, 2027 г.
Цени на имотите: 555 000 €
Цени на м²: 4 974 €/м2
ПРОДАЖБА
ПРОЕКТ
Нов, тристаен апартамент с гледка към Витоша, близо до Южен парк
Гоце Делчев / София / София / България карта
Площ: 143 м2
Цена: 460 000 € /// 3 217 €/м2
Изберете тази опция и ще Ви уведомяваме по имейла при настъпили промени по статуса на офертата, например:
• Промяна на цената;
• Имотът влезе в промоционално предложение;
• Имотът бъде резервран или продаден;
• Други новости, свързани с имота.
• Имотът бъде свален от продажба;
Може да се отпишете от нотификациите лесно, когато пожелаете.• Промени по условията на офертата;
• Промяна в сумата на инвестицията;
• Предметът на инвестицията е изцяло реализиран;
• Валидността на офертата е изтекла.
Може лесно да се отпишете, ако в бъдеще решите, че повече не желаете да следите тази оферта.
За да получите абсолютно коректна информация относно свободните имоти, налични за продажба в проекта и техните актуални цени, моля свържете се с нашия офис на посочената информация за контакт.
Ние полагаме усилия, за да поддържаме нашите ценови листи абсолютно актуални и коректни, но често това е невъзможно, предвид големия брой нови проекти в нашия каталог и силно динамичните продажби.
Благодарим Ви за проявеното разбиране!



...В качеството си на доказан спецалист Stonehard PREMIER работи по пазарното позициониране и продажбите на множество проекти ново строителство, чиято реализация ни е поверена от водещи предприемачески компании в България и чужбина...