Комфортен тристаен апартамент в нова сграда до бул. "Владимир Вазов"
на картатаЦена:
222 905 € (1 950 €/м2)
*Указаните цени и наличности от свободни имоти в проекта са индикативни. За актуална ценова информация, моля свържете се с нас!
Реф. Номер: SOF-131641 / 4015
Местоположение: Левски Г / София карта
Тип на сграда/комплекс: Жилищен
Площи на жилищата: 114.31 м2
Типове имоти в сградата/комплекса: Тристайни апартаменти
Реф. Номер: SOF-131641 / 4015
Местоположение: Левски Г / София
Тип на сграда/комплекс: Жилищен
Клас на сградата/комплекса:
Площи на жилищата: 114.31 м2
Типове имоти в сградата/комплекса: Тристайни апартаменти
В процес на строителство. Планирано завършване - 11.2027 г.
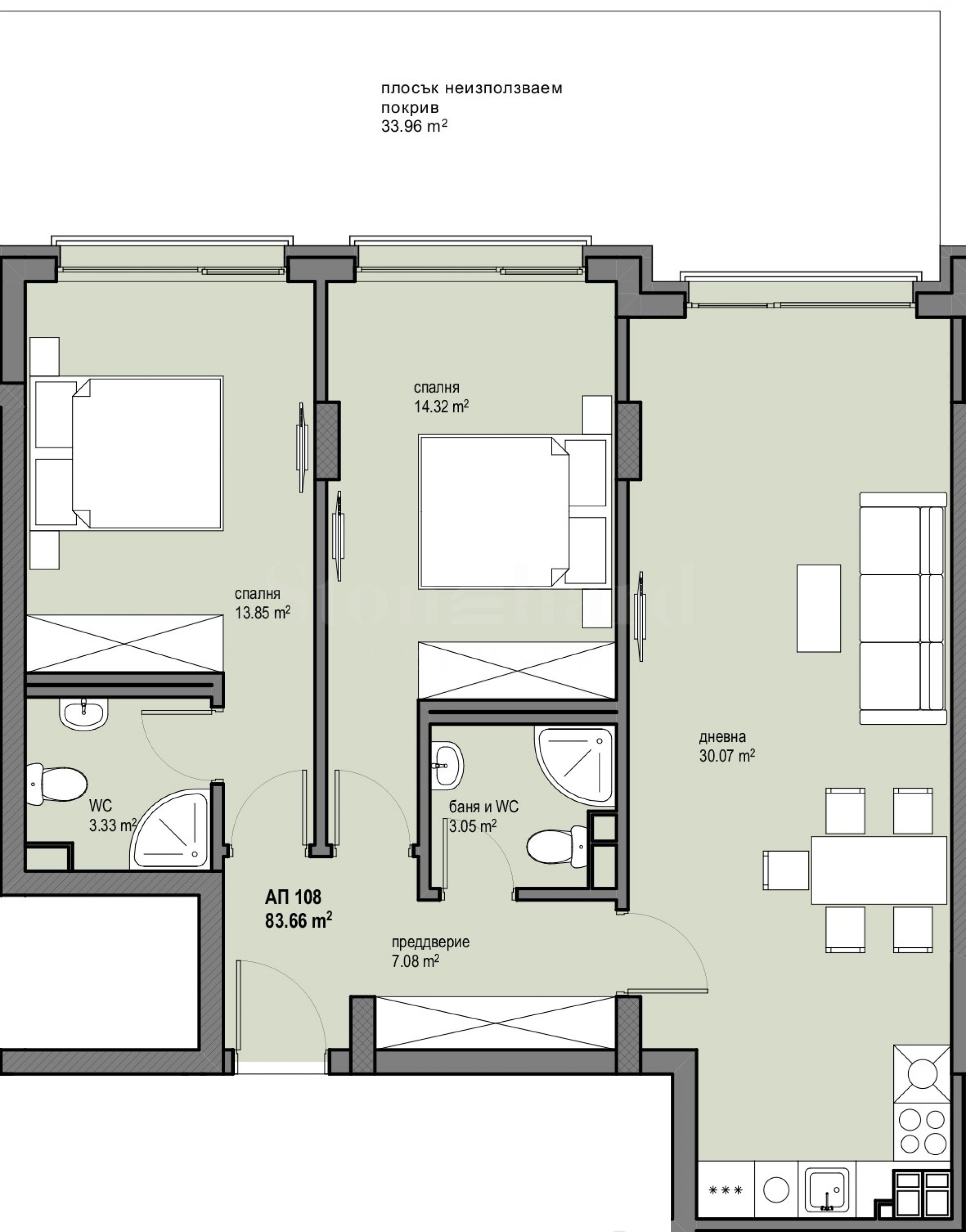
Имотът е с обща площ от 114.31 кв.м, разположен на 2-ри етаж, с източно изложение. Състои се от антре, тоалетна, баня, две спални, дневна с кухня и трапезария, тераса - 33.96 кв.м.
Издава се в степен на завършеност по БДС:
• PVC дограма с шесткамерен, немски профил с троен стъклопакет, с едно нискоемисионно стъкло;
• входна врата - блиндирана, с висок клас секретна брава;
• отопление посредством електрическа енергия с изпълнени изводи за климатици;
• завършени стени и тавани до гипсова мазилка с положени в ръбовете алуминиеви ъглопротектори;
• тавани на неотопляеми помещения, които граничат с отопляеми, с положена топлоизолация от XPS екструдиран пенополистирен;
• санитарни и мокри помещения са изпълнени с варо-циментова мазилка;
• циментова замазка по пода;
• тераси с настилка от гранитогрес;
• монтирано табло, разположено в близост до входната врата;
• слаботокови инсталации – по проект с монтирана слаботокова кутия при входната врата;
• окабеляване за СОТ;
• видеодомофонна инсталация - изпълнено окабеляване, видеодомофон;
• монтирани електромери.
Сградата се строи в близост до бул. "Владимир Вазов", който е основен булевард и радиален път в столицата, с дължина 5 км, с удобен градски транспорт в близост (автобусни линии 120, 78), на 3 км от метро "Театрална". В момента се изгражда продължението на метролиния М3 от метро "Хаджи Димитър" до ж.к. "Левски Г".
По продължението на бул. "Владимир Вазов" се предвиждат 3 местростанции:
• метро "Владимир Вазов" – само на 450 метра от сградата;
• метро "Тракия" – на 500 метра;
• метро "Стадион Георги Аспарухов" – 1,5 км от сградата.
Отстояния до ключови обекти, като:
• стадион "Виваком Арена – Георги Аспарухов" – на 1 км;
• Декатлон – 480 м, плувно–развлекателен комплекс "Варадеро" – 500 м;
• ул. "Оборище" и Serdika center, бул. "Мадрид" – 3.5 км;
• парк "Герена" – 1 км, парк "Заимов" – 5 км;
• център на София, бул. Витоша – 7 км;
• Летище София – 5 км.
Учебни заведения и детски градини в района: ОУ 199 "Свети Апостол Йоан Богослов" – на 400 м, СУ 130 "Стефан Караджа" – 900 м, СУ 44 "Неофит Бозвели" – 2 км, ОУ 49 "Бенито Хуарес" - 1,9 км; ДГ 92 "Мечта", ОДЗ 91 "Слънчев кът" – филиал, ДГ 20 "Жасминов парк".
За сградата
Сградата се състои от 2 секции с апартаменти на 9 жилищни етажа. Имотите са от тип двустайни, тристайни и четиристайни жилища. Има възможност за закупуването на гаражи на цени от 26 500 евро, както и складови помещения.
Технически характеристики на сградата:
• монолитна, стоманобетонна безгредова конструкция на фундаментна плоча;
• с хидроизолации на основите на сградата - система Kryton international Inc. Krystol Waterstop System;
• зидарии с керамични тухли на WIENERBERGER;
• външни ограждащи стени - керамични тухли Porotherm 25 см и топлоизолационна система /пенополистирол EPS/;
• за вътрешни тухлени стени - керамични тухли Porotherm 12 см, с шумоизолация между апартаментите;
• плосък покрив с положени пластове по детайл - пароизолация, топлоизолация от екструдиран пенополистирол - XPS, армирана замазка с наклон, два пласта рулонна битумна хидроизолация; без термомостове по конструктивните елементи;
• общи части - гранитогрес или естествен камък;
• асансьори с луксозни кабини с автоматични врати.
Очакваме Вашето запитване
Ако желаете да организирате оглед на имот, който Ви интересува, или да посетите някой от нашите офиси, моля свържете се с нас. За да уговорите ден и час за среща или оглед, можете да се обадите на посочения в обявата телефон или да изпратите запитване чрез електронната поща. Нашият консултант ще Ви съдейства с всички необходими подробности и ще уговори удобно за Вас време.
Търсите подходящия за Вас имот?
Не се колебайте да се свържете с нас и да ни разкажете за Вашите нужди и предпочитания. Нашият екип ще проведе задълбочено проучване на пазара, за да Ви предложи имоти, които точно отговарят на Вашите критерии. Разполагаме с изключително портфолио от висококачествени и ексклузивни жилища, които са достъпни само за нашите клиенти. За да сте първите, които ще получите информация за тях – свържете се с нас.
Допълнителни услуги
Като ценен клиент на нашата компания, Вие ще имате привилегията да ползвате напълно безплатно услугите на нашия опитен юридически екип. В допълнение, предлагаме комплексни решения, включващи имуществена застраховка, безплатна финансова консултация, както и изгодни условия за финансиране. Нашите услуги се разпростират и в сферата на препродажбата, отдаването под наем и управлението на имоти. Осигуряваме висококачествени ремонтни дейности и обзавеждане чрез специализирани фирми, които са част от нашата корпоративна група и са наши дългогодишни професионални партньори.
Местоположение на картата
ПРАВА
Високотехнологична жилищна сграда с панорамни резиденции, фитнес, СПА, ресторант и консиерж на бул. „Цариградско шосе“
7-ми 11-ти километър / София / София / България карта
Клас на сградата: Премиум
Очаквано завършване: Декември, 2029 г.
Цени на имотите: 412 965 - 1 763 726 € (без ДДС)
Цени на м²: 2 100 - 4 125 €/м2 (без ДДС)
ПРОДАЖБА
ПРОЕКТ
Дизайнерски тристаен апартамент в престижна сграда А3
Манастирски ливади - Изток / София / София / България карта
Площ: 165 м2
Цена: 630 000 € /// 3 818 €/м2
Нов жилищен проект от осем сгради с различни типове апартаменти в кв."Малинова долина"
Малинова долина / София / София / България карта
Завършване: Декември, 2028 г.
Цени на имотите: 73 000 - 212 000 €
Цени на м²: 1 738 - 1 933 €/м2
Изберете тази опция и ще Ви уведомяваме по имейла при настъпили промени по статуса на офертата, например:
• Промяна на цената;
• Имотът влезе в промоционално предложение;
• Имотът бъде резервран или продаден;
• Други новости, свързани с имота.
• Имотът бъде свален от продажба;
Може да се отпишете от нотификациите лесно, когато пожелаете.• Промени по условията на офертата;
• Промяна в сумата на инвестицията;
• Предметът на инвестицията е изцяло реализиран;
• Валидността на офертата е изтекла.
Може лесно да се отпишете, ако в бъдеще решите, че повече не желаете да следите тази оферта.
За да получите абсолютно коректна информация относно свободните имоти, налични за продажба в проекта и техните актуални цени, моля свържете се с нашия офис на посочената информация за контакт.
Ние полагаме усилия, за да поддържаме нашите ценови листи абсолютно актуални и коректни, но често това е невъзможно, предвид големия брой нови проекти в нашия каталог и силно динамичните продажби.
Благодарим Ви за проявеното разбиране!



...В качеството си на доказан спецалист Stonehard PREMIER работи по пазарното позициониране и продажбите на множество проекти ново строителство, чиято реализация ни е поверена от водещи предприемачески компании в България и чужбина...