Тристаен апартамент със собствен двор в кв. "Меден Рудник - зона Д"
REF#LXH-131422
/
Тристайни апартаменти
/
Реализирани проекти
/
Бургас
/
Меден рудник - зона Д
/
Бургас
/
България
на картата
Цена:
90 750 € (1 030 €/м2)
*Указаните цени и наличности от свободни имоти в проекта са индикативни. За актуална ценова информация, моля свържете се с нас!
Реф. Номер: LXH-131422 / 4453
Местоположение: Меден рудник - зона Д / Бургас карта
Тип на сграда/комплекс: Жилищен
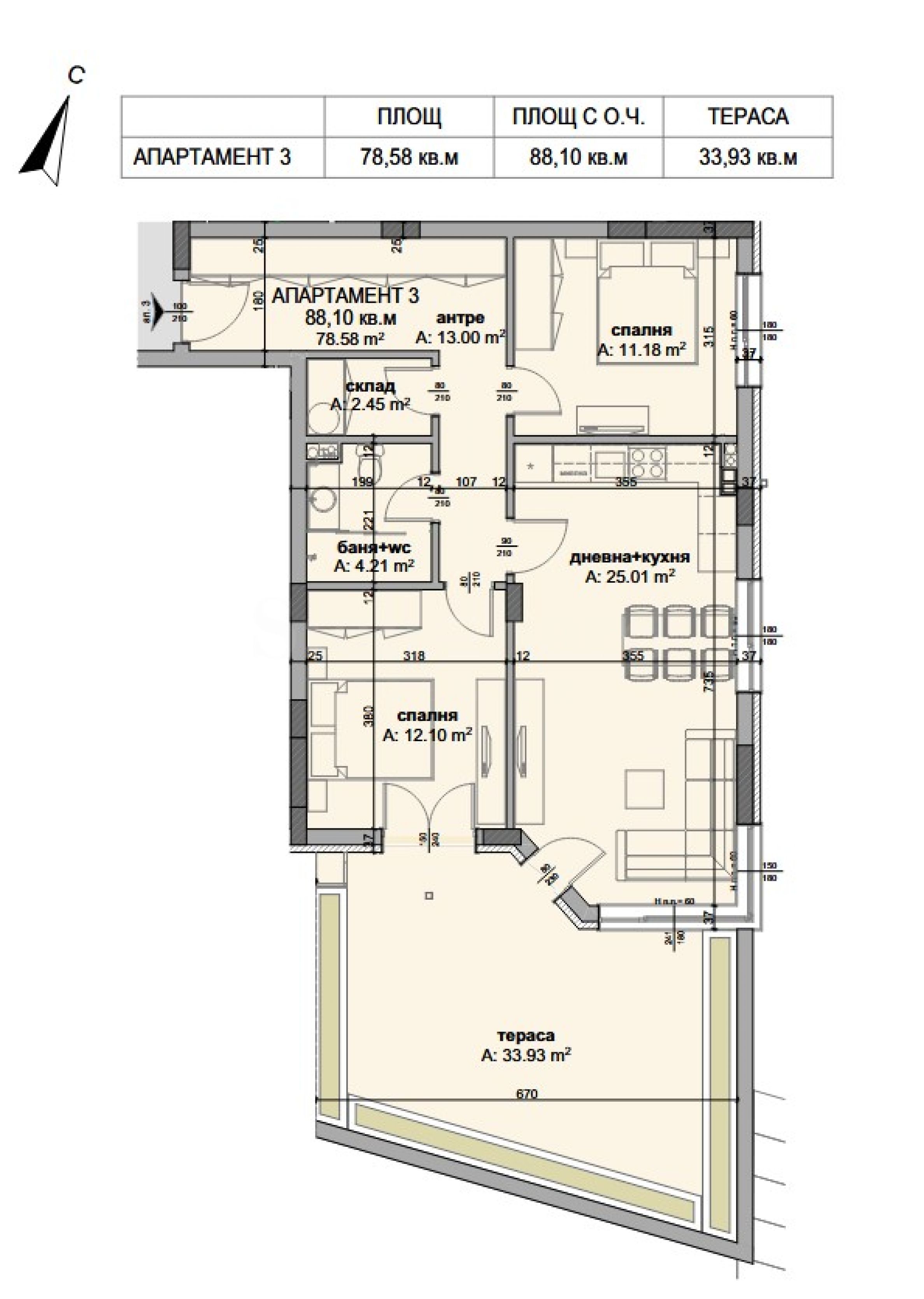
Площи на жилищата: 88.10 м2
Типове имоти в сградата/комплекса: Тристайни апартаменти
Реф. Номер: LXH-131422 / 4453
Местоположение: Меден рудник - зона Д / Бургас
Тип на сграда/комплекс: Жилищен
Клас на сградата/комплекса:
Площи на жилищата: 88.10 м2
Типове имоти в сградата/комплекса: Тристайни апартаменти
Покупка без комисиона!
Представяме за продажба тристаен апартамент в нов жилищен комплекс, състоящ се от две сгради със съвременен дизайн, в кв. "Меден Рудник - зона Д" на Бургас.
Локация
Локацията на комплекса е в един от най-предпочитаните, в бързо развиващ се квартал, в близост до магазин Kaufland, живописна борова гора, както и до детски градини, училища, паркове, търговски центрове и болници. Районът е с цялостно развита инфраструктура, с бърз и лесен достъп до главна пътна артерия и до всички необходими удобства.
Имотът е с обща площ от 88,10 кв.м, разположен на партерен етаж със собствен двор с площ от 33,93 кв.м.
Разпределение:
антре/коридор;
дневна с кухня;
две спални;
баня с тоалет;
склад;
веранда/двор.Издава се в степен на завършеност по БДС:
замазка в апартаментите обогатена с Перлит;
8-камерна дограма с троен стъклопакет;
фасада с топлоизолация от EPS и вата за по-добра енергийна ефективност;
тавани с топлоизолация от XPS, а между зидовете с каменна вата за допълнителна шумо и топлоизолация.Има възможност за закупуване на открито и закрито паркомясто.
Сградите са проектирани на 6 етажа с висококачествени материали и фасада изработена с иновативни елементи и внимание към детайлите. Апартаментите са двустайни и тристайни жилища с площ от 54,34 кв.м до 96,33 кв.м.
Очакваме Вашето запитване
Ако желаете да организирате оглед на имот, който Ви интересува, или да посетите някой от нашите офиси, моля свържете се с нас. За да уговорите ден и час за среща или оглед, можете да се обадите на посочения в обявата телефон или да изпратите запитване чрез електронната поща. Нашият консултант ще Ви съдейства с всички необходими подробности и ще уговори удобно за Вас време.
Търсите подходящия за Вас имот?
Не се колебайте да се свържете с нас и да ни разкажете за Вашите нужди и предпочитания. Нашият екип ще проведе задълбочено проучване на пазара, за да Ви предложи имоти, които точно отговарят на Вашите критерии. Разполагаме с изключително портфолио от висококачествени и ексклузивни жилища, които са достъпни само за нашите клиенти. За да сте първите, които ще получите информация за тях – свържете се с нас.
Допълнителни услуги
Като ценен клиент на нашата компания, Вие ще имате привилегията да ползвате напълно безплатно услугите на нашия опитен юридически екип. В допълнение, предлагаме комплексни решения, включващи имуществена застраховка, безплатна финансова консултация, както и изгодни условия за финансиране. Нашите услуги се разпростират и в сферата на препродажбата, отдаването под наем и управлението на имоти. Осигуряваме висококачествени ремонтни дейности и обзавеждане чрез специализирани фирми, които са част от нашата корпоративна група и са наши дългогодишни професионални партньори.
Местоположение на картата
ПРАВА
ПРОДАЖБА
ПРОЕКТ
Панорамен тристаен пентхаус с голяма тераса в кв. "Мадика"
Мадика / Бургас / Бургас / България карта
Площ: 190.22 м2
Цена: 260 000 € /// 1 367 €/м2
ПРОЕКТ
Тристаен апартамент с панорамна тераса в нов комплекс в кв. "Сарафово"
Сарафово / Бургас / Бургас / България карта
Площ: 129.11 м2
Цена: 198 000 € /// 1 534 €/м2
Апартаменти в нова, 5-та сграда на модерния комплекс до Mall Burgas Plaza
Хоризонт / Бургас / Бургас / България карта
Планирано начало: Декември, 2025 г.
Очаквано завършване: Юни, 2028 г.
Цени на имотите: 90 000 - 207 000 €
Цени на м²: 1 390 - 1 580 €/м2
Изберете тази опция и ще Ви уведомяваме по имейла при настъпили промени по статуса на офертата, например:
• Промяна на цената;
• Имотът влезе в промоционално предложение;
• Имотът бъде резервран или продаден;
• Други новости, свързани с имота.
• Имотът бъде свален от продажба;
Може да се отпишете от нотификациите лесно, когато пожелаете.• Промени по условията на офертата;
• Промяна в сумата на инвестицията;
• Предметът на инвестицията е изцяло реализиран;
• Валидността на офертата е изтекла.
Може лесно да се отпишете, ако в бъдеще решите, че повече не желаете да следите тази оферта.
За да получите абсолютно коректна информация относно свободните имоти, налични за продажба в проекта и техните актуални цени, моля свържете се с нашия офис на посочената информация за контакт.
Ние полагаме усилия, за да поддържаме нашите ценови листи абсолютно актуални и коректни, но често това е невъзможно, предвид големия брой нови проекти в нашия каталог и силно динамичните продажби.
Благодарим Ви за проявеното разбиране!



...В качеството си на доказан спецалист Stonehard PREMIER работи по пазарното позициониране и продажбите на множество проекти ново строителство, чиято реализация ни е поверена от водещи предприемачески компании в България и чужбина...