Двуетажна къща с частен басейн, на 200 метра от плажа в Несебър
на картата
Цена:
450 000 €
*Указаните цени и наличности от свободни имоти в проекта са индикативни. За актуална ценова информация, моля свържете се с нас!
Реф. Номер: LXH-131012 / 4398
Местоположение: Несебър карта
Тип на сграда/комплекс: Жилищен
Площи на жилищата: 171.67 м2
Типове имоти в сградата/комплекса: Къщи-близнак
Реф. Номер: LXH-131012 / 4398
Местоположение: Несебър
Тип на сграда/комплекс: Жилищен
Клас на сградата/комплекса:
Площи на жилищата: 171.67 м2
Типове имоти в сградата/комплекса: Къщи-близнак
Комплексът е разположен на нос Акротир в град Несебър, на брега на Черно море със 100% зашеметяваща морска гледка, на 30 м разстояние от плаж НСА и 200 м разстояние от Южен плаж Несебър.
В процес на строителство. Очакван Акт 16 - юни 2027 г.
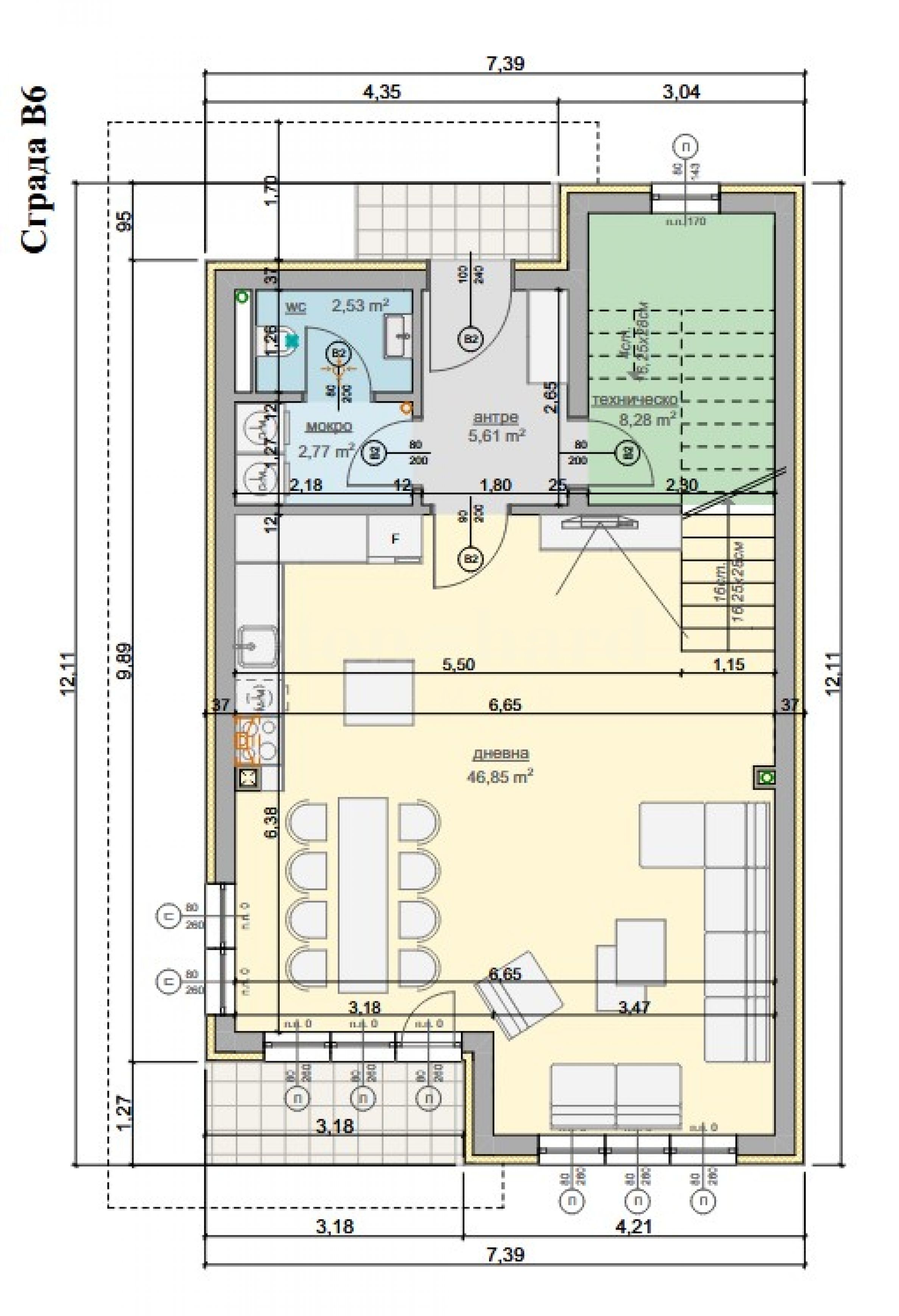
Имотът е с РЗП -192,32 кв.м, частен двор с площ от 242,32 кв.м, собствен басейн и две паркоместа.
Разпределение:
първи етаж: входно антре, склад, санитарно помещение, всекидневна с кухня и трапезария, веранда;
втори етаж: три спални със самостоятелна баня с тоалет, тераса.Имотът се издава в степен на завършеност по БДС:
стени - шприцована мазилка;
под - замазка с шумоизолационна подложка;
ВиК системи - на тапа;
ел. системи - табла, ключове, контакти, фасунги;
слаботокова инсталация - кутии;
Wi-Fi изводи.Дворно пространство:
отделено с ограда от стоманобетонов борд и метална ограда;
отопляем басейн - напълно завършен и оборудван;
паркомясто - за два автомобила;
ландшафтно озеленяване;
ландшафтно парково осветление;
поливна система.Технически характеристики:
стоманобетонна конструкция - 3 m-H (височина) на етажа;
стени - керамични тухли Wienerberger Porotherm 25 см /многокамерен/ за по-добра топло- и шумоизолация;
фасада - вентилируема фасадна система HPL, облицовка с естествен камък, топлоизолация двойно шприцована каменна вата 10 см;
дограма – алуминиева дограма термопрофил с трислоен стъклопакет, система плъзгане с повдигане с 50% отваряемост;
блиндирана взломоустойчива входна врата;
покрив - 10 см експандиран пенополистирол, армирана замазка, двойно залепено хидроизлолационно покритие с UV-фактор.Очакваме Вашето запитване
Ако желаете да организирате оглед на имот, който Ви интересува, или да посетите някой от нашите офиси, моля свържете се с нас. За да уговорите ден и час за среща или оглед, можете да се обадите на посочения в обявата телефон или да изпратите запитване чрез електронната поща. Нашият консултант ще Ви съдейства с всички необходими подробности и ще уговори удобно за Вас време.
Търсите подходящия за Вас имот?
Не се колебайте да се свържете с нас и да ни разкажете за Вашите нужди и предпочитания. Нашият екип ще проведе задълбочено проучване на пазара, за да Ви предложи имоти, които точно отговарят на Вашите критерии. Разполагаме с изключително портфолио от висококачествени и ексклузивни жилища, които са достъпни само за нашите клиенти. За да сте първите, които ще получите информация за тях – свържете се с нас.
Допълнителни услуги
Като ценен клиент на нашата компания, Вие ще имате привилегията да ползвате напълно безплатно услугите на нашия опитен юридически екип. В допълнение, предлагаме комплексни решения, включващи имуществена застраховка, безплатна финансова консултация, както и изгодни условия за финансиране. Нашите услуги се разпростират и в сферата на препродажбата, отдаването под наем и управлението на имоти. Осигуряваме висококачествени ремонтни дейности и обзавеждане чрез специализирани фирми, които са част от нашата корпоративна група и са наши дългогодишни професионални партньори.
Местоположение на картата
Къщи в комплекс от затворен тип на 170 метра от плажа в Несебър
Несебър / Бургас / България карта
Завършване: Август, 2028 г.
Цени на имотите: 340 000 - 460 000 € (без ДДС)
Цени на м²: 2 058 - 2 358 €/м2 (без ДДС)
Aпартаменти в модерен комплекс на 600 метра от плажа в Несебър
Несебър / Бургас / България карта
Планирано начало: Декември, 2025 г.
Очаквано завършване: Декември, 2027 г.
Цени на имотите: 56 900 - 219 900 €
Цени на м²: 1 302 - 1 518 €/м2
Еднофамилни къщи в нов затворен комплекс в Несебър
Несебър / Бургас / България карта
Завършване: Юни, 2027 г.
Цени на имотите: 280 000 - 680 000 €
Цени на м²: 1 700 - 2 360 €/м2
Изберете тази опция и ще Ви уведомяваме по имейла при настъпили промени по статуса на офертата, например:
• Промяна на цената;
• Имотът влезе в промоционално предложение;
• Имотът бъде резервран или продаден;
• Други новости, свързани с имота.
• Имотът бъде свален от продажба;
Може да се отпишете от нотификациите лесно, когато пожелаете.• Промени по условията на офертата;
• Промяна в сумата на инвестицията;
• Предметът на инвестицията е изцяло реализиран;
• Валидността на офертата е изтекла.
Може лесно да се отпишете, ако в бъдеще решите, че повече не желаете да следите тази оферта.
За да получите абсолютно коректна информация относно свободните имоти, налични за продажба в проекта и техните актуални цени, моля свържете се с нашия офис на посочената информация за контакт.
Ние полагаме усилия, за да поддържаме нашите ценови листи абсолютно актуални и коректни, но често това е невъзможно, предвид големия брой нови проекти в нашия каталог и силно динамичните продажби.
Благодарим Ви за проявеното разбиране!



...В качеството си на доказан спецалист Stonehard PREMIER работи по пазарното позициониране и продажбите на множество проекти ново строителство, чиято реализация ни е поверена от водещи предприемачески компании в България и чужбина...