Тристаен апартамент в новострояща се сграда в кв.Кръстова вада
Цена:
320 022 € (2 759 €/м2)
*Указаните цени и наличности от свободни имоти в проекта са индикативни. За актуална ценова информация, моля свържете се с нас!
Реф. Номер: SOF 129462 / 3540
Местоположение: Кръстова вада / София карта
Тип на сграда/комплекс: Жилищен
Площи на жилищата: 116 м2
Типове имоти в сградата/комплекса: Тристайни апартаменти
Реф. Номер: SOF 129462 / 3540
Местоположение: Кръстова вада / София
Тип на сграда/комплекс: Жилищен
Клас на сградата/комплекса:
Площи на жилищата: 116 м2
Типове имоти в сградата/комплекса: Тристайни апартаменти
Сградата е дело на инвеститор с безупречна репутация и богато портфолио от завършени и въведени в експлоатация жилищни сгради в столицата. В сградата има 37 апартамента, а в подземното ниво ще бъдат изградени 25 гаража, 12 паркоместа и 30 складови помещения. Дворът около сградата ще бъде озеленен и заграден с ограда, за да се контролира достъпа на външни лица.
ПРЕДИМСТВА НА ИМОТА:
• Просторни всекидневна и родителска спалня
• Южно изложение на всекидневната
• Термопомпа и конвектори включени в цената
• Качествено строителство от фирма с доказан опит
• Сграда с двор и контрол на достъпа
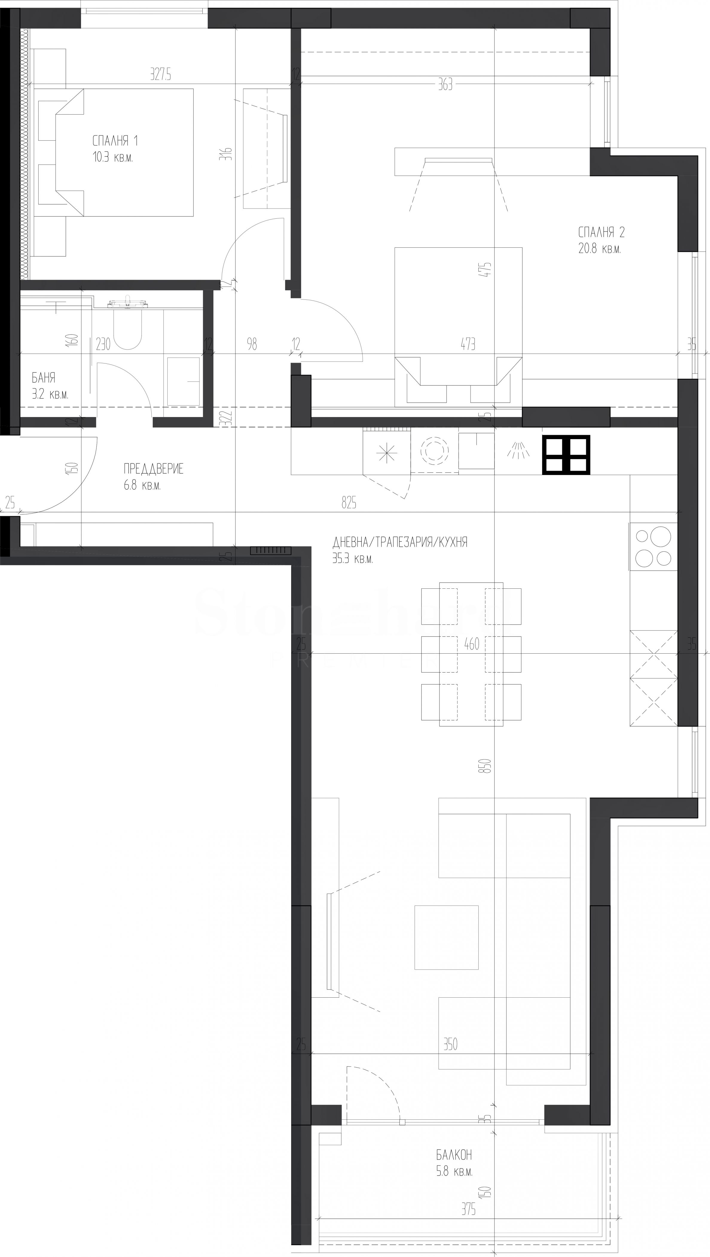
Жилището е разположено на четвърти етаж със застроена площ от 97 кв.м.. Всeкидневната е с южно изложение, а спалните гледат на север. Състои се от антре, просторен дневен тракт с кухненски кът от 36 кв.м, голяма основна спалня - 21 кв.м с възможност за отделяне на гардеробна, втора спалня - 12 кв.м, баня с тоалетна и тераса към дневната.
Начало на строителните дейности - февруари 2023г
Завършване на обекта - 2025г
Схема на плащане:
30% от стойността на апартамента при подписване на Предварителен договор
30% от стойността на апартамента при взимане на Акт 14
30% от стойността на апартамента при взимане на Акт 15
10% при въвеждане на сградата в експлоатация с Акт 16
В сграда се предлагат и други апартаменти с различна квадратура и цени, за повече информация не се колебайте да се свържете с отговорния по офертата брокер!
Оглед на имота
Можем да организираме оглед на имота в удобно за вас време. За целта, свържете се с отговорния за офертата брокер и му кажете кога бихте искали да направите оглед.
Допълнителни услуги и следпродажбено обслужване
Ние сме реномирана компания и ще бъдем с вас не само по време на покупката, но и след това, осигурявайки ви допълнителни услуги по ваше изискване с цел пълноценно и безпроблемно ползване на новозакупения имот. Услугите, които можем да предложим, включват застраховка на движимо и недвижимо имущество, застраховка живот, медицинско и автомобилно застраховане, строителни и ремонтни дейности, обзавеждане, юридически и счетоводни услуги и др.
Местоположение на картата
ПРАВА
ПРОДАЖБА
ПРОЕКТ
Луксозно обзаведен тристаен апартамент в RUHouse 2, на бул. "Черни връх"
Кръстова вада / София / София / България карта
Клас на сградата/комплекса: Луксозен
Площ: 120.49 м2
Цена: 481 960 € /// 4 000 €/м2
ПРОДАЖБА
ПРОЕКТ
Дизайнерски тристаен апартамент в нов комплекс във в.з. Малинова долина
в.з.Малинова долина / София / София / България карта
Площ: 178.40 м2
Цена: ЦЕНА ПРИ ЗАПИТВАНЕ ///
ПРОДАЖБА
ПРОЕКТ
Тристаен апартамент с две тераси и подземно паркомясто в комплекс Кошер
Манастирски ливади - Изток / София / София / България карта
Площ: 129 м2
Цена: 580 000 € /// 4 496 €/м2
Изберете тази опция и ще Ви уведомяваме по имейла при настъпили промени по статуса на офертата, например:
• Промяна на цената;
• Имотът влезе в промоционално предложение;
• Имотът бъде резервран или продаден;
• Други новости, свързани с имота.
• Имотът бъде свален от продажба;
Може да се отпишете от нотификациите лесно, когато пожелаете.• Промени по условията на офертата;
• Промяна в сумата на инвестицията;
• Предметът на инвестицията е изцяло реализиран;
• Валидността на офертата е изтекла.
Може лесно да се отпишете, ако в бъдеще решите, че повече не желаете да следите тази оферта.
За да получите абсолютно коректна информация относно свободните имоти, налични за продажба в проекта и техните актуални цени, моля свържете се с нашия офис на посочената информация за контакт.
Ние полагаме усилия, за да поддържаме нашите ценови листи абсолютно актуални и коректни, но често това е невъзможно, предвид големия брой нови проекти в нашия каталог и силно динамичните продажби.
Благодарим Ви за проявеното разбиране!



...В качеството си на доказан спецалист Stonehard PREMIER работи по пазарното позициониране и продажбите на множество проекти ново строителство, чиято реализация ни е поверена от водещи предприемачески компании в България и чужбина...