Двустаен апартамент в нова сграда на Belvedere Holiday Club в Банско
на картата
Цена:
80 875 € (без ДДС) (1 250 €/м2 (без ДДС))
*Указаните цени и наличности от свободни имоти в проекта са индикативни. За актуална ценова информация, моля свържете се с нас!
Реф. Номер: STO-128793 / 4138
Местоположение: Банско карта
Тип на сграда/комплекс: Жилищен
Площи на жилищата: 64.70 м2
Типове имоти в сградата/комплекса: Двустайни апартаменти
Реф. Номер: STO-128793 / 4138
Местоположение: Банско
Тип на сграда/комплекс: Жилищен
Клас на сградата/комплекса:
Площи на жилищата: 64.70 м2
Типове имоти в сградата/комплекса: Двустайни апартаменти
Ексклузивно представяме за продажба двустаен апартамент в нова сграда на популярния комплекс Belvedere Holiday Club в Банско.
Новопостроеният и вече напълно функциониращ "Белведере Холидей Клуб" e изключителен ваканционен комплекс от висока класа, едно от най-добрите планински места за отдих в България! Комплексът е от затворен тип, състоящ се от функционални апартаменти и допълнен от превъзходни удобства и съоръжения за отдих и развлечение. Намира се в новата модерна зона на Банско, само на около 400 м от кабинковия лифт и в непосредствена близост до новия шопинг център Mall of Bansko.
Предстоящата нова сграда предлага атрактивна съвременна вентилируема фасада с HPL, в традиционните цветове на комплекса, разпределена е на 5 етажа с два входа - "А" и "Б", с модерен асансьор. Предлага избор от просторни студиа, двустайни и тристайни апартаменти.
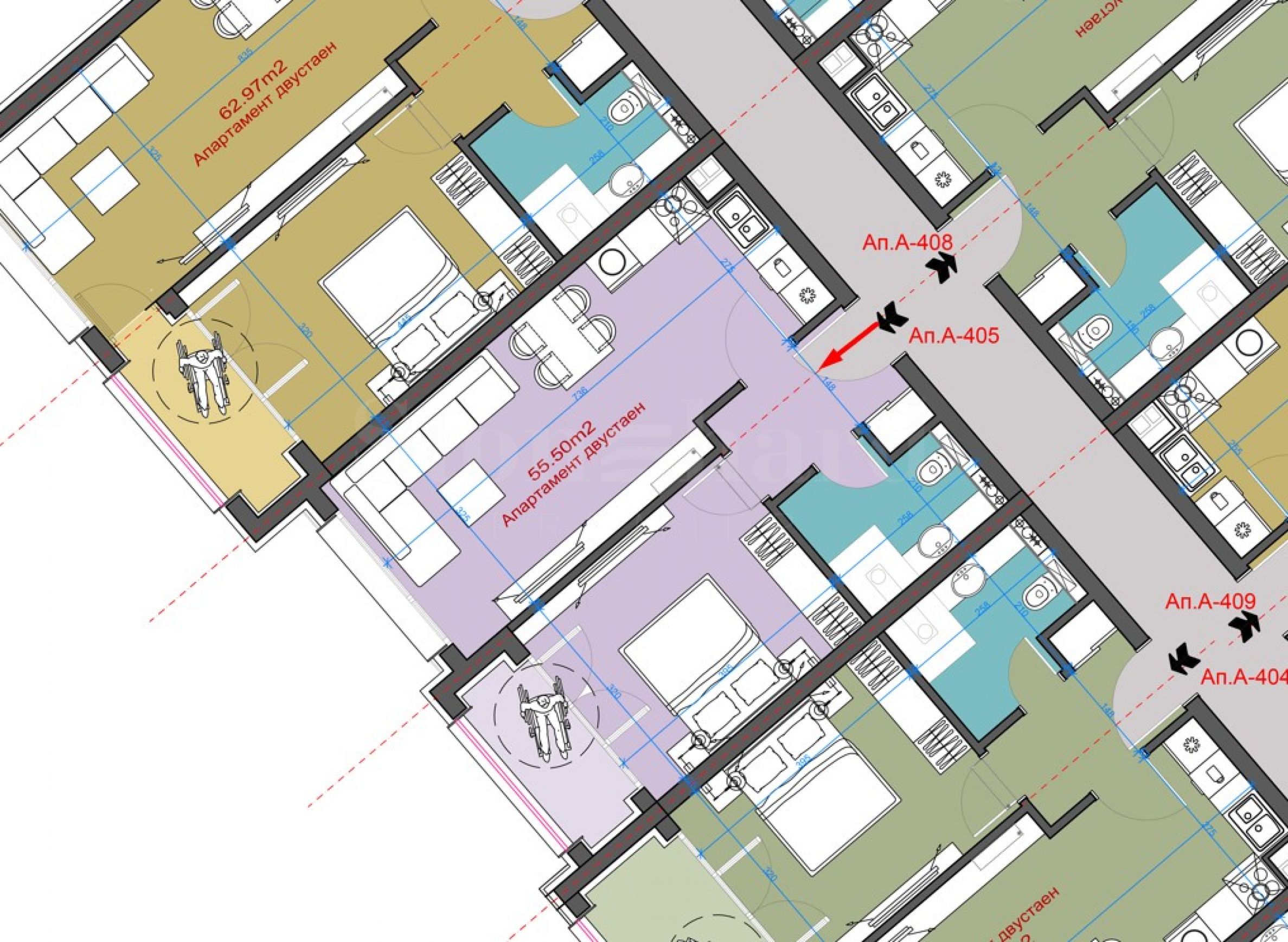
Предлаганият двустаен апартамент е с обща площ от 64.70 кв.м (нетна площ 55.19 кв.м + общи части 9.51 кв.м), разположен е на 4-ти етаж и се издава в степен на завършеност "до ключ".
Довършителни работи:
• инсталации за отводняване на водата от климатиците - сплит и мултисплит система;
• под - висококачествен ламинат и гранитогрес в коридор и кухненската част;
• бани завършени, с бойлер, гранитогрес;
• стени - тухли Winerberger, вътрешни стени - тухла 25 см;
• тавани - гипсова шпакловка с алуминиеви ъгли;
• боя латекс - бяло;
• дограма PVC - 5-камерен профил, цвят графит отвън, вътре бяло, троен стъклопакет;
• парапети - метални;
• врати - входни;
• интериорни врати.
Технически характеристики на сградата:
• облицовка - вентилируема фасада с HPL;
• алуминиеви рамки на прозорците;
• 12 см изолация, мазилка бял и сив цвят;
• керемиди Bramac;
• дворчета - бетон на партера, без тревни площи;
• ВИК инсталации - бойлери 100 л, водомери за студена вода с дистанционно отчитане, вентилация;
• общи части изцяло завършени - стъпала с гранит, гранитогрес във фоайета и коридори;
• видеонаблюдение - на входа във фоайето - по периферията на сградата;
• контрол на достъп;
• осветителни тела в общи части с детектори;
• окабеляване за Интернет и кабел;
• домофонна система (кабел за видеонаблюдение);
• асансьор - електромеханичен - Orona за 8 души;
• вода, канал и ток - захранване.
Схема на плащане:
• 20% на Предварителен договор;
• 20% на котата, на която е разположен апартаментът;
• 20% на Акт 14;
• 30% на Акт 15;
• 10% на Акт 16.
Първата фаза на комплекса е напълно завършена, успешно функционираща и е с разрешение за ползване (Акт 16) от 2008 година. Състои се от от три блока с апартаменти.
Екстри и съоръжения в "Белведере Холидей Клуб"
• Модерен ресторант "Belvedere Classico", предлагащ европейска кухня и традиционни ястия за района. Предлагат се преференциални цени за собственици и румсървис;
• Закрит отопляем басейн със зона за възрастни и зона за деца с постоянна температура от 32-33 градуса;
• Открит басейн (отопляем през лятото) със зона за възрастни, зона за деца, зона за много малки бебета и деца, и pool-бар;
• Външно джакузи за 15 човека;
• Луксозна денонощно работеща рецепция в блок 1 и мини-рецепции в другите блокове;
• Лоби зона с мека мебел;
• Лоби бар, сервиращ напитки и храни;
• Зала с билярди, дартс и други забавни игри;
• Кът за тихи игри: билярдни маси, тенис на маса, симулатор, Интернет игри;
• Детски кът - външен;
• Детски кът - вътрешен;
• Конферентна зала, оборудвана с необходимата конферентна техника;
• Гардероб за ски и голф принадлежности;
• Паркинги и подземен гараж с паркоместа;
• Красиво оформени градини с осветление и алеи;
• Денонощна охрана и видеонаблюдение.
SPA център:
• Инфрачервена сауна с хималайска сол;
• Турска баня – Хамам;
• Стая за релакс с топли легла;
• 2 сухи финландски сауни;
• 2 парни бани;
• Джакузи за 10 души;
• Солариум.
*Собствениците на апартаментите ползват преференциални условия в обновения SPA центъра на комплекса, имат право да ползват неограничено външните басейни, джакузито и фитнеса.
Спорт:
• Фитнес;
• Бадминтон;
• Баскетболен кош.
Услуги в Belvedere Holiday Club:
• Денонощна рецепция и румсървис;
• Денонощна охрана и охранителни камери;
• Собствен автобусен транспорт до кабинковия лифт, центъра на Банско и до голф игрището. През зимния сезон се предлага безплатен превоз до начална станция на лифта. Важи само за собственици на апартаменти;
• Безжичен Интернет в целия комплекс.
Очакваме Вашето запитване
Ако желаете да организирате оглед на имот, който Ви интересува, или да посетите някой от нашите офиси, моля свържете се с нас. За да уговорите ден и час за среща или оглед, можете да се обадите на посочения в обявата телефон или да изпратите запитване чрез електронната поща. Нашият консултант ще Ви съдейства с всички необходими подробности и ще уговори удобно за Вас време.
Търсите подходящия за Вас имот?
Не се колебайте да се свържете с нас и да ни разкажете за Вашите нужди и предпочитания. Нашият екип ще проведе задълбочено проучване на пазара, за да Ви предложи имоти, които точно отговарят на Вашите критерии. Разполагаме с изключително портфолио от висококачествени и ексклузивни жилища, които са достъпни само за нашите клиенти. За да сте първите, които ще получите информация за тях – свържете се с нас.
Допълнителни услуги
Като ценен клиент на нашата компания, Вие ще имате привилегията да ползвате напълно безплатно услугите на нашия опитен юридически екип. В допълнение, предлагаме комплексни решения, включващи имуществена застраховка, безплатна финансова консултация, както и изгодни условия за финансиране. Нашите услуги се разпростират и в сферата на препродажбата, отдаването под наем и управлението на имоти. Осигуряваме висококачествени ремонтни дейности и обзавеждане чрез специализирани фирми, които са част от нашата корпоративна група и са наши дългогодишни професионални партньори.
Местоположение на картата
ПРОДАЖБА
ПРОЕКТ
Двустаен апартамент с балкон в нов луксозен комплекс на 350 м от Ски зона в Банско
Банско / Благоевград / България карта
Площ: 64.21 м2
Цена: 86 683 € /// 1 350 €/м2
ПРОДАЖБА
ПРОЕКТ
Двустаен апартамент в Белведере Холидей Клуб, на метри от ски лифта
Банско / Благоевград / България карта
Площ: 48.04 м2
Цена: 64 000 € /// 1 332 €/м2
ПРОЕКТ
Апартаменти в атрактивен комплекс на 350 м от Ски зона в Банско
Банско / Благоевград / България карта
Цени на имотите: 54 931 - 155 121 € (без ДДС)
Цени на м²: 1 250 - 1 450 €/м2 (без ДДС)
Изберете тази опция и ще Ви уведомяваме по имейла при настъпили промени по статуса на офертата, например:
• Промяна на цената;
• Имотът влезе в промоционално предложение;
• Имотът бъде резервран или продаден;
• Други новости, свързани с имота.
• Имотът бъде свален от продажба;
Може да се отпишете от нотификациите лесно, когато пожелаете.• Промени по условията на офертата;
• Промяна в сумата на инвестицията;
• Предметът на инвестицията е изцяло реализиран;
• Валидността на офертата е изтекла.
Може лесно да се отпишете, ако в бъдеще решите, че повече не желаете да следите тази оферта.
За да получите абсолютно коректна информация относно свободните имоти, налични за продажба в проекта и техните актуални цени, моля свържете се с нашия офис на посочената информация за контакт.
Ние полагаме усилия, за да поддържаме нашите ценови листи абсолютно актуални и коректни, но често това е невъзможно, предвид големия брой нови проекти в нашия каталог и силно динамичните продажби.
Благодарим Ви за проявеното разбиране!



...В качеството си на доказан спецалист Stonehard PREMIER работи по пазарното позициониране и продажбите на множество проекти ново строителство, чиято реализация ни е поверена от водещи предприемачески компании в България и чужбина...