Многостаен апартамент в нов комплекс в кв. "Беломорски"
на картата
Цена:
Цена при запитване ()
*Указаните цени и наличности от свободни имоти в проекта са индикативни. За актуална ценова информация, моля свържете се с нас!
Реф. Номер: PLV-128418 / 3004
Местоположение: Беломорски / Пловдив карта
Тип на сграда/комплекс: Жилищен
Площи на жилищата: 178.25 м2
Типове имоти в сградата/комплекса: Многостайни апартаменти
Реф. Номер: PLV-128418 / 3004
Местоположение: Беломорски / Пловдив
Тип на сграда/комплекс: Жилищен
Клас на сградата/комплекса:
Площи на жилищата: 178.25 м2
Типове имоти в сградата/комплекса: Многостайни апартаменти
Сградата е въведена в експлоатация (с Акт 16).
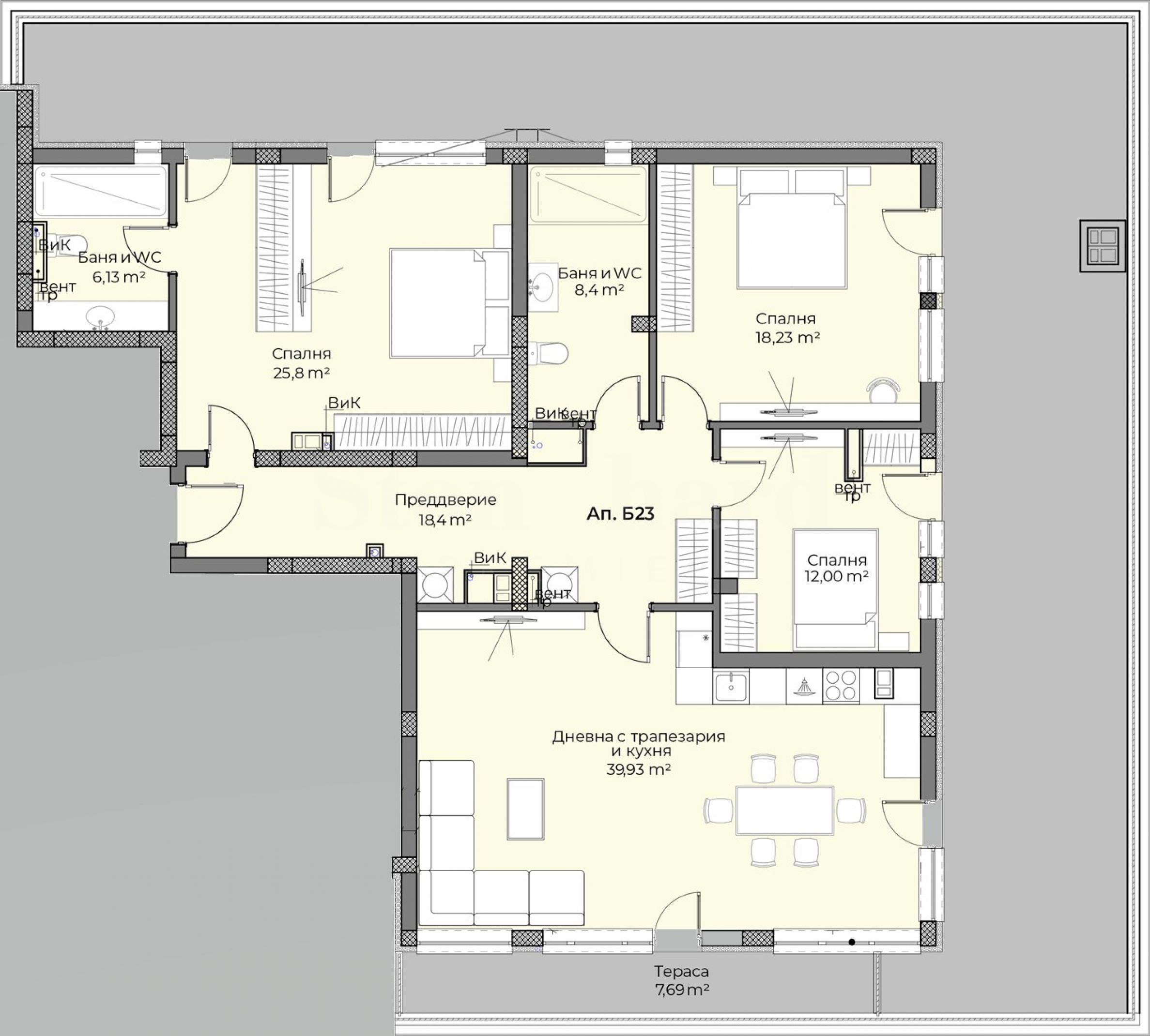
Параметри на имота
Жилището с обща площ от 178.25 кв.м е разположено на 4-ти етаж от 4, с изложение юг и има следното разпределение:
входно антре;
дневна с кухненски кът и трапезария;
три спални, едната от които със собствена баня и тоалетна;
баня с тоалетна;
покривна тераса.Кварталът е с нискo застрояване и позволява добра гледка и красива панорама към Родопа планина от всеки апартамент.
Апартаментът се предава в степен на завършеност по БДС:
стени - на гипсова шпакловка;
ел. и ВиК инсталации;
висок клас дограма;
добра външна изолация.Паркирането е осигурено на 100% с надземни паркоместа и гаражи.
Удобства на територията:
просторна вътрешна градина, богато озеленена;
очароващи фонтани и пешеходни алеи;
модерно оборудвана фитнес зала;
уютна кафетерия;
приятна зона за отдих;
детски площадки;
специални помещения за детски колички и велосипеди;
контролиран достъп;
24/7 видеонаблюдение.За повече информация, моля свържете се с нас.
Местоположение на картата
Жилища в нов иновативен комплекс в кв. "Христо Смирненски"
Христо Смирненски / Пловдив / Пловдив / България карта
Планирано начало: Март, 2026 г.
Очаквано завършване: Март, 2029 г.
Цени на имотите: 81 083 - 383 249 €
Цени на м²: 1 360 - 1 470 €/м2
Апартаменти в нов бутиков комплекс до Гребната база
Христо Смирненски / Пловдив / Пловдив / България карта
Завършване: Декември, 2027 г.
Цени на имотите: 132 192 - 299 027 €
Цени на м²: 1 788 - 1 800 €/м2
ПРОДАЖБА
ПРОЕКТ
Четиристаен апартамент в нов луксозен комплекс до Гребната база
Христо Смирненски / Пловдив / Пловдив / България карта
Клас на сградата/комплекса: Стандартен
Площ: 182.51 м2
Цена: Цена при запитване ///
Изберете тази опция и ще Ви уведомяваме по имейла при настъпили промени по статуса на офертата, например:
• Промяна на цената;
• Имотът влезе в промоционално предложение;
• Имотът бъде резервран или продаден;
• Други новости, свързани с имота.
• Имотът бъде свален от продажба;
Може да се отпишете от нотификациите лесно, когато пожелаете.• Промени по условията на офертата;
• Промяна в сумата на инвестицията;
• Предметът на инвестицията е изцяло реализиран;
• Валидността на офертата е изтекла.
Може лесно да се отпишете, ако в бъдеще решите, че повече не желаете да следите тази оферта.
За да получите абсолютно коректна информация относно свободните имоти, налични за продажба в проекта и техните актуални цени, моля свържете се с нашия офис на посочената информация за контакт.
Ние полагаме усилия, за да поддържаме нашите ценови листи абсолютно актуални и коректни, но често това е невъзможно, предвид големия брой нови проекти в нашия каталог и силно динамичните продажби.
Благодарим Ви за проявеното разбиране!



...В качеството си на доказан спецалист Stonehard PREMIER работи по пазарното позициониране и продажбите на множество проекти ново строителство, чиято реализация ни е поверена от водещи предприемачески компании в България и чужбина...