Енергоефективна къща във висок клас затворен комплекс, в полите на Витоша
Цена:
710 640 €
*Указаните цени и наличности от свободни имоти в проекта са индикативни. За актуална ценова информация, моля свържете се с нас!
Реф. Номер: SOF-128036 / 3998
Местоположение: в.з.Малинова долина / София карта
Тип на сграда/комплекс: Жилищен
Площи на жилищата: 283 м2
Типове имоти в сградата/комплекса: Къщи-близнак, Редови къщи
Реф. Номер: SOF-128036 / 3998
Местоположение: в.з.Малинова долина / София
Тип на сграда/комплекс: Жилищен
Клас на сградата/комплекса:
Площи на жилищата: 283 м2
Типове имоти в сградата/комплекса: Къщи-близнак, Редови къщи
Ексклузивно представяме нова къща-близнак за продажба, във висок клас затворен жилищен комплекс в близост до с.Бистрица.
Разположен в зона с нискоетажно застрояване, комплексът предлага тишина и спокойствие, заобиколен от зеленина, чист въздух и вдъхновяващи гледки към София и Витоша.
Състои се от 12 еднофамилни къщи тип близнак, групирани в шест елегантни жилищни сгради в алпийски стил, с обща разгъната застроена площ от 2 506 кв.м. Разполага със собствен просторен зелен двор и изцяло изградена нова инфраструктура, както и с изцяло нов, частен асфалтов път.
Всяка от къщите в комплекса разполага със собствена барбекю зона за индивидуално ползване, паркомясто, заден двор, отделен с жив плет, личното Ви място за отдих и забавление.
Дворовете към къщите са с големина от 72 до 165 кв.м.
Незастроеното дворно пространство ще бъде озеленено и благоустроено. Общо озеленената площ е 2335.80 кв.м - 60%. Ще има изградена и централна поливна система.
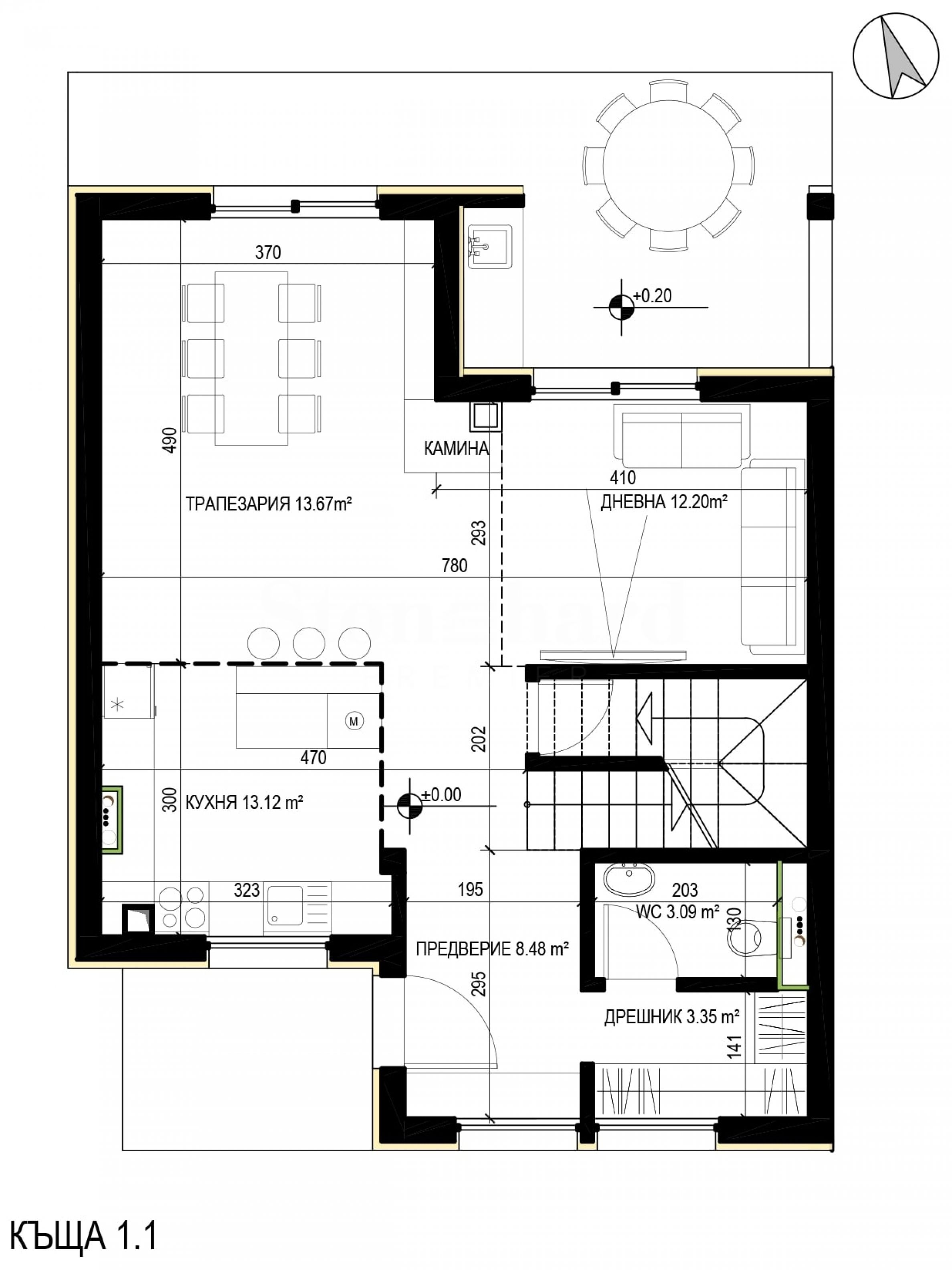
Атрактивно емпоре
Мечтата за всекидневна с висок таван става реалност във всяка къща. Емпорето над дневната зона е проектирано с впечатляваща височина от 6 метра, свързва визуално нивата и добавя усещане за простор и движение в интериора. Големите прозорци, които рамкират околния пейзаж, подсилват усещането за простор и създават естествена връзка с природата.
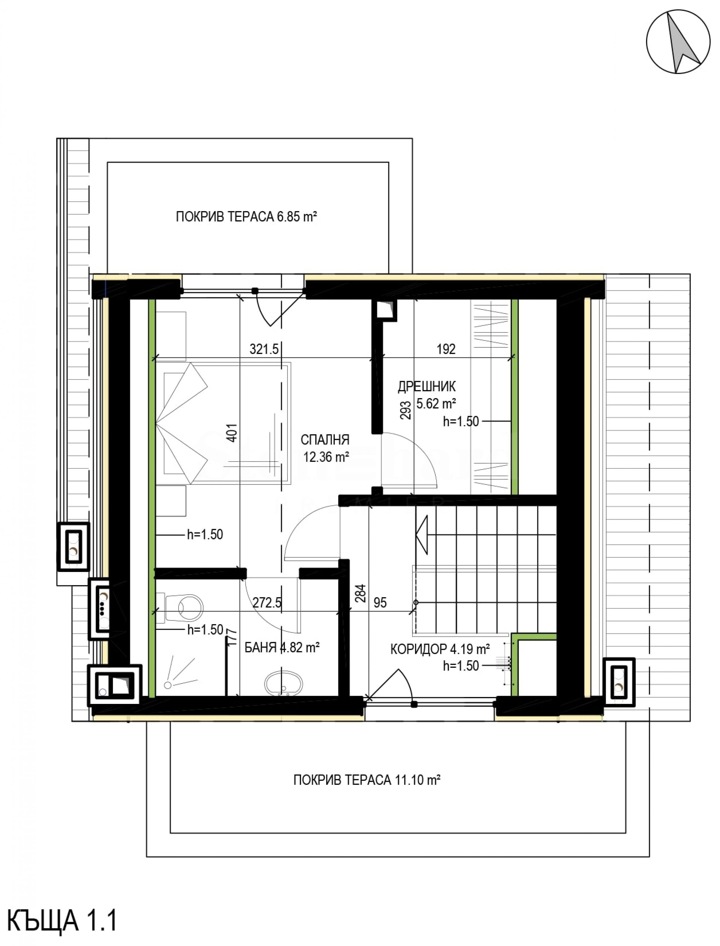
Разпределение:
На партерен етаж (кота ±0.00) са разположени дневна с емпоре в частта на зоната за отдих с височина до трети етаж, трапезария и кухня, свързани с външна тераса и тоалетна; двор и зона за барбекю;
На първи етаж - две спални със самостоятелни бани и тоалетни;
На втори етаж е разположена голяма спалня с дрешник, самостоятелна баня, тоалетна и две тераси;
В сутерена (на кота -2.40 с естествено осветление тип "английски двор") са разположени обслужващи помещения като склад, мокро помещение и хоби стая. В процес на строителство:
Акт 14 - 04.2025 г.
Акт 15 - 01.2026 г.
Акт 16 - 05.2026 г.
Къщите се предлагат в степен на завършеност по БДС, а конструктивните решения и висок клас материали и техники, използвани в строителството им, осигуряват здравословна среда за живот.
Технически характеристики:
монолитна конструкция с бетон клас С 20/25 и армировъчна стомана В500В;
топлоизолация и хидроизолация с материал General membrane;
фасади с клинкерни тухли и мазилка Baumit;
зидария с тухли Wienerberger Porotherm;
метална покривно-фасадна система за отлична топлоизолация, повишена паропропускливост, хидро- и шумоизолация; идеална основа за монтаж на конструкции на соларни и фотоволтаични панели в бъдеще;
шумоизолация - на пода на жилищата се поставя звукоизолационна мембрана със замазка против ударен шум;
висококачествена блиндирана входна врата;
eнергийно ефективна PVC дограма със 7-камерни профили и трислоен стъклопакет от нискоенергийно стъкло (4 сезона);
отопление: висок клас "ААА" термопомпа, инсталации за подово отопление във всяко помещение и изводи за радиатори.
Можем да предложим и консултация с интериорен дизайнер за довършителните дейности към всяка къща.
Схеми на плащане според индивидуалните нужди на клиента или:
Вариант 1:
20% на Предварителен договор
70% на Акт 15;
10% на Акт 16. Вариант 2:
10%, на Предварителен договор;
30% на Акт 14;
50% на Акт 15;
10% на Акт 16.
Очакваме Вашето запитване
Ако желаете да организирате оглед на имот, който Ви интересува, или да посетите някой от нашите офиси, моля свържете се с нас. За да уговорите ден и час за среща или оглед, можете да се обадите на посочения в обявата телефон или да изпратите запитване чрез електронната поща. Нашият консултант ще Ви съдейства с всички необходими подробности и ще уговори удобно за Вас време.
Търсите подходящия за Вас имот?
Не се колебайте да се свържете с нас и да ни разкажете за Вашите нужди и предпочитания. Нашият екип ще проведе задълбочено проучване на пазара, за да Ви предложи имоти, които точно отговарят на Вашите критерии. Разполагаме с изключително портфолио от висококачествени и ексклузивни жилища, които са достъпни само за нашите клиенти. За да сте първите, които ще получите информация за тях – свържете се с нас.
Допълнителни услуги
Като ценен клиент на нашата компания, Вие ще имате привилегията да ползвате напълно безплатно услугите на нашия опитен юридически екип. В допълнение, предлагаме комплексни решения, включващи имуществена застраховка, безплатна финансова консултация, както и изгодни условия за финансиране. Нашите услуги се разпростират и в сферата на препродажбата, отдаването под наем и управлението на имоти. Осигуряваме висококачествени ремонтни дейности и обзавеждане чрез специализирани фирми, които са част от нашата корпоративна група и са наши дългогодишни професионални партньори.
Местоположение на картата
ПРОДАЖБА
ПРОЕКТ
Къща с минималистичен облик до езерото Панчарево
м-т Детски град / София / София / България карта
Площ: 533.44 м2
Цена: 1 499 000 € ///
ПРОДАЖБА
ПРОЕКТ
Къща за продажба в комплекс с частна гора и красиви гледки
м-т Детски град / София / София / България карта
Площ: 484.65 м2
Цена: 1 199 000 € ///
ПРОДАЖБА
ПРОЕКТ
Модерна къща с четири спални, двоен гараж и двор в нов комплекс
в.з.Малинова долина / София / София / България карта
Площ: 460.76 м2
Цена: ЦЕНА ПРИ ЗАПИТВАНЕ ///
Изберете тази опция и ще Ви уведомяваме по имейла при настъпили промени по статуса на офертата, например:
• Промяна на цената;
• Имотът влезе в промоционално предложение;
• Имотът бъде резервран или продаден;
• Други новости, свързани с имота.
• Имотът бъде свален от продажба;
Може да се отпишете от нотификациите лесно, когато пожелаете.• Промени по условията на офертата;
• Промяна в сумата на инвестицията;
• Предметът на инвестицията е изцяло реализиран;
• Валидността на офертата е изтекла.
Може лесно да се отпишете, ако в бъдеще решите, че повече не желаете да следите тази оферта.
За да получите абсолютно коректна информация относно свободните имоти, налични за продажба в проекта и техните актуални цени, моля свържете се с нашия офис на посочената информация за контакт.
Ние полагаме усилия, за да поддържаме нашите ценови листи абсолютно актуални и коректни, но често това е невъзможно, предвид големия брой нови проекти в нашия каталог и силно динамичните продажби.
Благодарим Ви за проявеното разбиране!



...В качеството си на доказан спецалист Stonehard PREMIER работи по пазарното позициониране и продажбите на множество проекти ново строителство, чиято реализация ни е поверена от водещи предприемачески компании в България и чужбина...