Двустаен апартамент в Sunny View Central, до Cacao Beach
Цена:
79 895 € (1 356 €/м2)
*Указаните цени и наличности от свободни имоти в проекта са индикативни. За актуална ценова информация, моля свържете се с нас!
Реф. Номер: SVC-127236 / 3395
Местоположение: Слънчев бряг карта
Тип на сграда/комплекс: Жилищен
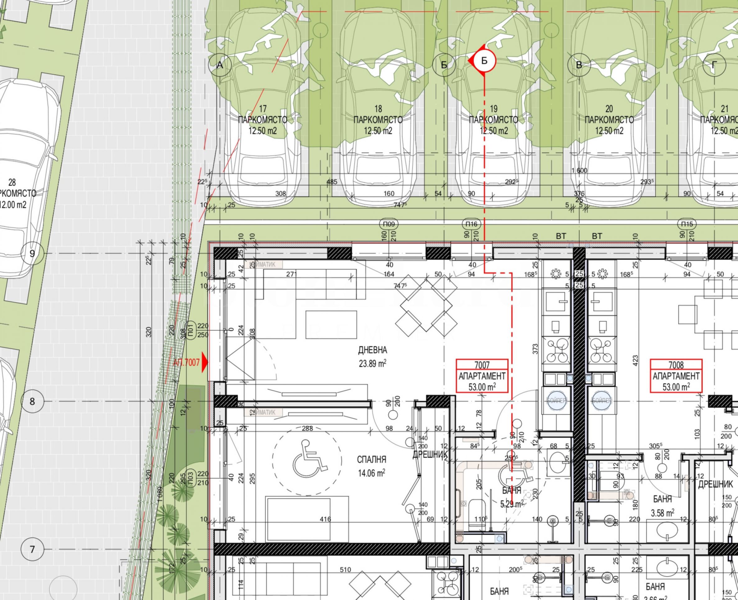
Площи на жилищата: 58.92 м2
Типове имоти в сградата/комплекса: Двустайни апартаменти
Реф. Номер: SVC-127236 / 3395
Местоположение: Слънчев бряг
Тип на сграда/комплекс: Жилищен
Клас на сградата/комплекса:
Площи на жилищата: 58.92 м2
Типове имоти в сградата/комплекса: Двустайни апартаменти
С Акт 16!
Sunny View Central е комплекс от затворен тип с ваканционни имоти и множество удобства за обитателите си, разположен на отлично местоположение близо до плажовете Cacao Beach и Bedroom. Комплексът се радва на пълна заетост през летния сезон, като имотите тук се използват както за лично ползване, така и за отдаване под наем.
Комплексът се състои от 6 корпуса в 4 сгради с общо 331 апартамента с Акт 16, а в процес на изграждане е нов 8-и корпус с имоти, които се предлагат в степен на завършване "до ключ". Има възможност за пълно обзавеждане на имотите срещу допълнително заплащане.
Имотът е ситуиран на ниво партер, ориентиран е на северозапад и предлага 58.92 кв.м площ. Състои се от антре, всекидневна, спалня, баня с тоалетна, тераса.
Предлага се в степен на завършване "до ключ", както следва:
общи части /стени, подови настилки и т.н./: под - плочки, стени – боя, модерни асансьори, градина от 2.5 декара;
5-камерна PVC дограма с трислоен стъклопакет;
входна врата: тип - масив от МДФ, със секретна заключалка, патрон, вътрешни врати от МДФ;
външна изолация: EPS 5 cm;
хол: стени боядисани с бял латекс, ламиниран паркет HNDF (сертификат европейски стандарт), с дебелина от 6 мм до 8 мм, цокъл;
баня и тоалетна: интериорни врати водонепроницаеми, полу секретна ключалка, напълно покрити с керамични плочки, на светли цветове; таваните са боядисани с водоустойчива бяла боя латекс;
баня: кран за топла и студена вода, тоалетна с казанче, мивка с коляно и смесител за топла и студена вода, осветление, водомер;
възможност за луксозни довършителни работи по апартамента при допълнително заплащане;
инсталации за кабелна телевизия, безжиченинтернет, СОТ, пожароизвестителна система.
Имотите в сграда 7 ще се възползват от всички удобства на вече функциониращата част.
Има възможност за закупуване или наемане на паркомясто, както и за свободно паркиране в комплекса.
Локация
Местоположението на Sunny View Central е недалеч от центъра на курорта, където се намират най-добрите ресторанти, кафенета и магазини. В близост е също и Старият град на Несебър, където има множество забележителности и исторически паметници. Мястото е изключително подходящо също за плаж и практикуване на различни водни спортове, както и за спа процедури.
Удобства на територията:
целогодишна рецепция;
ресторант;
лоби бар;
три външни басейна с душове;
пречистваща система за водата в басейните със солна електролиза;
парк;
детска площадка;
външен фитнес;
паркинг;
зарядни станции за ел. автомобили;
система за разпознаване на рег. номера на автомобилите за паркинга;
контролиран достъп в целия комплекс и жива охрана;
целогодишна поддръжка;
офиси;
интернет и телевизия - локална с гъвкави пакети за собствениците.
Годишната такса поддръжка е в размер на 23.47лв. (12 евро)/кв.м.
За допълнителна информация и организиране на оглед, моля свържете се с отговорния брокер по офертата.
Местоположение на картата
ПРОДАЖБА
ПРОЕКТ
Двустаен апартамент в луксозен комплекс в централната част на Слънчев бряг
Слънчев бряг / Бургас / България карта
Площ: 61 м2
Цена: 140 000 € /// 2 295 €/м2
ПРОДАЖБА
ПРОЕКТ
Двустаен апартамент в луксозен, целогодишен комплекс в Слънчев бряг
Слънчев бряг / Бургас / България карта
Площ: 44 м2
Цена: 88 000 € /// 2 000 €/м2
ПРОДАЖБА
ПРОЕКТ
Двустаен апартамент до почивната база на Министерски съвет в Слънчев бряг
Слънчев бряг / Бургас / България карта
Площ: 47.26 м2
Цена: 72 000 € /// 1 523 €/м2
Изберете тази опция и ще Ви уведомяваме по имейла при настъпили промени по статуса на офертата, например:
• Промяна на цената;
• Имотът влезе в промоционално предложение;
• Имотът бъде резервран или продаден;
• Други новости, свързани с имота.
• Имотът бъде свален от продажба;
Може да се отпишете от нотификациите лесно, когато пожелаете.• Промени по условията на офертата;
• Промяна в сумата на инвестицията;
• Предметът на инвестицията е изцяло реализиран;
• Валидността на офертата е изтекла.
Може лесно да се отпишете, ако в бъдеще решите, че повече не желаете да следите тази оферта.
За да получите абсолютно коректна информация относно свободните имоти, налични за продажба в проекта и техните актуални цени, моля свържете се с нашия офис на посочената информация за контакт.
Ние полагаме усилия, за да поддържаме нашите ценови листи абсолютно актуални и коректни, но често това е невъзможно, предвид големия брой нови проекти в нашия каталог и силно динамичните продажби.
Благодарим Ви за проявеното разбиране!



...В качеството си на доказан спецалист Stonehard PREMIER работи по пазарното позициониране и продажбите на множество проекти ново строителство, чиято реализация ни е поверена от водещи предприемачески компании в България и чужбина...