Луксозна къща тип близнак №E2 в местност Камбаните
на картатаЦена:
ЦЕНА ПРИ ЗАПИТВАНЕ
*Указаните цени и наличности от свободни имоти в проекта са индикативни. За актуална ценова информация, моля свържете се с нас!
Реф. Номер: SOF-118356 / 3591
Местоположение: м-т Камбаните / София карта
Тип на сграда/комплекс: Жилищен
Клас на сградата/комплекса: Луксозен
Площи на жилищата: 449.43 м2
Типове имоти в сградата/комплекса: Къщи-близнак
Реф. Номер: SOF-118356 / 3591
Местоположение: м-т Камбаните / София
Тип на сграда/комплекс: Жилищен
Клас на сградата/комплекса: Луксозен
Площи на жилищата: 449.43 м2
Типове имоти в сградата/комплекса: Къщи-близнак
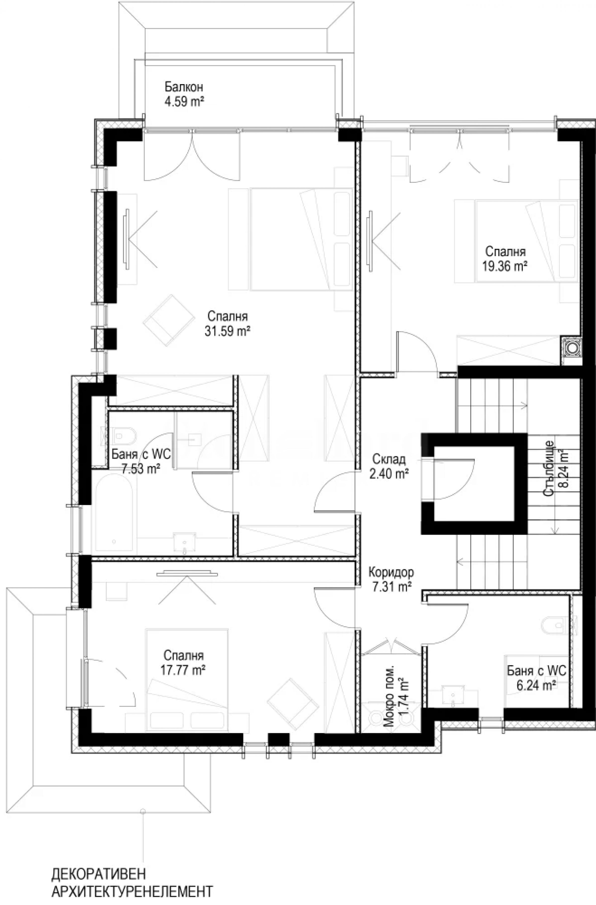
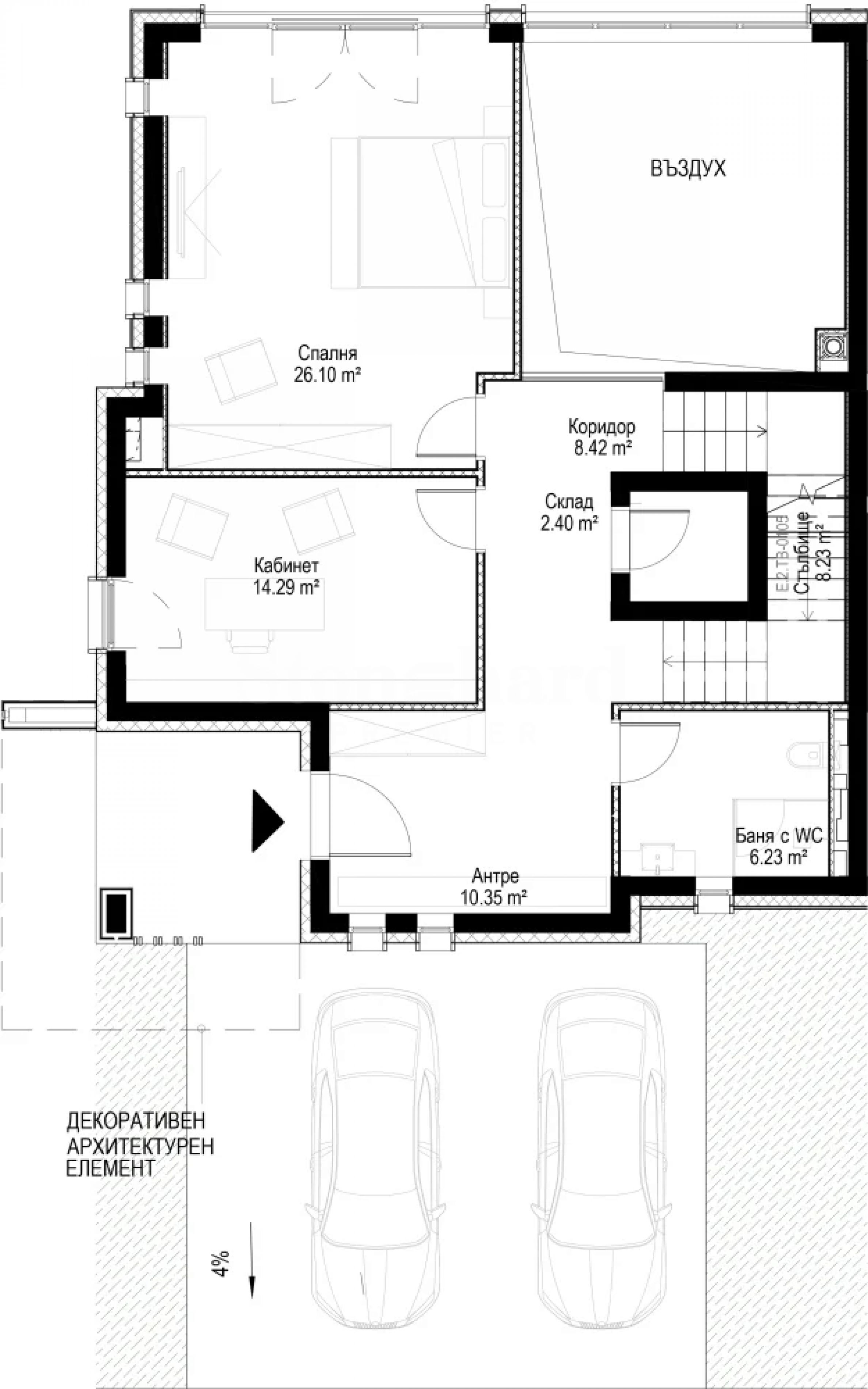
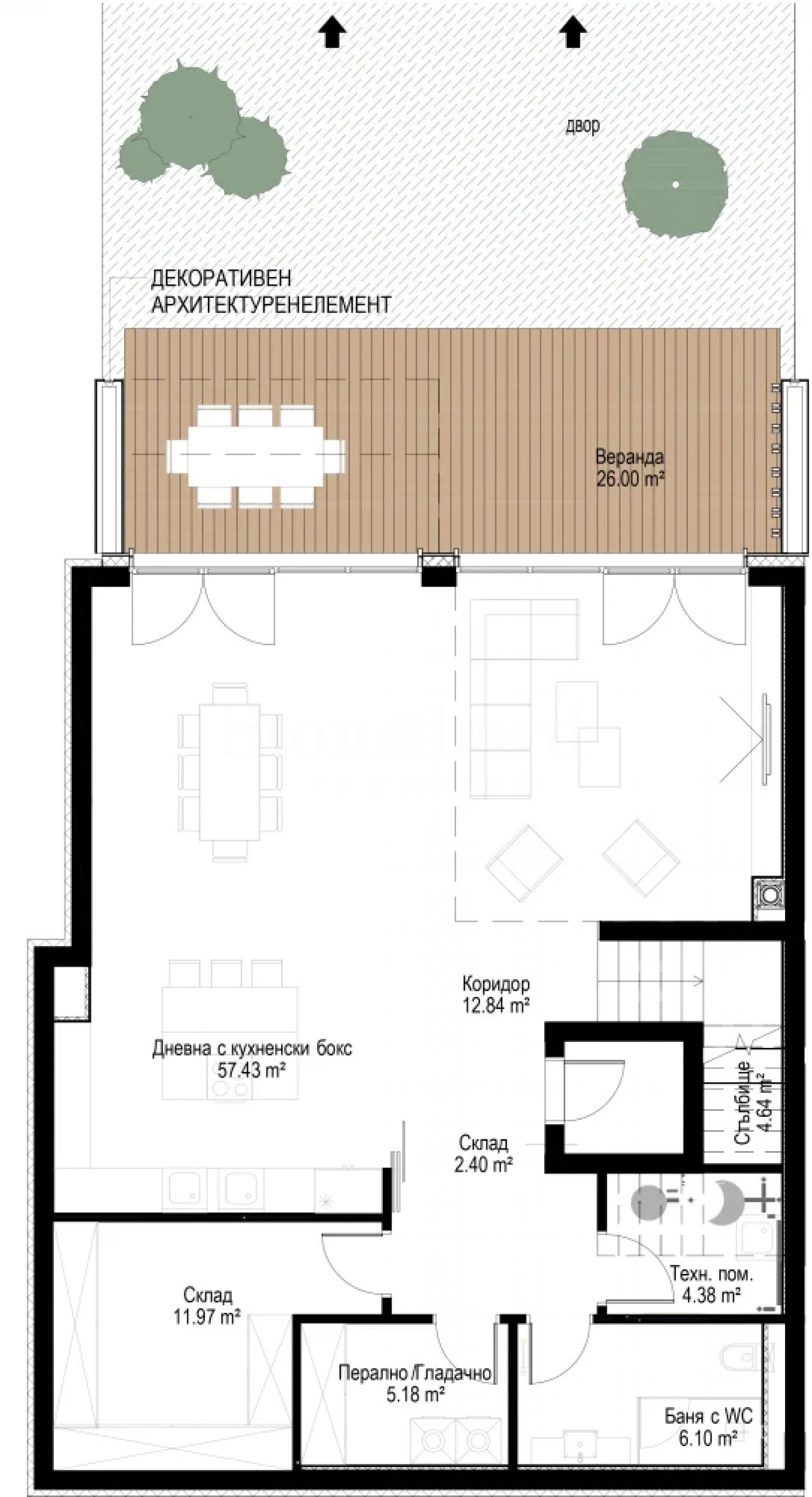
Характеристики на къщата:
№E2, Тип TB - къща-близнак с външно паркиране;
етажи: 2 надземни, 1 подземен етаж;
обща застроена площ - 449.43 кв.м;
площ на имота - 438.49 кв.м;
двор - 274.13 кв.м;
брой спални - 5;
брой бани - 4;
гараж - 2.
Локация
Разположен на удобна локация във все по-предпочитания и престижен район "Камбаните", в съседство с едни от най-търсените затворени комплекси в столицата, този комплекс се явява последната възможност за изграждане на проект с подобен мащаб в тази местност. Комплексът олицетворява спокоен живот в живописната среда с чист въздух, на обща площ от 110 000 кв.м, от които 92 000 кв.м - зелена площ, както и цели 10 дка собствен парк.
360-градусова гледка към планината и града
На 20 минути с кола от центъра на столицата, в близост до два от големите Бизнес центъра - Business Park Sofia и Garitage Office Park, това е едно ексклузивно място за живот за възрастни и деца.
до парк Камбаните;
на 3 мин с кола от "Околовръстен път";
6 мин с кола от Ring Mall;
15 мин с кола от Летището.
Етап 1 е с АКТ 14, включващ цялата планирана паркова среда.
Срок на завършване - 2.5 години, PЗП нa Eтaп 1 - 21 000 кв.м:
три триeтaжни cгpaди c aпapтaмeнти - тристайни имоти на последните етажи и четиристайни жилища, с двор или тераси;
редови къщи и къщи тип близнак, с площ от 285 кв.м до 454 кв.м.
Rесrеаtіоnаl Вuіldіng - общecтвeнa cгpaдa с 40 паркоместа за гостите – 2 400 кв.м.
Жилищен комплекс от ново поколение:
готови жилища за интелигентен дом - Smart Home System;
опция за 4 варианта на завършването на имотите, от международна архитектурна и дизайн компания SGI;
френски прозорци и високи тавани 3+ м светло;
иновативна топлоизолационна система;
термопомпена отоплителна система;
опция за индивидуални асансьори и басейн за къщите;
фотоволтаици с инверторни централи;
широкоформатна алуминиева дограма с троен стъклопакет и с нисък борд;
пречиствателна станция;
интегрирани станции за зареждане на електромобили;
фасилити мениджмънт услуги за комплекса.
Спокойна и защитена среда за Вашия нов дом
Безопасността в комплекса е от най-високите нива, за сигурността на територията са предвидени модерните smart технологии за сигурност от VIP Security, което превръща комплекса в един от най-защитените и спокойни за живеенето комплекси в страната.
Разнообразие от удобства за цялото семейство, отдих и спорт, както и Вашия успешен бизнес:
денонощна рецепция;
фитнес и СПА център, йога студио, зала за бокс;
барбекю и пикник зони, парк за домашни любимци, фитнес на открито, алеи за бягане, каране на колело и спорт;
лятно кино;
спортни игрища, детски площадки и детски център;
5* Хотелски тип Лаундж зона с рецепция и заведения;
кино и игрална зала;
конферентни зали и отворена зона за работа и срещи (co-working space) и др.
За допълнителна информация и организиране на оглед, моля свържете се с отговорния брокер по офертата.
Местоположение на картата
ПРОДАЖБА
ПРОЕКТ
Къща с минималистичен облик до езерото Панчарево
м-т Детски град / София / София / България карта
Площ: 533.44 м2
Цена: 1 499 000 € ///
ПРОДАЖБА
ПРОЕКТ
Къща за продажба в комплекс с частна гора и красиви гледки
м-т Детски град / София / София / България карта
Площ: 484.65 м2
Цена: 1 199 000 € ///
ПРОДАЖБА
ПРОЕКТ
Модерна къща с четири спални, двоен гараж и двор в нов комплекс
в.з.Малинова долина / София / София / България карта
Площ: 460.76 м2
Цена: ЦЕНА ПРИ ЗАПИТВАНЕ ///
Изберете тази опция и ще Ви уведомяваме по имейла при настъпили промени по статуса на офертата, например:
• Промяна на цената;
• Имотът влезе в промоционално предложение;
• Имотът бъде резервран или продаден;
• Други новости, свързани с имота.
• Имотът бъде свален от продажба;
Може да се отпишете от нотификациите лесно, когато пожелаете.• Промени по условията на офертата;
• Промяна в сумата на инвестицията;
• Предметът на инвестицията е изцяло реализиран;
• Валидността на офертата е изтекла.
Може лесно да се отпишете, ако в бъдеще решите, че повече не желаете да следите тази оферта.
За да получите абсолютно коректна информация относно свободните имоти, налични за продажба в проекта и техните актуални цени, моля свържете се с нашия офис на посочената информация за контакт.
Ние полагаме усилия, за да поддържаме нашите ценови листи абсолютно актуални и коректни, но често това е невъзможно, предвид големия брой нови проекти в нашия каталог и силно динамичните продажби.
Благодарим Ви за проявеното разбиране!



...В качеството си на доказан спецалист Stonehard PREMIER работи по пазарното позициониране и продажбите на множество проекти ново строителство, чиято реализация ни е поверена от водещи предприемачески компании в България и чужбина...