Тристаен мезонет "до ключ" в престижния комплекс 7 Angels
на картата
Цена:
279 661 € (без ДДС) (1 900 €/м2 (без ДДС))
*Указаните цени и наличности от свободни имоти в проекта са индикативни. За актуална ценова информация, моля свържете се с нас!
Реф. Номер: STO 117956 / 3566
Местоположение: Боровец карта
Тип на сграда/комплекс: Жилищен
Клас на сградата/комплекса: Луксозен
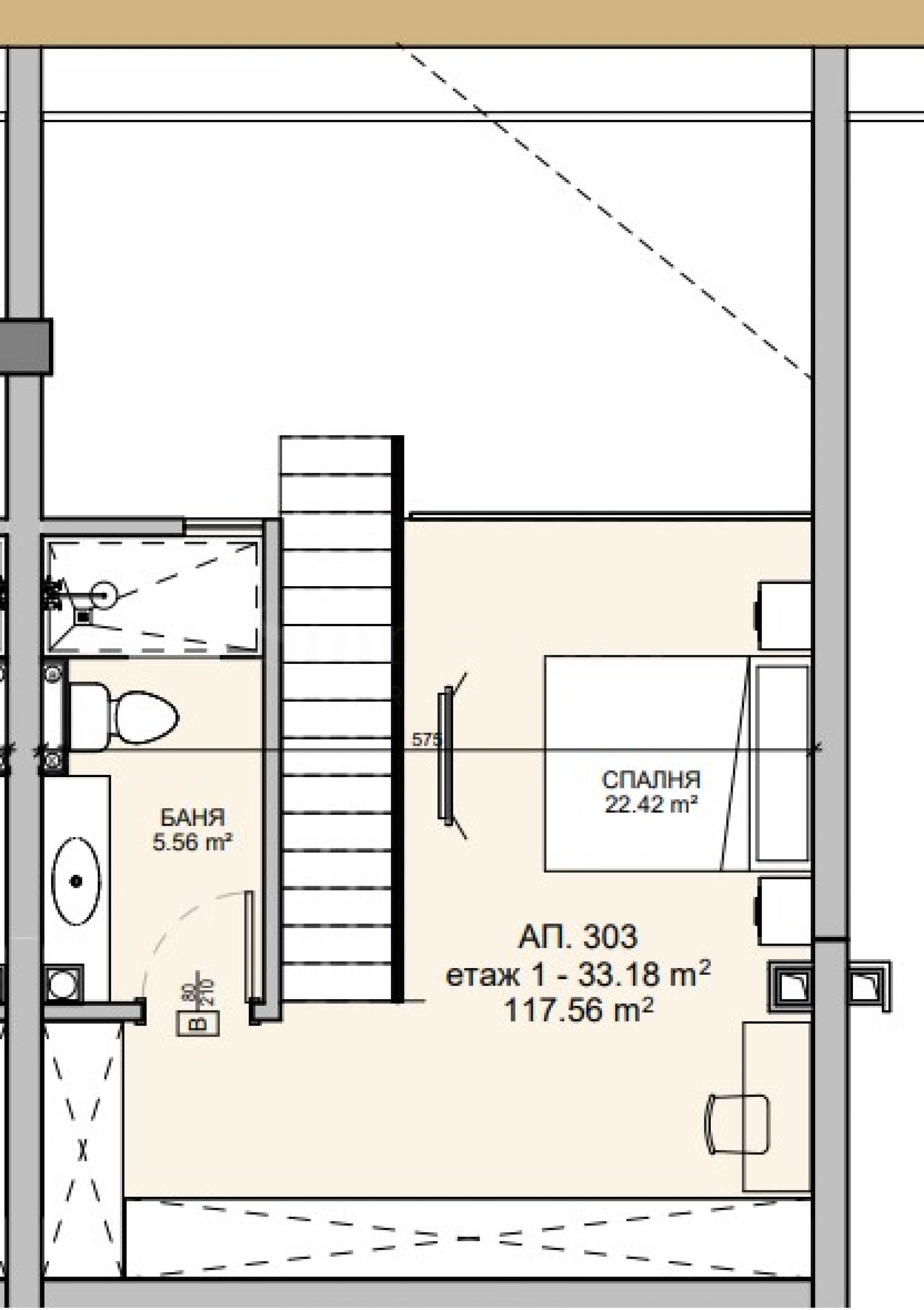
Площи на жилищата: 147.19 м2
Типове имоти в сградата/комплекса: Мезонети
Реф. Номер: STO 117956 / 3566
Местоположение: Боровец
Тип на сграда/комплекс: Жилищен
Клас на сградата/комплекса: Луксозен
Площи на жилищата: 147.19 м2
Типове имоти в сградата/комплекса: Мезонети
Проектът ще бъде изпълнен без компромиси и има амбицията да се превърне в една от най-реномираните и престижни резиденции в аристократичния планински курорт на България, основан от цар Фердинанд преди повече от 120 години. Проектът е свързан с цялостно преустройство на двете съществуващи сгради на бившия хотел "Зодиак" в курорта Боровец и превръщането му луксозна планинска резиденция с комфортни апартаменти и широка гама от удобства за своите обитатели.
С РАЗРЕШЕНИЕ ЗА СТРОЕЖ!
Планирано завършване - в края на 2026 г.
Имотът е ситуиран на 3-ти и 4-ти етаж и предлага 147.19 кв.м обща площ (нетна площ 119.53 кв.м + общи части 27.66 кв.м). Първият етаж се състои от антре, всекидневна с кухненски бокс, спалня, баня с тоалетна, тераса, а ниво две разполага със спалня и баня с тоалетна.
Местоположение
Със своята уединена локация, на 1340 м надморска височина, Боровец предлага изключително чист въздух, а река Бистрица, която минава през целия курорт, има въздушно течение, което дава особена структура на въздуха и спомага за лечение и бързото възстановяване на човешкото здраве. Районът е идеално място за зимен и летен туризъм, ски, байкинг, планински поход, планинско бягане, скално катерене, парапланеризъм, конна езда. Разполага с 58 км различни ски писти и е подходящ както за начинаещи, така и за напреднали. Местоположението е с бърз достъп до центъра на курорта, на 900 м от кабинковия лифт и само на 50 м от 800-метрова ски писта за начинаещи.
Жилища с панорамни гледки - за лично ползване или инвестиция
Комплексът е планиран в три секции – две жилищни сгради и ресторант между тях, който ги свързва с топла връзка. Конструктивните височини са 2.50 - 2.60 метра за сграда Б и над 3.20 метра за сграда А. Планирани са 58 жилища с възможност за обединяване - студиа и апартаменти с една, две и три спални, някои от които разполагат с градински тераси, а други са от типа мезонет. Жилищата са внимателно проектирани с цел най-комфортно обитаване, а панорамното остъкляване на сградата допринася както за изобилие от естествена светлина, така и за прекрасни изгледи към спиращата дъха природна красота.
Апартаментите се предлагат в степен на завършване "до ключ" с готови настилки (паркет), стени, завършени и оборудвани бани; дървена, трислойна дограма, немски профил, с троен стъклопакет и алуминиева капачка, предпазваща дървото от студ и слънце за да служи дълги години; блиндирани входни врати и MDF интериорни врати, инсталирани радиатори и система Smart-home, включена в цената. Отоплението е предвидено с индивидуално парно на газ и радиатори.
7 Angels ще предложи и интегрирана smart homes система във всяко жилище, като може да избирате между два варианта.
Вариант 1 (базов) включва:
• Управление на газовия котел;
• Управление на алармената система по желание на клиента (с подготовка за включване на СОТ с опция за снимки при засечено движение и изпращане на изображението в реално време до собственика на имота);
• Пожароизвестяване;
• Welcome осветление на прага на всяко жилище;
• Управление на интернет и кабелна телевизия.
Вариант 2 включва:
• Управление на газовия котел;
• Управление на алармената система по желание на клиента (с подготовка за включване на СОТ с опция за снимки при засечено движение и изпращане на изображението в реално време до собственика на имота);
• Пожароизвестяване;
• Welcome осветление на прага на всяко жилище;
• Управление на интернет и кабелна телевизия;
• Автоматично движение на завеси;
• Изпълнение на всякакви други SMART HOME екстри по желание на клиента.
Всеки един собственик на имот в 7 Angels ще има достъп и до услугата Captive Portal, в която ще може да следи температурата в жилището и потреблението на енергия за своето жилище чрез дигитални електромер и газомер. За допълнително удобство и сигурност ще бъде използвана и система с QR кодове за достъп до паркинга и удобствата в модерния СПА център на комплекса.
Посочената цена е без ДДС.
Пълен спектър от изживявания
7 Angels ще бъде изграден по концепцията за Healthy Building с най-съвременни строителни технологии и решения за енергоефективност и благоприятна жилищна среда, a впечатляваща му визия в алпийски стил е вдъхновена от най-добрите ски курорти в Швейцария.
Архитектурната визия ще бъде подчертана с луксозно изпълнени общи части с асансьори KONE, а на разположение на обитателите ще има ресторант от премиален бранд, италианска кафе-сладкарница, скиорна, ултрамодерен уелнес и СПА център, който включва вътрешни и външни сауни, малък басейн с дифузери, парна баня и стаи за масаж, както и фитнес център с Kettler и Tehnogym фитнес уреди.
Предвиден е целодневен безплатен транспорт от комплекса до кабинковата станция, а в близост ще бъде изградена детска зона за игри и забавления.
7 Angels – когато природата лекува
7 Angels ще предложи не само най-съвременни удобства, но и близка среща с лечебните сили на Рила.
Комплексът ще бъде превърнат в отлично място за уединение и рекреация сред здравословна среда и кристално чист въздух. Боровец е традиционно място за лечение и рехабилитация при белодробни заболявания, а буйната река Бистрица, която тече в близост до локацията на 7 Angels, допълнително насища въздуха с кислород.
Енергията на това специално място ще бъде съчетана и с вещината на доказани лечители, практикуващи природна медицина, които ще гостуват регулярно в двата специално създадени за целта кабинета. Ще можете да се възползвате от уменията на специалисти по аюрведа, ирисова диагностика, юмейхо терапия и много други, което ще превърне времето, прекарано в 7 Angels, в едно преживяване за тялото и духа.
В 7 Angels Ви очаква едно пътуване към себе си, далеч от шума на града, заобиколени от вековната борова гора.
Ако пък активният отдих е това, от което имате нужда, 7 Angels предлага множество възможности за спорт в близост. В ход е проект за изграждане на множество велоалеи в района, които да предложат условия за колоездене в курорта и планината, а зимата ски пистата до комплекса е идеален вариант за начинаещи скиори и деца.
Възможност за покупка на собствено паркомясто в открития паркинг на комплекса или в закрития подземен гараж:
надземни паркоместа - 8000 Евро без ДДС;
подземни паркоместа - 15000 Евро без ДДС.
Стандартна схема на плащане:
Резервационен депозит - 7000 до 11000 Евро в зависимост от типа на апартамента (депозитът пази имота резервиран до “първа копка”) - подписва се Предварителен договор в рамките на 14 дни след заплащане на резервационния депозит;
25% минус депозита - при подписване на Предварителен договор;
25% при поставена дограма;
30% при поставена фасада;
20% на Акт 16.
Такса поддръжка
Задължителната такса поддръжка е фиксирана за първите 2 години в размер на 15 Евро/м2 без ДДС от общата площ на жилището с включени общи части.
Със своята устойчива и различна концепция, 7 Angels осигурява възможност за живот в здравословна среда, с първокласни удобства и в близост до ски пистите и лифтовете на курорта. Свържете се с нас за повече информация и професионална консултация!
Местоположение на картата
ПРАВА
Комплекс 7 Angels — луксозни апартаменти ново строителство в Боровец
Боровец / София / България карта
Клас на сградата: Луксозен
Планирано начало: 2025 г.
Очаквано завършване: Декември, 2026 г.
Цени на имотите: 195 570 - 773 406 € (без ДДС)
Цени на м²: 1 800 - 1 900 €/м2 (без ДДС)
Изберете тази опция и ще Ви уведомяваме по имейла при настъпили промени по статуса на офертата, например:
• Промяна на цената;
• Имотът влезе в промоционално предложение;
• Имотът бъде резервран или продаден;
• Други новости, свързани с имота.
• Имотът бъде свален от продажба;
Може да се отпишете от нотификациите лесно, когато пожелаете.• Промени по условията на офертата;
• Промяна в сумата на инвестицията;
• Предметът на инвестицията е изцяло реализиран;
• Валидността на офертата е изтекла.
Може лесно да се отпишете, ако в бъдеще решите, че повече не желаете да следите тази оферта.
За да получите абсолютно коректна информация относно свободните имоти, налични за продажба в проекта и техните актуални цени, моля свържете се с нашия офис на посочената информация за контакт.
Ние полагаме усилия, за да поддържаме нашите ценови листи абсолютно актуални и коректни, но често това е невъзможно, предвид големия брой нови проекти в нашия каталог и силно динамичните продажби.
Благодарим Ви за проявеното разбиране!



...В качеството си на доказан спецалист Stonehard PREMIER работи по пазарното позициониране и продажбите на множество проекти ново строителство, чиято реализация ни е поверена от водещи предприемачески компании в България и чужбина...