Самостоятелна къща в бутиков комплекс от модерни къщи в Панчарево
Цена:
495 000 € (без ДДС)
*Указаните цени и наличности от свободни имоти в проекта са индикативни. За актуална ценова информация, моля свържете се с нас!
Реф. Номер: Sve 138191 / 5058
Местоположение: м-т Детски град / София карта
Тип на сграда/комплекс: Жилищен
Площи на жилищата: 197.68 м2
Типове имоти в сградата/комплекса: Къщи
Реф. Номер: Sve 138191 / 5058
Местоположение: м-т Детски град / София
Тип на сграда/комплекс: Жилищен
Клас на сградата/комплекса:
Площи на жилищата: 197.68 м2
Типове имоти в сградата/комплекса: Къщи
Проектът предлага не само дом, а цялостна концепция за живот – модерна архитектура, подредена среда и спокойствие.
Комплексът е разположен в местността „Детски град" в Панчарево – една от най-предпочитаните крайградски локации в близост до София. Районът съчетава тишината и зеленината на природната среда с лесен достъп до всичко необходимо – хипермаркети, търговски центрове, училища, детски градини, ресторанти, банки, болници и спортни съоръжения. Близостта до Околовръстния път осигурява бърза връзка с центъра на столицата и основните пътни артерии.
Проектът заема терен от приблизително 4700 кв.м и включва 13 внимателно проектирани еднофамилни къщи – 6 свободностоящи и 7 редови, обединени в хармонично и естетически завършено пространство. Застроената площ на първите етажи варира между 70 и 77 кв.м, а на вторите – между 108 и 130 кв.м.
Зелените площи заемат над 70% от терена, създавайки спокойна и уединена среда за отдих и рекреация.
Комплексът разполага с осигурени паркоместа за автомобили и велосипеди, а цялостната вътрешна организация гарантира сигурност и спокойствие за всички обитатели.
Свободностоящите къщи предлагат просторни дневни зони, обособени кухни с трапезарии и четири спални на втория етаж, допълнени от бани, гардеробни и тераси с гледка.
Редовите къщи са решени с обширна дневна зона на първото ниво и три комфортни спални на второто, допълнени от бани и гардеробни помещения – оптимално разпределение за съвременното семейство.
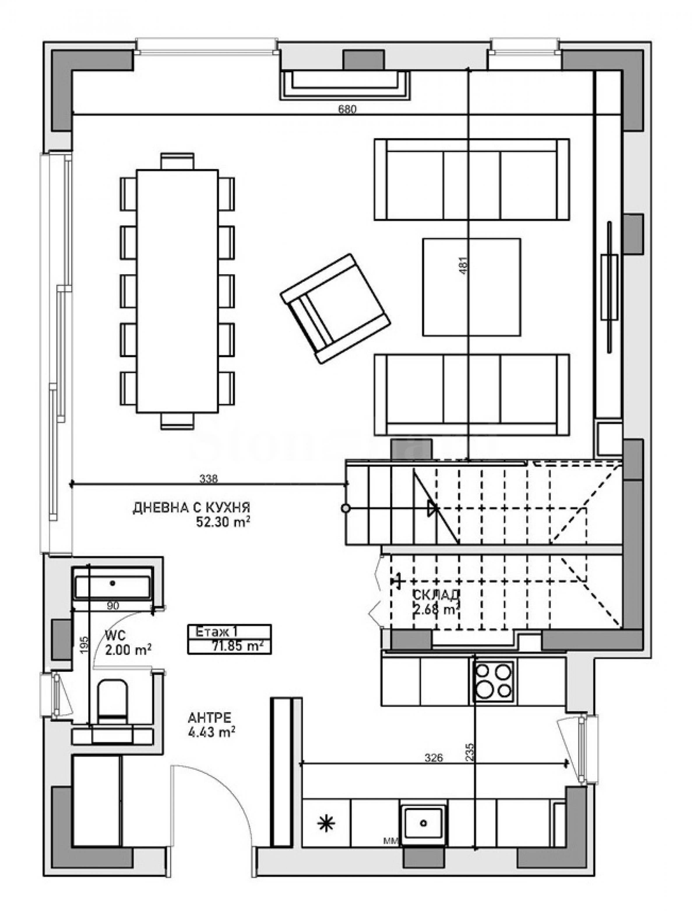
Самостоятелната къща №3 е на два етажа, с обща площ 197.68 кв.м, с двор с площ 363 кв.м.
Разпределение
Първи етаж - антре, просторен дневен тракт с кухня, трапезария и дневна, складово помещение и санитарен възел. Застроената площ е 71.85 кв.м.
Втори етаж - четири спални, дрешник, сервизно помещение, тераса и три отделни бани със санитарен възел. Застроената площ е 125.83 кв.м.
Степен на завършеност
Къщите се издават по БДС – с изградени инсталации, външна дограма, входни врати и подготвени фасади.
Предвидена е възможност за индивидуално довършване на интериора според предпочитанията на клиента.
Технически характеристики
• Конструкцията е стоманобетонна с безгредови плочи, осигуряващи пълна свобода при оформяне на интериора.
• Фасадите са топлоизолирани с висококачествени материали, гарантиращи енергийна ефективност и комфорт през цялата година.
• Плоските покриви са изпълнени със система за вътрешно отводняване и топлоизолация от XPS.
• Алуминиевите прозоречни системи осигуряват максимално естествено осветление, отлично проветряване и открита гледка към планината.
• Архитектурният израз е съвременен и изчистен – балансирана цветова палитра в естествени тонове, плоски покриви и прецизни детайли, които създават усещане за ред, хармония и трайна стойност.
Етапи на строителство
Проектът се реализира съгласно одобрен инвестиционен проект и издадено разрешение за строеж, при стриктно спазване на всички нормативни изисквания и висок стандарт на изпълнение.
Схеми на плащане
Предлагат се гъвкави схеми на плащане, съобразени с етапите на строителството и индивидуалните възможности на клиентите. Възможно е банково финансиране, което прави придобиването на дом в комплекса сигурна и стратегическа инвестиция в качество и дългосрочна стойност.
Очакваме Вашето запитване
Ако желаете да организирате оглед на имот, който Ви интересува, или да посетите някой от нашите офиси, моля свържете се с нас. За да уговорите ден и час за среща или оглед, можете да се обадите на посочения в обявата телефон или да изпратите запитване чрез електронната поща. Нашият консултант ще Ви съдейства с всички необходими подробности и ще уговори удобно за Вас време.
Търсите подходящия за Вас имот?
Не се колебайте да се свържете с нас и да ни разкажете за Вашите нужди и предпочитания. Нашият екип ще проведе задълбочено проучване на пазара, за да Ви предложи имоти, които точно отговарят на Вашите критерии. Разполагаме с изключително портфолио от висококачествени и ексклузивни жилища, които са достъпни само за нашите клиенти. За да сте първите, които ще получите информация за тях – свържете се с нас.
Допълнителни услуги
Като ценен клиент на нашата компания, Вие ще имате привилегията да ползвате напълно безплатно услугите на нашия опитен юридически екип. В допълнение, предлагаме комплексни решения, включващи имуществена застраховка, безплатна финансова консултация, както и изгодни условия за финансиране. Нашите услуги се разпростират и в сферата на препродажбата, отдаването под наем и управлението на имоти. Осигуряваме висококачествени ремонтни дейности и обзавеждане чрез специализирани фирми, които са част от нашата корпоративна група и са наши дългогодишни професионални партньори.
Местоположение на картата
ПРОДАЖБА
ПРОЕКТ
Модерна редова къща с двор и паркоместа в престижен комплекс
Лозен парк / София / София / България карта
Площ: 242 м2
Цена: 750 000 € ///
ПРАВА
ПРОДАЖБА
ПРОЕКТ
Ексклузивна къща със СПА зона в престижен затворен комплекс в "Бояна"
Бояна / София / София / България карта
Площ: 478 м2
Цена: 2 600 000 € ///
ПРОДАЖБА
ПРОЕКТ
Еднофамилна къща с двор в нов бутиков комплекс в полите на Витоша
Драгалевци / София / София / България карта
Площ: 345.60 м2
Цена: 670 000 € ///
Изберете тази опция и ще Ви уведомяваме по имейла при настъпили промени по статуса на офертата, например:
• Промяна на цената;
• Имотът влезе в промоционално предложение;
• Имотът бъде резервран или продаден;
• Други новости, свързани с имота.
• Имотът бъде свален от продажба;
Може да се отпишете от нотификациите лесно, когато пожелаете.• Промени по условията на офертата;
• Промяна в сумата на инвестицията;
• Предметът на инвестицията е изцяло реализиран;
• Валидността на офертата е изтекла.
Може лесно да се отпишете, ако в бъдеще решите, че повече не желаете да следите тази оферта.
За да получите абсолютно коректна информация относно свободните имоти, налични за продажба в проекта и техните актуални цени, моля свържете се с нашия офис на посочената информация за контакт.
Ние полагаме усилия, за да поддържаме нашите ценови листи абсолютно актуални и коректни, но често това е невъзможно, предвид големия брой нови проекти в нашия каталог и силно динамичните продажби.
Благодарим Ви за проявеното разбиране!



...В качеството си на доказан спецалист Stonehard PREMIER работи по пазарното позициониране и продажбите на множество проекти ново строителство, чиято реализация ни е поверена от водещи предприемачески компании в България и чужбина...