Четиристаен апартамент близо до Ring Mall в София
Цена:
381 784 € (2 600 €/м2)
*Указаните цени и наличности от свободни имоти в проекта са индикативни. За актуална ценова информация, моля свържете се с нас!
Реф. Номер: SOF-137838 / 3905
Местоположение: Малинова долина / София карта
Тип на сграда/комплекс: Жилищен
Площи на жилищата: 146.84 м2
Типове имоти в сградата/комплекса: Четиристайни апартаменти
Реф. Номер: SOF-137838 / 3905
Местоположение: Малинова долина / София
Тип на сграда/комплекс: Жилищен
Клас на сградата/комплекса:
Площи на жилищата: 146.84 м2
Типове имоти в сградата/комплекса: Четиристайни апартаменти
Представяме за продажба четиристаен апартамент за продажба, в затворен комплекс от две бутикови и модерни сгради в кв. "Малинова долина".
Локация
Комплексът е разположен на удобно място в близост до ключови търговски обекти, Ring Mall, детска градина и Околовръстен път. Кварталът се намира в южната част на София, осигурявайки спокойствие и чист въздух в подножието на планината, с лесен и бърз достъп до централните зони на града.
За жилището
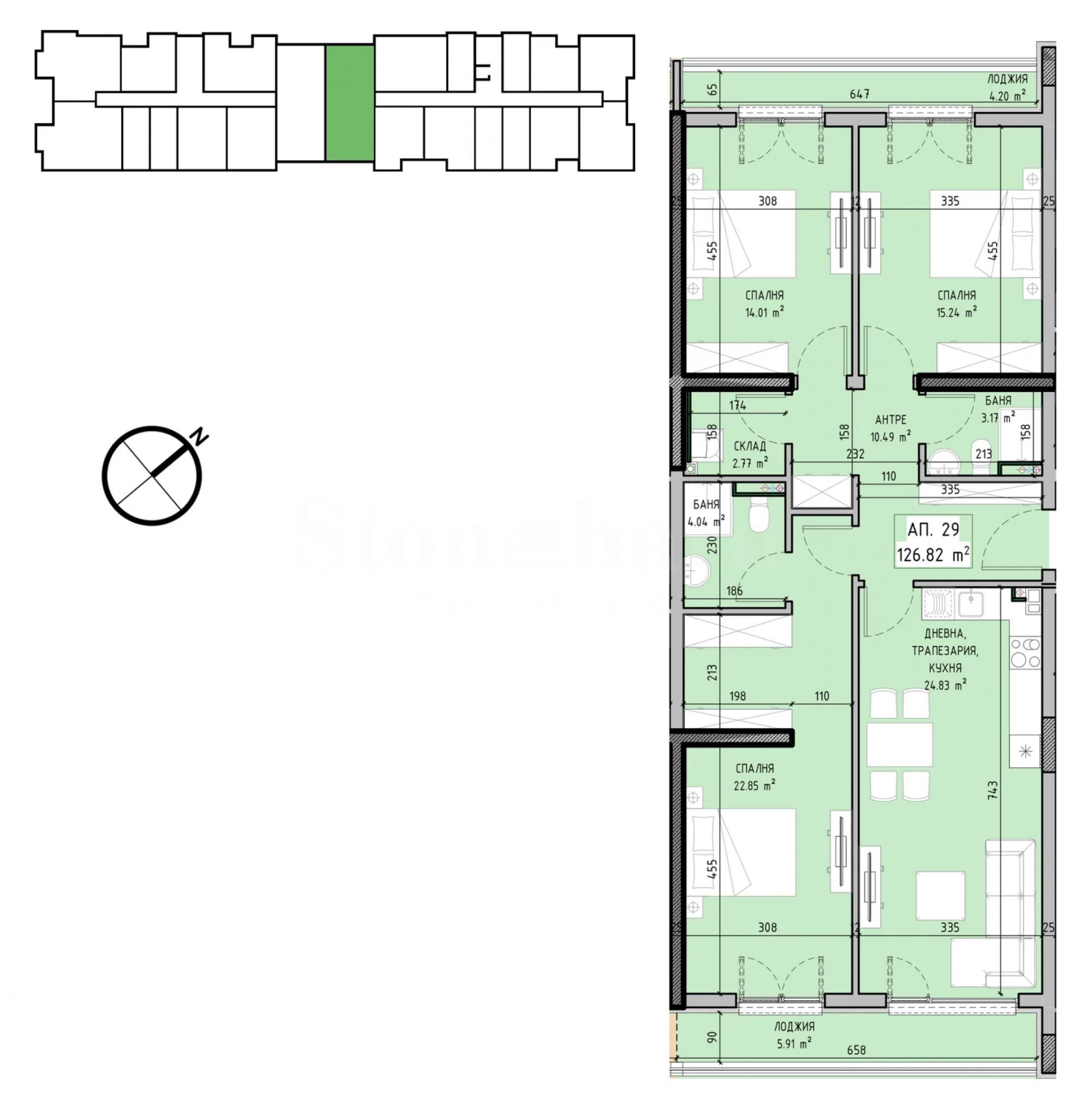
Апартаментът е разположен на трети етаж, с чиста площ 126.82 кв.м и включва:
дневна с трапезария и кухня;
2 бани;
три спални;
антре, склад;
две тераси.
Предлага се в степен на завършеност по БДС.
Офертната цена е по Схема на плащане 1: 50%/30%/10%/10%.
*Схема на плащане 2: 30%/30%/30%/10%.
*Схема на плащане 3: 20%/0%/0%/80%.
Качествен и енергоефективен дом
Сградите са с ниско енергийно потребление, с минимален екологичен отпечатък, монолитно строителство със стоманобетонна конструкция от колони и плочи, както и преградни стени от многокамерни керамични блокове Porotherm 25 на Wienerberger, които гарантират стабилност и ефективност на топло- и звукоизолацията.
Комплексът е проектиран с фасади, осигуряващи оптимално остъкляване както на апартаментите, така и на общите части, с цел висока енергийна ефективност и максимално проникване на естествена светлина. Заложени са също така мерки за висока пожарна безопасност и висока степен на огнеустойчивост. Конструкцията е проектирана да издържа сеизмични натоварвания до IX-та степен по скалата на Медведев-Шпонхойер-Карник.
Сутеренът е проектиран с хидроизолационна вана, осигуряваща цялостна защита от влага под фундамента и по стените. Хидроизолацията е съставена от два пласта битумна мембрана, направена от специално модифициран битум с добавка на термопластични еластомери (SBS). В допълнение, стените са защитени с 5 см XPS изолация и релефна HDPE мембрана за допълнителна устойчивост. Тази система гарантира ефективна защита и дренаж на основите и стените на сутерена, осигурявайки надеждно решение срещу атмосферна и почвена влага.
За сградите е избрана най-висок клас PVC дограма (енергиен клас А++) Schüco LivIng 82, с иновативна 7-камерна пластмасова система за прозорци и троен стъклопакет с отлични топлоизолационни стойности. Висока шумоизолация и защита от студ, влага и течения са гарантирани от допълнителните EPDM уплътнения, осигурява тишина и спокойствие на вашия дом.
Планира се и изграждане на соларни инсталации с цел минимизирането на експлоатационните разходи.
Във вътрешната част на сградите:
• Асансьор от висок клас Orona, със спирки на всеки етаж и капацитет от 6 души, достъп за хора с увреждания;
• Изводи за газ и тръбни инсталации за всеки апартамент до разводка;
• Електрическа мощност до 10 Kw на апартамент, гарантираща безпроблемна работа на всички системи;
• Висок клас входна блиндирана врата Solid 55, с възможност за допълнителна сигурност;
• Видеонаблюдение и контролиран достъп до сградата.
Комплексът разполага и с богато озеленена градина, която включва зони за отдих, детска площадка и обособено пространство за домашни любимци.
Предвидени са специални места за външни тела на климатици с изграден тръбен път и отводняване, за максимално удобство и естетика.
Апартаменти
Комплексът включва общо 138 апартамента, с 125 подземни гаража и паркоместа и 46 надземни паркоместа, осигурявайки гъвкави възможности за паркиране. Апартаментите са проектирани с внимание към всеки детайл и се отличават с просторни и светли помещения, с практични и отворени планировки, които създават усещане за комфорт и позволяват съчетаването на съседни жилища при нужда от разширяване.
Очакваме Вашето запитване
Ако желаете да организирате оглед на имот, който Ви интересува, или да посетите някой от нашите офиси, моля свържете се с нас. За да уговорите ден и час за среща или оглед, можете да се обадите на посочения в обявата телефон или да изпратите запитване чрез електронната поща. Нашият консултант ще Ви съдейства с всички необходими подробности и ще уговори удобно за Вас време.
Търсите подходящия за Вас имот?
Не се колебайте да се свържете с нас и да ни разкажете за Вашите нужди и предпочитания. Нашият екип ще проведе задълбочено проучване на пазара, за да Ви предложи имоти, които точно отговарят на Вашите критерии. Разполагаме с изключително портфолио от висококачествени и ексклузивни жилища, които са достъпни само за нашите клиенти. За да сте първите, които ще получите информация за тях – свържете се с нас.
Допълнителни услуги
Като ценен клиент на нашата компания, Вие ще имате привилегията да ползвате напълно безплатно услугите на нашия опитен юридически екип. В допълнение, предлагаме комплексни решения, включващи имуществена застраховка, безплатна финансова консултация, както и изгодни условия за финансиране. Нашите услуги се разпростират и в сферата на препродажбата, отдаването под наем и управлението на имоти. Осигуряваме висококачествени ремонтни дейности и обзавеждане чрез специализирани фирми, които са част от нашата корпоративна група и са наши дългогодишни професионални партньори.
Местоположение на картата
Бутикови апартаменти в луксозна нова сграда в "Малинова долина"
Малинова долина / София / София / България карта
Клас на сградата: Луксозен
Завършване: Август, 2026 г.
Цени на имотите: 174 575 - 371 115 €
Цени на м²: 2 500 - 2 700 €/м2
ПРОДАЖБА
ПРОЕКТ
Пентхаус с гледка към Витоша и опция за два гаража до "Симеоновско шосе"
Витоша / София / София / България карта
Площ: 300 м2
Цена: 615 500 € /// 2 052 €/м2
ПРАВА
ПРОДАЖБА
ПРОЕКТ
Ексклузивен апартамент с три спални в Gloria Palace Residence
Горна баня / София / София / България карта
Площ: 207.43 м2
Цена: 430 000 € /// 2 073 €/м2
Изберете тази опция и ще Ви уведомяваме по имейла при настъпили промени по статуса на офертата, например:
• Промяна на цената;
• Имотът влезе в промоционално предложение;
• Имотът бъде резервран или продаден;
• Други новости, свързани с имота.
• Имотът бъде свален от продажба;
Може да се отпишете от нотификациите лесно, когато пожелаете.• Промени по условията на офертата;
• Промяна в сумата на инвестицията;
• Предметът на инвестицията е изцяло реализиран;
• Валидността на офертата е изтекла.
Може лесно да се отпишете, ако в бъдеще решите, че повече не желаете да следите тази оферта.
За да получите абсолютно коректна информация относно свободните имоти, налични за продажба в проекта и техните актуални цени, моля свържете се с нашия офис на посочената информация за контакт.
Ние полагаме усилия, за да поддържаме нашите ценови листи абсолютно актуални и коректни, но често това е невъзможно, предвид големия брой нови проекти в нашия каталог и силно динамичните продажби.
Благодарим Ви за проявеното разбиране!



...В качеството си на доказан спецалист Stonehard PREMIER работи по пазарното позициониране и продажбите на множество проекти ново строителство, чиято реализация ни е поверена от водещи предприемачески компании в България и чужбина...