Тристаен апартамент в нов комплекс, близо до метростанция и Paradise Mall
Цена:
399 000 € (2 713 €/м2)
*Указаните цени и наличности от свободни имоти в проекта са индикативни. За актуална ценова информация, моля свържете се с нас!
Реф. Номер: SOF-137163 / 2385
Местоположение: Кръстова вада / София карта
Тип на сграда/комплекс: Жилищен
Площи на жилищата: 147.05 м2
Типове имоти в сградата/комплекса: Тристайни апартаменти
Реф. Номер: SOF-137163 / 2385
Местоположение: Кръстова вада / София
Тип на сграда/комплекс: Жилищен
Клас на сградата/комплекса:
Площи на жилищата: 147.05 м2
Типове имоти в сградата/комплекса: Тристайни апартаменти
В района има всички удобства като магазини и супермаркети, училища и детски градини, спирки на градски транспорт, удобства за спорт и отдих.
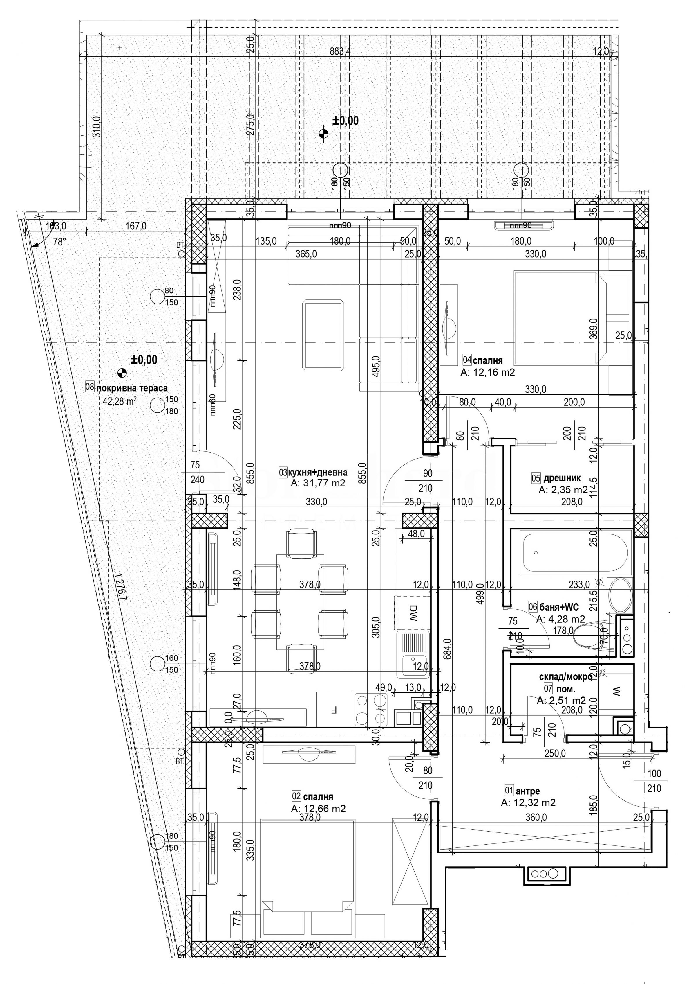
Тристайният апартамент се намира на първи етаж и е с обща площ 147.05 кв.м (нетна площ 93.07 кв.м + тераса 42.28 кв.м + общи части 11.70 кв.м).
● 2 спални;
● отворен кухненски бокс, кът за хранене, хол;
● тераса;
● баня с тоалетна;
● мокро помещение.
Комплексът се състои от две сгради А и Б.
Сградите са 6-етажни, с партерен етаж и подземен паркинг.
На жилищните етажи са разположени двустайни, тристайни и четиристайни апартаменти, които се предлагат за продажба качествено завършени по БДС, на шпакловка и замазка.
Технически характеристики:
● Тухли – Винербергер;
● Фасада – комбинация от камък и HPL с 10 см топлоизолация от каменна вата;
● Дограма – Rehau – 6 камерна, троен стъклопакет, стъклата са 4 сезона;
● Врати – Solid;
● Отопление – има изградена инсталация за термопомпа;
● Парапети – стъклени;
● Асансьор – Орона – испански;
● Общи части – гранитогрес и латекс.
Схема на плащане:
● 20% при подписване на предварителен договор;
● Заплащането на остатъчната сума се договаря индивидуално с инвеститора!
Очакваме Вашето запитване
Ако желаете да организирате оглед на имот, който Ви интересува, или да посетите някой от нашите офиси, моля свържете се с нас. За да уговорите ден и час за среща или оглед, можете да се обадите на посочения в обявата телефон или да изпратите запитване чрез електронната поща. Нашият консултант ще Ви съдейства с всички необходими подробности и ще уговори удобно за Вас време.
Търсите подходящия за Вас имот?
Не се колебайте да се свържете с нас и да ни разкажете за Вашите нужди и предпочитания. Нашият екип ще проведе задълбочено проучване на пазара, за да Ви предложи имоти, които точно отговарят на Вашите критерии. Разполагаме с изключително портфолио от висококачествени и ексклузивни жилища, които са достъпни само за нашите клиенти. За да сте първите, които ще получите информация за тях – свържете се с нас.
Допълнителни услуги
Като ценен клиент на нашата компания, Вие ще имате привилегията да ползвате напълно безплатно услугите на нашия опитен юридически екип. В допълнение, предлагаме комплексни решения, включващи имуществена застраховка, безплатна финансова консултация, както и изгодни условия за финансиране. Нашите услуги се разпростират и в сферата на препродажбата, отдаването под наем и управлението на имоти. Осигуряваме висококачествени ремонтни дейности и обзавеждане чрез специализирани фирми, които са част от нашата корпоративна група и са наши дългогодишни професионални партньори.
Местоположение на картата
ПРОДАЖБА
ПРОЕКТ
Тристаен апартамент с паркомясто във Flora Park
Манастирски ливади - Изток / София / София / България карта
Площ: 128.15 м2
Цена: 500 000 € /// 3 902 €/м2
Бутикови апартаменти в луксозна нова сграда в "Малинова долина"
Малинова долина / София / София / България карта
Клас на сградата: Луксозен
Завършване: Август, 2026 г.
Цени на имотите: 174 575 - 371 115 €
Цени на м²: 2 500 - 2 700 €/м2
Модерна жилищна сграда, съчетаваща спокойствие, стил и удобство
Овча купел 2 / София / София / България карта
Цени на имотите: 152 017 - 229 367 €
Цени на м²: 1 950 - 2 250 €/м2
Изберете тази опция и ще Ви уведомяваме по имейла при настъпили промени по статуса на офертата, например:
• Промяна на цената;
• Имотът влезе в промоционално предложение;
• Имотът бъде резервран или продаден;
• Други новости, свързани с имота.
• Имотът бъде свален от продажба;
Може да се отпишете от нотификациите лесно, когато пожелаете.• Промени по условията на офертата;
• Промяна в сумата на инвестицията;
• Предметът на инвестицията е изцяло реализиран;
• Валидността на офертата е изтекла.
Може лесно да се отпишете, ако в бъдеще решите, че повече не желаете да следите тази оферта.
За да получите абсолютно коректна информация относно свободните имоти, налични за продажба в проекта и техните актуални цени, моля свържете се с нашия офис на посочената информация за контакт.
Ние полагаме усилия, за да поддържаме нашите ценови листи абсолютно актуални и коректни, но често това е невъзможно, предвид големия брой нови проекти в нашия каталог и силно динамичните продажби.
Благодарим Ви за проявеното разбиране!



...В качеството си на доказан спецалист Stonehard PREMIER работи по пазарното позициониране и продажбите на множество проекти ново строителство, чиято реализация ни е поверена от водещи предприемачески компании в България и чужбина...