Тристаен апартамент в нов жилищен комплекс в кв. "Малинова долина"
на картата
Цена:
274 907 € (2 200 €/м2)
*Указаните цени и наличности от свободни имоти в проекта са индикативни. За актуална ценова информация, моля свържете се с нас!
Реф. Номер: AP 136303 / 4912
Местоположение: Малинова долина / София карта
Тип на сграда/комплекс: Жилищен
Площи на жилищата: 124.96 м2
Типове имоти в сградата/комплекса: Тристайни апартаменти
Реф. Номер: AP 136303 / 4912
Местоположение: Малинова долина / София
Тип на сграда/комплекс: Жилищен
Клас на сградата/комплекса:
Площи на жилищата: 124.96 м2
Типове имоти в сградата/комплекса: Тристайни апартаменти
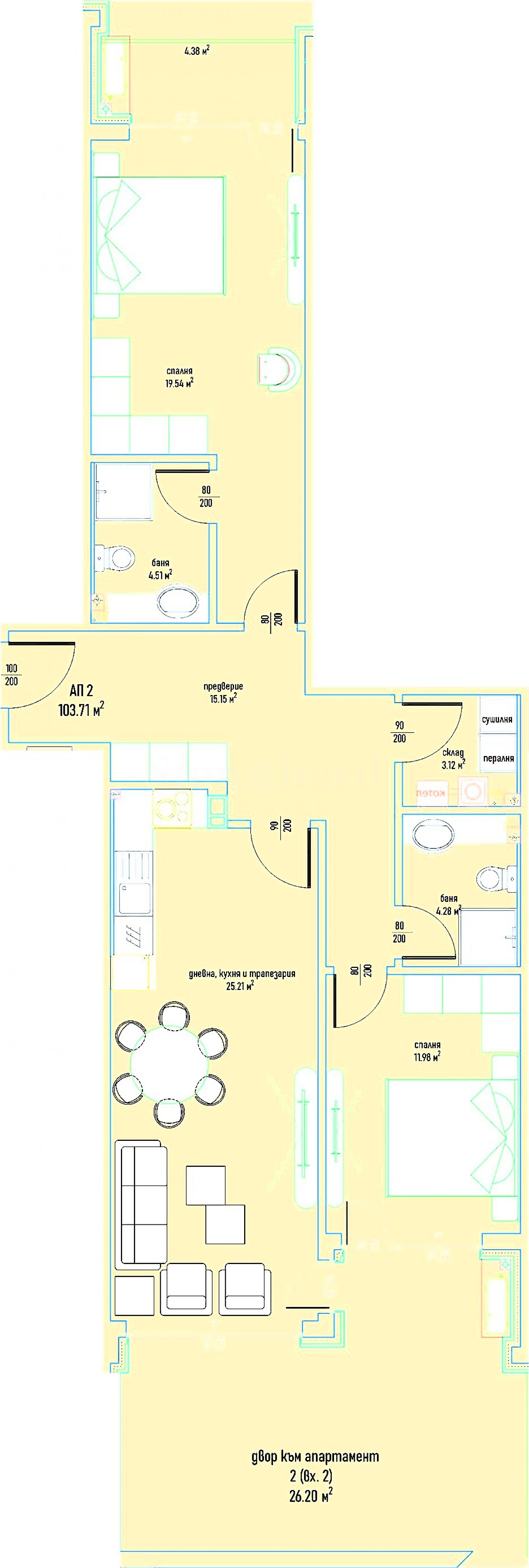
Апартаментът е тристаен, с обща площ 124.96 кв.м (нетна площ 103.71 кв.м + общи части 21.25 кв.м) и е разположен на първи етаж.
Разпределение:
• входно антре;
• кухня с трапезария и всекидневна;
•2 спални;
•2 бани;
•тераса;
•склад.
БЕЗ КОМИСИОНА!
Изгодна схема на плащане:
•2 000 евро - депозит за стопиране на имота от продажба;
•10% - при подписване на Предварителен договор;
•90% - при снабдяване с Акт 16.
Комплексът е единствен по рода си в цяла София, вдъхновяващ с живопис и спираща дъха панорама към Витоша. Състои се от седем входа с просторни луксозни общи части, шест надземни и два подземни етажа с гаражи и паркоместа. Апартаментите са просторни и функционални, в по-голямата си част с изглед към Витоша, с отлични разпределения и малък процент общи части. Комплексът разполага с богато озеленен вътрешен двор с детски площадки, фонтани и барбекю зона, контролиран достъп, охрана и видеонаблюдение.
Фасадното оформление на сградата е с окачена фасада от еталбонд и HPL облицовка. Aсансьор Orona 3G X15, 5-камерна PVC дограма, троен стъклопакет, изградена климатична инсталация и блиндирани входни врати.
Отоплението е на газ и климатици.
Очакваме Вашето запитване
Ако желаете да организирате оглед на имот, който Ви интересува, или да посетите някой от нашите офиси, моля свържете се с нас. За да уговорите ден и час за среща или оглед, можете да се обадите на посочения в обявата телефон или да изпратите запитване чрез електронната поща. Нашият консултант ще Ви съдейства с всички необходими подробности и ще уговори удобно за Вас време.
Търсите подходящия за Вас имот?
Не се колебайте да се свържете с нас и да ни разкажете за Вашите нужди и предпочитания. Нашият екип ще проведе задълбочено проучване на пазара, за да Ви предложи имоти, които точно отговарят на Вашите критерии. Разполагаме с изключително портфолио от висококачествени и ексклузивни жилища, които са достъпни само за нашите клиенти. За да сте първите, които ще получите информация за тях – свържете се с нас.
Допълнителни услуги
Като ценен клиент на нашата компания, Вие ще имате привилегията да ползвате напълно безплатно услугите на нашия опитен юридически екип. В допълнение, предлагаме комплексни решения, включващи имуществена застраховка, безплатна финансова консултация, както и изгодни условия за финансиране. Нашите услуги се разпростират и в сферата на препродажбата, отдаването под наем и управлението на имоти. Осигуряваме висококачествени ремонтни дейности и обзавеждане чрез специализирани фирми, които са част от нашата корпоративна група и са наши дългогодишни професионални партньори.
Местоположение на картата
ПРОДАЖБА
ПРОЕКТ
Тристаен апартамент с две тераси и подземно паркомясто в комплекс Кошер
Манастирски ливади - Изток / София / София / България карта
Площ: 129 м2
Цена: 580 000 € /// 4 496 €/м2
Апартаменти в модерен комплекс до бъдещ обществен парк и метростанция
Витоша / София / София / България карта
Планирано начало: Януари, 2026 г.
Очаквано завършване: 2028 г.
Цени на имотите: 126 773 - 307 807 € (без ДДС)
Цени на м²: 2 062 - 2 320 €/м2 (без ДДС)
ПРОДАЖБА
ПРОЕКТ
Тристаен апартамент за продажба в кв. Оборище, до парк "Заимов"
Оборище / София / София / България карта
Площ: 137.18 м2
Цена: 425 300 € /// 3 100 €/м2
Изберете тази опция и ще Ви уведомяваме по имейла при настъпили промени по статуса на офертата, например:
• Промяна на цената;
• Имотът влезе в промоционално предложение;
• Имотът бъде резервран или продаден;
• Други новости, свързани с имота.
• Имотът бъде свален от продажба;
Може да се отпишете от нотификациите лесно, когато пожелаете.• Промени по условията на офертата;
• Промяна в сумата на инвестицията;
• Предметът на инвестицията е изцяло реализиран;
• Валидността на офертата е изтекла.
Може лесно да се отпишете, ако в бъдеще решите, че повече не желаете да следите тази оферта.
За да получите абсолютно коректна информация относно свободните имоти, налични за продажба в проекта и техните актуални цени, моля свържете се с нашия офис на посочената информация за контакт.
Ние полагаме усилия, за да поддържаме нашите ценови листи абсолютно актуални и коректни, но често това е невъзможно, предвид големия брой нови проекти в нашия каталог и силно динамичните продажби.
Благодарим Ви за проявеното разбиране!



...В качеството си на доказан спецалист Stonehard PREMIER работи по пазарното позициониране и продажбите на множество проекти ново строителство, чиято реализация ни е поверена от водещи предприемачески компании в България и чужбина...