Обзаведен двустаен апартамент с паркомясто в престижния комплекс „Театрална Парк Резиденс“
Цена:
394 420 € (без ДДС) (6 320 €/м2 (без ДДС))
*Указаните цени и наличности от свободни имоти в проекта са индикативни. За актуална ценова информация, моля свържете се с нас!
Реф. Номер: Kbs 136080 / 3899
Местоположение: кв. Оборище / гр. София карта
Тип на сграда/комплекс: Жилищен
Площи на жилищата: 62.41 м2
Типове имоти в сградата/комплекса: Двустайни апартаменти
Реф. Номер: Kbs 136080 / 3899
Местоположение: кв. Оборище / гр. София
Тип на сграда/комплекс: Жилищен
Клас на сградата/комплекса:
Площи на жилищата: 62.41 м2
Типове имоти в сградата/комплекса: Двустайни апартаменти
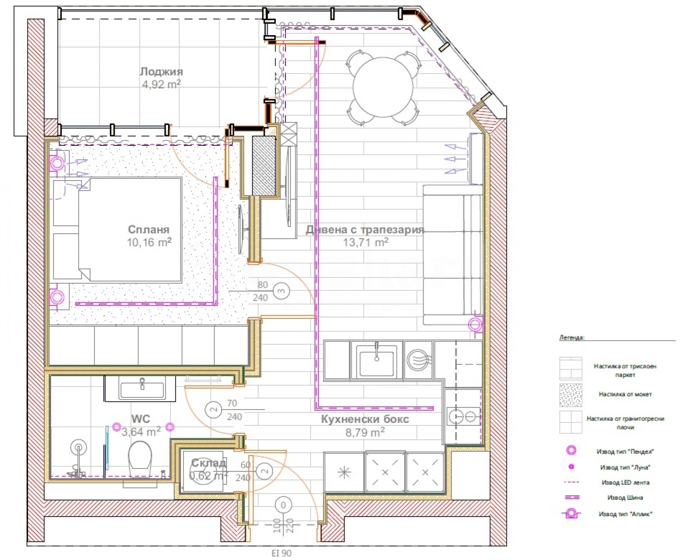
Представяме Ви за продажба двустаен апартамент в престижния комплекс „Театрална Парк Резиденс“, разположен на 6-ти етаж с североизточно и източно изложение. Жилището е с 62,41 m² обща площ и 52,24 m² чиста площ, с отлично разпределение и модерна архитектурна линия.
Паркомясто 2074 е включено в цената.
Разпределение:
•Входно антре;
•Дневна с трапезария (13,71 m²) – просторна и светла, с панорамни прозорци;
•Кухненски бокс (8,79 m²) – функционално разположен и визуално отделен;
•Спалня (10,16 m²);
•Баня с WC (3,64 m²);
•Складово помещение (0,62 m²);
•Лоджия / тераса (4,92 m²);
•Интериор – ще бъде изпълнен точно както е на визуализациите.
Апартаментът все още не е обзаведен, но ще бъде завършен изцяло в стила и детайлите, показани във визуализациите: модерен минимализъм с луксозно скандинавско усещане, неутрални тонове, висок клас материали и прецизно LED осветление.
Планираното интериорно решение включва:
•Топли дървесни текстури и графитени акценти;
•Мека мебел в сиво и маслинено;
•Кръгла трапезна маса и комфортни тапицирани столове;
•Стилни декоративни етажерки и вградени решения;
•Линейно и акцентно осветление, подчертаващо геометрията;
•Финни, високи завеси, пропускащи светлина;
•Жилището ще бъде завършено до степен, напълно съответстваща на визуализациите – включително материали, цветове и общ стил.
Цена и срок на завършване:
- Цена на апартамента: 394420 EUR без ДДС;
- Паркомясто: 40000 EUR без ДДС;
- Общо: 354420 EUR без ДДС.
Очакваме Вашето запитване
Ако желаете да организирате оглед на имот, който Ви интересува, или да посетите някой от нашите офиси, моля свържете се с нас. За да уговорите ден и час за среща или оглед, можете да се обадите на посочения в обявата телефон или да изпратите запитване чрез електронната поща. Нашият консултант ще Ви съдейства с всички необходими подробности и ще уговори удобно за Вас време.
Търсите подходящия за Вас имот?
Не се колебайте да се свържете с нас и да ни разкажете за Вашите нужди и предпочитания. Нашият екип ще проведе задълбочено проучване на пазара, за да Ви предложи имоти, които точно отговарят на Вашите критерии. Разполагаме с изключително портфолио от висококачествени и ексклузивни жилища, които са достъпни само за нашите клиенти. За да сте първите, които ще получите информация за тях – свържете се с нас.
Допълнителни услуги
Като ценен клиент на нашата компания, Вие ще имате привилегията да ползвате напълно безплатно услугите на нашия опитен юридически екип. В допълнение, предлагаме комплексни решения, включващи имуществена застраховка, безплатна финансова консултация, както и изгодни условия за финансиране. Нашите услуги се разпростират и в сферата на препродажбата, отдаването под наем и управлението на имоти. Осигуряваме висококачествени ремонтни дейности и обзавеждане чрез специализирани фирми, които са част от нашата корпоративна група и са наши дългогодишни професионални партньори.
Местоположение на картата
ПРОДАЖБА
ПРОЕКТ
Двустаен апартамент за продажба в бутикова сграда „до ключ“с АКТ 16 юни в кв. „Кръстова вада“
кв. Кръстова вада / гр. София / София / България карта
Площ: 76.78 м2
Цена: 268 730 € /// 3 500 €/м2
ПРОДАЖБА
ПРОЕКТ
Двустаен апартамент с паркомясто на 8-ми етаж в „Театрална Парк Резиденс“
кв. Оборище / гр. София / София / България карта
Площ: 64.44 м2
Цена: 416 974 € /// 6 471 €/м2
ПРОДАЖБА
ПРОЕКТ
Двустаен апартамент за продажба, до ключ, ново строителство в кв. „Кръстова вада“ АКТ 16 юни
кв. Кръстова вада / гр. София / София / България карта
Площ: 81.60 м2
Цена: 285 600 € /// 3 500 €/м2
Изберете тази опция и ще Ви уведомяваме по имейла при настъпили промени по статуса на офертата, например:
• Промяна на цената;
• Имотът влезе в промоционално предложение;
• Имотът бъде резервран или продаден;
• Други новости, свързани с имота.
• Имотът бъде свален от продажба;
Може да се отпишете от нотификациите лесно, когато пожелаете.• Промени по условията на офертата;
• Промяна в сумата на инвестицията;
• Предметът на инвестицията е изцяло реализиран;
• Валидността на офертата е изтекла.
Може лесно да се отпишете, ако в бъдеще решите, че повече не желаете да следите тази оферта.
За да получите абсолютно коректна информация относно свободните имоти, налични за продажба в проекта и техните актуални цени, моля свържете се с нашия офис на посочената информация за контакт.
Ние полагаме усилия, за да поддържаме нашите ценови листи абсолютно актуални и коректни, но често това е невъзможно, предвид големия брой нови проекти в нашия каталог и силно динамичните продажби.
Благодарим Ви за проявеното разбиране!



...В качеството си на доказан спецалист Stonehard PREMIER работи по пазарното позициониране и продажбите на множество проекти ново строителство, чиято реализация ни е поверена от водещи предприемачески компании в България и чужбина...