Реф. Номер: STO-135374 / 4812
Местоположение: Малинова долина / София карта
Тип на сграда/комплекс: Жилищен
Площи на жилищата: 49.02 м2
Типове имоти в сградата/комплекса: Едностайни апартаменти
Реф. Номер: STO-135374
Местоположение: Малинова долина / София
Тип на сграда/комплекс: Жилищен
Клас на сградата/комплекса:
Площи на жилищата: 49.02 м2
Типове имоти в сградата/комплекса: Едностайни апартаменти
Комплексът включва три свободностоящи жилищни сгради с подземен паркинг, уютни общи пространства и изцяло жилищна надземна част на три етажа и подпокривно ниво.
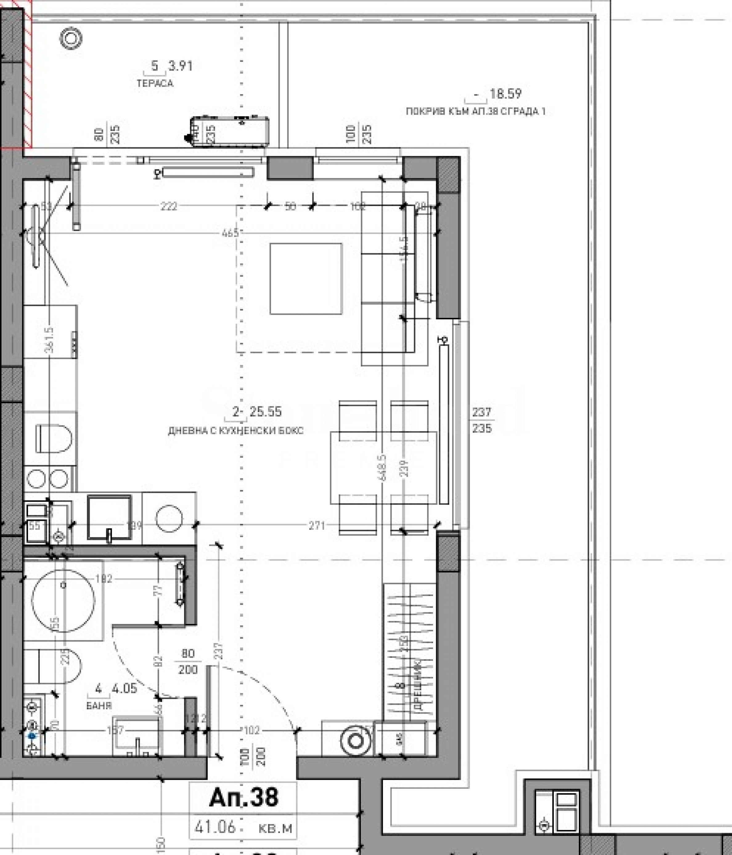
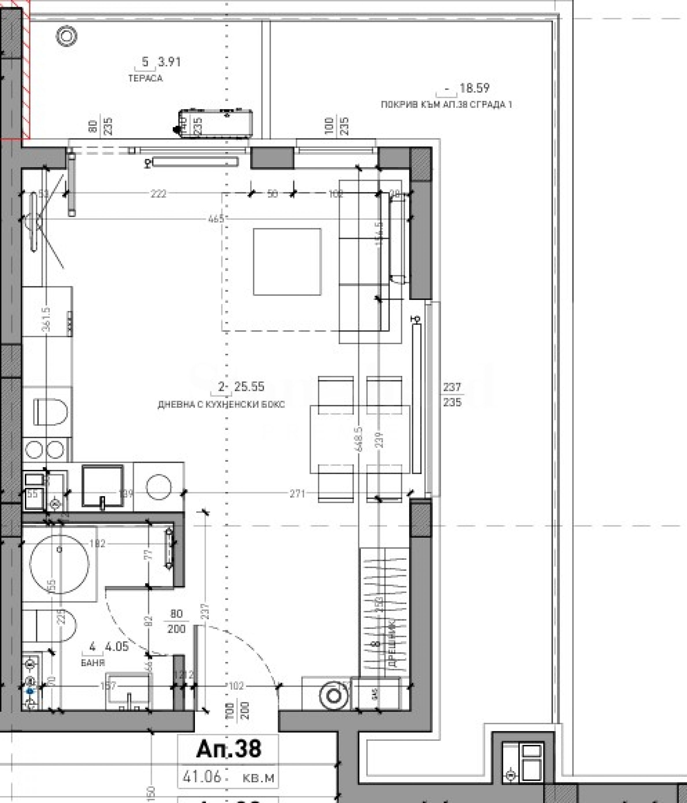
Апартаментът е разположен в Сграда 1, на 4-ти етаж и има обща площ 49.02 кв.м, чиста площ - 41.06 кв.м. Жилището се състои от антре, баня/тоалетна, дневна с кухня и тераса. Към имота има прилежащо покривно пространство от 18.59 кв.м.
Продава се в степен на завършеност по БДС.
*Офертната цена е по Схема на плащане - 1 (50%/30%/10%/10%).
Характеристики на Етап 1:
• Етап 1 е в процес на реализация с планирано завършване през март 2028 г.
• 132 функционални жилища – едностайни, двустайни и тристайни апартаменти;
• 134 подземни паркоместа и гаражи;
• Зелени площи и зони за отдих, детски площадки, безопасна и приятна семейна среда.
Стартирал е и Етап 2 от комплекса, от още три сгради. Двата етапа ще оформят съвременен жилищен ансамбъл в сърцето на "Малинова долина".
Качествено строителство:
• Стоманобетонна конструкция;
• Покриви с XPS топлоизолация;
• PVC дограма, троен стъклопакет със стъкло "четири сезона";
• Отопление на ток чрез климатици и на газ;
• Светла височина на жилищните помещения - 2.60 м;
• Тухлени зидарии 25 см.
Локация и предимства:
• Тих и зелен район, в подножието на Витоша;
• Непосредствена близост до бул. „Симеоновско шосе“ и Околовръстен път;
• До НСА, Студентски град, супермаркети, спортни центрове и заведения;
• Развиваща се инфраструктура и инвестиционен потенциал.
Гъвкави схеми на плащане - избор според бюджета и етапа на строителството:
Схема №1:
• 50% при предварителен договор;
• 30% при Акт 14;
• 10% при Акт 15;
• 10% при Акт 16.
Схема №2:
• 30% при предварителен договор;
• 30% при Акт 14;
• 30% при Акт 15;
• 10% при Акт 16.
Схема №3:
• 30% при предварителен договор;
• 70% при Акт 16.
Защо да изберете този проект:
• Съвременна архитектура и комфортни жилищни разпределения;
• Сигурна и зелена среда за живеене;
• Отлична инвестиция в бързо развиващ се район на София;
• Баланс между градски удобства и близост до природата.
Очакваме Вашето запитване
Ако желаете да организирате оглед на имот, който Ви интересува, или да посетите някой от нашите офиси, моля свържете се с нас. За да уговорите ден и час за среща или оглед, можете да се обадите на посочения в обявата телефон или да изпратите запитване чрез електронната поща. Нашият консултант ще Ви съдейства с всички необходими подробности и ще уговори удобно за Вас време.
Търсите подходящия за Вас имот?
Не се колебайте да се свържете с нас и да ни разкажете за Вашите нужди и предпочитания. Нашият екип ще проведе задълбочено проучване на пазара, за да Ви предложи имоти, които точно отговарят на Вашите критерии. Разполагаме с изключително портфолио от висококачествени и ексклузивни жилища, които са достъпни само за нашите клиенти. За да сте първите, които ще получите информация за тях – свържете се с нас.
Допълнителни услуги
Като ценен клиент на нашата компания, Вие ще имате привилегията да ползвате напълно безплатно услугите на нашия опитен юридически екип. В допълнение, предлагаме комплексни решения, включващи имуществена застраховка, безплатна финансова консултация, както и изгодни условия за финансиране. Нашите услуги се разпростират и в сферата на препродажбата, отдаването под наем и управлението на имоти. Осигуряваме висококачествени ремонтни дейности и обзавеждане чрез специализирани фирми, които са част от нашата корпоративна група и са наши дългогодишни професионални партньори.
Местоположение на картата
Комплексът включва три свободностоящи жилищни сгради с подземен паркинг, уютни общи пространства и изцяло жилищна надземна част на три етажа и подпокривно ниво.
Апартаментът е разположен в Сграда 1, на 4-ти етаж и има обща площ 49.02 кв.м, чиста площ - 41.06 кв.м. Жилището се състои от антре, баня/тоалетна, дневна с кухня и тераса. Към имота има прилежащо покривно пространство от 18.59 кв.м.
Продава се в степен на завършеност по БДС.
*Офертната цена е по Схема на плащане - 1 (50%/30%/10%/10%).
Характеристики на Етап 1:
• Етап 1 е в процес на реализация с планирано завършване през март 2028 г.
• 132 функционални жилища – едностайни, двустайни и тристайни апартаменти;
• 134 подземни паркоместа и гаражи;
• Зелени площи и зони за отдих, детски площадки, безопасна и приятна семейна среда.
Стартирал е и Етап 2 от комплекса, от още три сгради. Двата етапа ще оформят съвременен жилищен ансамбъл в сърцето на "Малинова долина".
Качествено строителство:
• Стоманобетонна конструкция;
• Покриви с XPS топлоизолация;
• PVC дограма, троен стъклопакет със стъкло "четири сезона";
• Отопление на ток чрез климатици и на газ;
• Светла височина на жилищните помещения - 2.60 м;
• Тухлени зидарии 25 см.
Локация и предимства:
• Тих и зелен район, в подножието на Витоша;
• Непосредствена близост до бул. „Симеоновско шосе“ и Околовръстен път;
• До НСА, Студентски град, супермаркети, спортни центрове и заведения;
• Развиваща се инфраструктура и инвестиционен потенциал.
Гъвкави схеми на плащане - избор според бюджета и етапа на строителството:
Схема №1:
• 50% при предварителен договор;
• 30% при Акт 14;
• 10% при Акт 15;
• 10% при Акт 16.
Схема №2:
• 30% при предварителен договор;
• 30% при Акт 14;
• 30% при Акт 15;
• 10% при Акт 16.
Схема №3:
• 30% при предварителен договор;
• 70% при Акт 16.
Защо да изберете този проект:
• Съвременна архитектура и комфортни жилищни разпределения;
• Сигурна и зелена среда за живеене;
• Отлична инвестиция в бързо развиващ се район на София;
• Баланс между градски удобства и близост до природата.
Очакваме Вашето запитване
Ако желаете да организирате оглед на имот, който Ви интересува, или да посетите някой от нашите офиси, моля свържете се с нас. За да уговорите ден и час за среща или оглед, можете да се обадите на посочения в обявата телефон или да изпратите запитване чрез електронната поща. Нашият консултант ще Ви съдейства с всички необходими подробности и ще уговори удобно за Вас време.
Търсите подходящия за Вас имот?
Не се колебайте да се свържете с нас и да ни разкажете за Вашите нужди и предпочитания. Нашият екип ще проведе задълбочено проучване на пазара, за да Ви предложи имоти, които точно отговарят на Вашите критерии. Разполагаме с изключително портфолио от висококачествени и ексклузивни жилища, които са достъпни само за нашите клиенти. За да сте първите, които ще получите информация за тях – свържете се с нас.
Допълнителни услуги
Като ценен клиент на нашата компания, Вие ще имате привилегията да ползвате напълно безплатно услугите на нашия опитен юридически екип. В допълнение, предлагаме комплексни решения, включващи имуществена застраховка, безплатна финансова консултация, както и изгодни условия за финансиране. Нашите услуги се разпростират и в сферата на препродажбата, отдаването под наем и управлението на имоти. Осигуряваме висококачествени ремонтни дейности и обзавеждане чрез специализирани фирми, които са част от нашата корпоративна група и са наши дългогодишни професионални партньори.
Комплексът включва три свободностоящи жилищни сгради с подземен паркинг, уютни общи пространства и изцяло жилищна надземна част на три етажа и подпокривно ниво.
Апартаментът е разположен в Сграда 1, на 4-ти етаж и има обща площ 49.02 кв.м, чиста площ - 41.06 кв.м. Жилището се състои от антре, баня/тоалетна, дневна с кухня и тераса. Към имота има прилежащо покривно пространство от 18.59 кв.м.
Продава се в степен на завършеност по БДС.
*Офертната цена е по Схема на плащане - 1 (50%/30%/10%/10%).
Характеристики на Етап 1:
• Етап 1 е в процес на реализация с планирано завършване през март 2028 г.
• 132 функционални жилища – едностайни, двустайни и тристайни апартаменти;
• 134 подземни паркоместа и гаражи;
• Зелени площи и зони за отдих, детски площадки, безопасна и приятна семейна среда.
Стартирал е и Етап 2 от комплекса, от още три сгради. Двата етапа ще оформят съвременен жилищен ансамбъл в сърцето на "Малинова долина".
Качествено строителство:
• Стоманобетонна конструкция;
• Покриви с XPS топлоизолация;
• PVC дограма, троен стъклопакет със стъкло "четири сезона";
• Отопление на ток чрез климатици и на газ;
• Светла височина на жилищните помещения - 2.60 м;
• Тухлени зидарии 25 см.
Локация и предимства:
• Тих и зелен район, в подножието на Витоша;
• Непосредствена близост до бул. „Симеоновско шосе“ и Околовръстен път;
• До НСА, Студентски град, супермаркети, спортни центрове и заведения;
• Развиваща се инфраструктура и инвестиционен потенциал.
Гъвкави схеми на плащане - избор според бюджета и етапа на строителството:
Схема №1:
• 50% при предварителен договор;
• 30% при Акт 14;
• 10% при Акт 15;
• 10% при Акт 16.
Схема №2:
• 30% при предварителен договор;
• 30% при Акт 14;
• 30% при Акт 15;
• 10% при Акт 16.
Схема №3:
• 30% при предварителен договор;
• 70% при Акт 16.
Защо да изберете този проект:
• Съвременна архитектура и комфортни жилищни разпределения;
• Сигурна и зелена среда за живеене;
• Отлична инвестиция в бързо развиващ се район на София;
• Баланс между градски удобства и близост до природата.
Очакваме Вашето запитване
Ако желаете да организирате оглед на имот, който Ви интересува, или да посетите някой от нашите офиси, моля свържете се с нас. За да уговорите ден и час за среща или оглед, можете да се обадите на посочения в обявата телефон или да изпратите запитване чрез електронната поща. Нашият консултант ще Ви съдейства с всички необходими подробности и ще уговори удобно за Вас време.
Търсите подходящия за Вас имот?
Не се колебайте да се свържете с нас и да ни разкажете за Вашите нужди и предпочитания. Нашият екип ще проведе задълбочено проучване на пазара, за да Ви предложи имоти, които точно отговарят на Вашите критерии. Разполагаме с изключително портфолио от висококачествени и ексклузивни жилища, които са достъпни само за нашите клиенти. За да сте първите, които ще получите информация за тях – свържете се с нас.
Допълнителни услуги
Като ценен клиент на нашата компания, Вие ще имате привилегията да ползвате напълно безплатно услугите на нашия опитен юридически екип. В допълнение, предлагаме комплексни решения, включващи имуществена застраховка, безплатна финансова консултация, както и изгодни условия за финансиране. Нашите услуги се разпростират и в сферата на препродажбата, отдаването под наем и управлението на имоти. Осигуряваме висококачествени ремонтни дейности и обзавеждане чрез специализирани фирми, които са част от нашата корпоративна група и са наши дългогодишни професионални партньори.
Апартаменти в Етап 1 на модерен комплекс близо до "Симеоновско шосе"
Малинова долина / София / София / България карта
Завършване: Март, 2028 г.
Цени на имотите: 114 096 - 247 180 €
Цени на м²: 1 828 - 2 296 €/м2
ПРАВА
ПРОДАЖБА
ПРОЕКТ
Едностаен апартамент с паркомясто в OKINAWA Boutique Residence
Малинова долина / София / София / България карта
Клас на сградата/комплекса: Висок стандарт
Площ: 55.85 м2
Цена: 116 354 € /// 2 083 €/м2
Нов жилищен проект от осем сгради с различни типове апартаменти в кв."Малинова долина"
Малинова долина / София / София / България карта
Завършване: Декември, 2028 г.
Цени на имотите: 94 500 - 209 500 €
Цени на м²: 1 738 - 1 933 €/м2
Изберете тази опция и ще Ви уведомяваме по имейла при настъпили промени по статуса на офертата, например:
• Промяна на цената;
• Имотът влезе в промоционално предложение;
• Имотът бъде резервран или продаден;
• Други новости, свързани с имота.
• Имотът бъде свален от продажба;
Може да се отпишете от нотификациите лесно, когато пожелаете.• Промени по условията на офертата;
• Промяна в сумата на инвестицията;
• Предметът на инвестицията е изцяло реализиран;
• Валидността на офертата е изтекла.
Може лесно да се отпишете, ако в бъдеще решите, че повече не желаете да следите тази оферта.



...В качеството си на доказан спецалист Stonehard PREMIER работи по пазарното позициониране и продажбите на множество проекти ново строителство, чиято реализация ни е поверена от водещи предприемачески компании в България и чужбина...