Самостоятелна къща с двор в комплекс от къщи в кв. Сеславци, гр. София
Цена:
345 000 €
*Указаните цени и наличности от свободни имоти в проекта са индикативни. За актуална ценова информация, моля свържете се с нас!
Реф. Номер: SOF-135289 / 4803
Местоположение: кв. Сеславци / гр. София карта
Тип на сграда/комплекс: Жилищен
Площи на жилищата: 180 м2
Типове имоти в сградата/комплекса: Къщи
Реф. Номер: SOF-135289 / 4803
Местоположение: кв. Сеславци / гр. София
Тип на сграда/комплекс: Жилищен
Клас на сградата/комплекса:
Площи на жилищата: 180 м2
Типове имоти в сградата/комплекса: Къщи
Проектът включва изграждането на модерни, уютни и енергийно ефективни самостоятелни къщи в кв. "Сеславци", разположен в североизточната част на София. Този район е известен със своята красива природа, чист въздух и спокойна атмосфера, което го прави идеалното място за бягство от градската среда.
Основни характеристики:
• Тип имоти: самостоятелни къщи с три спални;
• Брой къщи: 8;
• Площ на парцелите: oт 340 до 570 кв.м;
• Застроена площ на къщите: oт 180 до 258 кв.м.
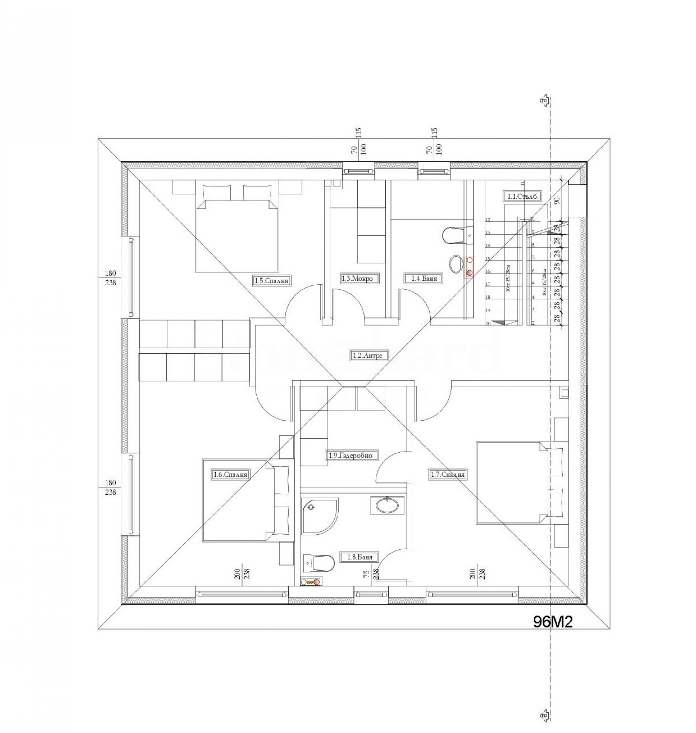
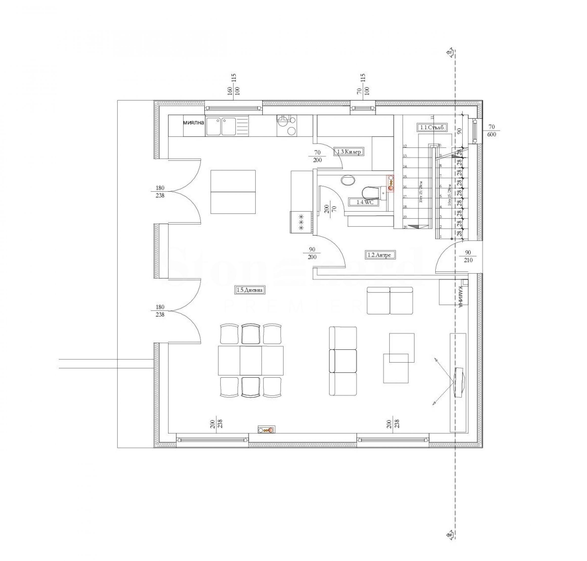
Разпределение на къщи от №3 до №8 включително:
• Ниво етаж 1 (кота 0) – 87 кв. м:
- Дневна с кухненски бокс – 52,73 кв. м;
- Килер – 3,25 кв. м;
- Тоалетна – 2,11 кв. м;
- Входно антре – 5,84 кв. м;
- Стълбище – 5,89 кв. м.
• Ниво етаж 2 (кота 3,00):
- Спалня 1 – 13,55 кв. м;
- Спалня 2 – 16,32 кв. м;
- Родителска спалня (14,38 кв. м) с дрешник (4,96 кв. м) и баня с тоалетна (4,34 кв. м);
- Баня с тоалетна – 3,57 кв. м;
- Мокро помещение – 3,57 кв. м;
- Коридор – 8,11 кв. м;
- Стълбище – 5,89 кв. м.
Технически характеристики:
• тухли Wiеnerberger Porotherm 25 см;
• тухли вътрешни преградни стени Wiеnerberger Porotherm 12 см;
• изолация по фасада 15 см;
• фасадна мазилка Baumit;
• два броя автоматични гаражни врати Hörmann;
• входна врата от висок клас;
• дограма: 5 камерна ПВЦ, троен стъклопакет, 4К сезона външно – висок клас;
• мълниезащита;
• изградени Електро и ВиК инсталации;
• отопление на ток с подготовка за поставяне на термопомпа;
• индивидуална пречиствателна станция и подготовка за присъединяване към канализация на централната ВиК мрежа;
• керемиди и покривни материали – Брамак;
• озеленяване и затревяване на двора.
Етапи на строителство:
Проектът ще бъде изпълнен в две фази, като фаза I, състояща се от къщи № 1 и № 2 е вече с акт 14 и завършване м. август 2026 г.
Следващата фаза с изграждането на останалите 6 къщи ще бъде стартирана в началото на м. април 2026 г.
Стандартна схема на плащане:
• 20% - предварителен договор;
• 80% - разрешение за ползване.
Предимства на проекта:
• Природа и чист въздух: Квартал Сеславци е заобиколен от зеленина и предлага прекрасни гледки към планината. Чистият въздух и спокойствието на района създават идеални условия за здравословен и релаксиращ начин на живот.
• Бягство от градската среда: Къщите предоставят възможност за уединение и спокойствие, далеч от шума и стреса на големия град, като същевременно са на кратко разстояние от центъра на София (19 км).
• Модерни удобства: Всяка къща е проектирана с внимание към детайла и включва модерни удобства като просторни дневни, съвременно разпределение, енергийно ефективни системи и красиви градини.
• Сигурност и комфорт: Проектът включва комплекс с контролиран достъп, което гарантира безопасността и спокойствието на жителите.
За района
Проектът за самостоятелни къщи в квартал Сеславци предлага уникална възможност за комфортен и спокоен живот сред природата, без да се лишавате от удобствата на градската среда. Това е идеалното място за семейства, които търсят баланс между работа и личен живот, както и за всички, които ценят качеството на живот и природната красота.
Квартал Сеславци се намира в североизточната част на София и е част от район “Кремиковци”. До 1978 година Сеславци е било самостоятелно село, но след това е присъединено към столицата. Известен е със своята богата история и културно наследство, включително и няколко манастира. Един от най-значимите е Сеславският манастир "Св. Николай Мирликийски". Други забележителни манастири в района са Кремиковският манастир "Св. Георги Победоносец" и Буховският манастир "Св. Архангел Михаил".
• Инфраструктура
Сеславци разполага с основна инфраструктура, включваща редовна автобусна линия номер 117, която свързва квартала с останалата част на града. В квартала има и новоизградени детски площадки и спортни съоръжения.
• Училище
В Сеславци има основно училище, което обслужва местните деца и предлага качествено образование.
• Детска градина
През 2022 година в Сеславци беше открита нова сграда на детска градина, филиал на ДГ № 146 „Звездица“. Тя разполага с просторни занимални и спални помещения, физкултурен и музикален салон, както и кухненски блок с изцяло ново оборудване. Детската градина има и площадки за игра на открито и футболно игрище.
• Магазини
В квартала има няколко малки магазина за хранителни стоки и други основни нужди, които обслужват местните жители.
Местоположение на картата
ПРОДАЖБА
ПРОЕКТ
Ексклузивна къща-близнак с Акт 16 в луксозен затворен комплекс в кв. "Бояна"
кв. Бояна / гр. София / София / България карта
Площ: 200.87 м2
Цена: 425 000 € ///
ПРОДАЖБА
ПРОЕКТ
Ексклузивна къща в елитен затворен комплекс в кв. "Бояна"
кв. Бояна / гр. София / София / България карта
Площ: 160.59 м2
Цена: 405 000 € ///
ПРОЕКТ
Бутикови къщи ново строителство в подножието на Витоша
кв. Драгалевци / гр. София / София / България карта
Цени на имотите: 670 000 - 820 000 € (без ДДС)
Цени на м²: 2 078 - 2 204 €/м2 (без ДДС)
Изберете тази опция и ще Ви уведомяваме по имейла при настъпили промени по статуса на офертата, например:
• Промяна на цената;
• Имотът влезе в промоционално предложение;
• Имотът бъде резервран или продаден;
• Други новости, свързани с имота.
• Имотът бъде свален от продажба;
Може да се отпишете от нотификациите лесно, когато пожелаете.• Промени по условията на офертата;
• Промяна в сумата на инвестицията;
• Предметът на инвестицията е изцяло реализиран;
• Валидността на офертата е изтекла.
Може лесно да се отпишете, ако в бъдеще решите, че повече не желаете да следите тази оферта.
За да получите абсолютно коректна информация относно свободните имоти, налични за продажба в проекта и техните актуални цени, моля свържете се с нашия офис на посочената информация за контакт.
Ние полагаме усилия, за да поддържаме нашите ценови листи абсолютно актуални и коректни, но често това е невъзможно, предвид големия брой нови проекти в нашия каталог и силно динамичните продажби.
Благодарим Ви за проявеното разбиране!



...В качеството си на доказан спецалист Stonehard PREMIER работи по пазарното позициониране и продажбите на множество проекти ново строителство, чиято реализация ни е поверена от водещи предприемачески компании в България и чужбина...