Тристаен апартамент в нова сграда до метростанция "Ломско шосе"
Цена:
248 194 € (2 050 €/м2)
*Указаните цени и наличности от свободни имоти в проекта са индикативни. За актуална ценова информация, моля свържете се с нас!
Реф. Номер: SOF-133364 / 3941
Местоположение: Връбница 2 / София карта
Тип на сграда/комплекс: Жилищен
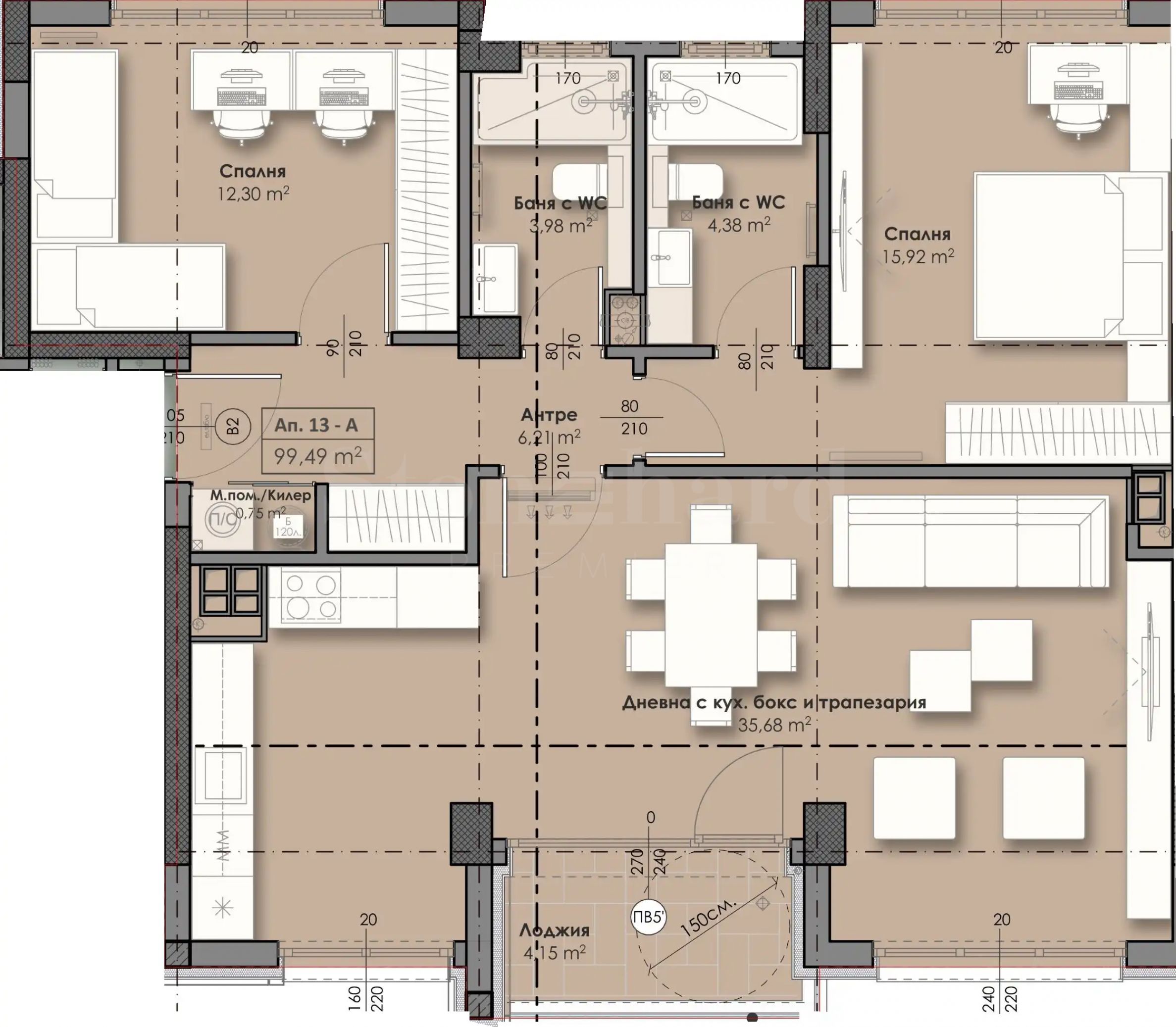
Площи на жилищата: 121.07 м2
Типове имоти в сградата/комплекса: Тристайни апартаменти
Реф. Номер: SOF-133364 / 3941
Местоположение: Връбница 2 / София
Тип на сграда/комплекс: Жилищен
Клас на сградата/комплекса:
Площи на жилищата: 121.07 м2
Типове имоти в сградата/комплекса: Тристайни апартаменти
Тук ще можете да се насладите на спокойствието на квартала, без да се отказвате от лесния достъп до търговски центрове, ресторанти и обществен транспорт. Идеално място за хора, които търсят съчетание от съвременен стил, удобства и близост до всичко необходимо!
В процес на строителство. Има Акт 14. Планиран Акт 16 - 05.2026 г.
Апартаментът е разположен на 4-ти етаж от 9 и има обща площ 121,07 кв.м. Издава се качествено завършен по БДС (на шпакловка и замазка).
Изложението на жилището е на изток и запад.
Разпределение:
• антре/коридор;
• дневна с трапезария и кухня;
• две спални;
• две бани с тоалетни;
• мокро помещение/килер;
• лоджия към дневната.
Концепция на сградата
Зелените площи и високата дървесна растителност са неразделна част от архитектурната концепция. Пространството около сградата ще бъде богато озеленено, с множество засадени липи, чийто аромат ще събуди сетивата и ще остави траен спомен за хармонията между природата и дома Ви.
Близостта до облагородения Северен парк и отсъствието на големи индустриални предприятия в близост осигуряват среда с чист въздух и отлични условия за активен начин на живот и спорт на открито.
Сградата се състои от две подземни нива и 9 надземни етажа. Проектирана е с два отделни входа, като всеки от тях разполага с фоайе, асансьор и стълбищна клетка с директен достъп до сутерена и гаражите. Разполага с различни по площ апартаменти, предлагащи светли стаи, големи прозорци и балкони с прекрасни изгледи. Имотите на първите нива са прекрасни мезонети с просторни частни дворове дворове.
Предвидени са достатъчен брой гаражи в сутерена, разпределени на две нива и допълнителни паркоместа извън сградата.
Технически характеристики на сградата:
• фасада - силикатна мазилка Caparol или San Marco и декоративна рамка от еталбонд и HPL, опасваща сградата;
• цялостна допълнителна хидроизолация на сутерена и водоплътен бетон;
• зидарии с тухли Wienerberger;
• алуминиева дограма най-висок клас с профили Weiss Profil Thermo Pro WP85;
• отопление с електрически конвектори и климатици;
• асансьори KONE;
• блиндирани входни врати SOLID Idoor, обърнати с мрамор;
• фоайе и общи части по специален интериорен проект - с вътрешно оформление от мрамор, съчетан с декоративни елементи Ламинам;
• ограда и контролиран достъп с чип до двора и сградата;
• озеленяването и вертикалната планировка - с голям процент паркова зеленина и различни алпинеуми с екзотична растителност.
Схема на плащане:
• Предварителен договор - 60%;
• Акт 15 - 30%;
• Акт 16 - 10%.
Разстояния и удобства в близост:
• на 50 метра от метростанция "Ломско шосе";
• до автобуси 85, 285 и трамвай 6.
• на 200 м от 61 ОУ "Св. св. Кирил и Методий";
• на 500 м от 74 ОУ "Гоце Делчев";
• до магазини – BILLA, Lidl, T-MARKET.
Очакваме Вашето запитване
Ако желаете да организирате оглед на имот, който Ви интересува, или да посетите някой от нашите офиси, моля свържете се с нас. За да уговорите ден и час за среща или оглед, можете да се обадите на посочения в обявата телефон или да изпратите запитване чрез електронната поща. Нашият консултант ще Ви съдейства с всички необходими подробности и ще уговори удобно за Вас време.
Търсите подходящия за Вас имот?
Не се колебайте да се свържете с нас и да ни разкажете за Вашите нужди и предпочитания. Нашият екип ще проведе задълбочено проучване на пазара, за да Ви предложи имоти, които точно отговарят на Вашите критерии. Разполагаме с изключително портфолио от висококачествени и ексклузивни жилища, които са достъпни само за нашите клиенти. За да сте първите, които ще получите информация за тях – свържете се с нас.
Допълнителни услуги
Като ценен клиент на нашата компания, Вие ще имате привилегията да ползвате напълно безплатно услугите на нашия опитен юридически екип. В допълнение, предлагаме комплексни решения, включващи имуществена застраховка, безплатна финансова консултация, както и изгодни условия за финансиране. Нашите услуги се разпростират и в сферата на препродажбата, отдаването под наем и управлението на имоти. Осигуряваме висококачествени ремонтни дейности и обзавеждане чрез специализирани фирми, които са част от нашата корпоративна група и са наши дългогодишни професионални партньори.
Местоположение на картата
ПРОДАЖБА
ПРОЕКТ
Тристаен апартамент с паркомясто във Flora Park
Манастирски ливади - Изток / София / София / България карта
Площ: 128.15 м2
Цена: 500 000 € /// 3 902 €/м2
Бутикови апартаменти в луксозна нова сграда в "Малинова долина"
Малинова долина / София / София / България карта
Клас на сградата: Луксозен
Завършване: Август, 2026 г.
Цени на имотите: 174 575 - 371 115 €
Цени на м²: 2 500 - 2 700 €/м2
Модерна жилищна сграда, съчетаваща спокойствие, стил и удобство
Овча купел 2 / София / София / България карта
Цени на имотите: 152 017 - 229 367 €
Цени на м²: 1 950 - 2 250 €/м2
Изберете тази опция и ще Ви уведомяваме по имейла при настъпили промени по статуса на офертата, например:
• Промяна на цената;
• Имотът влезе в промоционално предложение;
• Имотът бъде резервран или продаден;
• Други новости, свързани с имота.
• Имотът бъде свален от продажба;
Може да се отпишете от нотификациите лесно, когато пожелаете.• Промени по условията на офертата;
• Промяна в сумата на инвестицията;
• Предметът на инвестицията е изцяло реализиран;
• Валидността на офертата е изтекла.
Може лесно да се отпишете, ако в бъдеще решите, че повече не желаете да следите тази оферта.
За да получите абсолютно коректна информация относно свободните имоти, налични за продажба в проекта и техните актуални цени, моля свържете се с нашия офис на посочената информация за контакт.
Ние полагаме усилия, за да поддържаме нашите ценови листи абсолютно актуални и коректни, но често това е невъзможно, предвид големия брой нови проекти в нашия каталог и силно динамичните продажби.
Благодарим Ви за проявеното разбиране!



...В качеството си на доказан спецалист Stonehard PREMIER работи по пазарното позициониране и продажбите на множество проекти ново строителство, чиято реализация ни е поверена от водещи предприемачески компании в България и чужбина...