Южен тристаен апартамент с голям частен двор в луксозна сграда lake IT
на картатаЦена:
319 081 € (2 393 €/м2)
*Указаните цени и наличности от свободни имоти в проекта са индикативни. За актуална ценова информация, моля свържете се с нас!
Реф. Номер: STO-133090 / 4600
Местоположение: Панчарево карта
Тип на сграда/комплекс: Жилищен
Клас на сградата/комплекса: Висок стандарт
Площи на жилищата: 133.33 м2
Типове имоти в сградата/комплекса: Тристайни апартаменти
Реф. Номер: STO-133090 / 4600
Местоположение: Панчарево
Тип на сграда/комплекс: Жилищен
Клас на сградата/комплекса: Висок стандарт
Площи на жилищата: 133.33 м2
Типове имоти в сградата/комплекса: Тристайни апартаменти
Локацията ѝ е живописна и удобна, само на минути от София и в непосредствена близост до Панчаревското езеро, в района на сцената на Опера на открито и каяк зоната. Районът предлага отлична инфраструктура – на пешеходно разстояние се намират парк с детски площадки, детска градина и училище. Достъпът до "Самоковско шосе" е бърз и лесен, а спирката на градски транспорт и магазин Lidl са само на няколко минути с кола.
БЕЗ КОМИСИОНА.
Стартирало строителство - август 2025 г.
Срок на изпълнението - 2 години.
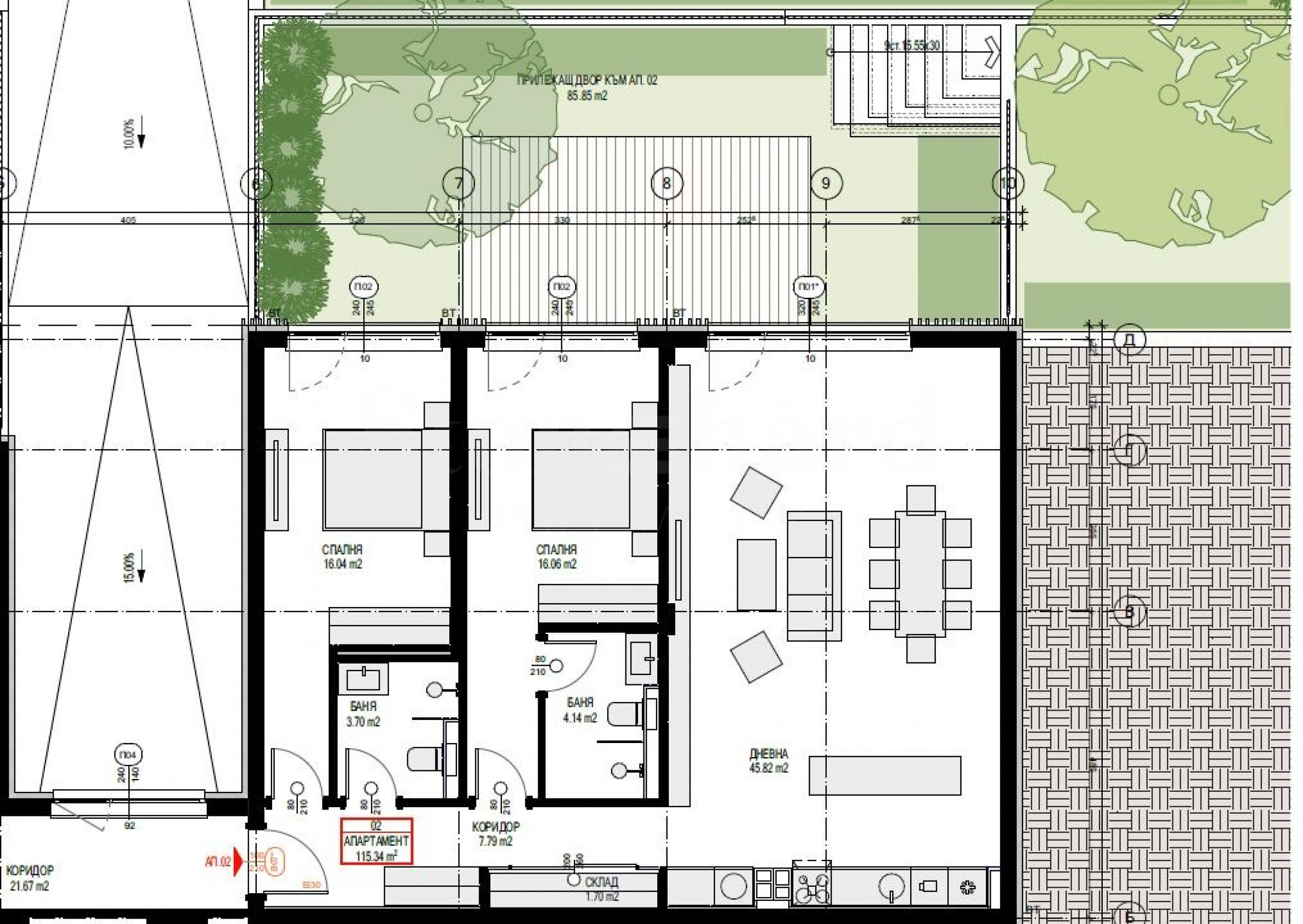
Апартамент №2 е разположен на партерен етаж, с южно изложение и притежава собствен двор от 85.85 кв.м.
Разпределение:
• антре;
• две спални;
• две бани с тоалетни;
• дневна с кухня и трапезария;
• веранда и двор, с излаз от всички стаи.
Висок клас материали
Проектирана с внимание към детайла и околната среда, сграда lake IT ще бъде изпълнена по най-високите стандарти: алуминиева дограма с троен стъклопакет, висок клас топлоизолация, фасада с естествени дървени елементи ARTEFINO, подово отопление и умна система за видеонаблюдение с функции за засичане на риск от пожар, наводнение или опасност за обитателите.
Апартаменти
Апартаментите са от тип тристайни имоти и един четиристаен апартамент. Предлагат се в степен на завършеност по БДС. Жилищата разкриват гледки към езерото или към живописна борова гора зад сградата, като локацията е изцяло сред зеленина и вече застроена среда с обитаеми къщи – без риск от бъдещо строителство в близост.
В сградата се предлагат подземни паркоместа и гаражи за покупка.
Архитектурна концепция - live IT... love IT... Lake IT
Сградата е съвременен архитектурен жест на уважение към природата – форма, която не доминира, а съзерцава. Проектът е дело на утвърденото и многократно награждавано архитектурно бюро STUDIO CREATIVE:
"Сграда lake IT e продължение на природата, тя е архитектура в състояние на съзерцание. Сред меката тишина на разнообразните дървесни видове, които създават гориста атмосфера, сграда lake IT се въздига не като чуждо тяло, а като естествено продължение на ландшафта, изчистена, ритмична и в дълбок диалог с околната среда. Това не е просто архитектура, а жест на уважение към мястото, в което е посадена.
Формата е прецизна математическа и ясна и същевременно излъчваща уют. Праволинейният обем, с равни и дълги хоризонтали, лежи спокойно върху сградата, без да я нарушава. Тъмните вертикали на фасадата не разделят, а пулсират в синхрон с дърветата около нея, като създават усещане за архитектурни сенки, уловили светлината и я пречупили по свой собствен начин.
Големите остъклени отвори не са прозорци, а портали към съзерцание. lake IT е абсолютен партньор с пейзажа превръщайки се във фон. Вътре и вън са в непрекъснато движение, което преминава едно в друго, променяйки се с времето, светлината и сезона. Сградата не търси внимание, тя не заявява присъствие, тя наблюдава, отразява, впуска се в диалог с природата, като се оставя да бъде огледало на мястото. Това е архитектура, която не диктува, а слуша. Нощем светлината се разлива като дъх, приглушено, равномерно, без излишна яркост, не нарушава тъмнината, а я приема и дискретно разкрива своите детайли.
Това не е просто дом. Това е състояние на покой, на баланс, на архитектура, която знае, че истинската стойност не е в това, което показва, а в това, което позволява да се почувства."
Схеми на плащане
Стандартна схема:
30% при подписване на договор (първоначална вноска);
30% при Акт 14;
30% при Акт 15;
10% при Акт 16.
Схема „Кредит“:
10% при подписване на договор;
60% при Акт 14;
20% при Акт 15;
10% при Акт 16.
Схема „Инвест“ (-2% отстъпка):
50% при подписване на договор;
20% при Акт 14;
20% при Акт 15;
10% при Акт 16.
Схема „Супер инвест“ (-3% отстъпка):
80% при подписване на договор;
20% при Акт 16.
Схема „Спокойствие“ (+8% върху цената):
20% при подписване на договор;
80% при Акт 16.
Очакваме Вашето запитване
Ако желаете да организирате оглед на имот, който Ви интересува, или да посетите някой от нашите офиси, моля свържете се с нас. За да уговорите ден и час за среща или оглед, можете да се обадите на посочения в обявата телефон или да изпратите запитване чрез електронната поща. Нашият консултант ще Ви съдейства с всички необходими подробности и ще уговори удобно за Вас време.
Търсите подходящия за Вас имот?
Не се колебайте да се свържете с нас и да ни разкажете за Вашите нужди и предпочитания. Нашият екип ще проведе задълбочено проучване на пазара, за да Ви предложи имоти, които точно отговарят на Вашите критерии. Разполагаме с изключително портфолио от висококачествени и ексклузивни жилища, които са достъпни само за нашите клиенти. За да сте първите, които ще получите информация за тях – свържете се с нас.
Допълнителни услуги
Като ценен клиент на нашата компания, Вие ще имате привилегията да ползвате напълно безплатно услугите на нашия опитен юридически екип. В допълнение, предлагаме комплексни решения, включващи имуществена застраховка, безплатна финансова консултация, както и изгодни условия за финансиране. Нашите услуги се разпростират и в сферата на препродажбата, отдаването под наем и управлението на имоти. Осигуряваме висококачествени ремонтни дейности и обзавеждане чрез специализирани фирми, които са част от нашата корпоративна група и са наши дългогодишни професионални партньори.
Местоположение на картата
lake IT - апартаменти в ексклузивна нова сграда до Панчаревското езеро
Панчарево / София / България карта
Клас на сградата: Висок стандарт
Завършване: Август, 2027 г.
Цени на имотите: 237 950 - 332 540 €
Цени на м²: 2 300 - 2 600 €/м2
ПРОДАЖБА
ПРОЕКТ
Тристаен апартамент с фронтална гледка към Панчаревското езеро
Панчарево / София / България карта
Площ: 300 м2
Цена: 1 200 000 € /// 4 000 €/м2
Изберете тази опция и ще Ви уведомяваме по имейла при настъпили промени по статуса на офертата, например:
• Промяна на цената;
• Имотът влезе в промоционално предложение;
• Имотът бъде резервран или продаден;
• Други новости, свързани с имота.
• Имотът бъде свален от продажба;
Може да се отпишете от нотификациите лесно, когато пожелаете.• Промени по условията на офертата;
• Промяна в сумата на инвестицията;
• Предметът на инвестицията е изцяло реализиран;
• Валидността на офертата е изтекла.
Може лесно да се отпишете, ако в бъдеще решите, че повече не желаете да следите тази оферта.
За да получите абсолютно коректна информация относно свободните имоти, налични за продажба в проекта и техните актуални цени, моля свържете се с нашия офис на посочената информация за контакт.
Ние полагаме усилия, за да поддържаме нашите ценови листи абсолютно актуални и коректни, но често това е невъзможно, предвид големия брой нови проекти в нашия каталог и силно динамичните продажби.
Благодарим Ви за проявеното разбиране!



...В качеството си на доказан спецалист Stonehard PREMIER работи по пазарното позициониране и продажбите на множество проекти ново строителство, чиято реализация ни е поверена от водещи предприемачески компании в България и чужбина...