РЕАЛИЗИРАН
ПРОЕКТ

Тристаен апартамент в новострояща се сграда в кв.Кръстова вада

на картата

Цена:

320 022 (2 759 €/м2)

*Указаните цени и наличности от свободни имоти в проекта са индикативни. За актуална ценова информация, моля свържете се с нас!

Реф. Номер: SOF 129462 / 3540

Местоположение: Кръстова вада / София карта

Тип на сграда/комплекс: Жилищен

Площи на жилищата: 116 м2

Типове имоти в сградата/комплекса: Тристайни апартаменти

Реф. Номер: SOF 129462 / 3540

Местоположение: Кръстова вада / София

Тип на сграда/комплекс: Жилищен

Клас на сградата/комплекса:  

Площи на жилищата: 116 м2

Типове имоти в сградата/комплекса: Тристайни апартаменти

Описание на проекта
Представяме на вашето внимание прекрасна възможност за закупуване на семеен дом в нова модерна жилищна сграда в предпочитания столичен квартал Кръстова вада. Имотът е част от шест етажна жилищна сграда с модерна архитектура и собствено дворно пространство. Жилището се намира на тиха уличка на метри от бул. Черни връх в близост до планина Витоша и удобната връзка с важните пътни артерии бул. Черни връх и Околовръстен път. Районът предлага множество удобства като спирка на градския транспорт, ресторанти, супермаркети, бензиностанция, метростанция (10 минути пеш) и търговски център (1 км).

Сградата е дело на инвеститор с безупречна репутация и богато портфолио от завършени и въведени в експлоатация жилищни сгради в столицата. В сградата има 37 апартамента, а в подземното ниво ще бъдат изградени 25 гаража, 12 паркоместа и 30 складови помещения. Дворът около сградата ще бъде озеленен и заграден с ограда, за да се контролира достъпа на външни лица.

ПРЕДИМСТВА НА ИМОТА:
• Просторни всекидневна и родителска спалня
• Южно изложение на всекидневната
• Термопомпа и конвектори включени в цената
• Качествено строителство от фирма с доказан опит
• Сграда с двор и контрол на достъпа

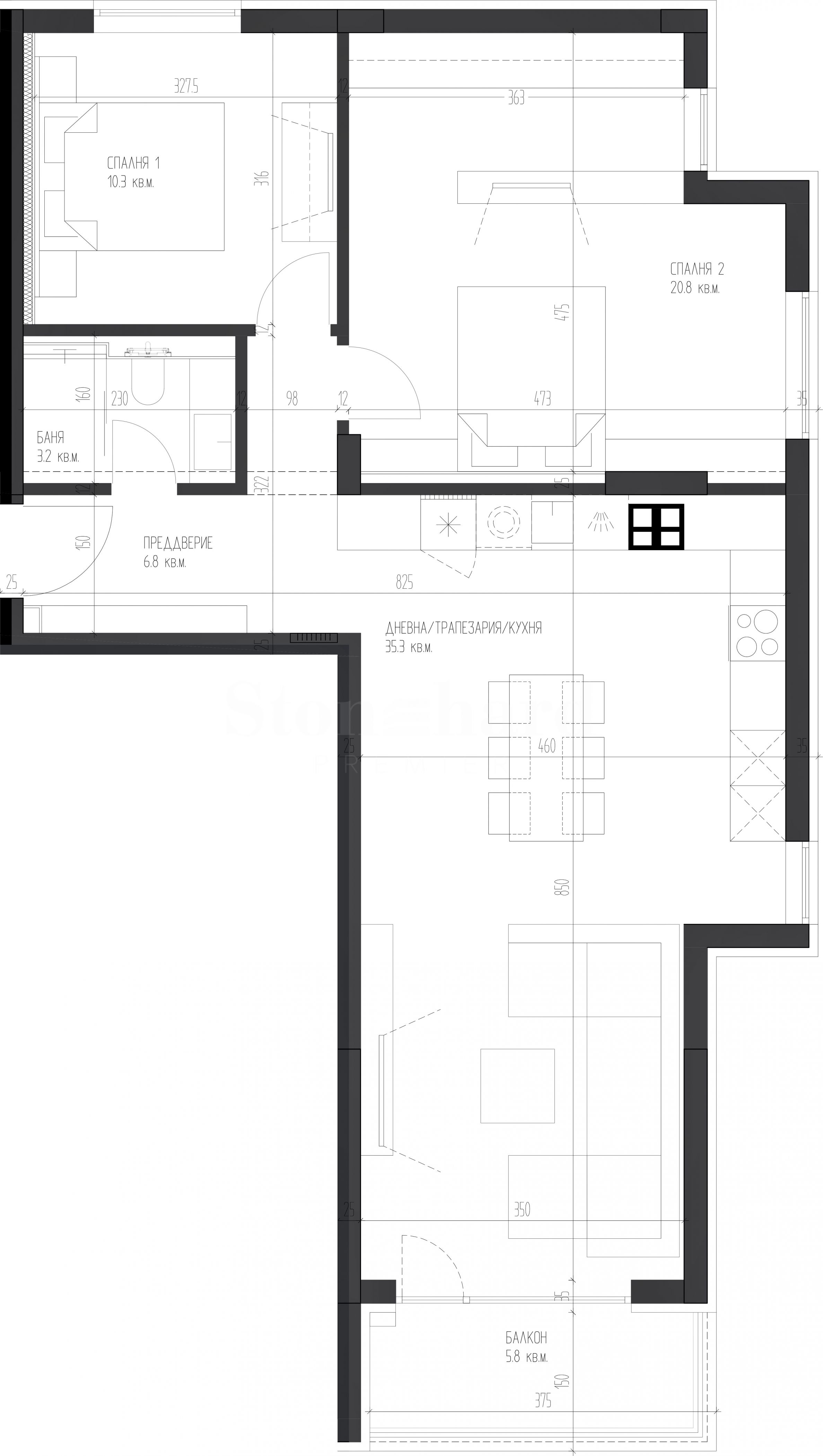
Жилището е разположено на четвърти етаж със застроена площ от 97 кв.м.. Всeкидневната е с южно изложение, а спалните гледат на север. Състои се от антре, просторен дневен тракт с кухненски кът от 36 кв.м, голяма основна спалня - 21 кв.м с възможност за отделяне на гардеробна, втора спалня - 12 кв.м, баня с тоалетна и тераса към дневната.

Начало на строителните дейности - февруари 2023г
Завършване на обекта - 2025г

Схема на плащане:
30% от стойността на апартамента при подписване на Предварителен договор
30% от стойността на апартамента при взимане на Акт 14
30% от стойността на апартамента при взимане на Акт 15
10% при въвеждане на сградата в експлоатация с Акт 16

В сграда се предлагат и други апартаменти с различна квадратура и цени, за повече информация не се колебайте да се свържете с отговорния по офертата брокер!

Оглед на имота
Можем да организираме оглед на имота в удобно за вас време. За целта, свържете се с отговорния за офертата брокер и му кажете кога бихте искали да направите оглед.

Допълнителни услуги и следпродажбено обслужване
Ние сме реномирана компания и ще бъдем с вас не само по време на покупката, но и след това, осигурявайки ви допълнителни услуги по ваше изискване с цел пълноценно и безпроблемно ползване на новозакупения имот. Услугите, които можем да предложим, включват застраховка на движимо и недвижимо имущество, застраховка живот, медицинско и автомобилно застраховане, строителни и ремонтни дейности, обзавеждане, юридически и счетоводни услуги и др.

Контакти на нашия офис
Контакти на нашия офис

Местоположение на картата

ПРИБЛИЗИТЕЛНО МЕСТОПОЛОЖЕНИЕ
Изпратете запитване за повече информация
Контакти на нашия офис
Вашето име*
Вашият email*
Вашият мобилен номер*

“Стоунхард Маркетинг” ЕООД защитава Вашите лични данни и следва фирмена Политиката на поверителност , съобразно изискванията на Регламент (ЕС) № 2016/679. На следващата стъпка ще можете да ни разрешите или да откажете да съхраняваме и оперираме с Вашите лични данни. Направете Вашия избор от имейла, който ще Ви изпратим след като получим Вашето запитване.

Още имоти с подобни характеристики
НОВА
ОФЕРТА

Апартаменти в нова сграда, близо до бул. "Тодор Каблешков" и Paradise Center

Манастирски ливади - Изток / София / София / България карта

Клас на сградата: Висок стандарт

Завършване: Юни, 2026 г.

Цени на имотите: 199 333 - 824 268(без ДДС)

Цени на м²: 2 781 - 3 486 €/м2 (без ДДС)

НОВА
ОФЕРТА
ВТОРИЧНА
ПРОДАЖБА
ЗАВЪРШЕН
ПРОЕКТ

Нов, тристаен апартамент в луксозна сграда на бул. "България"

Манастирски ливади - Изток / София / София / България карта

Площ: 148 м2

Цена: 605 000 € /// 4 088 €/м2

НОВА
ОФЕРТА
ЕКСКЛУЗИВНИ
ПРАВА

Mountain View Obelya - ексклузивни апартаменти в модерен комплекс до метростанция

Обеля / София / София / България карта

Планирано начало: Юни, 2026 г.

Очаквано завършване: Декември, 2029 г.

Цени на имотите: 97 522 - 271 405

Цени на м²: 1 400 - 1 800 €/м2

...В качеството си на доказан спецалист Stonehard PREMIER работи по пазарното позициониране и продажбите на множество проекти ново строителство, чиято реализация ни е поверена от водещи предприемачески компании в България и чужбина...

Изберете тази опция и ще Ви уведомяваме по имейла при настъпили промени по статуса на офертата, например:

• Промяна на цената;

• Имотът влезе в промоционално предложение;

• Имотът бъде резервран или продаден;

• Други новости, свързани с имота.

• Имотът бъде свален от продажба;

Може да се отпишете от нотификациите лесно, когато пожелаете.
Площта на имотите в Дубай / ОАЕ се изчислява в квадратни футове. Всички площи в тази оферта са преизчиселни автоматично в квадратни метри по формулата 1 кв.м = 10.7639 кв.фута.
Наемодателят заплаща ток, вода, отопление/охлаждане, интернет, кабелна ТВ и ТБО
Оригиналната цена на имота е обявена в местната валута дирхам (AED). Цената, указана във валута, различна от дирхам е индикативна и се изчислява автоматично по кръстосан курс, който обновяваме 4 пъти на ден. Ето защо цената, указана във валута, различна от дирхам (AED) варира постоянно, макар и в неголеми граници.
Цените са ориентировъчни. За абсолютно точна ценова калкулация и оферта, моля свържете се отговорния консултант!
Изберете тази опция и ще започнете да получавате нови оферти с подобен предмет на инвестицията и с разположение в същия район.
Ще получавате по имейла всички нови оферти и актуална информация за нашата дейност
Предвид текущата силна динамика на продажбите и пазара, указаните в нашия сайт цени и наличности от свободни имоти в този проект може леко да се различават от актуалните.
За да получите абсолютно коректна информация относно свободните имоти, налични за продажба в проекта и техните актуални цени, моля свържете се с нашия офис на посочената информация за контакт.
Ние полагаме усилия, за да поддържаме нашите ценови листи абсолютно актуални и коректни, но често това е невъзможно, предвид големия брой нови проекти в нашия каталог и силно динамичните продажби.
Благодарим Ви за проявеното разбиране!