Двустаен апартамент в иновативна, енергийно ефективна жилищна сграда с фотоволтаична инсталация
REF#SOF 129081
/
Двустайни апартаменти
/
Продажба
/
София
/
Манастирски ливади - Изток
/
София
/
България
на картата
Цена:
206 324 € (2 486 €/м2)
*Указаните цени и наличности от свободни имоти в проекта са индикативни. За актуална ценова информация, моля свържете се с нас!
Реф. Номер: SOF 129081 / 4197
Местоположение: Манастирски ливади - Изток / София карта
Тип на сграда/комплекс: Жилищен
РЗП на сградата/комплекса: 2 896м²
Площи на жилищата: 83 м2
Текущ етап на проекта: Завършен и функциониращ
Типове имоти в сградата/комплекса: Двустайни апартаменти
Реф. Номер: SOF 129081 / 4197
Местоположение: Манастирски ливади - Изток / София
Тип на сграда/комплекс: Жилищен
Клас на сградата/комплекса:
РЗП на сградата/комплекса: 2 896м²
Площи на жилищата: 83 м2
Текущ етап на проекта: Завършен и функциониращ
Типове имоти в сградата/комплекса: Двустайни апартаменти
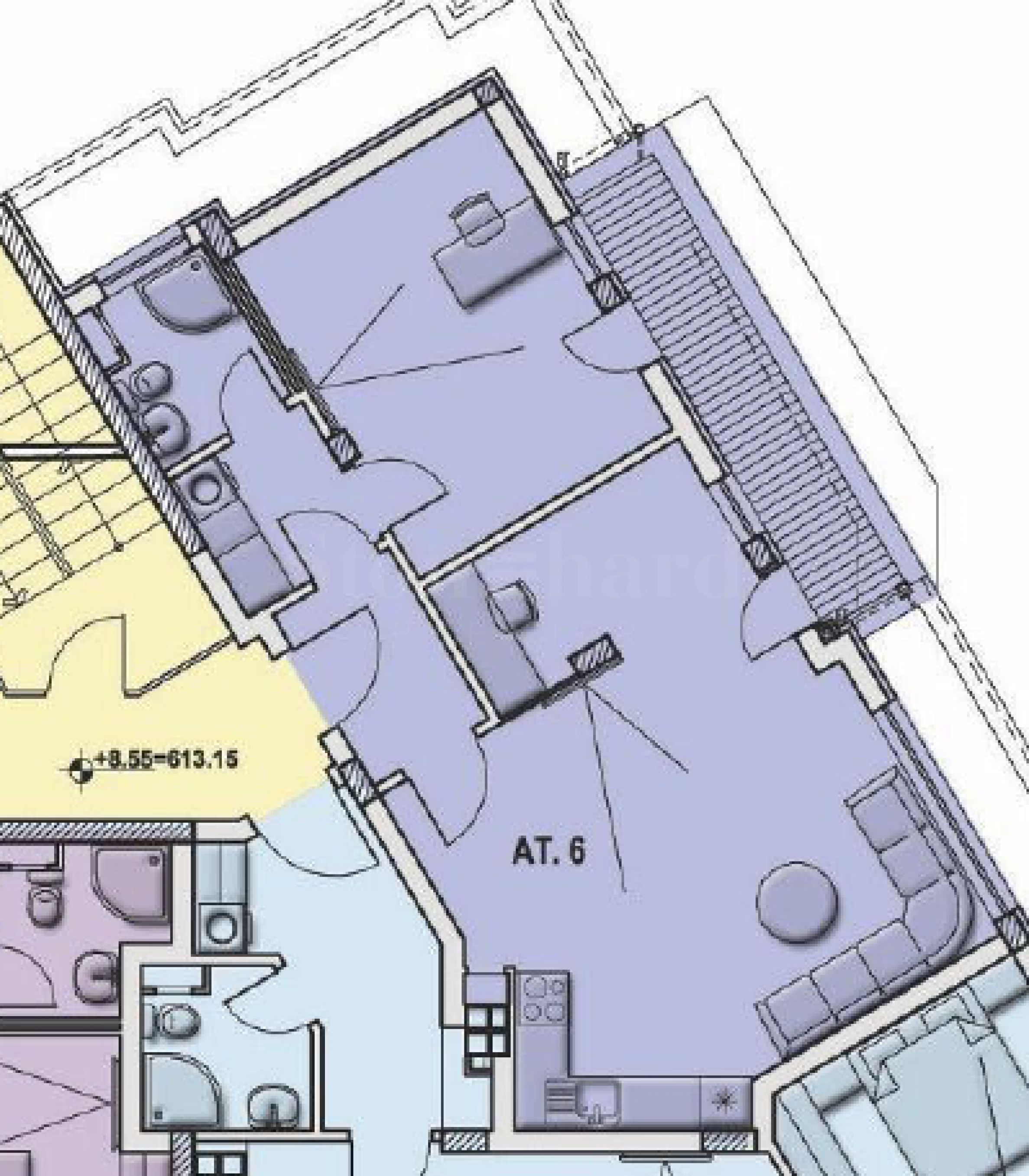
Апартаментът с площ от 85.25кв.м и се състои от антре, хол с кухненски бокс, спалня, баня с тоалетна и тераса, на която се излиза от хола и от спалнята.
Сградата е шестетажна и разполага с общо 9 апартамента и 6 ателиета, проектирани с мисъл за енергийна ефективност и комфорт. Осигурени са 15 паркоместа, както и 8 мазета за допълнително удобство на живущите. Сградата е газифицирана, а отоплението е решено с изградена инсталация с радиатори във всяко помещение.
Фасадата е изпълнена с висококачествени материали, включително фотоволтаична система, която генерира зелена енергия за общите части и домакинствата, осигурявайки по-ниски сметки за електроенергия и по-голяма енергийна независимост.
Жилищата са с просторни и светли помещения, благодарение на френските прозорци и високия таван от 2.70 м. Външната дограма е петкамерна PVC с двоен стъклопакет (24 мм) с технология „4 сезона“, което допринася за отлична топло- и шумоизолация.
За удобство на бъдещите собственици е предвиден общ двор, който е оборудван с поливна система, а прилежащите към някои от жилищата дворове са отделени с дискретна дървена ограда.
Сградата е напълно завършена и разполага с Акт 16, което позволява незабавно нанасяне на новите собственици.
Предимства на локацията:
На пешеходно разстояние до:
Южен парк;
Хранителни вериги;
Paradise Center, Bulgaria Mall;
Училища и детски градини;
Медицински центрове и спортни комплекси.
Градски транспорт:
Автобуси;
Тролейбуси;
С връзка към Метростанция (линия М3).
Очакваме Вашето запитване
Ако желаете да организирате оглед на имот, който Ви интересува, или да посетите някой от нашите офиси, моля свържете се с нас. За да уговорите ден и час за среща или оглед, можете да се обадите на посочения в обявата телефон или да изпратите запитване чрез електронната поща. Нашият консултант ще Ви съдейства с всички необходими подробности и ще уговори удобно за Вас време.
Търсите подходящия за Вас имот?
Не се колебайте да се свържете с нас и да ни разкажете за Вашите нужди и предпочитания. Нашият екип ще проведе задълбочено проучване на пазара, за да Ви предложи имоти, които точно отговарят на Вашите критерии. Разполагаме с изключително портфолио от висококачествени и ексклузивни жилища, които са достъпни само за нашите клиенти. За да сте първите, които ще получите информация за тях – свържете се с нас.
Допълнителни услуги
Като ценен клиент на нашата компания, Вие ще имате привилегията да ползвате напълно безплатно услугите на нашия опитен юридически екип. В допълнение, предлагаме комплексни решения, включващи имуществена застраховка, безплатна финансова консултация, както и изгодни условия за финансиране. Нашите услуги се разпростират и в сферата на препродажбата, отдаването под наем и управлението на имоти. Осигуряваме висококачествени ремонтни дейности и обзавеждане чрез специализирани фирми, които са част от нашата корпоративна група и са наши дългогодишни професионални партньори.
Местоположение на картата
Нов жилищен проект от три сгради с различни типове апартаменти в кв."Дианабад"
Дианабад / София / София / България карта
Завършване: Декември, 2027 г.
Цени на имотите: 176 199 - 450 565 €
Цени на м²: 2 913 - 3 339 €/м2
Новострояща се сграда в полите на Витоша
Бояна / София / София / България карта
Завършване: Март, 2026 г.
Цени на имотите: 299 640 - 400 125 €
Цени на м²: 3 000 - 3 300 €/м2
ПРОДАЖБА
ПРОЕКТ
Просторен, двустаен апартамент за продажба до Mall Paradise
Кръстова вада / София / София / България карта
Площ: 71 м2
Цена: 304 000 € /// 4 282 €/м2
Изберете тази опция и ще Ви уведомяваме по имейла при настъпили промени по статуса на офертата, например:
• Промяна на цената;
• Имотът влезе в промоционално предложение;
• Имотът бъде резервран или продаден;
• Други новости, свързани с имота.
• Имотът бъде свален от продажба;
Може да се отпишете от нотификациите лесно, когато пожелаете.• Промени по условията на офертата;
• Промяна в сумата на инвестицията;
• Предметът на инвестицията е изцяло реализиран;
• Валидността на офертата е изтекла.
Може лесно да се отпишете, ако в бъдеще решите, че повече не желаете да следите тази оферта.
За да получите абсолютно коректна информация относно свободните имоти, налични за продажба в проекта и техните актуални цени, моля свържете се с нашия офис на посочената информация за контакт.
Ние полагаме усилия, за да поддържаме нашите ценови листи абсолютно актуални и коректни, но често това е невъзможно, предвид големия брой нови проекти в нашия каталог и силно динамичните продажби.
Благодарим Ви за проявеното разбиране!



...В качеството си на доказан спецалист Stonehard PREMIER работи по пазарното позициониране и продажбите на множество проекти ново строителство, чиято реализация ни е поверена от водещи предприемачески компании в България и чужбина...