Реф. Номер: LXH-124380
Местоположение: Несебър карта
Тип на сграда/комплекс: Жилищен
Площи на жилищата: 64.55 м2
Типове имоти в сградата/комплекса: Двустайни апартаменти
Реф. Номер: LXH-124380
Местоположение: Несебър
Тип на сграда/комплекс: Жилищен
Клас на сградата/комплекса:
Площи на жилищата: 64.55 м2
Типове имоти в сградата/комплекса: Двустайни апартаменти
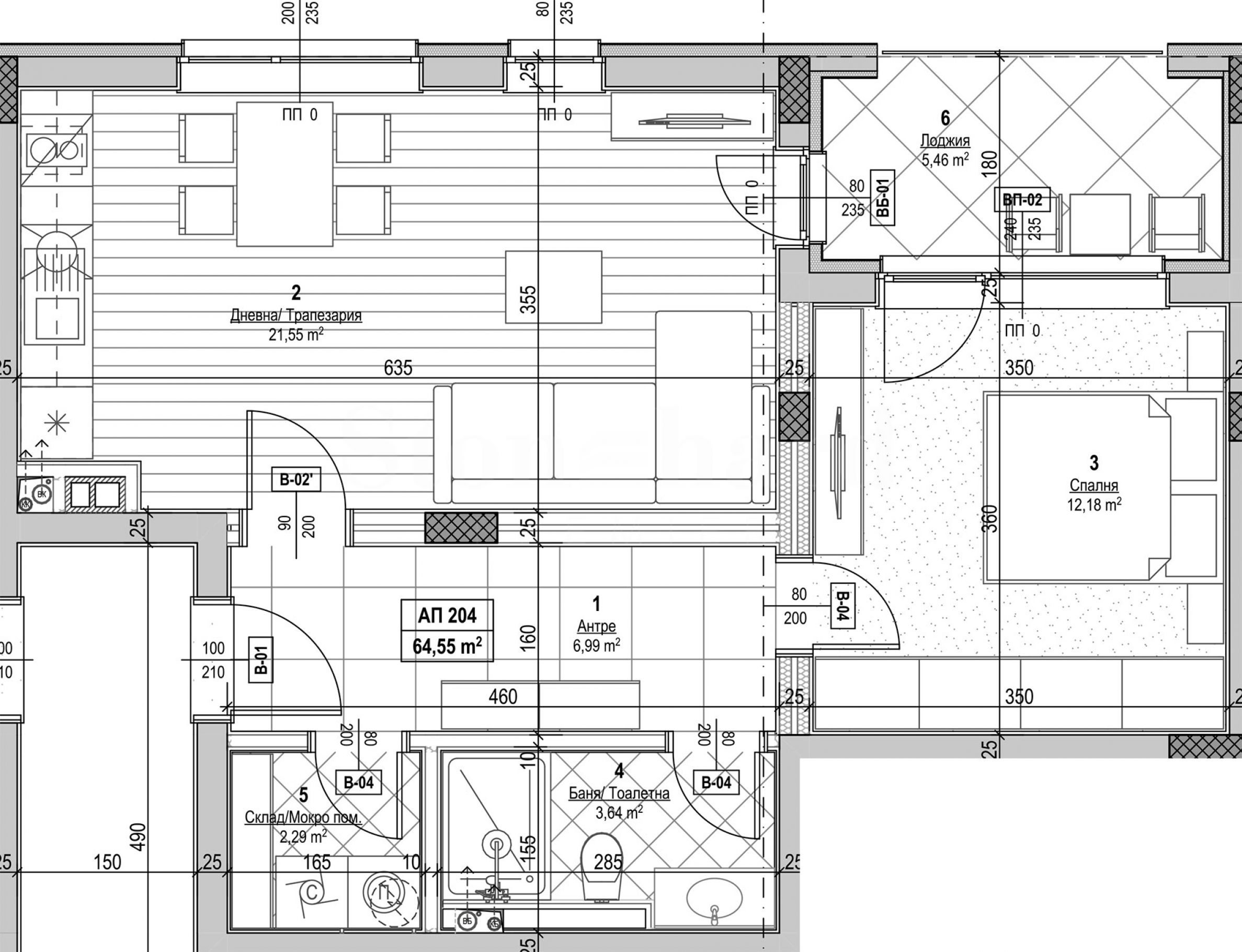
Имотът е с обща площ от 64,55 кв.м, разположен на 2-ри етаж с гледка към морето.
Разпределение:
антре;
дневна с кухня;
спалня;
банята с тоалет;
склад;
тераса.Жилището се издава в степен на завършеност по БДС, като има опция за довършване "до ключ" и обзавеждане с различни варианти атрактивни интериорни проекти.
*Снимките са илюстративна цел.
Без такса поддръжка!
Местоположението е изключително спокойно и на самия морски бряг, с бърз достъп до Стария град и всички градски удобства. До най-близкия плаж е около 400 метра или 5 минути пеша.
Номинация в PIPA
Модерната сграда беше номинирана да участва в престижния международен конкурс PIPA.
Porcelanosa International Project Award е престижно състезание, организирано от Porcelanosa Group, водещия испански производител на керамични плочки, оборудване за кухня и баня. Целта на състезанието е да отличи изключителни архитектурни и интериорни проекти по целия свят, които демонстрират иновативно използване на продуктите и материалите на PORCELANOSA.
Девизът е EARTHCRAFTED DESIGNS - дизайни вдъхновени от природата!
Идеята е да се насърчи креативността и отличителността в архитектурния дизайн, като се подчертае връзката между материалите добити от природата и техническите умения, които превръщат едно пространство в произведение на изкуството.
Апартаменти
Сградата се състои от четири жилищни етажа и сутерен с подземен гараж.
Комплексът е с луксозни общи части, асансьор на испанския производител ORONA и помещение за общи нужди на партера на сградата, както и озеленяване на прилежащите части.
Екстериорът на сградата е завършен с фасадна керамика на PORCELANOSA.
На сутеренния етаж на комплексa се намират 7 гаража, 5 паркоместа и 3 складови помещения с различни квадратури.
*Има опция за закупуването на паркоместа.
Апартаментите са двустайни и тристайни жилища, с практични планировки и просторни стаи. Живописната морска панорама се разкрива от всеки етаж, а преобладаващото изложение спрямо дневния ход на слънцето, така както и панорамните прозорци предполагат естественото осветяване в жилищата.
Очакваме Вашето запитване
Ако желаете да организирате оглед на имот, който Ви интересува, или да посетите някой от нашите офиси, моля свържете се с нас. За да уговорите ден и час за среща или оглед, можете да се обадите на посочения в обявата телефон или да изпратите запитване чрез електронната поща. Нашият консултант ще Ви съдейства с всички необходими подробности и ще уговори удобно за Вас време.
Търсите подходящия за Вас имот?
Не се колебайте да се свържете с нас и да ни разкажете за Вашите нужди и предпочитания. Нашият екип ще проведе задълбочено проучване на пазара, за да Ви предложи имоти, които точно отговарят на Вашите критерии. Разполагаме с изключително портфолио от висококачествени и ексклузивни жилища, които са достъпни само за нашите клиенти. За да сте първите, които ще получите информация за тях – свържете се с нас.
Допълнителни услуги
Като ценен клиент на нашата компания, Вие ще имате привилегията да ползвате напълно безплатно услугите на нашия опитен юридически екип. В допълнение, предлагаме комплексни решения, включващи имуществена застраховка, безплатна финансова консултация, както и изгодни условия за финансиране. Нашите услуги се разпростират и в сферата на препродажбата, отдаването под наем и управлението на имоти. Осигуряваме висококачествени ремонтни дейности и обзавеждане чрез специализирани фирми, които са част от нашата корпоративна група и са наши дългогодишни професионални партньори.
Местоположение на картата
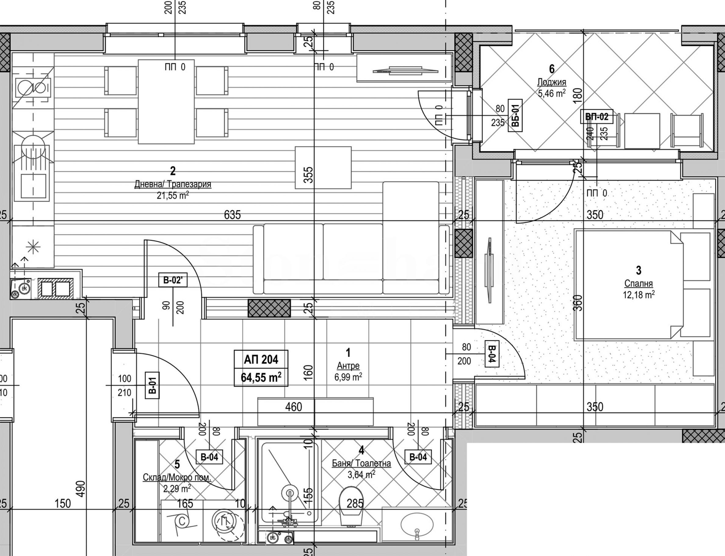
Имотът е с обща площ от 64,55 кв.м, разположен на 2-ри етаж с гледка към морето.
Разпределение:
антре;
дневна с кухня;
спалня;
банята с тоалет;
склад;
тераса.Жилището се издава в степен на завършеност по БДС, като има опция за довършване "до ключ" и обзавеждане с различни варианти атрактивни интериорни проекти.
*Снимките са илюстративна цел.
Без такса поддръжка!
Местоположението е изключително спокойно и на самия морски бряг, с бърз достъп до Стария град и всички градски удобства. До най-близкия плаж е около 400 метра или 5 минути пеша.
Номинация в PIPA
Модерната сграда беше номинирана да участва в престижния международен конкурс PIPA.
Porcelanosa International Project Award е престижно състезание, организирано от Porcelanosa Group, водещия испански производител на керамични плочки, оборудване за кухня и баня. Целта на състезанието е да отличи изключителни архитектурни и интериорни проекти по целия свят, които демонстрират иновативно използване на продуктите и материалите на PORCELANOSA.
Девизът е EARTHCRAFTED DESIGNS - дизайни вдъхновени от природата!
Идеята е да се насърчи креативността и отличителността в архитектурния дизайн, като се подчертае връзката между материалите добити от природата и техническите умения, които превръщат едно пространство в произведение на изкуството.
Апартаменти
Сградата се състои от четири жилищни етажа и сутерен с подземен гараж.
Комплексът е с луксозни общи части, асансьор на испанския производител ORONA и помещение за общи нужди на партера на сградата, както и озеленяване на прилежащите части.
Екстериорът на сградата е завършен с фасадна керамика на PORCELANOSA.
На сутеренния етаж на комплексa се намират 7 гаража, 5 паркоместа и 3 складови помещения с различни квадратури.
*Има опция за закупуването на паркоместа.
Апартаментите са двустайни и тристайни жилища, с практични планировки и просторни стаи. Живописната морска панорама се разкрива от всеки етаж, а преобладаващото изложение спрямо дневния ход на слънцето, така както и панорамните прозорци предполагат естественото осветяване в жилищата.
Очакваме Вашето запитване
Ако желаете да организирате оглед на имот, който Ви интересува, или да посетите някой от нашите офиси, моля свържете се с нас. За да уговорите ден и час за среща или оглед, можете да се обадите на посочения в обявата телефон или да изпратите запитване чрез електронната поща. Нашият консултант ще Ви съдейства с всички необходими подробности и ще уговори удобно за Вас време.
Търсите подходящия за Вас имот?
Не се колебайте да се свържете с нас и да ни разкажете за Вашите нужди и предпочитания. Нашият екип ще проведе задълбочено проучване на пазара, за да Ви предложи имоти, които точно отговарят на Вашите критерии. Разполагаме с изключително портфолио от висококачествени и ексклузивни жилища, които са достъпни само за нашите клиенти. За да сте първите, които ще получите информация за тях – свържете се с нас.
Допълнителни услуги
Като ценен клиент на нашата компания, Вие ще имате привилегията да ползвате напълно безплатно услугите на нашия опитен юридически екип. В допълнение, предлагаме комплексни решения, включващи имуществена застраховка, безплатна финансова консултация, както и изгодни условия за финансиране. Нашите услуги се разпростират и в сферата на препродажбата, отдаването под наем и управлението на имоти. Осигуряваме висококачествени ремонтни дейности и обзавеждане чрез специализирани фирми, които са част от нашата корпоративна група и са наши дългогодишни професионални партньори.
Имотът е с обща площ от 64,55 кв.м, разположен на 2-ри етаж с гледка към морето.
Разпределение:
антре;
дневна с кухня;
спалня;
банята с тоалет;
склад;
тераса.Жилището се издава в степен на завършеност по БДС, като има опция за довършване "до ключ" и обзавеждане с различни варианти атрактивни интериорни проекти.
*Снимките са илюстративна цел.
Без такса поддръжка!
Местоположението е изключително спокойно и на самия морски бряг, с бърз достъп до Стария град и всички градски удобства. До най-близкия плаж е около 400 метра или 5 минути пеша.
Номинация в PIPA
Модерната сграда беше номинирана да участва в престижния международен конкурс PIPA.
Porcelanosa International Project Award е престижно състезание, организирано от Porcelanosa Group, водещия испански производител на керамични плочки, оборудване за кухня и баня. Целта на състезанието е да отличи изключителни архитектурни и интериорни проекти по целия свят, които демонстрират иновативно използване на продуктите и материалите на PORCELANOSA.
Девизът е EARTHCRAFTED DESIGNS - дизайни вдъхновени от природата!
Идеята е да се насърчи креативността и отличителността в архитектурния дизайн, като се подчертае връзката между материалите добити от природата и техническите умения, които превръщат едно пространство в произведение на изкуството.
Апартаменти
Сградата се състои от четири жилищни етажа и сутерен с подземен гараж.
Комплексът е с луксозни общи части, асансьор на испанския производител ORONA и помещение за общи нужди на партера на сградата, както и озеленяване на прилежащите части.
Екстериорът на сградата е завършен с фасадна керамика на PORCELANOSA.
На сутеренния етаж на комплексa се намират 7 гаража, 5 паркоместа и 3 складови помещения с различни квадратури.
*Има опция за закупуването на паркоместа.
Апартаментите са двустайни и тристайни жилища, с практични планировки и просторни стаи. Живописната морска панорама се разкрива от всеки етаж, а преобладаващото изложение спрямо дневния ход на слънцето, така както и панорамните прозорци предполагат естественото осветяване в жилищата.
Очакваме Вашето запитване
Ако желаете да организирате оглед на имот, който Ви интересува, или да посетите някой от нашите офиси, моля свържете се с нас. За да уговорите ден и час за среща или оглед, можете да се обадите на посочения в обявата телефон или да изпратите запитване чрез електронната поща. Нашият консултант ще Ви съдейства с всички необходими подробности и ще уговори удобно за Вас време.
Търсите подходящия за Вас имот?
Не се колебайте да се свържете с нас и да ни разкажете за Вашите нужди и предпочитания. Нашият екип ще проведе задълбочено проучване на пазара, за да Ви предложи имоти, които точно отговарят на Вашите критерии. Разполагаме с изключително портфолио от висококачествени и ексклузивни жилища, които са достъпни само за нашите клиенти. За да сте първите, които ще получите информация за тях – свържете се с нас.
Допълнителни услуги
Като ценен клиент на нашата компания, Вие ще имате привилегията да ползвате напълно безплатно услугите на нашия опитен юридически екип. В допълнение, предлагаме комплексни решения, включващи имуществена застраховка, безплатна финансова консултация, както и изгодни условия за финансиране. Нашите услуги се разпростират и в сферата на препродажбата, отдаването под наем и управлението на имоти. Осигуряваме висококачествени ремонтни дейности и обзавеждане чрез специализирани фирми, които са част от нашата корпоративна група и са наши дългогодишни професионални партньори.
ПРОДАЖБА
ПРОЕКТ
Двустаен апартаменти с голяма веранда в бутикова сграда в Несебър
Несебър / Бургас / България карта
Площ: 111.99 м2
Цена: 240 000 € /// 2 143 €/м2
ПРОДАЖБА
ПРОЕКТ
Двустаен апартаменти със собствен двор и морска гледка в бутикова сграда в Несебър
Несебър / Бургас / България карта
Площ: 77.14 м2
Цена: 205 000 € /// 2 658 €/м2
ПРОДАЖБА
ПРОЕКТ
Двустаен апартаменти с гледка море в нова бутикова сграда в Несебър
Несебър / Бургас / България карта
Площ: 64.55 м2
Цена: 230 000 € /// 3 563 €/м2
Изберете тази опция и ще Ви уведомяваме по имейла при настъпили промени по статуса на офертата, например:
• Промяна на цената;
• Имотът влезе в промоционално предложение;
• Имотът бъде резервран или продаден;
• Други новости, свързани с имота.
• Имотът бъде свален от продажба;
Може да се отпишете от нотификациите лесно, когато пожелаете.• Промени по условията на офертата;
• Промяна в сумата на инвестицията;
• Предметът на инвестицията е изцяло реализиран;
• Валидността на офертата е изтекла.
Може лесно да се отпишете, ако в бъдеще решите, че повече не желаете да следите тази оферта.



...В качеството си на доказан спецалист Stonehard PREMIER работи по пазарното позициониране и продажбите на множество проекти ново строителство, чиято реализация ни е поверена от водещи предприемачески компании в България и чужбина...