Tристаен апартамент за продажба в нова бутикова сграда в с. Лозен, с АКТ 16
на картатаЦена:
246 807 € (1 980 €/м2)
*Указаните цени и наличности от свободни имоти в проекта са индикативни. За актуална ценова информация, моля свържете се с нас!
Реф. Номер: SOF 116492 / 3507
Местоположение: Лозен карта
Тип на сграда/комплекс: Жилищен
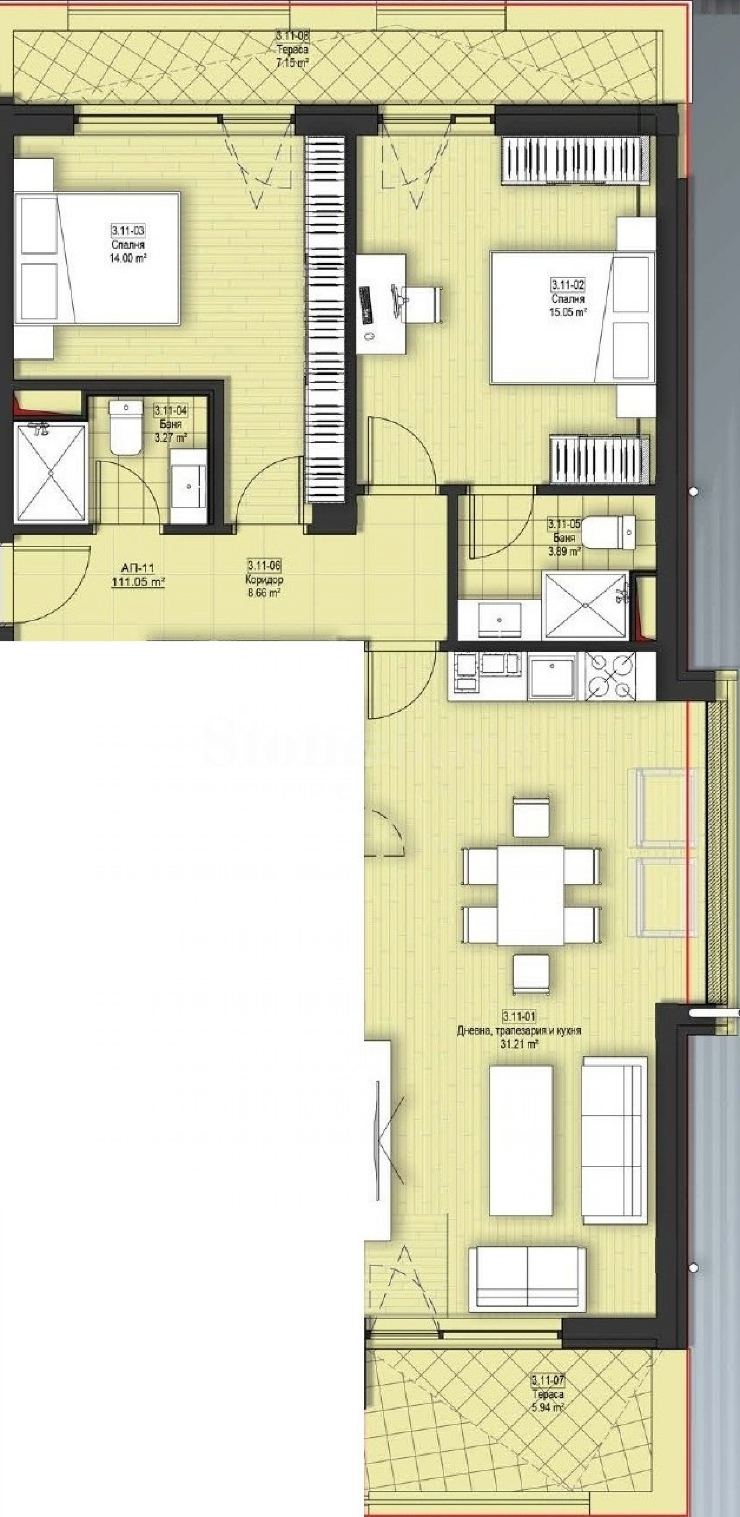
Площи на жилищата: 124.65 м2
Типове имоти в сградата/комплекса: Тристайни апартаменти
Реф. Номер: SOF 116492 / 3507
Местоположение: Лозен
Тип на сграда/комплекс: Жилищен
Клас на сградата/комплекса:
Площи на жилищата: 124.65 м2
Типове имоти в сградата/комплекса: Тристайни апартаменти
Апартаментът се предава на шпакловка и замазка и предоставя възможност за персонализация и избор на материали и интериорни решения.
Имотът е разположен на четвърти етаж и се състои от просторна дневна с тераса на изток и северен прозорец (30кв.м.), две спални със северозападно изложение(15кв.м. и 18кв.м), едната спалня разполага със собствена баня, тераса на която се излиза и от двете спални, има и втора баня.
Имотът се продава без комисион от купувача.
Жилищната сграда се изпълнява с първокласни материали по еврокодове и европейски стандарт, с паспорт за енергийна ефективност.
Предлагат се за продажба и други двустайни и тристайни апартаменти с възможност за преустройства по желание клиента.
Паркирането в сградата е организирано в приземни гаражи и външни паркоместа.
Лозен се намира близо до столицата, което означава лесен достъп до градските удобства, работни места и културни атракции. Това може да бъде предимство за хората, които искат да бъдат близо до градския живот. Селото предлага живописни гледки и възможности за планински туризъм, което може да бъде привлекателно за любителите на природата и хората, които търсят спокойствие и свеж въздух.
В района се намира Църквата "Свети Георги" - това е историческа църква, която датира от 18-ти век и предлага страхотна архитектура и иконопис и Манастирът "Свети Иван Рилски", който е популярно място за поклонение и медитация, а на 5 км е разположен Лозенския манастир „Свети Спас“.
Очакваме Вашето запитване
Ако желаете да организирате оглед на имот, който Ви интересува, или да посетите някой от нашите офиси, моля свържете се с нас. За да уговорите ден и час за среща или оглед, можете да се обадите на посочения в обявата телефон или да изпратите запитване чрез електронната поща. Нашият консултант ще Ви съдейства с всички необходими подробности и ще уговори удобно за Вас време.
Търсите подходящия за Вас имот?
Не се колебайте да се свържете с нас и да ни разкажете за Вашите нужди и предпочитания. Нашият екип ще проведе задълбочено проучване на пазара, за да Ви предложи имоти, които точно отговарят на Вашите критерии. Разполагаме с изключително портфолио от висококачествени и ексклузивни жилища, които са достъпни само за нашите клиенти. За да сте първите, които ще получите информация за тях – свържете се с нас.
Допълнителни услуги
Като ценен клиент на нашата компания, Вие ще имате привилегията да ползвате напълно безплатно услугите на нашия опитен юридически екип. В допълнение, предлагаме комплексни решения, включващи имуществена застраховка, безплатна финансова консултация, както и изгодни условия за финансиране. Нашите услуги се разпростират и в сферата на препродажбата, отдаването под наем и управлението на имоти. Осигуряваме висококачествени ремонтни дейности и обзавеждане чрез специализирани фирми, които са част от нашата корпоративна група и са наши дългогодишни професионални партньори.
Местоположение на картата
ПРОЕКТ
Tристаен апартамент за продажба в нова бутикова сграда в с. Лозен
Лозен / София / България карта
Площ: 123.33 м2
Цена: 244 193 € /// 1 980 €/м2
ПРОЕКТ
Южен тристаен апартамент за продажба в нова бутикова сграда в с. Лозен, с Акт 16
Лозен / София / България карта
Площ: 123.33 м2
Цена: 244 193 € /// 1 980 €/м2
Лимитиран брой апартаменти в бутикова нова сграда в с. Лозен
Лозен / София / България карта
Клас на сградата: Висок стандарт
Завършване: Декември, 2027 г.
Цени на имотите: 230 317 - 265 144 €
Цени на м²: 1 895 - 1 895 €/м2
Изберете тази опция и ще Ви уведомяваме по имейла при настъпили промени по статуса на офертата, например:
• Промяна на цената;
• Имотът влезе в промоционално предложение;
• Имотът бъде резервран или продаден;
• Други новости, свързани с имота.
• Имотът бъде свален от продажба;
Може да се отпишете от нотификациите лесно, когато пожелаете.• Промени по условията на офертата;
• Промяна в сумата на инвестицията;
• Предметът на инвестицията е изцяло реализиран;
• Валидността на офертата е изтекла.
Може лесно да се отпишете, ако в бъдеще решите, че повече не желаете да следите тази оферта.
За да получите абсолютно коректна информация относно свободните имоти, налични за продажба в проекта и техните актуални цени, моля свържете се с нашия офис на посочената информация за контакт.
Ние полагаме усилия, за да поддържаме нашите ценови листи абсолютно актуални и коректни, но често това е невъзможно, предвид големия брой нови проекти в нашия каталог и силно динамичните продажби.
Благодарим Ви за проявеното разбиране!



...В качеството си на доказан спецалист Stonehard PREMIER работи по пазарното позициониране и продажбите на множество проекти ново строителство, чиято реализация ни е поверена от водещи предприемачески компании в България и чужбина...