One-bedroom apartment in an innovative, energy-efficient residential building with photovoltaic installation
REF#SOF 129081
/
1-bedroom apartments
/
Sales
/
Sofia
/
Manastirski Livadi - East
/
Sofia
/
Bulgaria
on the map
Price:
206 324 € (2 486 €/m 2)
*The prices and availability of vacant properties in the project are indicative. For up-to-date pricing information, please contact us!
Ref. Number: SOF 129081 / 4197
Location: Manastirski Livadi - East / Sofia map
Building/complex type: Residential
Total area of the building/complex: 2 896м²
Housing areas: 83 m 2
Types of properties in the building/complex: 1-bedroom apartments
Ref. Number: SOF 129081 / 4197
Location: Manastirski Livadi - East / Sofia
Building/complex type: Residential
Building/complex class:
Total area of the building/complex: 2 896м²
Housing areas: 83 m 2
Types of properties in the building/complex: 1-bedroom apartments
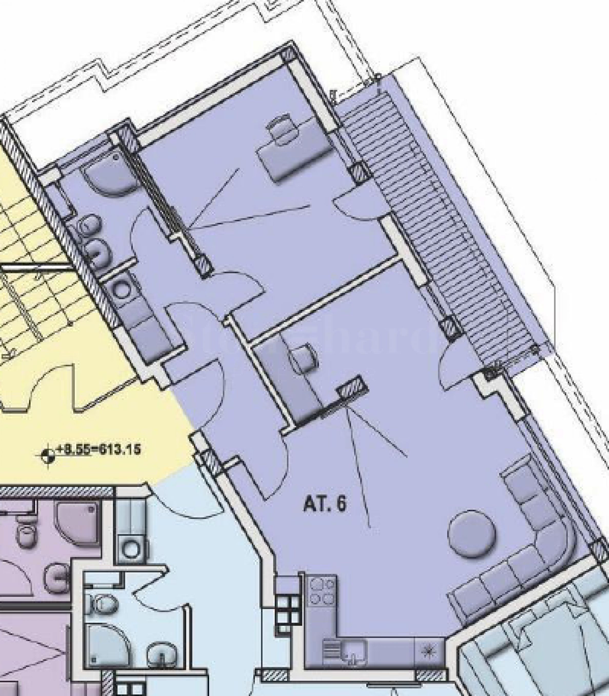
The apartment has an area of 85.25 sq m and consists of an entrance hall, a living room with a kitchenette, a bedroom, a bathroom with a toilet and a terrace, which can be accessed from the living room and the bedroom.
The building is six-story and has a total of 9 apartments and 6 studios, designed with energy efficiency and comfort in mind. 15 parking spaces are provided, as well as 8 basements for additional convenience of the residents. The building is gasified, and the heating is solved with a built-in installation with radiators in each room.
The facade is filled with high-quality materials, including a photovoltaic system that generates green energy for the common areas and households, ensuring lower electricity bills and greater energy independence.
The apartments have spacious and bright rooms, thanks to the French windows and the high ceiling of 2.70 m. The exterior joinery is five-chamber PVC with double glazing (24 mm) with "4 seasons" technology, which contributes to excellent heat and sound insulation.
For the convenience of the future owners, a common yard is provided, which is equipped with an irrigation system, and the yards adjacent to some of the homes are separated by a discreet wooden fence.
The building is fully completed and has Act 16, which allows immediate move-in for the new owners.
Location advantages:
Within walking distance to:
South Park;
Food chains;
Paradise Center, Bulgaria Mall;
Schools and kindergartens;
Medical centers and sports complexes.
City transport:
Buses;
Trolleybuses;
With connection to the Metro station (line M3).
We look forward to your inquiry.
If you would like to arrange a viewing of a property that interests you, or to visit one of our offices, please contact us. To arrange a day and time for a meeting or viewing, you can call the phone number listed in the ad or send an inquiry via e-mail. Our consultant will assist you with all the necessary details and will arrange a time convenient for you.
Are you looking for the right property for you?
Do not hesitate to contact us and tell us about your needs and preferences. Our team will conduct a thorough market research to offer you properties that exactly meet your criteria. We have an exceptional portfolio of high-quality and exclusive homes that are available only to our clients. To be the first to receive information about them – contact us.
Additional services
As a valued client of our company, you will have the privilege of using the services of our experienced legal team completely free of charge. In addition, we offer comprehensive solutions, including property insurance, free financial consulting, as well as favorable financing conditions. Our services also extend to the field of resale, rental and property management. We provide high-quality renovation and furniture through specialized companies that are part of our corporate group and are our long-standing professional partners.
Viewings
We are ready to organize a viewing of this property at a time convenient for you. Please contact the responsible estate agent and inform them when you would like to have viewings arranged. We can also help you with flight tickets and hotel booking, as well as with travel insurance.
Property reservation
You can reserve this property with a non-refundable deposit of 2,000 Euro, payable by credit card or by bank transfer to our company bank account. After receiving the deposit the property will be marked as reserved, no further viewings will be carried out with other potential buyers, and we will start the preparation of the necessary documents for completion of the deal. Please contact the responsible estate agent for more information about the purchase procedure and the payment methods.
After sale services
We are a reputable company with many years of experience in the real estate business. Thus, we will be with you not only during the purchase process, but also after the deal is completed, providing you with a wide range of additional services tailored to your requirements and needs, so that you can fully enjoy your property in Bulgaria. The after sale services we offer include property insurance, construction and repair works, furniture, accounting and legal assistance, renewal of contracts for electricity, water, telephone and many more.
Location on the map
Multi-family residential building with a landscaped yard and various types of apartments in the "Malinova Dolina" district
Malinova Dolina / Sofia / Sofia / Bulgaria map
Property prices: Price upon request
SALE
PROJECT
One-bedroom apartment with indoor parking space in the "Malinova Dolina" district
Malinova Dolina / Sofia / Sofia / Bulgaria map
Area: 72.53 m 2
Price: 135 250 € /// 1 865 €/m 2
A new residential project of three buildings with different types of apartments in the "Dianabad" district
Dianabad / Sofia / Sofia / Bulgaria map
Property prices: 176 199 - 450 565 €
Prices per m²: 2 913 - 3 339 €/m 2
Select this option and we will notify you by email if there are any changes to the offer status, for example:
• Price change;
• The property entered into a promotional offer;
• The property is reserved or sold;
• Other news related to the property.
• The property is removed from sale;
You can easily unsubscribe from notifications whenever you want.• Changes to the terms of the offer;
• Change in the amount of the investment;
• The subject of the investment has been fully realized;
• The offer has expired.
You can easily unsubscribe if you decide in the future that you no longer want to follow this offer.
To receive absolutely correct information about the vacant properties available for sale in the project and their current prices, please contact our office at the contact information provided.
We make every effort to keep our price lists absolutely up-to-date and correct, but this is often impossible, given the large number of new projects in our catalog and the highly dynamic sales.
Thank you for your understanding!



...As a proven specialist, Stonehard PREMIER works on the market positioning and sales of numerous new construction projects, the implementation of which has been entrusted to us by leading entrepreneurial companies in Bulgaria and abroad...