One-bedroom apartment with parking space on the 10th floor in Teatralna Park Residence
Price:
323 536 € (excluding VAT) (5 184 €/m 2 (excluding VAT))
*The prices and availability of vacant properties in the project are indicative. For up-to-date pricing information, please contact us!
Ref. Number: Kbs 136083 / 3899
Location: Oborishte / Sofia map
Building/complex type: Residential
Housing areas: 62.41 m 2
Types of properties in the building/complex: 1-bedroom apartments
Ref. Number: Kbs 136083 / 3899
Location: Oborishte / Sofia
Building/complex type: Residential
Building/complex class:
Housing areas: 62.41 m 2
Types of properties in the building/complex: 1-bedroom apartments
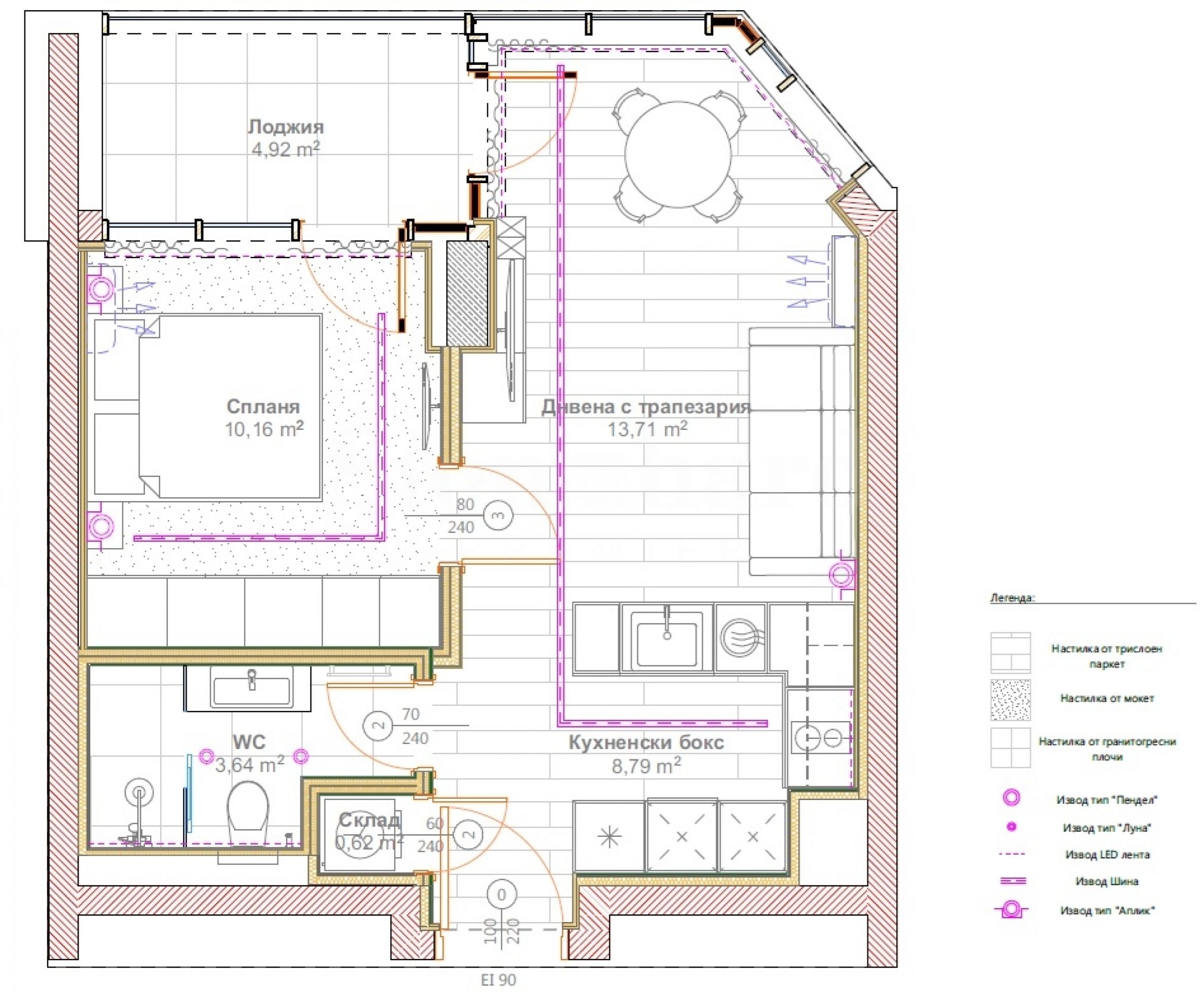
We present for sale a one-bedroom apartment in the prestigious Teatralna Park Residence complex, located on the 10th floor with northeast/east exposure. The apartment has 62.41 m? total area and 52.24 m? net area, with excellent distribution and modern architectural lines.
Parking space 2075 is included in the price!
Distribution:
•Entrance hall;
•Living room with dining area (13.71 m?) – spacious and bright, with panoramic windows;
•Kitchenette (8.79 m?) – functionally located and visually separated;
•Bedroom (10.16 m?);
•Bathroom with WC (3.64 m?);
•Storage room (0.62 m?);
• Loggia / terrace (4.92 m?).
Interior – can be executed exactly as shown in the visualizations
The apartment is not yet furnished, but can be fully finished in the style and details shown in the visualizations:
modern minimalism with a luxurious Scandinavian feel, neutral tones, high-end materials and precise LED lighting.
The planned interior solution includes:
•Warm wood textures and graphite accents
•Upholstered furniture in gray and olive
•Round dining table and comfortable upholstered chairs
•Stylish decorative shelves and built-in solutions
•Linear and accent lighting, emphasizing geometry
•Thin, high curtains that let in light
The apartment can be completed to a degree that fully matches the visualizations – including materials, colors, and overall style.
Price and completion time:
- Apartment price: 283536 EUR excluding VAT
- Parking space: 40000 EUR excluding VAT
- Total: 323536 EUR excluding VAT
We look forward to your inquiry.
If you would like to arrange a viewing of a property that interests you, or to visit one of our offices, please contact us. To arrange a day and time for a meeting or viewing, you can call the phone number listed in the ad or send an inquiry via e-mail. Our consultant will assist you with all the necessary details and will arrange a time convenient for you.
Are you looking for the right property for you?
Do not hesitate to contact us and tell us about your needs and preferences. Our team will conduct a thorough market research to offer you properties that exactly meet your criteria. We have an exceptional portfolio of high-quality and exclusive homes that are available only to our clients. To be the first to receive information about them – contact us.
Additional services
As a valued client of our company, you will have the privilege of using the services of our experienced legal team completely free of charge. In addition, we offer comprehensive solutions, including property insurance, free financial consulting, as well as favorable financing conditions. Our services also extend to the field of resale, rental and property management. We provide high-quality renovation and furniture through specialized companies that are part of our corporate group and are our long-standing professional partners.
Viewings
We are ready to organize a viewing of this property at a time convenient for you. Please contact the responsible estate agent and inform them when you would like to have viewings arranged. We can also help you with flight tickets and hotel booking, as well as with travel insurance.
Property reservation
You can reserve this property with a non-refundable deposit of 2,000 Euro, payable by credit card or by bank transfer to our company bank account. After receiving the deposit the property will be marked as reserved, no further viewings will be carried out with other potential buyers, and we will start the preparation of the necessary documents for completion of the deal. Please contact the responsible estate agent for more information about the purchase procedure and the payment methods.
After sale services
We are a reputable company with many years of experience in the real estate business. Thus, we will be with you not only during the purchase process, but also after the deal is completed, providing you with a wide range of additional services tailored to your requirements and needs, so that you can fully enjoy your property in Bulgaria. The after sale services we offer include property insurance, construction and repair works, furniture, accounting and legal assistance, renewal of contracts for electricity, water, telephone and many more.
Location on the map
MANDATE
SALE
PROJECT
South-facing one-bedroom apartment in the "Prespa" building in the "Malinova Dolina" district
Malinova Dolina / Sofia / Sofia / Bulgaria map
Area: 75 m 2
Price: 198 000 € /// 2 640 €/m 2
MANDATE
SALE
PROJECT
Designer apartment with parking space in a luxury building OKINAWA
Malinova Dolina / Sofia / Sofia / Bulgaria map
Building/complex class: High standard
Area: 76.54 m 2
Price: 229 900 € /// 3 004 €/m 2
SALE
PROJECT
One-bedroom apartment in a modern complex with Act 16 in the "Banishora" district
Banishora / Sofia / Sofia / Bulgaria map
Area: 62 m 2
Price: 180 000 € /// 2 903 €/m 2
Select this option and we will notify you by email if there are any changes to the offer status, for example:
• Price change;
• The property entered into a promotional offer;
• The property is reserved or sold;
• Other news related to the property.
• The property is removed from sale;
You can easily unsubscribe from notifications whenever you want.• Changes to the terms of the offer;
• Change in the amount of the investment;
• The subject of the investment has been fully realized;
• The offer has expired.
You can easily unsubscribe if you decide in the future that you no longer want to follow this offer.
To receive absolutely correct information about the vacant properties available for sale in the project and their current prices, please contact our office at the contact information provided.
We make every effort to keep our price lists absolutely up-to-date and correct, but this is often impossible, given the large number of new projects in our catalog and the highly dynamic sales.
Thank you for your understanding!



...As a proven specialist, Stonehard PREMIER works on the market positioning and sales of numerous new construction projects, the implementation of which has been entrusted to us by leading entrepreneurial companies in Bulgaria and abroad...