Ref. Number: SOF-135323 / 4218
Location: Malinova Dolina / Sofia map
Building/complex type: Residential
Building/complex class: High standard
Housing areas: 102.14 m 2
Types of properties in the building/complex: 2-bedroom apartments
Ref. Number: SOF-135323
Location: Malinova Dolina / Sofia
Building/complex type: Жилищен
Building/complex class: High standard
Housing areas: 102.14 m 2
Types of properties in the building/complex: 2-bedroom apartments
CONSTRUCTION HAS STARTED! WITHOUT COMMISSION FROM THE BUYER!
• Planned completion - by the end of 2026.
The indicated price is excluding VAT.
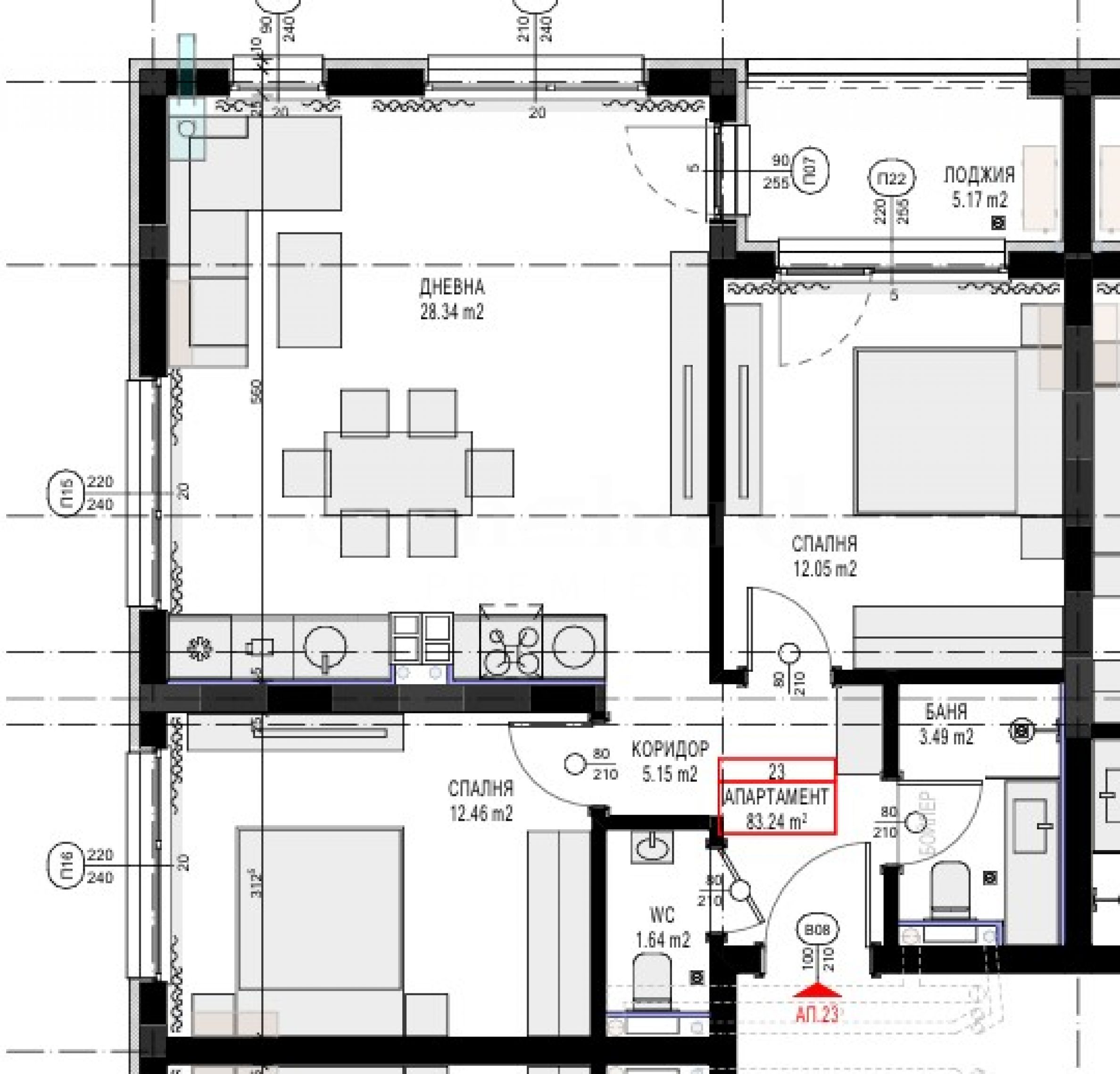
Apartment No. 23 is located on the 3rd floor of the building and has a built-up area of 83.24 m2., with distribution: corridor, bathroom/toilet, toilet, bright living room with kitchen and dining room, two comfortable bedrooms, terrace. The apartment has a storage room included in the price - 3.38 m2.
The property is being let in a state of completion according to Bulgarian Construction Standards (with plaster and screed). The heating is gas and air conditioning.
There is an opportunity to purchase underground parking spaces at prices of 50,525 BGN (25,833 EUR) excluding VAT or above-ground parking spaces at prices of 34,227 BGN (17,500 EUR) excluding VAT.
Location
The new residential building by TASKOV & STOYANOV from the COMFORT RESIDENCE series is located in the newly formed area of the Malinova Dolina district, near the Vasil Levski National Sports Academy (NSA). The project is the work of the established and award-winning architectural office STUDIO CREATIVE , with which the investor has a long-term cooperation.
The location has excellent connectivity - close to a future metro station in the area, from the "Nadezhda - Lozenets" line, to the universities of "Studentski Grad", the National Academy of Sciences and the Winter Palace, with quick access to "Simeonovsko Shosse" and the Ring Road, Ring Mall, Sofia Business Park. Access to Vitosha Nature Park and the central part of the capital is also convenient.
Residential complex "COMFORT RESIDENCE - Malinova Dolina II" is an example of modernist architecture that combines aesthetics, functionality and comfort. The building is designed to create a favorable living environment in which light, space and nature play a leading role. The project offers sustainable and high-quality urban living, meeting the latest trends in contemporary architecture at a global level.
The construction is being carried out by the leader in luxury construction ELITE BUILDING COMPANY. It is planned to use the most modern technologies, in combination with high-class materials and equipment from leading world manufacturers:
• WIENERBERGER bricks;
• Facade and thermal insulation package BAUMIT;
• 6-chamber PVC joinery DECEUNINCK. The profile system has a frame width of 76 mm. SIEGENIA fittings and accessories. The glass unit is 44 mm thick, with two clear float glasses of 4 mm and one low-emission K-glass of 4 mm;
• 8-seater ORONA elevators with an elegant finish;
• Luxuriously finished common areas according to a designer interior project, including polished natural stone flooring.
About the building
Functionally, the building is designed on four levels with a last terraced floor, with each floor designed with maximum comfort and optimal distribution of the apartments. The ground (first) floor includes affordable apartments with individual green courtyards, as well as a main entrance with a modern and welcoming design. The standard floors offer apartments with spacious loggias and French windows, which increase the connection with the outside space. The apartments on the top floor are designed as luxury penthouses with panoramic terraces, offering unique views and exclusive living. Vertical communication is solved with two elevators and one stairwell, guaranteeing functionality and convenience.
"COMFORT RESIDENCE - Malinova Dolina II" offers a total of 40 apartments, 41 underground parking spaces and 10 above-ground (outdoor) parking spaces. On the first floor are located apartments with adjoining private courtyards, as well as outdoor parking spaces.
The apartments in the building are two-bedroom, three-bedroom and one four-bedroom property. Each apartment has a storage room, which is included in the price and in the total area.
Payment schemes, apart from negotiation, which is possible, are:
Scheme 1 with bank credit:
• 3912 BGN (2000 EUR) deposit (stop-kaparo) for a 2-room apartment and 5868 BGN (3000 EUR) for a 3-room and 4-room apartment. A deposit agreement is signed with a commitment to sign a preliminary purchase and sale contract;
• 30% minus the stop deposit upon signing a preliminary contract;
• 70% with a bank loan after Act 14 (certificate under Art. 181 of the Land Use Act) in tranches.
Scheme 2:
• 3912 BGN (2000 EUR) euro deposit (stop-kaparo) for a 2-room apartment and 5868 BGN (3000 EUR) for a 3-room and 4-room apartment. A deposit agreement is signed with a commitment to sign a preliminary purchase and sale contract;
• 30% minus the stop deposit upon signing a preliminary contract;
• 10% when reaching the second floor of the building;
• 30% upon issuance of Act 14;
• 10% for facade and joinery;
• 10% upon issuance of Act 15;
• 10% upon issuance of Act 16 (Permit for Use).
Concept
The architects and the developer have once again opted for a residential complex with a state-of-the-art design, designed with an emphasis on minimalist style, clean lines and the harmonious interaction between architecture and the environment. The composition combines functionality and aesthetics, offering open spaces, abundant natural lighting and modern materials. The building has a rectangular shape, with a well-defined modular structure, which gives a sense of order and rhythm. The distribution of the facade and windows creates a balanced vision, while providing optimal lighting and views of the surrounding environment and the beautiful mountain.
The facade composition and materials combine light and dark tones, creating an elegant and clean look. The main material is a light mineral plaster, which gives lightness and airiness to the building, while the Bronze accent on the windows and green details bring depth and contrast. The glass railings on the terraces add modernity and transparency, emphasizing the connection between the interior and exterior spaces. The use of large glass windows (French type) further enhances this effect, allowing the interior and exterior to merge into one. The roof structure is designed to create dynamics and character to the silhouette, but also to actually protect the terraces.
The landscaping is a key element in the overall design of the complex. The spaces around the building include rich vegetation, ornamental trees, shrubs and lawns, which create a sense of harmony and natural environment. Special attention is paid to the green areas with integrated recreation areas, pedestrian alleys, lined with decorative paving and outdoor LED lighting, which highlights the architectural details at night.
Advantages of "COMFORT RESIDENCE - Malinova Dolina II":
• Next to the National Academy of Sciences and the Winter Palace, the universities of "Student City" - attractive investment properties for rent;
• Impressive vision, luxurious common areas, impeccable design;
• Optimized homes with comfortable and functional layouts;
• Gas heating;
• High-quality construction and innovative technologies;
• An investor with extensive experience and numerous successfully completed buildings.
We look forward to your inquiry.
If you would like to arrange a viewing of a property that interests you, or to visit one of our offices, please contact us. To arrange a day and time for a meeting or viewing, you can call the phone number listed in the ad or send an inquiry via e-mail. Our consultant will assist you with all the necessary details and will arrange a time convenient for you.
Are you looking for the right property for you?
Do not hesitate to contact us and tell us about your needs and preferences. Our team will conduct a thorough market research to offer you properties that exactly meet your criteria. We have an exceptional portfolio of high-quality and exclusive homes that are available only to our clients. To be the first to receive information about them – contact us.
Additional services
As a valued client of our company, you will have the privilege of using the services of our experienced legal team completely free of charge. In addition, we offer comprehensive solutions, including property insurance, free financial consulting, as well as favorable financing conditions. Our services also extend to the field of resale, rental and property management. We provide high-quality renovation and furniture through specialized companies that are part of our corporate group and are our long-standing professional partners.
Viewings
We are ready to organize a viewing of this property at a time convenient for you. Please contact the responsible estate agent and inform them when you would like to have viewings arranged. We can also help you with flight tickets and hotel booking, as well as with travel insurance.
Property reservation
You can reserve this property with a non-refundable deposit of 2,000 Euro, payable by credit card or by bank transfer to our company bank account. After receiving the deposit the property will be marked as reserved, no further viewings will be carried out with other potential buyers, and we will start the preparation of the necessary documents for completion of the deal. Please contact the responsible estate agent for more information about the purchase procedure and the payment methods.
After sale services
We are a reputable company with many years of experience in the real estate business. Thus, we will be with you not only during the purchase process, but also after the deal is completed, providing you with a wide range of additional services tailored to your requirements and needs, so that you can fully enjoy your property in Bulgaria. The after sale services we offer include property insurance, construction and repair works, furniture, accounting and legal assistance, renewal of contracts for electricity, water, telephone and many more.
Location on the map
CONSTRUCTION HAS STARTED! WITHOUT COMMISSION FROM THE BUYER!
• Planned completion - by the end of 2026.
The indicated price is excluding VAT.
Apartment No. 23 is located on the 3rd floor of the building and has a built-up area of 83.24 m2., with distribution: corridor, bathroom/toilet, toilet, bright living room with kitchen and dining room, two comfortable bedrooms, terrace. The apartment has a storage room included in the price - 3.38 m2.
The property is being let in a state of completion according to Bulgarian Construction Standards (with plaster and screed). The heating is gas and air conditioning.
There is an opportunity to purchase underground parking spaces at prices of 50,525 BGN (25,833 EUR) excluding VAT or above-ground parking spaces at prices of 34,227 BGN (17,500 EUR) excluding VAT.
Location
The new residential building by TASKOV & STOYANOV from the COMFORT RESIDENCE series is located in the newly formed area of the Malinova Dolina district, near the Vasil Levski National Sports Academy (NSA). The project is the work of the established and award-winning architectural office STUDIO CREATIVE , with which the investor has a long-term cooperation.
The location has excellent connectivity - close to a future metro station in the area, from the "Nadezhda - Lozenets" line, to the universities of "Studentski Grad", the National Academy of Sciences and the Winter Palace, with quick access to "Simeonovsko Shosse" and the Ring Road, Ring Mall, Sofia Business Park. Access to Vitosha Nature Park and the central part of the capital is also convenient.
Residential complex "COMFORT RESIDENCE - Malinova Dolina II" is an example of modernist architecture that combines aesthetics, functionality and comfort. The building is designed to create a favorable living environment in which light, space and nature play a leading role. The project offers sustainable and high-quality urban living, meeting the latest trends in contemporary architecture at a global level.
The construction is being carried out by the leader in luxury construction ELITE BUILDING COMPANY. It is planned to use the most modern technologies, in combination with high-class materials and equipment from leading world manufacturers:
• WIENERBERGER bricks;
• Facade and thermal insulation package BAUMIT;
• 6-chamber PVC joinery DECEUNINCK. The profile system has a frame width of 76 mm. SIEGENIA fittings and accessories. The glass unit is 44 mm thick, with two clear float glasses of 4 mm and one low-emission K-glass of 4 mm;
• 8-seater ORONA elevators with an elegant finish;
• Luxuriously finished common areas according to a designer interior project, including polished natural stone flooring.
About the building
Functionally, the building is designed on four levels with a last terraced floor, with each floor designed with maximum comfort and optimal distribution of the apartments. The ground (first) floor includes affordable apartments with individual green courtyards, as well as a main entrance with a modern and welcoming design. The standard floors offer apartments with spacious loggias and French windows, which increase the connection with the outside space. The apartments on the top floor are designed as luxury penthouses with panoramic terraces, offering unique views and exclusive living. Vertical communication is solved with two elevators and one stairwell, guaranteeing functionality and convenience.
"COMFORT RESIDENCE - Malinova Dolina II" offers a total of 40 apartments, 41 underground parking spaces and 10 above-ground (outdoor) parking spaces. On the first floor are located apartments with adjoining private courtyards, as well as outdoor parking spaces.
The apartments in the building are two-bedroom, three-bedroom and one four-bedroom property. Each apartment has a storage room, which is included in the price and in the total area.
Payment schemes, apart from negotiation, which is possible, are:
Scheme 1 with bank credit:
• 3912 BGN (2000 EUR) deposit (stop-kaparo) for a 2-room apartment and 5868 BGN (3000 EUR) for a 3-room and 4-room apartment. A deposit agreement is signed with a commitment to sign a preliminary purchase and sale contract;
• 30% minus the stop deposit upon signing a preliminary contract;
• 70% with a bank loan after Act 14 (certificate under Art. 181 of the Land Use Act) in tranches.
Scheme 2:
• 3912 BGN (2000 EUR) euro deposit (stop-kaparo) for a 2-room apartment and 5868 BGN (3000 EUR) for a 3-room and 4-room apartment. A deposit agreement is signed with a commitment to sign a preliminary purchase and sale contract;
• 30% minus the stop deposit upon signing a preliminary contract;
• 10% when reaching the second floor of the building;
• 30% upon issuance of Act 14;
• 10% for facade and joinery;
• 10% upon issuance of Act 15;
• 10% upon issuance of Act 16 (Permit for Use).
Concept
The architects and the developer have once again opted for a residential complex with a state-of-the-art design, designed with an emphasis on minimalist style, clean lines and the harmonious interaction between architecture and the environment. The composition combines functionality and aesthetics, offering open spaces, abundant natural lighting and modern materials. The building has a rectangular shape, with a well-defined modular structure, which gives a sense of order and rhythm. The distribution of the facade and windows creates a balanced vision, while providing optimal lighting and views of the surrounding environment and the beautiful mountain.
The facade composition and materials combine light and dark tones, creating an elegant and clean look. The main material is a light mineral plaster, which gives lightness and airiness to the building, while the Bronze accent on the windows and green details bring depth and contrast. The glass railings on the terraces add modernity and transparency, emphasizing the connection between the interior and exterior spaces. The use of large glass windows (French type) further enhances this effect, allowing the interior and exterior to merge into one. The roof structure is designed to create dynamics and character to the silhouette, but also to actually protect the terraces.
The landscaping is a key element in the overall design of the complex. The spaces around the building include rich vegetation, ornamental trees, shrubs and lawns, which create a sense of harmony and natural environment. Special attention is paid to the green areas with integrated recreation areas, pedestrian alleys, lined with decorative paving and outdoor LED lighting, which highlights the architectural details at night.
Advantages of "COMFORT RESIDENCE - Malinova Dolina II":
• Next to the National Academy of Sciences and the Winter Palace, the universities of "Student City" - attractive investment properties for rent;
• Impressive vision, luxurious common areas, impeccable design;
• Optimized homes with comfortable and functional layouts;
• Gas heating;
• High-quality construction and innovative technologies;
• An investor with extensive experience and numerous successfully completed buildings.
We look forward to your inquiry.
If you would like to arrange a viewing of a property that interests you, or to visit one of our offices, please contact us. To arrange a day and time for a meeting or viewing, you can call the phone number listed in the ad or send an inquiry via e-mail. Our consultant will assist you with all the necessary details and will arrange a time convenient for you.
Are you looking for the right property for you?
Do not hesitate to contact us and tell us about your needs and preferences. Our team will conduct a thorough market research to offer you properties that exactly meet your criteria. We have an exceptional portfolio of high-quality and exclusive homes that are available only to our clients. To be the first to receive information about them – contact us.
Additional services
As a valued client of our company, you will have the privilege of using the services of our experienced legal team completely free of charge. In addition, we offer comprehensive solutions, including property insurance, free financial consulting, as well as favorable financing conditions. Our services also extend to the field of resale, rental and property management. We provide high-quality renovation and furniture through specialized companies that are part of our corporate group and are our long-standing professional partners.
Viewings
We are ready to organize a viewing of this property at a time convenient for you. Please contact the responsible estate agent and inform them when you would like to have viewings arranged. We can also help you with flight tickets and hotel booking, as well as with travel insurance.
Property reservation
You can reserve this property with a non-refundable deposit of 2,000 Euro, payable by credit card or by bank transfer to our company bank account. After receiving the deposit the property will be marked as reserved, no further viewings will be carried out with other potential buyers, and we will start the preparation of the necessary documents for completion of the deal. Please contact the responsible estate agent for more information about the purchase procedure and the payment methods.
After sale services
We are a reputable company with many years of experience in the real estate business. Thus, we will be with you not only during the purchase process, but also after the deal is completed, providing you with a wide range of additional services tailored to your requirements and needs, so that you can fully enjoy your property in Bulgaria. The after sale services we offer include property insurance, construction and repair works, furniture, accounting and legal assistance, renewal of contracts for electricity, water, telephone and many more.
CONSTRUCTION HAS STARTED! WITHOUT COMMISSION FROM THE BUYER!
• Planned completion - by the end of 2026.
The indicated price is excluding VAT.
Apartment No. 23 is located on the 3rd floor of the building and has a built-up area of 83.24 m2., with distribution: corridor, bathroom/toilet, toilet, bright living room with kitchen and dining room, two comfortable bedrooms, terrace. The apartment has a storage room included in the price - 3.38 m2.
The property is being let in a state of completion according to Bulgarian Construction Standards (with plaster and screed). The heating is gas and air conditioning.
There is an opportunity to purchase underground parking spaces at prices of 50,525 BGN (25,833 EUR) excluding VAT or above-ground parking spaces at prices of 34,227 BGN (17,500 EUR) excluding VAT.
Location
The new residential building by TASKOV & STOYANOV from the COMFORT RESIDENCE series is located in the newly formed area of the Malinova Dolina district, near the Vasil Levski National Sports Academy (NSA). The project is the work of the established and award-winning architectural office STUDIO CREATIVE , with which the investor has a long-term cooperation.
The location has excellent connectivity - close to a future metro station in the area, from the "Nadezhda - Lozenets" line, to the universities of "Studentski Grad", the National Academy of Sciences and the Winter Palace, with quick access to "Simeonovsko Shosse" and the Ring Road, Ring Mall, Sofia Business Park. Access to Vitosha Nature Park and the central part of the capital is also convenient.
Residential complex "COMFORT RESIDENCE - Malinova Dolina II" is an example of modernist architecture that combines aesthetics, functionality and comfort. The building is designed to create a favorable living environment in which light, space and nature play a leading role. The project offers sustainable and high-quality urban living, meeting the latest trends in contemporary architecture at a global level.
The construction is being carried out by the leader in luxury construction ELITE BUILDING COMPANY. It is planned to use the most modern technologies, in combination with high-class materials and equipment from leading world manufacturers:
• WIENERBERGER bricks;
• Facade and thermal insulation package BAUMIT;
• 6-chamber PVC joinery DECEUNINCK. The profile system has a frame width of 76 mm. SIEGENIA fittings and accessories. The glass unit is 44 mm thick, with two clear float glasses of 4 mm and one low-emission K-glass of 4 mm;
• 8-seater ORONA elevators with an elegant finish;
• Luxuriously finished common areas according to a designer interior project, including polished natural stone flooring.
About the building
Functionally, the building is designed on four levels with a last terraced floor, with each floor designed with maximum comfort and optimal distribution of the apartments. The ground (first) floor includes affordable apartments with individual green courtyards, as well as a main entrance with a modern and welcoming design. The standard floors offer apartments with spacious loggias and French windows, which increase the connection with the outside space. The apartments on the top floor are designed as luxury penthouses with panoramic terraces, offering unique views and exclusive living. Vertical communication is solved with two elevators and one stairwell, guaranteeing functionality and convenience.
"COMFORT RESIDENCE - Malinova Dolina II" offers a total of 40 apartments, 41 underground parking spaces and 10 above-ground (outdoor) parking spaces. On the first floor are located apartments with adjoining private courtyards, as well as outdoor parking spaces.
The apartments in the building are two-bedroom, three-bedroom and one four-bedroom property. Each apartment has a storage room, which is included in the price and in the total area.
Payment schemes, apart from negotiation, which is possible, are:
Scheme 1 with bank credit:
• 3912 BGN (2000 EUR) deposit (stop-kaparo) for a 2-room apartment and 5868 BGN (3000 EUR) for a 3-room and 4-room apartment. A deposit agreement is signed with a commitment to sign a preliminary purchase and sale contract;
• 30% minus the stop deposit upon signing a preliminary contract;
• 70% with a bank loan after Act 14 (certificate under Art. 181 of the Land Use Act) in tranches.
Scheme 2:
• 3912 BGN (2000 EUR) euro deposit (stop-kaparo) for a 2-room apartment and 5868 BGN (3000 EUR) for a 3-room and 4-room apartment. A deposit agreement is signed with a commitment to sign a preliminary purchase and sale contract;
• 30% minus the stop deposit upon signing a preliminary contract;
• 10% when reaching the second floor of the building;
• 30% upon issuance of Act 14;
• 10% for facade and joinery;
• 10% upon issuance of Act 15;
• 10% upon issuance of Act 16 (Permit for Use).
Concept
The architects and the developer have once again opted for a residential complex with a state-of-the-art design, designed with an emphasis on minimalist style, clean lines and the harmonious interaction between architecture and the environment. The composition combines functionality and aesthetics, offering open spaces, abundant natural lighting and modern materials. The building has a rectangular shape, with a well-defined modular structure, which gives a sense of order and rhythm. The distribution of the facade and windows creates a balanced vision, while providing optimal lighting and views of the surrounding environment and the beautiful mountain.
The facade composition and materials combine light and dark tones, creating an elegant and clean look. The main material is a light mineral plaster, which gives lightness and airiness to the building, while the Bronze accent on the windows and green details bring depth and contrast. The glass railings on the terraces add modernity and transparency, emphasizing the connection between the interior and exterior spaces. The use of large glass windows (French type) further enhances this effect, allowing the interior and exterior to merge into one. The roof structure is designed to create dynamics and character to the silhouette, but also to actually protect the terraces.
The landscaping is a key element in the overall design of the complex. The spaces around the building include rich vegetation, ornamental trees, shrubs and lawns, which create a sense of harmony and natural environment. Special attention is paid to the green areas with integrated recreation areas, pedestrian alleys, lined with decorative paving and outdoor LED lighting, which highlights the architectural details at night.
Advantages of "COMFORT RESIDENCE - Malinova Dolina II":
• Next to the National Academy of Sciences and the Winter Palace, the universities of "Student City" - attractive investment properties for rent;
• Impressive vision, luxurious common areas, impeccable design;
• Optimized homes with comfortable and functional layouts;
• Gas heating;
• High-quality construction and innovative technologies;
• An investor with extensive experience and numerous successfully completed buildings.
We look forward to your inquiry.
If you would like to arrange a viewing of a property that interests you, or to visit one of our offices, please contact us. To arrange a day and time for a meeting or viewing, you can call the phone number listed in the ad or send an inquiry via e-mail. Our consultant will assist you with all the necessary details and will arrange a time convenient for you.
Are you looking for the right property for you?
Do not hesitate to contact us and tell us about your needs and preferences. Our team will conduct a thorough market research to offer you properties that exactly meet your criteria. We have an exceptional portfolio of high-quality and exclusive homes that are available only to our clients. To be the first to receive information about them – contact us.
Additional services
As a valued client of our company, you will have the privilege of using the services of our experienced legal team completely free of charge. In addition, we offer comprehensive solutions, including property insurance, free financial consulting, as well as favorable financing conditions. Our services also extend to the field of resale, rental and property management. We provide high-quality renovation and furniture through specialized companies that are part of our corporate group and are our long-standing professional partners.
Viewings
We are ready to organize a viewing of this property at a time convenient for you. Please contact the responsible estate agent and inform them when you would like to have viewings arranged. We can also help you with flight tickets and hotel booking, as well as with travel insurance.
Property reservation
You can reserve this property with a non-refundable deposit of 2,000 Euro, payable by credit card or by bank transfer to our company bank account. After receiving the deposit the property will be marked as reserved, no further viewings will be carried out with other potential buyers, and we will start the preparation of the necessary documents for completion of the deal. Please contact the responsible estate agent for more information about the purchase procedure and the payment methods.
After sale services
We are a reputable company with many years of experience in the real estate business. Thus, we will be with you not only during the purchase process, but also after the deal is completed, providing you with a wide range of additional services tailored to your requirements and needs, so that you can fully enjoy your property in Bulgaria. The after sale services we offer include property insurance, construction and repair works, furniture, accounting and legal assistance, renewal of contracts for electricity, water, telephone and many more.
MANDATE
SALE
PROJECT
Spacious, designer apartment with parking space in a luxury building with Act 16
Malinova Dolina / Sofia / Sofia / Bulgaria map
Building/complex class: High standard
Area: 136 m 2
Price: 434 900 € /// 3 198 €/m 2
Apartments in Stage 2 of a modern complex near "Simeonovsko Shose"
Malinova Dolina / Sofia / Sofia / Bulgaria map
Property prices: 69 346 - 192 316 €
Prices per m²: 1 575 - 1 995 €/m 2
Apartments in Stage 1 of a modern complex near "Simeonovsko Shose"
Malinova Dolina / Sofia / Sofia / Bulgaria map
Property prices: 114 096 - 247 180 €
Prices per m²: 1 828 - 2 296 €/m 2
Select this option and we will notify you by email if there are any changes to the offer status, for example:
• Price change;
• The property entered into a promotional offer;
• The property is reserved or sold;
• Other news related to the property.
• The property is removed from sale;
You can easily unsubscribe from notifications whenever you want.• Changes to the terms of the offer;
• Change in the amount of the investment;
• The subject of the investment has been fully realized;
• The offer has expired.
You can easily unsubscribe if you decide in the future that you no longer want to follow this offer.



...As a proven specialist, Stonehard PREMIER works on the market positioning and sales of numerous new construction projects, the implementation of which has been entrusted to us by leading entrepreneurial companies in Bulgaria and abroad...