Designer one-bedroom apartment in a modern building in the "Manastirski Livadi - West" district
REF#SOF-134316
/
1-bedroom apartments
/
Sales
/
Sofia
/
Manastirski Livadi - West
/
Sofia
/
Bulgaria
on the map
Price:
314 000 € (3 631 €/m 2)
*The prices and availability of vacant properties in the project are indicative. For up-to-date pricing information, please contact us!
Ref. Number: SOF-134316 / 4709
Location: Manastirski Livadi - West / Sofia map
Building/complex type: Residential
Housing areas: 86.48 m 2
Types of properties in the building/complex: 1-bedroom apartments
Ref. Number: SOF-134316 / 4709
Location: Manastirski Livadi - West / Sofia
Building/complex type: Residential
Building/complex class:
Housing areas: 86.48 m 2
Types of properties in the building/complex: 1-bedroom apartments
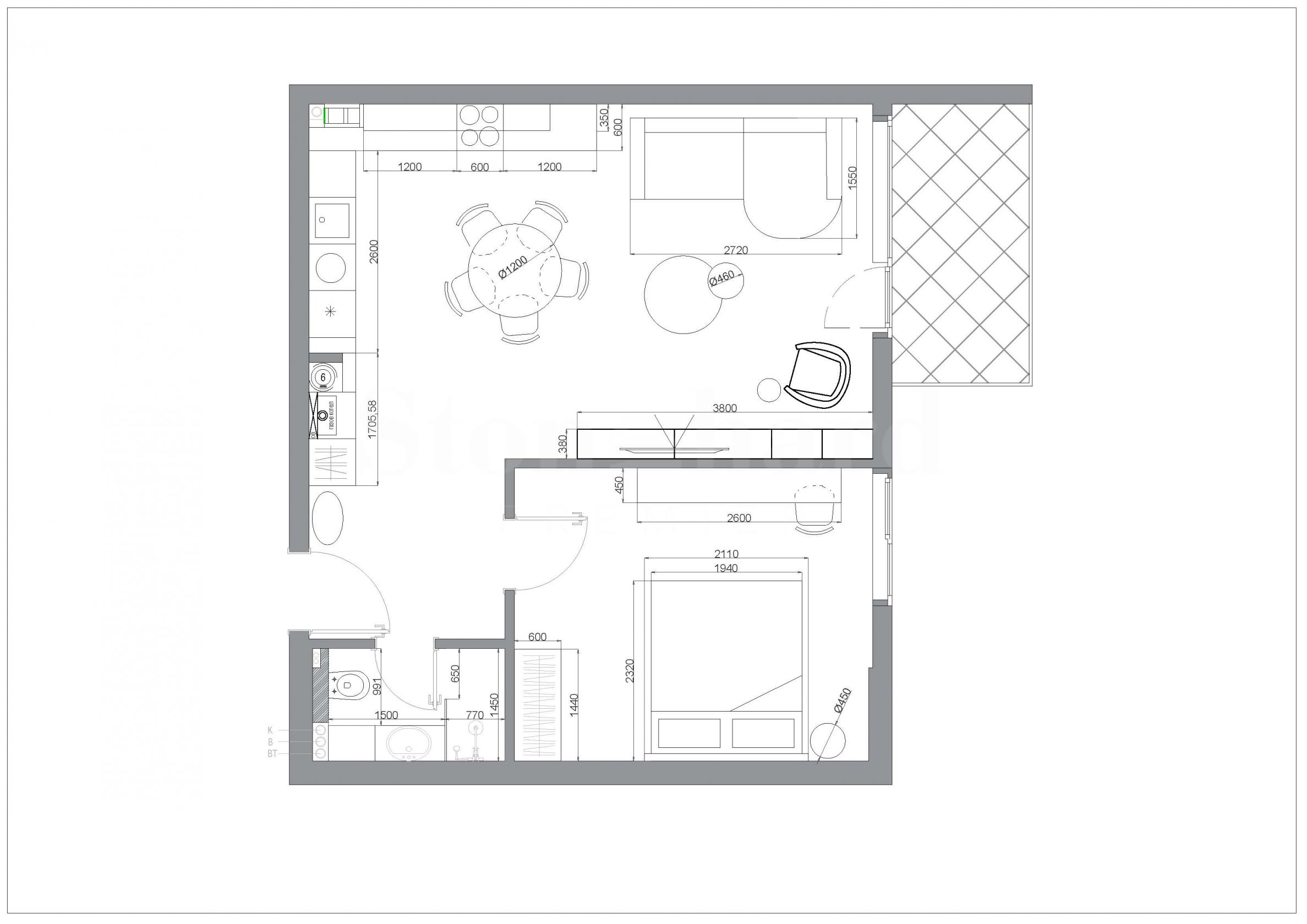
About the apartment
The apartment is located on the 6th floor, facing east and has a total area of 86.48 sq m (built-up area 73.89 sq m). The property will be delivered ready to move in - without the need for additional finishing or furniture, with carefully selected materials and long-term value from leading brands: Cucinesse, Ditre Italia, Pianca, Bonaldo, Cattelan Italia, Flos and Arkoslight.
Spacious and optimized layout:
• Living room with kitchen (29.32 sq m) - open plan with clearly defined cooking ("K"), dining and sofa areas; linear/L-shaped kitchen along the wall and a comfortable TV area. Regular axes allowing for a large sofa and extendable table.
• Bedroom (17.19 sq m) - a rectangular room with space for a double bed and a full wardrobe; a quiet distance from the living room.
• Bathroom (3.75 sq m) - compact, well-organized with a separate shower area and rational layout of the sanitary facilities.
• Hallway (8.83 sq m) - sufficient depth for a wardrobe and shoe cabinet; direct visual connection to the living room.
• Terrace (6.03 m2.)
The apartment comes with an option to purchase a large and convenient parking space at a price of EUR 45,000 (88,012.35 BGN). It provides easy access and maneuverability, making it extremely practical in everyday life.
About the building
The building is a modern, mixed-use building with a beamless reinforced concrete structure, ventilated facades and high-class joinery and glazing. Separate flows are provided for the residential and office parts, access control and two independent underground parking lots. Its location provides a quick connection to the center, with commercial and sports services, which makes the property comfortable for living and attractive as an investment.
Location
“Manastirski Livadi – West” – one of the fastest developing areas of Sofia, with a quick connection to the center along Bulgaria Blvd. and close proximity to Vitosha Nature Park and the prestigious Boyana and Dragalevtsi neighborhoods. The area is quiet, with a specific microclimate and clean air, and also offers easy access to the lifts to Vitosha.
The location is extremely communicative: ~2 min walk to tram stop No. 7, ~4 min walk/~2 min by car to Bulgaria Blvd., ~10 min by car to Vitosha Mountain, ~15 min by car to South Park and the center.
There is a rich infrastructure and amenities in the immediate vicinity: Bulgaria Mall (retail, cinema, entertainment), numerous large chains (Billa, Kaufland, Lidl, Fantastico, Jumbo), sports clubs and fitness centers, medical centers (Oxilife, St. Sofia Hospital) and various neighborhood services.
Contact us for a viewing!
Viewings
We are ready to organize a viewing of this property at a time convenient for you. Please contact the responsible estate agent and inform them when you would like to have viewings arranged. We can also help you with flight tickets and hotel booking, as well as with travel insurance.
Property reservation
You can reserve this property with a non-refundable deposit of 2,000 Euro, payable by credit card or by bank transfer to our company bank account. After receiving the deposit the property will be marked as reserved, no further viewings will be carried out with other potential buyers, and we will start the preparation of the necessary documents for completion of the deal. Please contact the responsible estate agent for more information about the purchase procedure and the payment methods.
After sale services
We are a reputable company with many years of experience in the real estate business. Thus, we will be with you not only during the purchase process, but also after the deal is completed, providing you with a wide range of additional services tailored to your requirements and needs, so that you can fully enjoy your property in Bulgaria. The after sale services we offer include property insurance, construction and repair works, furniture, accounting and legal assistance, renewal of contracts for electricity, water, telephone and many more.
Location on the map
SALE
PROJECT
One-bedroom apartment with indoor parking space in the "Malinova Dolina" district
Malinova Dolina / Sofia / Sofia / Bulgaria map
Area: 72.53 m 2
Price: 135 250 € /// 1 865 €/m 2
A new residential project of three buildings with different types of apartments in the "Dianabad" district
Dianabad / Sofia / Sofia / Bulgaria map
Property prices: 176 199 - 450 565 €
Prices per m²: 2 913 - 3 339 €/m 2
A newly constructed building at the foot of Vitosha
Boyana / Sofia / Sofia / Bulgaria map
Property prices: 299 640 - 400 125 €
Prices per m²: 3 000 - 3 300 €/m 2
Select this option and we will notify you by email if there are any changes to the offer status, for example:
• Price change;
• The property entered into a promotional offer;
• The property is reserved or sold;
• Other news related to the property.
• The property is removed from sale;
You can easily unsubscribe from notifications whenever you want.• Changes to the terms of the offer;
• Change in the amount of the investment;
• The subject of the investment has been fully realized;
• The offer has expired.
You can easily unsubscribe if you decide in the future that you no longer want to follow this offer.
To receive absolutely correct information about the vacant properties available for sale in the project and their current prices, please contact our office at the contact information provided.
We make every effort to keep our price lists absolutely up-to-date and correct, but this is often impossible, given the large number of new projects in our catalog and the highly dynamic sales.
Thank you for your understanding!



...As a proven specialist, Stonehard PREMIER works on the market positioning and sales of numerous new construction projects, the implementation of which has been entrusted to us by leading entrepreneurial companies in Bulgaria and abroad...