Dizajnerski dvoiposoban apartman u modernoj zgradi u kv. "Manastirski livadi - Zapad"
Cena:
344 000 € (3 978 €/m2)
*Ukazane cene i dostupnosti od slobodnih nekretnina u projektu su indikativne. Za aktuelne cenovne informacije, molimo vas da nas kontaktirate!
Ref. Broj: SOF-134316 / 4709
Lokacija: Sofia karta
Tip na zgrada/kompleks: Stambeni
Površine stanova: 86.48 m2
Tipovi nekretnina u zgradi/kompleksu: Jednosobni stanovi
Ref. Broj: SOF-134316 / 4709
Lokacija: Sofia
Tip na zgrada/kompleks: Stambeni
Klas na zgradi/kompleksu:
Površine stanova: 86.48 m2
Tipovi nekretnina u zgradi/kompleksu: Jednosobni stanovi
O apartmanu
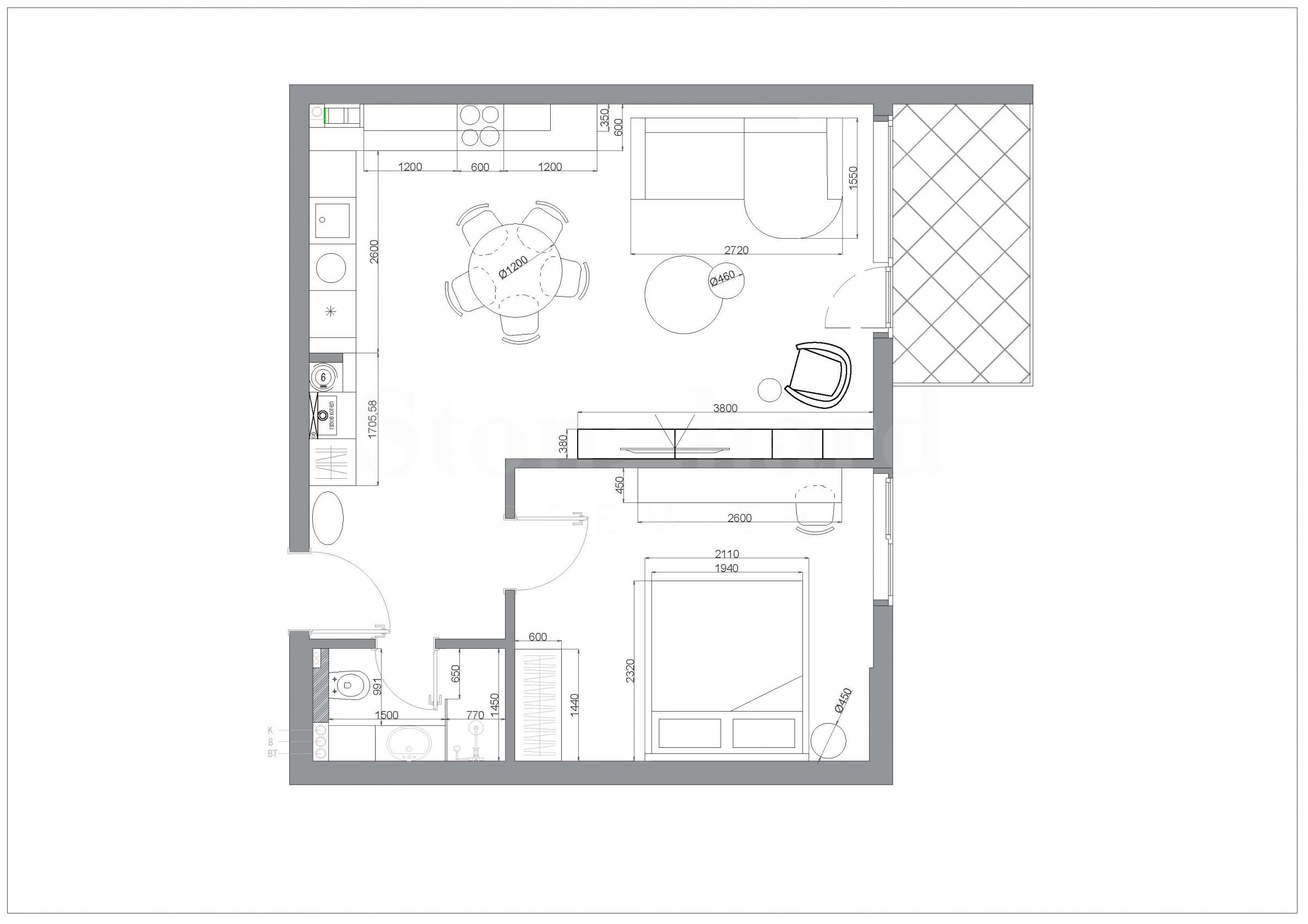
Apartman se nalazi na 6. spratu, sa istočnom orijentacijom i ima ukupnu površinu od 86,48 m² (zastakljena površina 73,89 m²). Nekretnina će biti predana spremna za useljenje – bez potrebe za dodatnim završnim radovima ili nameštajem, sa pažljivo odabranim materijalima i dugoročnom vrednošću od vodećih brendova: Cucinesse, Ditre Italia, Pianca, Bonaldo, Cattelan Italia, Flos i Arkoslight.
Prostran i optimizovan raspored:
• Dnevna soba sa kuhinjom (29,32 m²) - otvoren plan sa jasno definisanim zonama za kuvanje („K“), obedovanje i mekani nameštaj; linearna/L-oblik kuhinja uz zid i udoban TV kutak. Pravilne ose, omogućavaju velike sofe i rasklopivi sto.
• Spavaća soba (17,19 m²) - pravougaona soba sa mestom za bračni krevet i punom garderobom; mirna udaljenost od dnevne sobe.
• Kupatilo (3,75 m²) - kompaktno, dobro organizovano sa odvojenom tuš-zonom i racionalnim rasporedom sanitarija.
• Predsoblje (8,83 m²) - dovoljna dubina za garderober i cipelar; direktna vizuelna veza sa dnevnom sobom.
• Terasa (6,03 m²)
Uz apartman postoji opcija kupovine velikog i udobnog parking mesta po ceni od EUR 45 000 (88 012,35 RSD). Omogućava lak pristup i manevrisanje, što ga čini izuzetno praktičnim u svakodnevnom životu.
O zgradi
Zgrada je savremena, mešovitog tipa, sa bezgrebenom armirano-betonskom konstrukcijom, ventilisanim fasadama i visokokvalitetnim stolarijom i staklenim paketima. Obezbeđeni su odvojeni tokovi za stambeni i poslovni deo, kontrola pristupa i dva nezavisna podzemna parkinga. Lokacija joj obezbeđuje brzu vezu ka centru, sa trgovačkim i sportskim sadržajima, što čini nekretninu pogodnom za stanovanje i atraktivnom kao investicija.
Lokacija
“Manastirski livadi – Zapad” – jedan od najbrže razvijajućih se delova Sofije, sa brzom vezom ka centru preko bulevara „Bulgaria“ i neposrednom blizinom Prirodnog parka Vitoša i prestižnih kvartova "Boyana" i "Dragalevci". Ovaj kraj je miran, sa specifičnim mikroklimatom i čistim vazduhom, a nudi i lak pristup žičarama ka Vitoši.
Lokacija je izuzetno komunikativna: ~2 min peške do tramvajske stanice br. 7, ~4 min peške/~2 min kolima do bulevara „Bulgaria“, ~10 min kolima do Vitoše, ~15 min kolima do Južnog parka i centra.
Dostupna je bogata infrastruktura i pogodnosti u neposrednoj blizini: Bulgaria Mall (trgovina, bioskop, zabava), mnoge velike lance (Billa, Kaufland, Lidl, Fantastiko, Jumbo), sportski klubovi i fitnes centri, medicinski centri (Oksilajf, MBAL „Sv. Sofija“) i raznovrsne kvartovske usluge.
Kontaktirajte nas za razgledanje!
Mesto na karti
PRODAŽBA
PROJEKAT
Dvosoban apartman sa dvorištem u modernom kompleksu pored bul. "Cherni vrah"
Krustova Vada / Sofia / Sofia / Бугарска karta
Plošča: 99 m2
Cena: 240 000 € /// 2 424 €/m2
PRODAŽBA
PROJEKAT
Komaktan dvoetaen apartman u nova zgrada s Akt 16 u kv. "Vitosha"
Vitosha / Sofia / Sofia / Бугарска karta
Plošča: 46.05 m2
Cena: 225 000 € /// 4 886 €/m2
Butikovi apartmani u luksuznoj novoj zgradi u "Malinova dolina"
Malinova Dolina / Sofia / Sofia / Бугарска karta
Klas na zgradi: Luksuozan
Cene na imovinu: 174 575 - 371 115 €
Cene po m²: 2 500 - 2 700 €/m2
Izaberite ovu opciju i obaveštavaćemo Vas putem imejla o promenama statusa ponude, na primer:
• Promena cene;
• Nekretnina je ušla u promotivnu ponudu;
• Nekretnina je rezervisana ili prodata;
• Druge novosti vezane za nekretninu.
• Nekretnina je skinuta sa prodaje;
Možete se lako odjaviti sa notifikacija kad god poželite.• Promene uslova ponude;
• Promena iznosa investicije;
• Predmet investicije je u potpunosti realizovan;
• Važenje ponude je isteklo.
Možete se lako odjaviti ako u budućnosti odlučite da više ne želite da pratite ovu ponudu.
Da biste dobili apsolutno tačne informacije o slobodnim nekretninama dostupnim za prodaju u projektu i njihovim aktuelnim cenama, molimo vas da kontaktirate našu kancelariju na navedene kontakt informacije.
Trudimo se da naše cenovnike održavamo apsolutno aktuelnim i tačnim, ali često to nije moguće zbog velikog broja novih projekata u našem katalogu i snažne dinamike prodaje.
Hvala vam na razumevanju!



...Kao dokazani stručnjak Stonehard PREMIER radi na tržišnom pozicioniranju i prodaji brojnih projekata novogradnje, čija je realizacija poverena od strane vodećih preduzetničkih kompanija u Bugarskoj i inostranstvu...