Spacious store in a modern new building on Simeonovsko Shose Blvd.
on the map
Price:
644 540 € (excluding VAT) ()
*The prices and availability of vacant properties in the project are indicative. For up-to-date pricing information, please contact us!
Ref. Number: SOF-134298 / 4689
Location: Vitosha / Sofia map
Building/complex type: Residential
Building/complex class: Standard
Housing areas: 247.90 m 2
Types of properties in the building/complex: Commercial properties
Ref. Number: SOF-134298 / 4689
Location: Vitosha / Sofia
Building/complex type: Residential
Building/complex class: Standard
Housing areas: 247.90 m 2
Types of properties in the building/complex: Commercial properties
Construction started - September 2025. Expected Act 16 - in summer 2027.
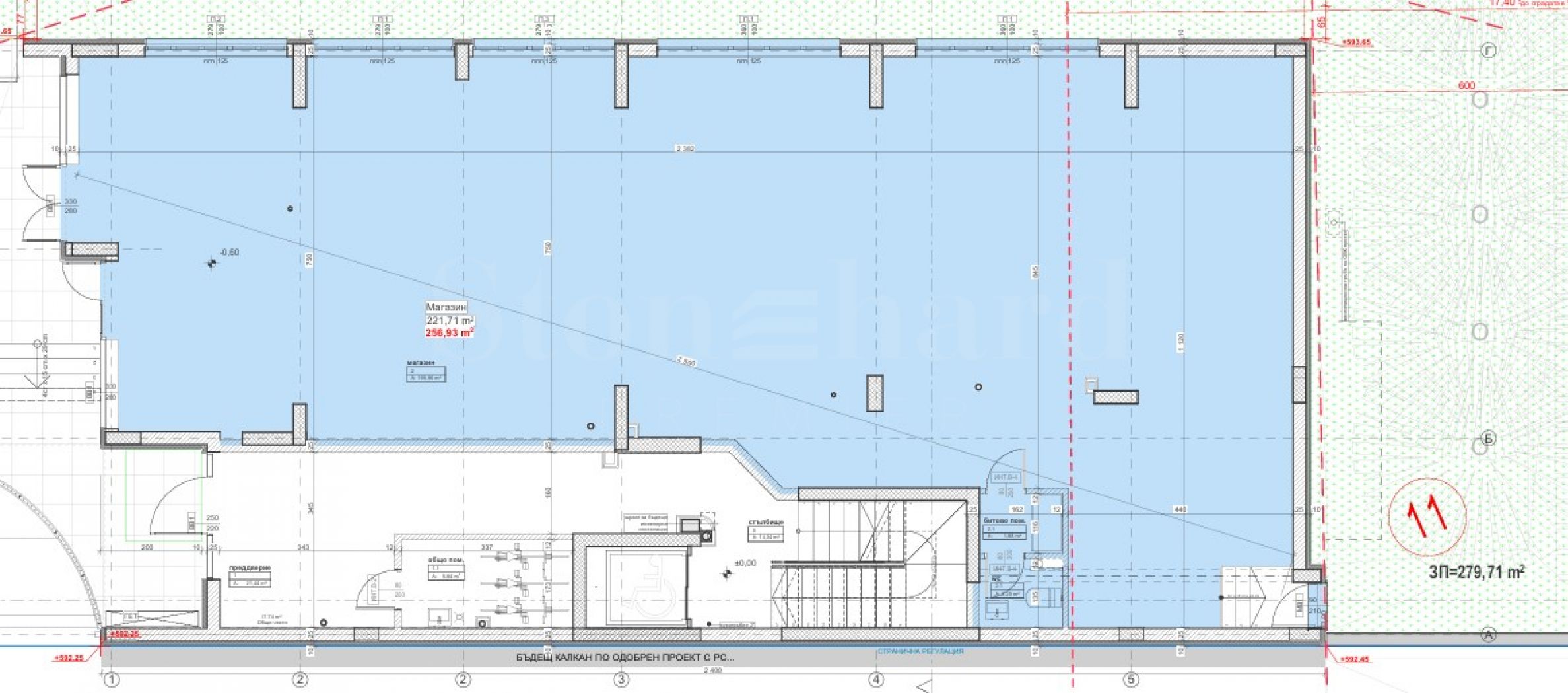
The property is located on the ground floor and has a total area of 247.90 m2., net area - 197.07 m2. It is offered in a "turnkey" state of completion. It has a bathroom. The heating is solved with gas heating, as well as a built-in air conditioning installation for a multi-split system.
The indicated price is excluding VAT.
There is an opportunity to purchase 4 parking spaces next to the store, at prices of 20,000 euros (39,116.60 BGN) excluding VAT each.
About the building
The building is a boutique, with a total of 9 apartments, a shop on the ground floor with 4 outdoor parking spaces, 4 more underground parking spaces and 11 garages.
It is distributed over 6 levels, with an underground level with parking spaces and garages, a shop on the ground floor and five residential floors with two- and three-bedroom apartments.
It is planned to use the most modern technologies, in combination with high-class materials and equipment from leading world manufacturers.
Technical specifications:
• Roofs – insulated with 15 cm rock wool thermal insulation and waterproofing with TPO or PVC membrane, finished on the edges with plasticized sheet metal;
• Facades – insulated with 10 cm of EPS 10 cm thermal insulation; Baumit system package with a finished coating of silicate plaster in color, decoration of Etalbond or HPL, natural marble partially on facades;
• Terraces with granite tiles and a natural granite sill along the edge board;
• Stairs - steps, floor - natural granite, walls plastered, putty, painted with latex. Aluminum stair railing - type "Robot", color "Anthracite". Light buttons, motion sensors and ceiling lights installed;
• Plumbing and electrical connections have been completed, intercom installation with video camera. Video surveillance installation built on the ground floor level to all entrances. Installation packages for internet providers have been installed;
• Windows – high-class five-chamber Salamander profile, with triple-glazed windows 4+4+6, including low-emission glass;
• Interior metal entrance door with HPL decorative coating 70 mm. Insulated with hard wool, metal hinges, multi-point locking;
• Garages – plastered and painted walls and ceilings. Installed garage doors with electric drive. Installed own electrical panels;
• Balcony railings – aluminum with partial triplex glass, fully finished, executed according to the project;
• Elevator – Orona (Spain), importer and maintenance UNIKEN.
For the investor
The construction company specializes in the construction of buildings and facilities, road infrastructure, all types of finishing works, turnkey construction, renovation of public and residential buildings, construction repairs, internal and external electrical and plumbing installations, vertical planning of buildings, restoration, rehabilitation, insulation and renovation of old buildings.
We look forward to your inquiry.
If you would like to arrange a viewing of a property that interests you, or to visit one of our offices, please contact us. To arrange a day and time for a meeting or viewing, you can call the phone number listed in the ad or send an inquiry via e-mail. Our consultant will assist you with all the necessary details and will arrange a time convenient for you.
Are you looking for the right property for you?
Do not hesitate to contact us and tell us about your needs and preferences. Our team will conduct a thorough market research to offer you properties that exactly meet your criteria. We have an exceptional portfolio of high-quality and exclusive homes that are available only to our clients. To be the first to receive information about them – contact us.
Additional services
As a valued client of our company, you will have the privilege of using the services of our experienced legal team completely free of charge. In addition, we offer comprehensive solutions, including property insurance, free financial consulting, as well as favorable financing conditions. Our services also extend to the field of resale, rental and property management. We provide high-quality renovation and furniture through specialized companies that are part of our corporate group and are our long-standing professional partners.
Viewings
We are ready to organize a viewing of this property at a time convenient for you. Please contact the responsible estate agent and inform them when you would like to have viewings arranged. We can also help you with flight tickets and hotel booking, as well as with travel insurance.
Property reservation
You can reserve this property with a non-refundable deposit of 2,000 Euro, payable by credit card or by bank transfer to our company bank account. After receiving the deposit the property will be marked as reserved, no further viewings will be carried out with other potential buyers, and we will start the preparation of the necessary documents for completion of the deal. Please contact the responsible estate agent for more information about the purchase procedure and the payment methods.
After sale services
We are a reputable company with many years of experience in the real estate business. Thus, we will be with you not only during the purchase process, but also after the deal is completed, providing you with a wide range of additional services tailored to your requirements and needs, so that you can fully enjoy your property in Bulgaria. The after sale services we offer include property insurance, construction and repair works, furniture, accounting and legal assistance, renewal of contracts for electricity, water, telephone and many more.
Location on the map
MANDATE
SALE
PROJECT
#1 store with large windows in OKINAWA Boutique Residence
Malinova Dolina / Sofia / Sofia / Bulgaria map
Building/complex class: High standard
Area: 259.76 m 2
Price: 649 400 € ///
MANDATE
Synerga Premium Complex - a living space inspired by nature and the city
Mladost 3 / Sofia / Sofia / Bulgaria map
Building class: Luxurious
Property prices: 243 713 - 877 422 € (excluding VAT)
Prices per m²: 2 430 - 3 200 €/m 2 (excluding VAT)
MANDATE
SALE
PROJECT
Commercial property #2 in OKINAWA Boutique Residence
Malinova Dolina / Sofia / Sofia / Bulgaria map
Building/complex class: High standard
Area: 153.19 m 2
Price: 382 975 € ///
Select this option and we will notify you by email if there are any changes to the offer status, for example:
• Price change;
• The property entered into a promotional offer;
• The property is reserved or sold;
• Other news related to the property.
• The property is removed from sale;
You can easily unsubscribe from notifications whenever you want.• Changes to the terms of the offer;
• Change in the amount of the investment;
• The subject of the investment has been fully realized;
• The offer has expired.
You can easily unsubscribe if you decide in the future that you no longer want to follow this offer.
To receive absolutely correct information about the vacant properties available for sale in the project and their current prices, please contact our office at the contact information provided.
We make every effort to keep our price lists absolutely up-to-date and correct, but this is often impossible, given the large number of new projects in our catalog and the highly dynamic sales.
Thank you for your understanding!



...As a proven specialist, Stonehard PREMIER works on the market positioning and sales of numerous new construction projects, the implementation of which has been entrusted to us by leading entrepreneurial companies in Bulgaria and abroad...