Newly completed house with a yard in the boutique complex Serenity Six, near the sea
on the map
Price:
190 000 € ()
*The prices and availability of vacant properties in the project are indicative. For up-to-date pricing information, please contact us!
Ref. Number: LXH-137268 / 4988
Location: Aheloy map
Building/complex type: Residential
Housing areas: 182 m 2
Types of properties in the building/complex: Houses
Ref. Number: LXH-137268 / 4988
Location: Aheloy
Building/complex type: Residential
Building/complex class:
Housing areas: 182 m 2
Types of properties in the building/complex: Houses
In the photos you see the actual condition of the property, as well as interior visualizations that are marked as such.
The complex also has five more houses with plaster and stucco, offered at a price of 165,000 EUR.
Each of the houses has a yard of 300 sq m and the possibility of parking two cars in the front yard (driveway type).
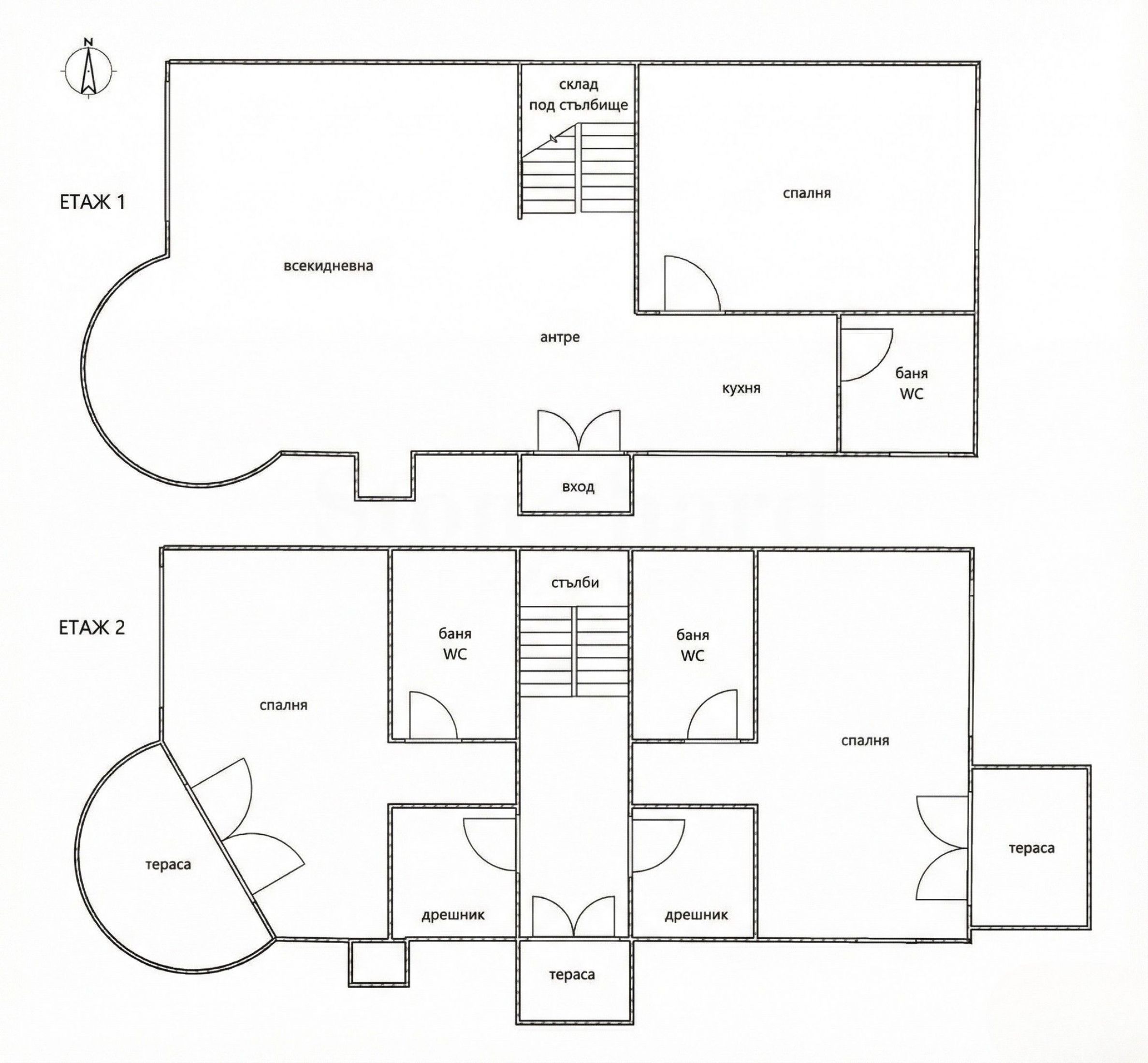
Distribution :
First floor:
• spacious living area / living room 42 sq m with fireplace and access to the yard;
• kitchen and dining room;
• guest toilet;
• bedroom 16 sq m, suitable for a living room, office or gym.
Second floor:
• two large bedrooms of 22 sq m, each with its own bathroom with toilet (en suite) and a niche suitable for its own wardrobe;
• the master bedroom has a round terrace;
• second bedroom with a smaller terrace;
• There is also a third terrace on the floor, accessible from the landing between the two bedrooms.
Additional information:
• There is an option to build a swimming pool at the buyer's request.
• The complex has its own water source and a built-in septic system.
• The houses are prepared for air conditioning.
Act 16 of December 2025
Deposit: 2,000 EUR.
The Serenity Six project offers a rare combination of a new house, its own yard and proximity to the sea - ready for immediate use.
Viewings
We are ready to organize a viewing of this property at a time convenient for you. Please contact the responsible estate agent and inform them when you would like to have viewings arranged. We can also help you with flight tickets and hotel booking, as well as with travel insurance.
Property reservation
You can reserve this property with a non-refundable deposit of 2,000 Euro, payable by credit card or by bank transfer to our company bank account. After receiving the deposit the property will be marked as reserved, no further viewings will be carried out with other potential buyers, and we will start the preparation of the necessary documents for completion of the deal. Please contact the responsible estate agent for more information about the purchase procedure and the payment methods.
After sale services
We are a reputable company with many years of experience in the real estate business. Thus, we will be with you not only during the purchase process, but also after the deal is completed, providing you with a wide range of additional services tailored to your requirements and needs, so that you can fully enjoy your property in Bulgaria. The after sale services we offer include property insurance, construction and repair works, furnishing, accounting and legal assistance, renewal of contracts for electricity, water, telephone and many more.
Location on the map
SALE
PROJECT
New house with plaster and stucco, with a yard in the Serenity Six boutique complex, near Aheloy
Aheloy / Burgas / Bulgaria map
Area: 182 m 2
Price: 165 000 € ///
SALE
PROJECT
Two-storey villa with a pool in a year-round SPA complex near Aheloy
Aheloy / Burgas / Bulgaria map
Area: 146 m 2
Price: 127 000 € ///
SALE
PROJECT
House with sea view 2 km from the beach of Aheloy
Aheloy / Burgas / Bulgaria map
Area: 120.80 m 2
Price: 250 000 € ///
Select this option and we will notify you by email if there are any changes to the offer status, for example:
• Price change;
• The property entered into a promotional offer;
• The property is reserved or sold;
• Other news related to the property.
• The property is removed from sale;
You can easily unsubscribe from notifications whenever you want.• Changes to the terms of the offer;
• Change in the amount of the investment;
• The subject of the investment has been fully realized;
• The offer has expired.
You can easily unsubscribe if you decide in the future that you no longer want to follow this offer.
To receive absolutely correct information about the vacant properties available for sale in the project and their current prices, please contact our office at the contact information provided.
We make every effort to keep our price lists absolutely up-to-date and correct, but this is often impossible, given the large number of new projects in our catalog and the highly dynamic sales.
Thank you for your understanding!



...As a proven specialist, Stonehard PREMIER works on the market positioning and sales of numerous new construction projects, the implementation of which has been entrusted to us by leading entrepreneurial companies in Bulgaria and abroad...