Nova završena kuća sa dvorištem u butik kompleksu Serenity Six, blizu mora
na karti
Cena:
190 000 € ()
*Ukazane cene i dostupnosti od slobodnih nekretnina u projektu su indikativne. Za aktuelne cenovne informacije, molimo vas da nas kontaktirate!
Ref. Broj: LXH-137268 / 4988
Lokacija: Aheloy karta
Tip na zgrada/kompleks: Stambeni
Površine stanova: 182 m2
Tipovi nekretnina u zgradi/kompleksu: Ku?e
Ref. Broj: LXH-137268 / 4988
Lokacija: Aheloy
Tip na zgrada/kompleks: Stambeni
Klas na zgradi/kompleksu:
Površine stanova: 182 m2
Tipovi nekretnina u zgradi/kompleksu: Ku?e
Na slikama vidite stvarno stanje nekretnine, kao i enterijerske vizualizacije koje su označene kao takve.
Kompleks raspolaže i sa još pet kuća u fazi gletovanja i estriha, ponuđenih po ceni od 165 000 EUR.
Svaka od kuća ima dvorište od 300 m² i mogućnost parkiranja dva automobila u prednjem dvorištu (tip driveway).
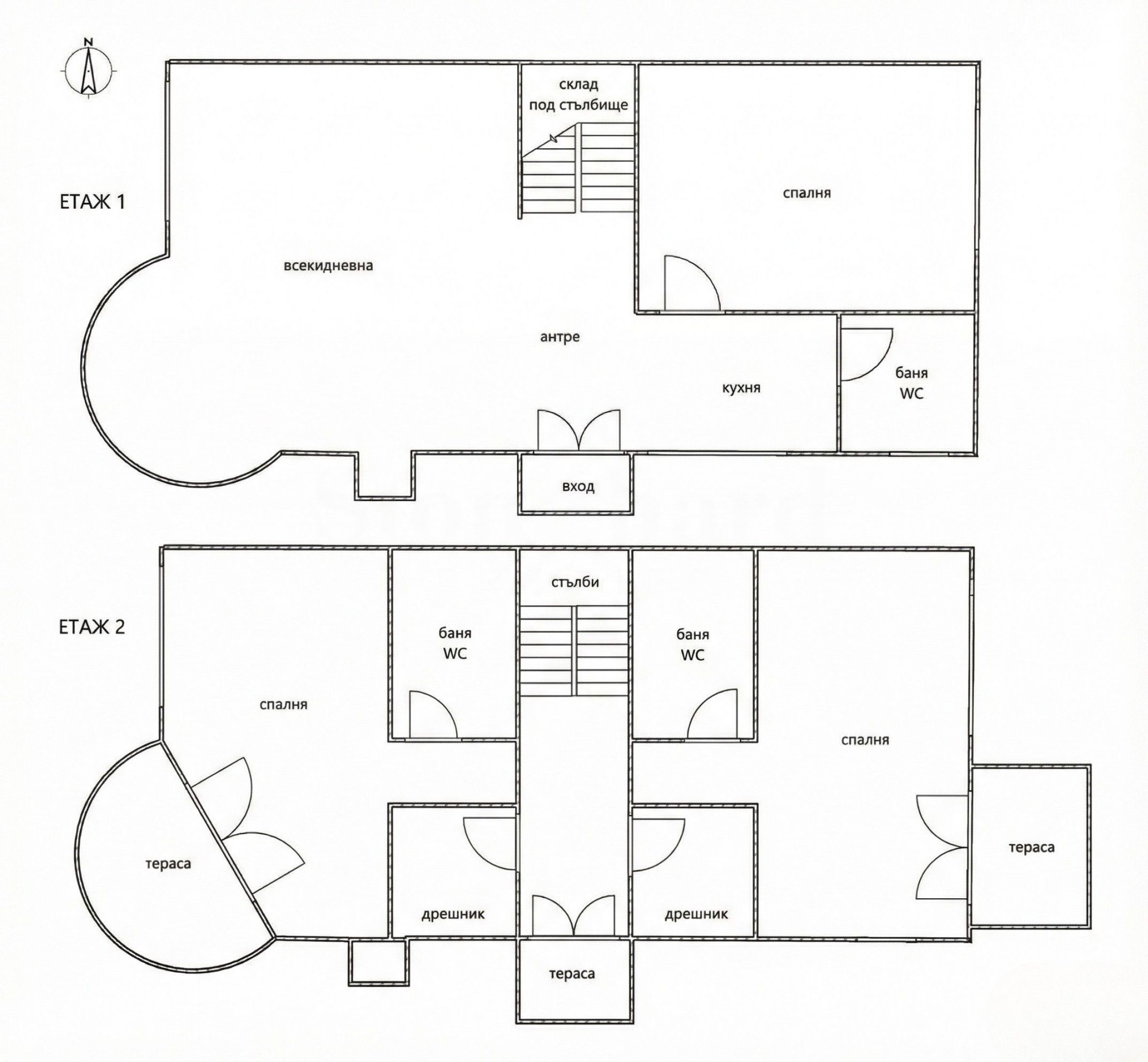
Raspored:
Prvi sprat:
• prostrana dnevna zona / dnevna soba od 42 m² sa kaminom i izlazom ka dvorištu;
• kuhinja i trpezarija;
• toalet za goste;
• spavaća soba od 16 m², pogodna za gostinsku sobu, kabinet ili fitnes.
Drugi sprat:
• dve velike spavaće sobe po 22 m², svaka sa sopstvenim kupatilom sa toaletom (en suite) i nišom pogodnom za sopstvenu garderobu;
• roditeljska spavaća soba ima zakrivljenu terasu;
• druga spavaća soba sa manjom terasom;
• na spratu se nalazi i treća terasa, dostupna sa hodnika između dve spavaće sobe.
Dodatne informacije:
• Postoji mogućnost izgradnje bazena po želji kupca.
• Kompleks ima sopstveni vodni izvor i izgrađen septički sistem.
• Kuće su pripremljene za klima uređaje.
Akt 16 od decembra 2025.
Depozit: 2 000 EUR.
Projekat Serenity Six nudi retku kombinaciju nove kuće, sopstvenog dvorišta i blizine mora – spremna za odmah korišćenje.
Mesto na karti
PRODAŽBA
PROJEKAT
Nova kuća na gletovanje i estrih, sa dvorištem u butik kompleksu Serenity Six, kraj Aheloy
Aheloy / Burgas / Бугарска karta
Plošča: 182 m2
Cena: 165 000 € ///
PRODAŽBA
PROJEKAT
Dvoetažna vila s bazenom u celogodišnjem SPA kompleksu do Aheloy
Aheloy / Burgas / Бугарска karta
Plošča: 146 m2
Cena: 127 000 € ///
PRODAŽBA
PROJEKAT
Кућа са погледом на море 2 км од плаже Ахелој
Aheloy / Burgas / Бугарска karta
Plošča: 120.80 m2
Cena: 250 000 € ///
Izaberite ovu opciju i obaveštavaćemo Vas putem imejla o promenama statusa ponude, na primer:
• Promena cene;
• Nekretnina je ušla u promotivnu ponudu;
• Nekretnina je rezervisana ili prodata;
• Druge novosti vezane za nekretninu.
• Nekretnina je skinuta sa prodaje;
Možete se lako odjaviti sa notifikacija kad god poželite.• Promene uslova ponude;
• Promena iznosa investicije;
• Predmet investicije je u potpunosti realizovan;
• Važenje ponude je isteklo.
Možete se lako odjaviti ako u budućnosti odlučite da više ne želite da pratite ovu ponudu.
Da biste dobili apsolutno tačne informacije o slobodnim nekretninama dostupnim za prodaju u projektu i njihovim aktuelnim cenama, molimo vas da kontaktirate našu kancelariju na navedene kontakt informacije.
Trudimo se da naše cenovnike održavamo apsolutno aktuelnim i tačnim, ali često to nije moguće zbog velikog broja novih projekata u našem katalogu i snažne dinamike prodaje.
Hvala vam na razumevanju!



...Kao dokazani stručnjak Stonehard PREMIER radi na tržišnom pozicioniranju i prodaji brojnih projekata novogradnje, čija je realizacija poverena od strane vodećih preduzetničkih kompanija u Bugarskoj i inostranstvu...