Ref. Number: Kbs 110389 / 3287
Location: Lozenets / Sofia map
Building/complex type: Residential
Housing areas: 98.04 m 2
Types of properties in the building/complex: 1-bedroom apartments
Ref. Number: Kbs 110389
Location: Lozenets / Sofia
Building/complex type: Жилищен
Building/complex class:
Housing areas: 98.04 m 2
Types of properties in the building/complex: 1-bedroom apartments
We are pleased to offer you a luxurious, residential building with 11 floors and an impressive 44 meters in length, within walking distance of Vitosha metro station and Paradise Mall, offering one-bedroom, two-bedroom, four-bedroom apartments and a penthouse.
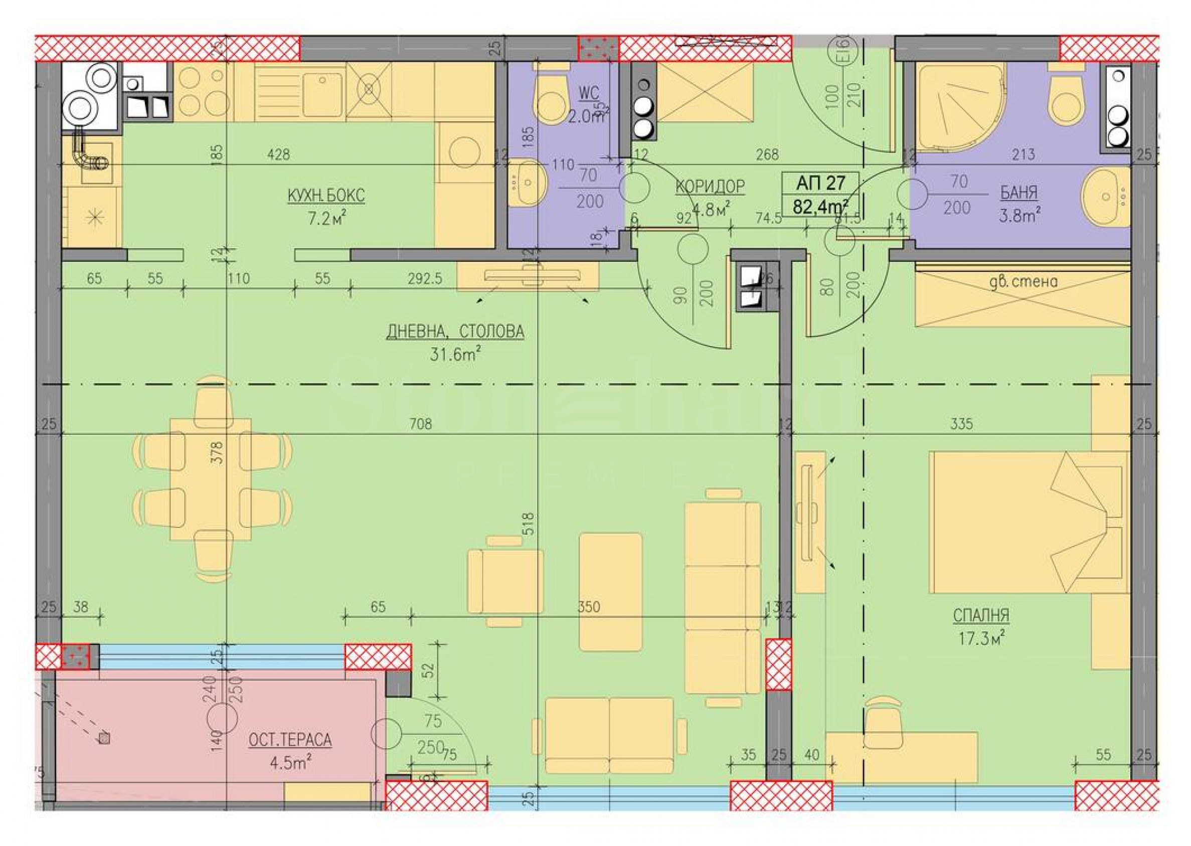
The specific offer is for a spacious two-bedroom apartment on the ninth floor with a total area of 98.04 m2 and the following layout: entrance hall, bedroom, living room with dining area and kitchenette (31.6 m2), bathroom with toilet and shower cabin, toilet, glazed terrace, basement.
The visualizations are exemplary. The investor offers exemplary interior solutions, with special attention paid to the details that will create a feeling of warmth in the home and joy from the new home. The company's experienced designers and architects are ready to provide support until the full spatial realization of each individualized object.
The building has 11 residential floors on two underground levels of closed garages. It is located 300 meters from the Vitosha metro station and the Paradise Mall, in close proximity to renowned healthcare and educational institutions, an area with particularly rich commercial services and convenient transport links.
Main facilities of the project:
Innovative construction offering modern comfort, coziness, functionality and quality;
The areas are maximally utilized, designed for comfort, spaciousness and a modern vision of every home;
The representative common areas, designed with care for the safety of the residents;
Luxury elevators allowing direct connection between garages and residences;
Welcoming entrance hall with concierge and videophone for access;
The ensured presence of a concierge, professional live security and video surveillance at the entrances;
Architectural approach for floor options with more representative living rooms with an open or closed kitchen area, with more compact or more spacious bedrooms, with the possibility of closets and separate bathrooms and/or service rooms;
Properties with wonderful, panoramic views of Vitosha Mountain.
Payment schemes:
Preliminary contract: 30% of the property value
Act 15: 40% of the property value
Act 16: 30% of the property value
Viewings
We are ready to organize a viewing of this property at a time convenient for you. Please contact the responsible estate agent and inform them when you would like to have viewings arranged. We can also help you with flight tickets and hotel booking, as well as with travel insurance.
Property reservation
You can reserve this property with a non-refundable deposit of 2,000 Euro, payable by credit card or by bank transfer to our company bank account. After receiving the deposit the property will be marked as reserved, no further viewings will be carried out with other potential buyers, and we will start the preparation of the necessary documents for completion of the deal. Please contact the responsible estate agent for more information about the purchase procedure and the payment methods.
After sale services
We are a reputable company with many years of experience in the real estate business. Thus, we will be with you not only during the purchase process, but also after the deal is completed, providing you with a wide range of additional services tailored to your requirements and needs, so that you can fully enjoy your property in Bulgaria. The after sale services we offer include property insurance, construction and repair works, furnishing, accounting and legal assistance, renewal of contracts for electricity, water, telephone and many more.
Location on the map
We are pleased to offer you a luxurious, residential building with 11 floors and an impressive 44 meters in length, within walking distance of Vitosha metro station and Paradise Mall, offering one-bedroom, two-bedroom, four-bedroom apartments and a penthouse.
The specific offer is for a spacious two-bedroom apartment on the ninth floor with a total area of 98.04 m2 and the following layout: entrance hall, bedroom, living room with dining area and kitchenette (31.6 m2), bathroom with toilet and shower cabin, toilet, glazed terrace, basement.
The visualizations are exemplary. The investor offers exemplary interior solutions, with special attention paid to the details that will create a feeling of warmth in the home and joy from the new home. The company's experienced designers and architects are ready to provide support until the full spatial realization of each individualized object.
The building has 11 residential floors on two underground levels of closed garages. It is located 300 meters from the Vitosha metro station and the Paradise Mall, in close proximity to renowned healthcare and educational institutions, an area with particularly rich commercial services and convenient transport links.
Main facilities of the project:
Innovative construction offering modern comfort, coziness, functionality and quality;
The areas are maximally utilized, designed for comfort, spaciousness and a modern vision of every home;
The representative common areas, designed with care for the safety of the residents;
Luxury elevators allowing direct connection between garages and residences;
Welcoming entrance hall with concierge and videophone for access;
The ensured presence of a concierge, professional live security and video surveillance at the entrances;
Architectural approach for floor options with more representative living rooms with an open or closed kitchen area, with more compact or more spacious bedrooms, with the possibility of closets and separate bathrooms and/or service rooms;
Properties with wonderful, panoramic views of Vitosha Mountain.
Payment schemes:
Preliminary contract: 30% of the property value
Act 15: 40% of the property value
Act 16: 30% of the property value
Viewings
We are ready to organize a viewing of this property at a time convenient for you. Please contact the responsible estate agent and inform them when you would like to have viewings arranged. We can also help you with flight tickets and hotel booking, as well as with travel insurance.
Property reservation
You can reserve this property with a non-refundable deposit of 2,000 Euro, payable by credit card or by bank transfer to our company bank account. After receiving the deposit the property will be marked as reserved, no further viewings will be carried out with other potential buyers, and we will start the preparation of the necessary documents for completion of the deal. Please contact the responsible estate agent for more information about the purchase procedure and the payment methods.
After sale services
We are a reputable company with many years of experience in the real estate business. Thus, we will be with you not only during the purchase process, but also after the deal is completed, providing you with a wide range of additional services tailored to your requirements and needs, so that you can fully enjoy your property in Bulgaria. The after sale services we offer include property insurance, construction and repair works, furnishing, accounting and legal assistance, renewal of contracts for electricity, water, telephone and many more.
We are pleased to offer you a luxurious, residential building with 11 floors and an impressive 44 meters in length, within walking distance of Vitosha metro station and Paradise Mall, offering one-bedroom, two-bedroom, four-bedroom apartments and a penthouse.
The specific offer is for a spacious two-bedroom apartment on the ninth floor with a total area of 98.04 m2 and the following layout: entrance hall, bedroom, living room with dining area and kitchenette (31.6 m2), bathroom with toilet and shower cabin, toilet, glazed terrace, basement.
The visualizations are exemplary. The investor offers exemplary interior solutions, with special attention paid to the details that will create a feeling of warmth in the home and joy from the new home. The company's experienced designers and architects are ready to provide support until the full spatial realization of each individualized object.
The building has 11 residential floors on two underground levels of closed garages. It is located 300 meters from the Vitosha metro station and the Paradise Mall, in close proximity to renowned healthcare and educational institutions, an area with particularly rich commercial services and convenient transport links.
Main facilities of the project:
Innovative construction offering modern comfort, coziness, functionality and quality;
The areas are maximally utilized, designed for comfort, spaciousness and a modern vision of every home;
The representative common areas, designed with care for the safety of the residents;
Luxury elevators allowing direct connection between garages and residences;
Welcoming entrance hall with concierge and videophone for access;
The ensured presence of a concierge, professional live security and video surveillance at the entrances;
Architectural approach for floor options with more representative living rooms with an open or closed kitchen area, with more compact or more spacious bedrooms, with the possibility of closets and separate bathrooms and/or service rooms;
Properties with wonderful, panoramic views of Vitosha Mountain.
Payment schemes:
Preliminary contract: 30% of the property value
Act 15: 40% of the property value
Act 16: 30% of the property value
Viewings
We are ready to organize a viewing of this property at a time convenient for you. Please contact the responsible estate agent and inform them when you would like to have viewings arranged. We can also help you with flight tickets and hotel booking, as well as with travel insurance.
Property reservation
You can reserve this property with a non-refundable deposit of 2,000 Euro, payable by credit card or by bank transfer to our company bank account. After receiving the deposit the property will be marked as reserved, no further viewings will be carried out with other potential buyers, and we will start the preparation of the necessary documents for completion of the deal. Please contact the responsible estate agent for more information about the purchase procedure and the payment methods.
After sale services
We are a reputable company with many years of experience in the real estate business. Thus, we will be with you not only during the purchase process, but also after the deal is completed, providing you with a wide range of additional services tailored to your requirements and needs, so that you can fully enjoy your property in Bulgaria. The after sale services we offer include property insurance, construction and repair works, furnishing, accounting and legal assistance, renewal of contracts for electricity, water, telephone and many more.
SALE
PROJECT
One-bedroom apartment in the prestigious Boyana district
Boyana / Sofia / Sofia / Bulgaria map
Building/complex class: High standard
Area: 98.27 m 2
Price: 186 713 € /// 1 900 €/m 2
MANDATE
SALE
PROJECT
 
    Designer apartment with parking space in a luxury building OKINAWA
Malinova Dolina / Sofia / Sofia / Bulgaria map
Building/complex class: High standard
Area: 76.54 m 2
Price: 244 900 € /// 3 200 €/m 2
Apartments in Stage 2 of a modern complex near "Simeonovsko Shose"
Malinova Dolina / Sofia / Sofia / Bulgaria map
Property prices: 69 346 - 192 316 €
Prices per m²: 1 575 - 1 995 €/m 2
Select this option and we will notify you by email if there are any changes to the offer status, for example:
• Price change;
• The property entered into a promotional offer;
• The property is reserved or sold;
• Other news related to the property.
• The property is removed from sale;
You can easily unsubscribe from notifications whenever you want.• Changes to the terms of the offer;
• Change in the amount of the investment;
• The subject of the investment has been fully realized;
• The offer has expired.
You can easily unsubscribe if you decide in the future that you no longer want to follow this offer.

 
     
            

...As a proven specialist, Stonehard PREMIER works on the market positioning and sales of numerous new construction projects, the implementation of which has been entrusted to us by leading entrepreneurial companies in Bulgaria and abroad...