Ref. Number: LXH-135553 / 4829
Location: Horizont / Burgas map
Building/complex type: Residential
Housing areas: 64.08 m 2
Types of properties in the building/complex: 1-bedroom apartments
Ref. Number: LXH-135553
Location: Horizont / Burgas
Building/complex type: Жилищен
Building/complex class:
Housing areas: 64.08 m 2
Types of properties in the building/complex: 1-bedroom apartments
Location
The location of the complex is convenient and strategic: in the most attractive part of the newly built "Horizont" district, in close proximity to Mall Grand Plaza, Lidl, Kaufland and Decathlon. There will be a bus stop on a regular city line in close proximity to the building.
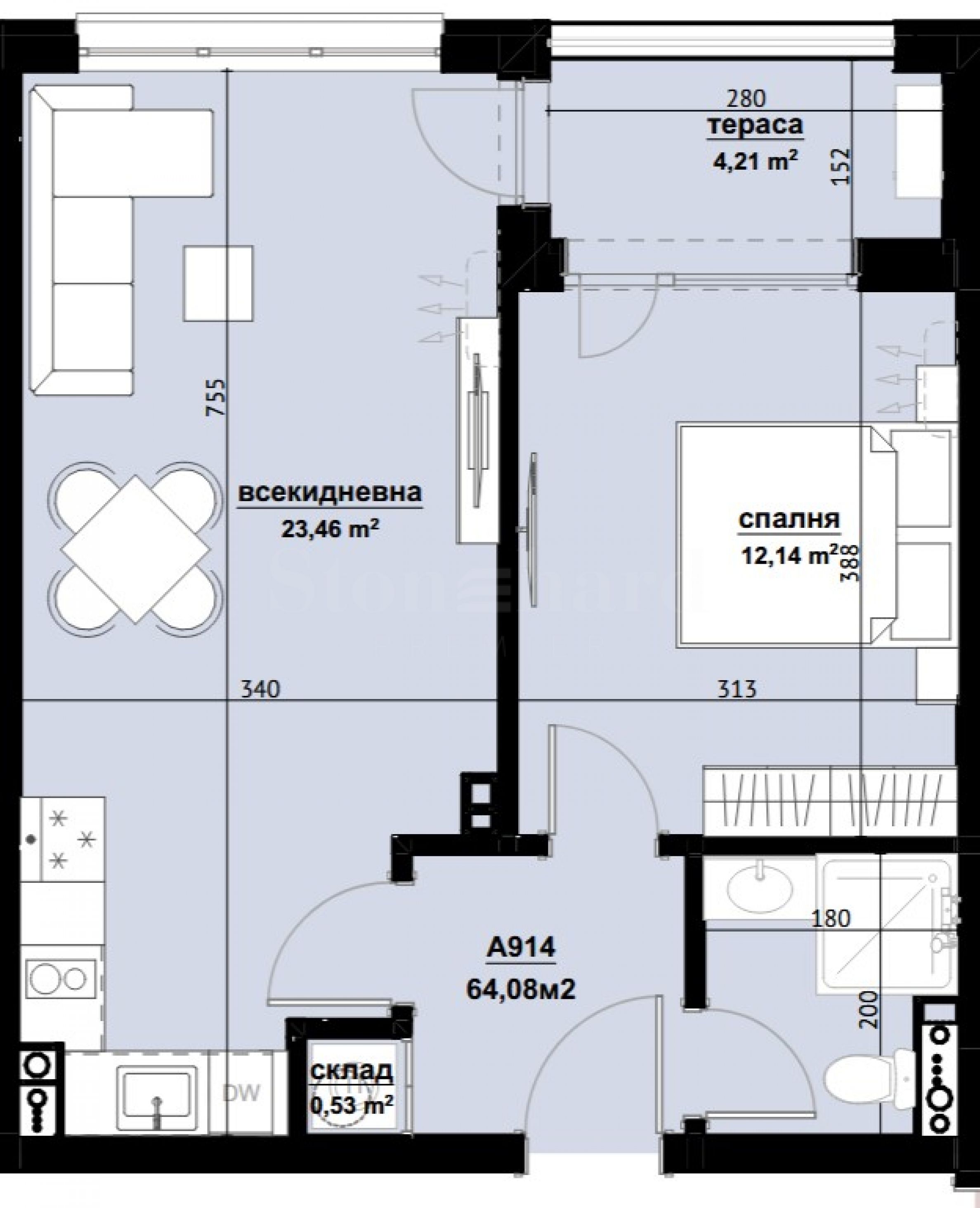
The property has a total area of 64.08 sq m, located on the 9th floor facing east. It consists of: entrance hall, living room with kitchen, bedroom, bathroom with toilet, storage room and terrace.
The apartment is offered finished according to Bulgarian Civil Code:
• flooring – cement screed;
• terraces - granite tiles;
• common parts of the building: granite and/or granite tiles;
• external walls with thermal insulation, according to the Energy Efficiency of the project;
• interior walls – machine-applied gypsum plaster;
• common parts of the building - walls with machine-applied gypsum plaster and painted;
• ceilings - concrete slab with a plasterboard structure;
• five-chamber PVC joinery with 32 mm glazing, 4 mm high-energy external glass, two-axis opening mechanisms;
• entrance doors – metal armored doors;
• Water and sewerage installation - pipe network according to an approved project, connected to the city's water and sewerage network;
• electrical installation – fully built with outlets for lamps, electric switches and sockets;
• elevators – completed construction part and installed machinery and electrical part with the necessary tests according to the project;
• installation shafts and chimneys, lightning protection - according to an approved project.
Stage 5 Features:
• Planned start of construction works - 12.2025. Completion date - in 30 months.
• It consists of two nine-story sections – A and B, each with its own entrance.
• Designed with attention to detail and functional layouts tailored to the modern lifestyle.
• The total number of residences is 223 apartments, with a variety of types and layouts available – two-bedroom and three-bedroom, designed for comfort and space.
• No maintenance fee.
Parking:
• 31 garages;
• 52 covered parking spaces in an underground parking lot with convenient access via a ramp;
• 142 outdoor parking spaces located around the buildings.
Amenities in Building 5:
• Children's playground and multifunctional sports field;
• Outdoor fitness area;
• Richly landscaped recreational areas.
*Residents of Building 5 will enjoy access to luxurious additional services next door, in Building 4 – a restaurant, a modern gym, a business center and a large SPA center with an indoor pool, jacuzzi, thermal zone and relaxation and massage rooms.
Advantages of the new neighborhood
This is the most actively developing area at the moment, promising to compete with the other parts of Burgas, with a number of advantages:
• quick and easy access to the main roads;
• completely new infrastructure;
• high level of comfort for residents;
• more green spaces and a healthier living environment;
• presence of large commercial establishments in the immediate vicinity;
• just a few meters away, the implementation of a project by the Municipality of Burgas for an Innovative Student and Scientific Campus is planned.
We look forward to your inquiry.
If you would like to arrange a viewing of a property that interests you, or to visit one of our offices, please contact us. To arrange a day and time for a meeting or viewing, you can call the phone number listed in the ad or send an inquiry via e-mail. Our consultant will assist you with all the necessary details and will arrange a time convenient for you.
Are you looking for the right property for you?
Do not hesitate to contact us and tell us about your needs and preferences. Our team will conduct a thorough market research to offer you properties that exactly meet your criteria. We have an exceptional portfolio of high-quality and exclusive homes that are available only to our clients. To be the first to receive information about them – contact us.
Additional services
As a valued client of our company, you will have the privilege of using the services of our experienced legal team completely free of charge. In addition, we offer comprehensive solutions, including property insurance, free financial consulting, as well as favorable financing conditions. Our services also extend to the field of resale, rental and property management. We provide high-quality renovation and furniture through specialized companies that are part of our corporate group and are our long-standing professional partners.
Viewings
We are ready to organize a viewing of this property at a time convenient for you. Please contact the responsible estate agent and inform them when you would like to have viewings arranged. We can also help you with flight tickets and hotel booking, as well as with travel insurance.
Property reservation
You can reserve this property with a non-refundable deposit of 2,000 Euro, payable by credit card or by bank transfer to our company bank account. After receiving the deposit the property will be marked as reserved, no further viewings will be carried out with other potential buyers, and we will start the preparation of the necessary documents for completion of the deal. Please contact the responsible estate agent for more information about the purchase procedure and the payment methods.
After sale services
We are a reputable company with many years of experience in the real estate business. Thus, we will be with you not only during the purchase process, but also after the deal is completed, providing you with a wide range of additional services tailored to your requirements and needs, so that you can fully enjoy your property in Bulgaria. The after sale services we offer include property insurance, construction and repair works, furniture, accounting and legal assistance, renewal of contracts for electricity, water, telephone and many more.
Location on the map
Location
The location of the complex is convenient and strategic: in the most attractive part of the newly built "Horizont" district, in close proximity to Mall Grand Plaza, Lidl, Kaufland and Decathlon. There will be a bus stop on a regular city line in close proximity to the building.
The property has a total area of 64.08 sq m, located on the 9th floor facing east. It consists of: entrance hall, living room with kitchen, bedroom, bathroom with toilet, storage room and terrace.
The apartment is offered finished according to Bulgarian Civil Code:
• flooring – cement screed;
• terraces - granite tiles;
• common parts of the building: granite and/or granite tiles;
• external walls with thermal insulation, according to the Energy Efficiency of the project;
• interior walls – machine-applied gypsum plaster;
• common parts of the building - walls with machine-applied gypsum plaster and painted;
• ceilings - concrete slab with a plasterboard structure;
• five-chamber PVC joinery with 32 mm glazing, 4 mm high-energy external glass, two-axis opening mechanisms;
• entrance doors – metal armored doors;
• Water and sewerage installation - pipe network according to an approved project, connected to the city's water and sewerage network;
• electrical installation – fully built with outlets for lamps, electric switches and sockets;
• elevators – completed construction part and installed machinery and electrical part with the necessary tests according to the project;
• installation shafts and chimneys, lightning protection - according to an approved project.
Stage 5 Features:
• Planned start of construction works - 12.2025. Completion date - in 30 months.
• It consists of two nine-story sections – A and B, each with its own entrance.
• Designed with attention to detail and functional layouts tailored to the modern lifestyle.
• The total number of residences is 223 apartments, with a variety of types and layouts available – two-bedroom and three-bedroom, designed for comfort and space.
• No maintenance fee.
Parking:
• 31 garages;
• 52 covered parking spaces in an underground parking lot with convenient access via a ramp;
• 142 outdoor parking spaces located around the buildings.
Amenities in Building 5:
• Children's playground and multifunctional sports field;
• Outdoor fitness area;
• Richly landscaped recreational areas.
*Residents of Building 5 will enjoy access to luxurious additional services next door, in Building 4 – a restaurant, a modern gym, a business center and a large SPA center with an indoor pool, jacuzzi, thermal zone and relaxation and massage rooms.
Advantages of the new neighborhood
This is the most actively developing area at the moment, promising to compete with the other parts of Burgas, with a number of advantages:
• quick and easy access to the main roads;
• completely new infrastructure;
• high level of comfort for residents;
• more green spaces and a healthier living environment;
• presence of large commercial establishments in the immediate vicinity;
• just a few meters away, the implementation of a project by the Municipality of Burgas for an Innovative Student and Scientific Campus is planned.
We look forward to your inquiry.
If you would like to arrange a viewing of a property that interests you, or to visit one of our offices, please contact us. To arrange a day and time for a meeting or viewing, you can call the phone number listed in the ad or send an inquiry via e-mail. Our consultant will assist you with all the necessary details and will arrange a time convenient for you.
Are you looking for the right property for you?
Do not hesitate to contact us and tell us about your needs and preferences. Our team will conduct a thorough market research to offer you properties that exactly meet your criteria. We have an exceptional portfolio of high-quality and exclusive homes that are available only to our clients. To be the first to receive information about them – contact us.
Additional services
As a valued client of our company, you will have the privilege of using the services of our experienced legal team completely free of charge. In addition, we offer comprehensive solutions, including property insurance, free financial consulting, as well as favorable financing conditions. Our services also extend to the field of resale, rental and property management. We provide high-quality renovation and furniture through specialized companies that are part of our corporate group and are our long-standing professional partners.
Viewings
We are ready to organize a viewing of this property at a time convenient for you. Please contact the responsible estate agent and inform them when you would like to have viewings arranged. We can also help you with flight tickets and hotel booking, as well as with travel insurance.
Property reservation
You can reserve this property with a non-refundable deposit of 2,000 Euro, payable by credit card or by bank transfer to our company bank account. After receiving the deposit the property will be marked as reserved, no further viewings will be carried out with other potential buyers, and we will start the preparation of the necessary documents for completion of the deal. Please contact the responsible estate agent for more information about the purchase procedure and the payment methods.
After sale services
We are a reputable company with many years of experience in the real estate business. Thus, we will be with you not only during the purchase process, but also after the deal is completed, providing you with a wide range of additional services tailored to your requirements and needs, so that you can fully enjoy your property in Bulgaria. The after sale services we offer include property insurance, construction and repair works, furniture, accounting and legal assistance, renewal of contracts for electricity, water, telephone and many more.
Location
The location of the complex is convenient and strategic: in the most attractive part of the newly built "Horizont" district, in close proximity to Mall Grand Plaza, Lidl, Kaufland and Decathlon. There will be a bus stop on a regular city line in close proximity to the building.
The property has a total area of 64.08 sq m, located on the 9th floor facing east. It consists of: entrance hall, living room with kitchen, bedroom, bathroom with toilet, storage room and terrace.
The apartment is offered finished according to Bulgarian Civil Code:
• flooring – cement screed;
• terraces - granite tiles;
• common parts of the building: granite and/or granite tiles;
• external walls with thermal insulation, according to the Energy Efficiency of the project;
• interior walls – machine-applied gypsum plaster;
• common parts of the building - walls with machine-applied gypsum plaster and painted;
• ceilings - concrete slab with a plasterboard structure;
• five-chamber PVC joinery with 32 mm glazing, 4 mm high-energy external glass, two-axis opening mechanisms;
• entrance doors – metal armored doors;
• Water and sewerage installation - pipe network according to an approved project, connected to the city's water and sewerage network;
• electrical installation – fully built with outlets for lamps, electric switches and sockets;
• elevators – completed construction part and installed machinery and electrical part with the necessary tests according to the project;
• installation shafts and chimneys, lightning protection - according to an approved project.
Stage 5 Features:
• Planned start of construction works - 12.2025. Completion date - in 30 months.
• It consists of two nine-story sections – A and B, each with its own entrance.
• Designed with attention to detail and functional layouts tailored to the modern lifestyle.
• The total number of residences is 223 apartments, with a variety of types and layouts available – two-bedroom and three-bedroom, designed for comfort and space.
• No maintenance fee.
Parking:
• 31 garages;
• 52 covered parking spaces in an underground parking lot with convenient access via a ramp;
• 142 outdoor parking spaces located around the buildings.
Amenities in Building 5:
• Children's playground and multifunctional sports field;
• Outdoor fitness area;
• Richly landscaped recreational areas.
*Residents of Building 5 will enjoy access to luxurious additional services next door, in Building 4 – a restaurant, a modern gym, a business center and a large SPA center with an indoor pool, jacuzzi, thermal zone and relaxation and massage rooms.
Advantages of the new neighborhood
This is the most actively developing area at the moment, promising to compete with the other parts of Burgas, with a number of advantages:
• quick and easy access to the main roads;
• completely new infrastructure;
• high level of comfort for residents;
• more green spaces and a healthier living environment;
• presence of large commercial establishments in the immediate vicinity;
• just a few meters away, the implementation of a project by the Municipality of Burgas for an Innovative Student and Scientific Campus is planned.
We look forward to your inquiry.
If you would like to arrange a viewing of a property that interests you, or to visit one of our offices, please contact us. To arrange a day and time for a meeting or viewing, you can call the phone number listed in the ad or send an inquiry via e-mail. Our consultant will assist you with all the necessary details and will arrange a time convenient for you.
Are you looking for the right property for you?
Do not hesitate to contact us and tell us about your needs and preferences. Our team will conduct a thorough market research to offer you properties that exactly meet your criteria. We have an exceptional portfolio of high-quality and exclusive homes that are available only to our clients. To be the first to receive information about them – contact us.
Additional services
As a valued client of our company, you will have the privilege of using the services of our experienced legal team completely free of charge. In addition, we offer comprehensive solutions, including property insurance, free financial consulting, as well as favorable financing conditions. Our services also extend to the field of resale, rental and property management. We provide high-quality renovation and furniture through specialized companies that are part of our corporate group and are our long-standing professional partners.
Viewings
We are ready to organize a viewing of this property at a time convenient for you. Please contact the responsible estate agent and inform them when you would like to have viewings arranged. We can also help you with flight tickets and hotel booking, as well as with travel insurance.
Property reservation
You can reserve this property with a non-refundable deposit of 2,000 Euro, payable by credit card or by bank transfer to our company bank account. After receiving the deposit the property will be marked as reserved, no further viewings will be carried out with other potential buyers, and we will start the preparation of the necessary documents for completion of the deal. Please contact the responsible estate agent for more information about the purchase procedure and the payment methods.
After sale services
We are a reputable company with many years of experience in the real estate business. Thus, we will be with you not only during the purchase process, but also after the deal is completed, providing you with a wide range of additional services tailored to your requirements and needs, so that you can fully enjoy your property in Bulgaria. The after sale services we offer include property insurance, construction and repair works, furniture, accounting and legal assistance, renewal of contracts for electricity, water, telephone and many more.
Apartments in a new, 5th building of the modern complex next to Mall Burgas Plaza
Horizont / Burgas / Burgas / Bulgaria map
Property prices: 90 000 - 207 000 €
Prices per m²: 1 390 - 1 580 €/m 2
Apartments in a new complex with a modern vision in the "Slaveykov" district, Burgas
Slaveykov / Burgas / Burgas / Bulgaria map
Property prices: Price upon request
Apartments in a new, modern gated residential complex in the "Horizont" district
Horizont / Burgas / Burgas / Bulgaria map
Property prices: 93 308 - 219 303 €
Prices per m²: 1 239 - 1 358 €/m 2
Select this option and we will notify you by email if there are any changes to the offer status, for example:
• Price change;
• The property entered into a promotional offer;
• The property is reserved or sold;
• Other news related to the property.
• The property is removed from sale;
You can easily unsubscribe from notifications whenever you want.• Changes to the terms of the offer;
• Change in the amount of the investment;
• The subject of the investment has been fully realized;
• The offer has expired.
You can easily unsubscribe if you decide in the future that you no longer want to follow this offer.



...As a proven specialist, Stonehard PREMIER works on the market positioning and sales of numerous new construction projects, the implementation of which has been entrusted to us by leading entrepreneurial companies in Bulgaria and abroad...