Two-bedroom apartment next to the "Slivnitsa" metro station in the "Lyulin 8" district
on the map
Price:
184 464 € (1 874 €/m 2)
*The prices and availability of vacant properties in the project are indicative. For up-to-date pricing information, please contact us!
Ref. Number: SOF-131643 / 4038
Location: Lyulin 8 / Sofia map
Building/complex type: Residential
Housing areas: 98.44 m 2
Types of properties in the building/complex: 2-bedroom apartments
Ref. Number: SOF-131643 / 4038
Location: Lyulin 8 / Sofia
Building/complex type: Residential
Building/complex class:
Housing areas: 98.44 m 2
Types of properties in the building/complex: 2-bedroom apartments
Planned completion of the building - 12.2026
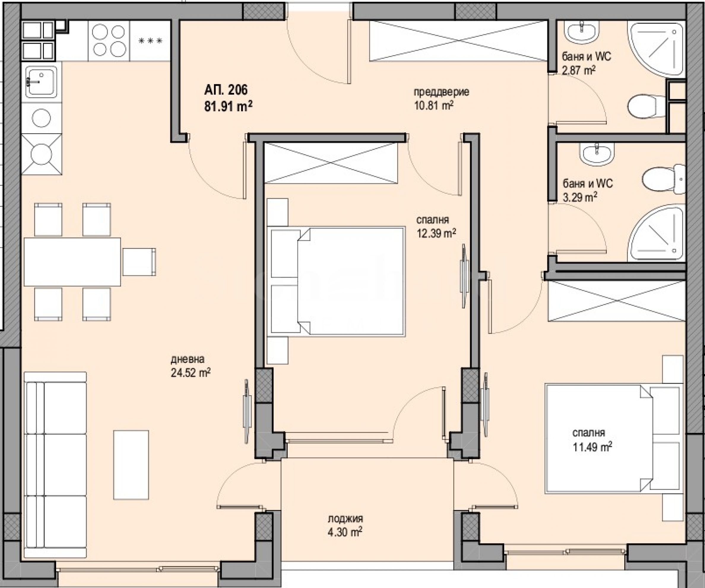
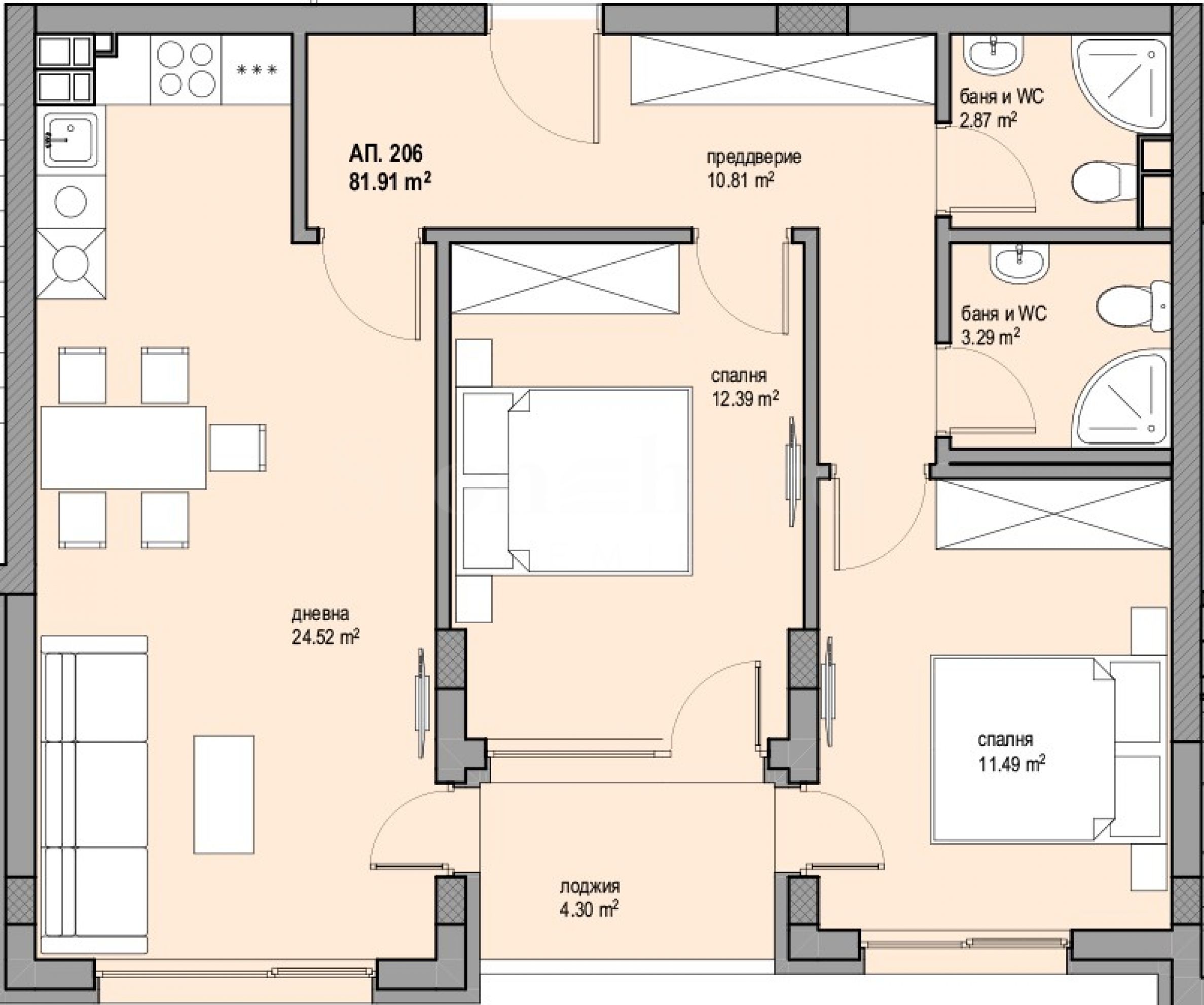
The property of 98.44 sq m is located on the 2nd floor in entrance "B" and has a favorable south/west exposure. It consists of an entrance hall, two bathrooms with toilets, a living room with a kitchen, two bedrooms, a terrace with access from all three rooms.
The apartments in the building are issued in the following degree of completion according to Bulgarian Construction Standards:
PVC windows with six-chamber, German profile with triple glazing, with one low-emission glass;
entrance apartment door - armored, with a high-class secret lock;
heating by means of electricity with connections for air conditioners;
finished walls and ceilings up to gypsum plaster with aluminum corner protectors laid at the edges; ceilings of unheated rooms that border heated rooms, with thermal insulation made of XPS extruded polystyrene foam; in bathrooms, toilets and wet rooms with lime-cement plaster;
cement screed on the floor; terraces with granite tiles;
installed apartment panel, located near the entrance door of the home;
low-current installations – implemented according to the project with a low-current box installed at the entrance door;
wiring for security system in each apartment;
video intercom installation - wiring completed, video intercoms in the apartments and a video intercom panel installed next to the front door;
installed electricity meters. Location
The building is located in close proximity to the main metropolitan thoroughfares - Slivnitsa Blvd., Pencho Vladigerov Blvd., Filipovsko Shose Blvd. and the Ring Road. It is 5 km from Lion's Bridge and the Central Station. The neighborhood has a well-developed transport infrastructure and is served by all types of public transport: Slivnitsa metro station, buses 82, 108, 309, 83, 49, 54, 47, 48, 42 and trolleybus 6.
It is close to kindergartens - ODZ №139 Panorama, DG №73 Margarita, ODZ №31 Lyulin and educational institutions - 56 Secondary School "Prof. Konstantin Irechek", 137 Secondary School Angel Kanchev. The area also has various supermarket chains - HIT Max, Metro, Fantastico, Billa, Technopolis, Praktiker, and for those who love walking - Western Park, Northern Park, with quick access to the eco-trail "Path of Health" - Bankya and Equestrian Base "Gen. Krum Lekarski" - Bozhurishte.
About the building
The building will stand out with an attractive facade with clinker tiles.
It consists of 2 entrances and 6 above-ground floors, distributed as follows:
the storage rooms are in the basement floor, where parking is also provided with delineated single parking spaces, double garage cells, as well as outdoor parking spaces;
ground floor – 2 commercial premises, two apartments and garages;
from the second to the sixth residential floor - two-bedroom and three-bedroom apartments with functional layout. Technical characteristics of the building:
monolithic, reinforced concrete beamless construction of a foundation slab;
with waterproofing of the building foundations - Kryton international Inc. Krystol Waterstop System;
masonry with WIENERBERGER ceramic bricks;
external enclosing walls - Porotherm 25 cm ceramic bricks and thermal insulation system /expanded polystyrene EPS/;
for internal brick walls - Porotherm ceramic bricks 12 cm, with soundproofing between the apartments;
flat roof with layers laid in detail - vapor barrier, thermal insulation from extruded polystyrene foam - XPS, reinforced screed with a slope, two layers of rolled bitumen waterproofing; without thermal bridges on the structural elements;
common areas - granite tiles or natural stone;
elevators with luxury cabins with automatic doors. We look forward to your inquiry.
If you would like to arrange a viewing of a property that interests you, or to visit one of our offices, please contact us. To arrange a day and time for a meeting or viewing, you can call the phone number listed in the ad or send an inquiry via e-mail. Our consultant will assist you with all the necessary details and will arrange a time convenient for you.
Are you looking for the right property for you?
Do not hesitate to contact us and tell us about your needs and preferences. Our team will conduct a thorough market research to offer you properties that exactly meet your criteria. We have an exceptional portfolio of high-quality and exclusive homes that are available only to our clients. To be the first to receive information about them – contact us.
Additional services
As a valued client of our company, you will have the privilege of using the services of our experienced legal team completely free of charge. In addition, we offer comprehensive solutions, including property insurance, free financial consulting, as well as favorable financing conditions. Our services also extend to the field of resale, rental and property management. We provide high-quality renovation and furniture through specialized companies that are part of our corporate group and are our long-standing professional partners.
Viewings
We are ready to organize a viewing of this property at a time convenient for you. Please contact the responsible estate agent and inform them when you would like to have viewings arranged. We can also help you with flight tickets and hotel booking, as well as with travel insurance.
Property reservation
You can reserve this property with a non-refundable deposit of 2,000 Euro, payable by credit card or by bank transfer to our company bank account. After receiving the deposit the property will be marked as reserved, no further viewings will be carried out with other potential buyers, and we will start the preparation of the necessary documents for completion of the deal. Please contact the responsible estate agent for more information about the purchase procedure and the payment methods.
After sale services
We are a reputable company with many years of experience in the real estate business. Thus, we will be with you not only during the purchase process, but also after the deal is completed, providing you with a wide range of additional services tailored to your requirements and needs, so that you can fully enjoy your property in Bulgaria. The after sale services we offer include property insurance, construction and repair works, furniture, accounting and legal assistance, renewal of contracts for electricity, water, telephone and many more.
Location on the map
SALE
PROJECT
Designer two-bedroom apartment in a prestigious building A3
Manastirski Livadi - East / Sofia / Sofia / Bulgaria map
Area: 165 m 2
Price: 630 000 € /// 3 818 €/m 2
A new residential project of eight buildings with different types of apartments in the "Malinova Dolina" quarter
Malinova Dolina / Sofia / Sofia / Bulgaria map
Property prices: 73 000 - 212 000 €
Prices per m²: 1 738 - 1 933 €/m 2
New complex with different types of apartments in the "Manastirski Livadi - Iztok" district
Manastirski Livadi - East / Sofia / Sofia / Bulgaria map
Property prices: 183 906 - 449 314 € (excluding VAT)
Prices per m²: 2 600 - 2 600 €/m 2 (excluding VAT)
Select this option and we will notify you by email if there are any changes to the offer status, for example:
• Price change;
• The property entered into a promotional offer;
• The property is reserved or sold;
• Other news related to the property.
• The property is removed from sale;
You can easily unsubscribe from notifications whenever you want.• Changes to the terms of the offer;
• Change in the amount of the investment;
• The subject of the investment has been fully realized;
• The offer has expired.
You can easily unsubscribe if you decide in the future that you no longer want to follow this offer.
To receive absolutely correct information about the vacant properties available for sale in the project and their current prices, please contact our office at the contact information provided.
We make every effort to keep our price lists absolutely up-to-date and correct, but this is often impossible, given the large number of new projects in our catalog and the highly dynamic sales.
Thank you for your understanding!



...As a proven specialist, Stonehard PREMIER works on the market positioning and sales of numerous new construction projects, the implementation of which has been entrusted to us by leading entrepreneurial companies in Bulgaria and abroad...