Comfortable two-bedroom apartment in a new building next to Vladimir Vazov Blvd.
on the mapPrice:
222 905 € (1 950 €/m 2)
*The prices and availability of vacant properties in the project are indicative. For up-to-date pricing information, please contact us!
Ref. Number: SOF-131641 / 4015
Location: Levski G / Sofia map
Building/complex type: Residential
Housing areas: 114.31 m 2
Types of properties in the building/complex: 2-bedroom apartments
Ref. Number: SOF-131641 / 4015
Location: Levski G / Sofia
Building/complex type: Residential
Building/complex class:
Housing areas: 114.31 m 2
Types of properties in the building/complex: 2-bedroom apartments
Under construction. Scheduled completion - 11.2027.
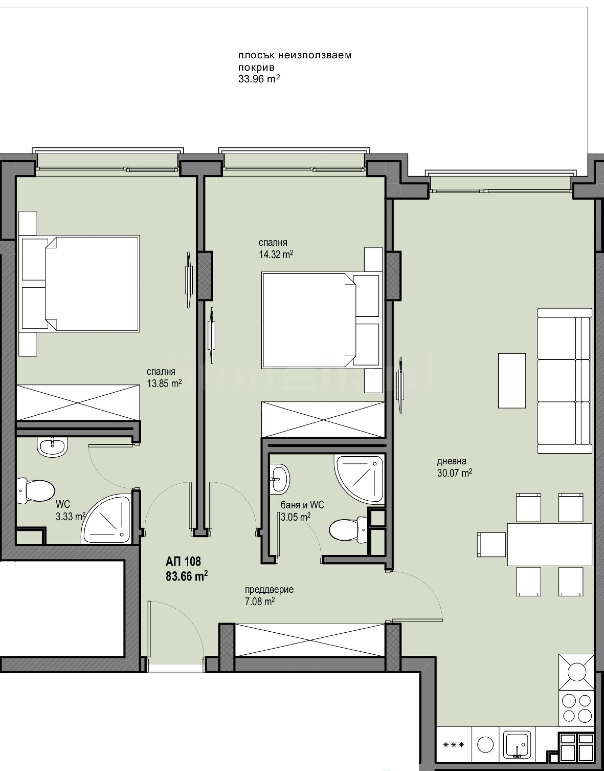
The property has a total area of 114.31 m2., located on the 2nd floor, with eastern exposure. It consists of an entrance hall, toilet, bathroom, two bedrooms, living room with kitchen and dining room, terrace - 33.96 m2.
It is issued in the degree of completion according to the Bulgarian Civil Code:
• PVC windows with six-chamber, German profile with triple glazing, with one low-emission glass;
• entrance door - armored, with a high-class secret lock;
• heating by means of electricity with connections for air conditioners;
• finished walls and ceilings up to gypsum plaster with aluminum corner protectors placed at the edges;
• ceilings of unheated rooms that border heated rooms, with thermal insulation made of XPS extruded polystyrene foam;
• sanitary and wet rooms are filled with lime-cement plaster;
• cement screed on the floor;
• terraces with granite tiles;
• installed panel located near the entrance door;
• low-current installations – according to the project with a low-current box installed at the entrance door;
• wiring for security system;
• video intercom installation - wiring completed, video intercom;
• installed electricity meters.
The building is being built near Vladimir Vazov Blvd., which is a main boulevard and radial road in the capital, 5 km long, with convenient public transport nearby (bus lines 120, 78), 3 km from Teatralna metro station. Currently, the extension of the M3 metro line from Hadji Dimitar metro station to Levski G residential area is being built.
Along the extension of Vladimir Vazov Blvd., 3 metro stations are planned:
• metro station "Vladimir Vazov" – only 450 meters from the building;
• "Trakia" metro station – 500 meters away;
• metro station "Georgi Asparuhov Stadium" – 1.5 km from the building.
Distances to key sites, such as:
• "Vivacom Arena - Georgi Asparuhov" stadium - 1 km;
• Decathlon – 480 m, Varadero swimming and entertainment complex – 500 m;
• "Oborishte" street and Serdika center, "Madrid" blvd. – 3.5 km;
• "Gerena" park – 1 km, "Zaimov" park – 5 km;
• center of Sofia, Vitosha Blvd. – 7 km;
• Sofia Airport – 5 km.
Educational institutions and kindergartens in the area: Primary School 199 "St. Apostle John the Theologian" - 400 m, Secondary School 130 "Stefan Karadzha" - 900 m, Secondary School 44 "Neofit Bozveli" - 2 km, Primary School 49 "Benito Juarez" - 1.9 km; Primary School 92 "Mechta", Primary School 91 "Sunny Corner" - branch, Primary School 20 "Jasminov Park".
About the building
The building consists of 2 sections with apartments on 9 residential floors. The properties are of two-room, three-room and four-room types. There is an opportunity to purchase garages at prices from 26,500 euros, as well as storage rooms.
Technical characteristics of the building:
• monolithic, reinforced concrete beamless construction of a foundation slab;
• with waterproofing of the building foundations - Kryton international Inc. Krystol Waterstop System;
• masonry with WIENERBERGER ceramic bricks;
• external enclosing walls - Porotherm 25 cm ceramic bricks and thermal insulation system /expanded polystyrene EPS/;
• for internal brick walls - Porotherm ceramic bricks 12 cm, with sound insulation between the apartments;
• flat roof with layers laid in detail - vapor barrier, thermal insulation from extruded polystyrene foam - XPS, reinforced screed with a slope, two layers of rolled bitumen waterproofing; without thermal bridges on the structural elements;
• common areas - granite tiles or natural stone;
• elevators with luxury cabins with automatic doors.
We look forward to your inquiry.
If you would like to arrange a viewing of a property that interests you, or to visit one of our offices, please contact us. To arrange a day and time for a meeting or viewing, you can call the phone number listed in the ad or send an inquiry via e-mail. Our consultant will assist you with all the necessary details and will arrange a time convenient for you.
Are you looking for the right property for you?
Do not hesitate to contact us and tell us about your needs and preferences. Our team will conduct a thorough market research to offer you properties that exactly meet your criteria. We have an exceptional portfolio of high-quality and exclusive homes that are available only to our clients. To be the first to receive information about them – contact us.
Additional services
As a valued client of our company, you will have the privilege of using the services of our experienced legal team completely free of charge. In addition, we offer comprehensive solutions, including property insurance, free financial consulting, as well as favorable financing conditions. Our services also extend to the field of resale, rental and property management. We provide high-quality renovation and furniture through specialized companies that are part of our corporate group and are our long-standing professional partners.
Viewings
We are ready to organize a viewing of this property at a time convenient for you. Please contact the responsible estate agent and inform them when you would like to have viewings arranged. We can also help you with flight tickets and hotel booking, as well as with travel insurance.
Property reservation
You can reserve this property with a non-refundable deposit of 2,000 Euro, payable by credit card or by bank transfer to our company bank account. After receiving the deposit the property will be marked as reserved, no further viewings will be carried out with other potential buyers, and we will start the preparation of the necessary documents for completion of the deal. Please contact the responsible estate agent for more information about the purchase procedure and the payment methods.
After sale services
We are a reputable company with many years of experience in the real estate business. Thus, we will be with you not only during the purchase process, but also after the deal is completed, providing you with a wide range of additional services tailored to your requirements and needs, so that you can fully enjoy your property in Bulgaria. The after sale services we offer include property insurance, construction and repair works, furniture, accounting and legal assistance, renewal of contracts for electricity, water, telephone and many more.
Location on the map
MANDATE
High-tech residential building with panoramic residences, fitness, SPA, restaurant and concierge on Tsarigradsko Shose Blvd.
7-mi 11-ti kilometar / Sofia / Sofia / Bulgaria map
Building class: Premium
Property prices: 412 965 - 1 763 726 € (excluding VAT)
Prices per m²: 2 100 - 4 125 €/m 2 (excluding VAT)
SALE
PROJECT
Designer two-bedroom apartment in a prestigious building A3
Manastirski Livadi - East / Sofia / Sofia / Bulgaria map
Area: 165 m 2
Price: 630 000 € /// 3 818 €/m 2
A new residential project of eight buildings with different types of apartments in the "Malinova Dolina" quarter
Malinova Dolina / Sofia / Sofia / Bulgaria map
Property prices: 73 000 - 212 000 €
Prices per m²: 1 738 - 1 933 €/m 2
Select this option and we will notify you by email if there are any changes to the offer status, for example:
• Price change;
• The property entered into a promotional offer;
• The property is reserved or sold;
• Other news related to the property.
• The property is removed from sale;
You can easily unsubscribe from notifications whenever you want.• Changes to the terms of the offer;
• Change in the amount of the investment;
• The subject of the investment has been fully realized;
• The offer has expired.
You can easily unsubscribe if you decide in the future that you no longer want to follow this offer.
To receive absolutely correct information about the vacant properties available for sale in the project and their current prices, please contact our office at the contact information provided.
We make every effort to keep our price lists absolutely up-to-date and correct, but this is often impossible, given the large number of new projects in our catalog and the highly dynamic sales.
Thank you for your understanding!



...As a proven specialist, Stonehard PREMIER works on the market positioning and sales of numerous new construction projects, the implementation of which has been entrusted to us by leading entrepreneurial companies in Bulgaria and abroad...