New one-bedroom apartment in Belvedere Holiday Club in Bansko
on the map
Price:
89 425 € (excluding VAT) (1 250 €/m 2 (excluding VAT))
*The prices and availability of vacant properties in the project are indicative. For up-to-date pricing information, please contact us!
Ref. Number: STO-128755 / 4138
Location: Bansko map
Building/complex type: Residential
Housing areas: 71.54 m 2
Types of properties in the building/complex: 1-bedroom apartments
Ref. Number: STO-128755 / 4138
Location: Bansko
Building/complex type: Residential
Building/complex class:
Housing areas: 71.54 m 2
Types of properties in the building/complex: 1-bedroom apartments
We are exclusively presenting for sale a one-bedroom apartment in a new building of the popular Belvedere Holiday Club complex in Bansko.
The newly built and now fully operational "Belvedere Holiday Club" is an exclusive high-class holiday complex, one of the best mountain resorts in Bulgaria! The complex is of a gated type, consisting of functional apartments and complemented by superb amenities and facilities for recreation and entertainment. It is located in the new modern area of Bansko, only about 400 m from the gondola lift and in close proximity to the new shopping center Mall of Bansko.
The upcoming new building offers an attractive contemporary ventilated facade with HPL, in the traditional colors of the complex, is distributed over 5 floors with two entrances - "A" and "B", with a modern elevator. It offers a choice of spacious studios, one-bedroom and two-bedroom apartments.
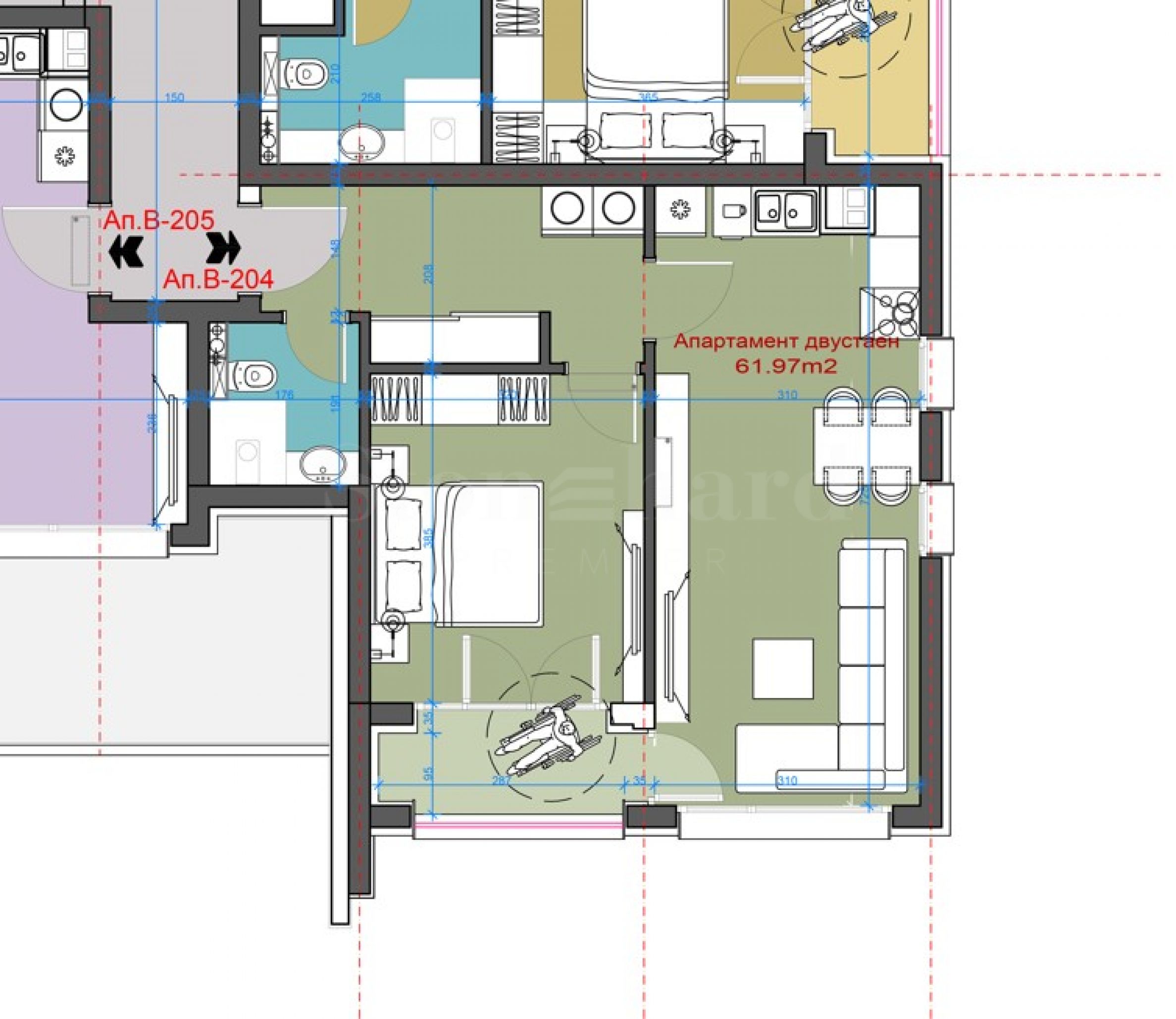
The offered one-bedroom apartment has a total area of 71.54 sq m, located on the 2nd floor, and is being sold in a turnkey condition.
Finishing work:
• installations for draining water from air conditioners - split and multi-split systems;
• floor - high-quality laminate and granite tiles in the corridor and kitchen area;
• bathrooms finished, with boiler, granite tiles;
• walls - Winerberger bricks, interior walls - 25 cm brick;
• ceilings - gypsum plaster with aluminum corners;
• latex paint - white;
• PVC joinery - 5-chamber profile, graphite color on the outside, white inside, triple glazing;
• railings - metal;
• doors - entrance;
• interior doors;
Technical characteristics of the building:
• lining - ventilated facade with HPL;
• aluminum window frames;
• 12 cm insulation, white and gray plaster;
• Bramac roof tiles;
• courtyards - concrete on the ground floor, without lawns;
• Plumbing installations - 100 l boilers, cold water meters with remote reading, ventilation;
• common areas fully finished - granite steps, granite tiles in lobbies and corridors;
• video surveillance - at the entrance to the lobby - along the periphery of the building;
• access control;
• lighting fixtures in common areas with detectors;
• Internet and cable wiring;
• intercom system (video surveillance cable);
• elevator - electromechanical - Orona for 8 people;
• water, sewer and electricity - supply.
Payment plan:
• 20% of the Preliminary Agreement;
• 20% of the elevation at which the apartment is located;
• 20% of Act 14;
• 30% of Act 15;
• 10% on Act 16.
The first phase of the complex is fully completed, successfully functioning and has a permit for use (Act 16) since 2008. It consists of three apartment blocks.
Extras and facilities at Belvedere Holiday Club
• Modern restaurant "Belvedere Classico", offering European cuisine and traditional dishes of the region. Preferential prices for owners and room service are available;
• Indoor heated pool with an area for adults and an area for children with a constant temperature of 32-33 degrees;
• Outdoor pool (heated in summer) with an area for adults, an area for children, an area for very young babies and children, and a pool bar;
• Outdoor jacuzzi for 15 people;
• Luxurious 24-hour reception in block 1 and mini-receptions in the other blocks;
• Lobby area with upholstered furniture;
• Lobby bar serving drinks and food;
• Room with billiards, darts and other fun games;
• Quiet games corner: pool tables, table tennis, simulator, Internet games;
• Children's corner - outdoor;
• Children's corner - indoor;
• Conference room equipped with the necessary conference equipment;
• Wardrobe for ski and golf equipment;
• Parking lots and underground garage with parking spaces;
• Beautifully landscaped gardens with lighting and alleys;
• 24-hour security and video surveillance.
SPA center:
• Infrared sauna with Himalayan salt;
• Turkish bath – Hammam;
• Relaxation room with warm beds;
• 2 dry Finnish saunas;
• 2 steam rooms;
• Jacuzzi for 10 people;
• Solarium.
*Apartment owners enjoy preferential conditions in the renovated SPA center of the complex, and have the right to unlimited use of the outdoor pools, jacuzzi and fitness center.
Sports:
• Fitness;
• Badminton;
• Basketball hoop.
Services at Belvedere Holiday Club:
• 24-hour reception and room service;
• 24-hour security and security cameras;
• Private bus transport to the gondola lift, the center of Bansko and to the golf course. During the winter season, free transportation to the starting station of the lift is offered. Valid only for apartment owners;
• Wireless Internet throughout the complex.
We look forward to your inquiry.
If you would like to arrange a viewing of a property that interests you, or to visit one of our offices, please contact us. To arrange a day and time for a meeting or viewing, you can call the phone number listed in the ad or send an inquiry via e-mail. Our consultant will assist you with all the necessary details and will arrange a time convenient for you.
Are you looking for the right property for you?
Do not hesitate to contact us and tell us about your needs and preferences. Our team will conduct a thorough market research to offer you properties that exactly meet your criteria. We have an exceptional portfolio of high-quality and exclusive homes that are available only to our clients. To be the first to receive information about them – contact us.
Additional services
As a valued client of our company, you will have the privilege of using the services of our experienced legal team completely free of charge. In addition, we offer comprehensive solutions, including property insurance, free financial consulting, as well as favorable financing conditions. Our services also extend to the field of resale, rental and property management. We provide high-quality renovation and furniture through specialized companies that are part of our corporate group and are our long-standing professional partners.
Viewings
We are ready to organize a viewing of this property at a time convenient for you. Please contact the responsible estate agent and inform them when you would like to have viewings arranged. We can also help you with flight tickets and hotel booking, as well as with travel insurance.
Property reservation
You can reserve this property with a non-refundable deposit of 2,000 Euro, payable by credit card or by bank transfer to our company bank account. After receiving the deposit the property will be marked as reserved, no further viewings will be carried out with other potential buyers, and we will start the preparation of the necessary documents for completion of the deal. Please contact the responsible estate agent for more information about the purchase procedure and the payment methods.
After sale services
We are a reputable company with many years of experience in the real estate business. Thus, we will be with you not only during the purchase process, but also after the deal is completed, providing you with a wide range of additional services tailored to your requirements and needs, so that you can fully enjoy your property in Bulgaria. The after sale services we offer include property insurance, construction and repair works, furniture, accounting and legal assistance, renewal of contracts for electricity, water, telephone and many more.
Location on the map
SALE
PROJECT
One-bedroom apartment with a balcony in a new luxury complex 350 m from the ski area in Bansko
Bansko / Blagoevgrad / Bulgaria map
Area: 64.21 m 2
Price: 86 683 € /// 1 350 €/m 2
SALE
PROJECT
One-bedroom apartment in Belvedere Holiday Club, meters from the ski lift
Bansko / Blagoevgrad / Bulgaria map
Area: 48.04 m 2
Price: 64 000 € /// 1 332 €/m 2
PROJECT
Apartments in an attractive complex 350 m from the ski area in Bansko
Bansko / Blagoevgrad / Bulgaria map
Property prices: 54 931 - 155 121 € (excluding VAT)
Prices per m²: 1 250 - 1 450 €/m 2 (excluding VAT)
Select this option and we will notify you by email if there are any changes to the offer status, for example:
• Price change;
• The property entered into a promotional offer;
• The property is reserved or sold;
• Other news related to the property.
• The property is removed from sale;
You can easily unsubscribe from notifications whenever you want.• Changes to the terms of the offer;
• Change in the amount of the investment;
• The subject of the investment has been fully realized;
• The offer has expired.
You can easily unsubscribe if you decide in the future that you no longer want to follow this offer.
To receive absolutely correct information about the vacant properties available for sale in the project and their current prices, please contact our office at the contact information provided.
We make every effort to keep our price lists absolutely up-to-date and correct, but this is often impossible, given the large number of new projects in our catalog and the highly dynamic sales.
Thank you for your understanding!



...As a proven specialist, Stonehard PREMIER works on the market positioning and sales of numerous new construction projects, the implementation of which has been entrusted to us by leading entrepreneurial companies in Bulgaria and abroad...