Three-room maisonette "turnkey" in the prestigious complex 7 Angels
on the map
Price:
235 504 € (excluding VAT) (1 600 €/m 2 (excluding VAT))
*The prices and availability of vacant properties in the project are indicative. For up-to-date pricing information, please contact us!
Ref. Number: STO 117956 / 3566
Location: Borovets map
Building/complex type: Residential
Building/complex class: Luxurious
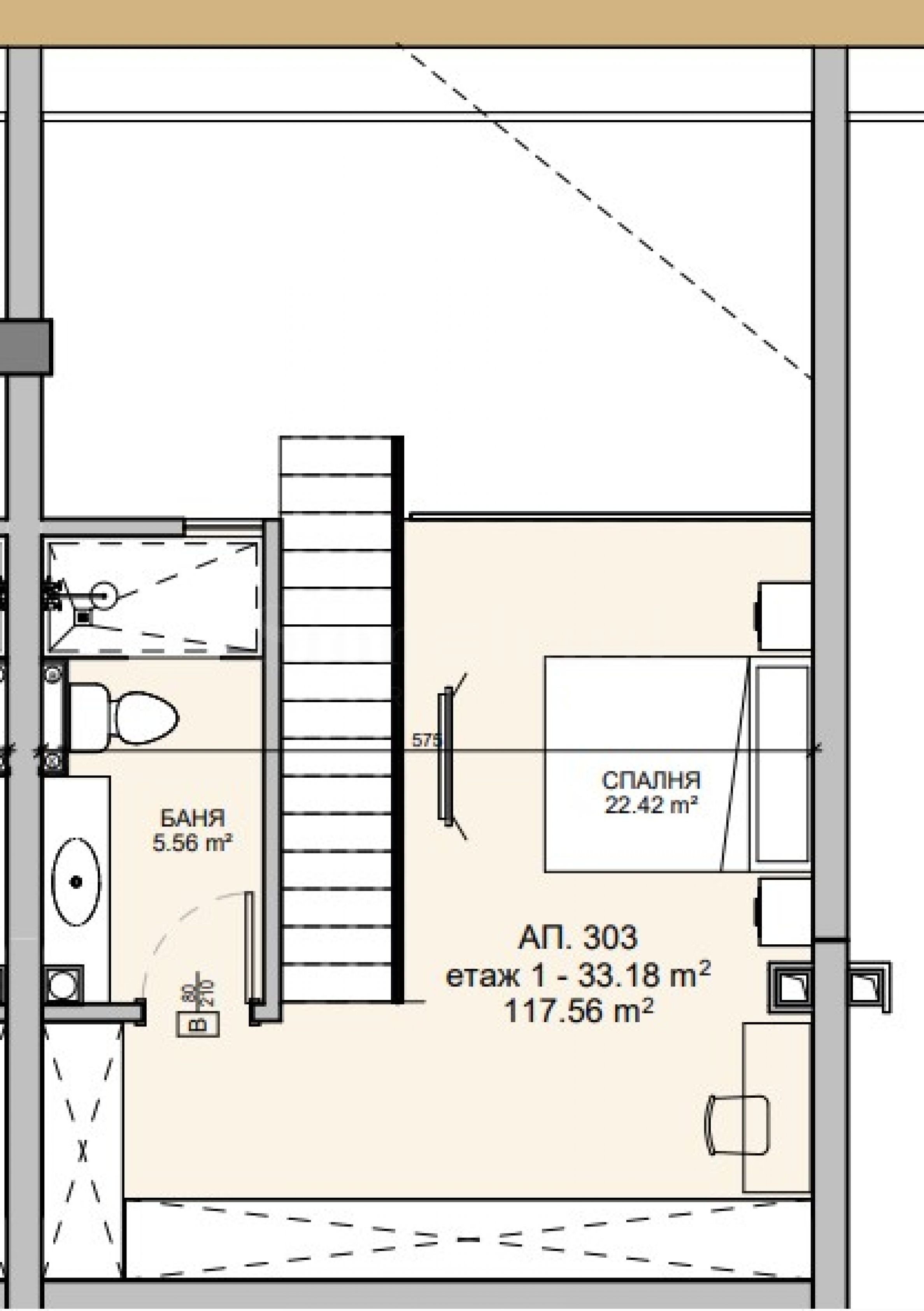
Housing areas: 147.19 m 2
Types of properties in the building/complex: Two-level penthouses
Ref. Number: STO 117956 / 3566
Location: Borovets
Building/complex type: Residential
Building/complex class: Luxurious
Housing areas: 147.19 m 2
Types of properties in the building/complex: Two-level penthouses
The project will be implemented without compromise and has the ambition to become one of the most renowned and prestigious residences in the aristocratic mountain resort of Bulgaria, founded by Tsar Ferdinand more than 120 years ago. The project involves a complete reconstruction of the two existing buildings of the former Zodiac Hotel in the Borovets resort and its transformation into a luxury mountain residence with comfortable apartments and a wide range of amenities for its residents.
WITH BUILDING PERMIT!
Planned completion - end of 2026.
The property is situated on the 3rd and 4th floor and offers 147.19 sq m of total area (net area 119.53 sq m + common areas 27.66 sq m). The first floor consists of an entrance hall, living room with kitchenette, bedroom, bathroom with toilet, terrace, and the second level has a bedroom and bathroom with toilet.
Location
With its secluded location, at 1340 m above sea level, Borovets offers exceptionally clean air, and the Bistritsa River, which runs through the entire resort, has an air current that gives a special structure to the air and helps with healing and the rapid recovery of human health. The area is an ideal place for winter and summer tourism, skiing, biking, mountain hiking, mountain running, rock climbing, paragliding, horseback riding. It has 58 km of different ski slopes and is suitable for both beginners and advanced skiers. The location has quick access to the center of the resort, 900 m from the gondola lift and only 50 m from an 800-meter ski slope for beginners.
Apartments with panoramic views - for personal use or investment
The complex is planned in three sections – two residential buildings and a restaurant between them, which connects them with a warm connection. The structural heights are 2.50 - 2.60 meters for building B and over 3.20 meters for building A. 58 apartments are planned with the possibility of merging - studios and apartments with one, two and three bedrooms, some of which have garden terraces, and others are of the maisonette type. The apartments are carefully designed for the most comfortable living, and the panoramic glazing of the building contributes to both an abundance of natural light and wonderful views of the breathtaking natural beauty.
The apartments are offered in a "turnkey" state of completion with finished flooring (parquet), walls, finished and equipped bathrooms; wooden, three-layer joinery, German profile, with triple glazing and an aluminum cap, protecting the wood from cold and sun to serve for many years; armored entrance doors and MDF interior doors, installed radiators and a Smart-home system, included in the price. Heating is provided with individual gas heating and radiators.
7 Angels will also offer an integrated smart home system in every home, with two options to choose from.
Option 1 (basic) includes:
• Gas boiler control;
• Alarm system management at the client's request (with preparation for turning on the security system with the option of taking photos when motion is detected and sending the image in real time to the property owner);
• Fire alarm;
• Welcome lighting at the threshold of each home;
• Internet and cable TV management.
Option 2 includes:
• Gas boiler control;
• Alarm system management at the client's request (with preparation for turning on the security system with the option of taking photos when motion is detected and sending the image in real time to the property owner);
• Fire alarm;
• Welcome lighting at the threshold of each home;
• Internet and cable TV management;
• Automatic movement of curtains;
• Implementation of any other SMART HOME extras at the client's request.
Every property owner in 7 Angels will also have access to the Captive Portal service, where they will be able to monitor the temperature in the home and the energy consumption of their home through a digital electricity and gas meter. For additional convenience and security, a QR code system will be used to access the parking lot and the amenities in the complex's modern SPA center.
The indicated price is excluding VAT.
A full spectrum of experiences
7 Angels will be built according to the Healthy Building concept with state-of-the-art construction technologies and solutions for energy efficiency and a favorable living environment, and its impressive Alpine-style vision is inspired by the best ski resorts in Switzerland.
The architectural vision will be highlighted with luxuriously designed common areas with KONE elevators, and residents will have access to a premium brand restaurant, an Italian coffee shop, a ski room, an ultra-modern wellness and SPA center, which includes indoor and outdoor saunas, a small pool with diffusers, a steam bath and massage rooms, as well as a fitness center with Kettler and Tehnogym fitness equipment.
All-day free transportation from the complex to the gondola station is provided, and a children's area for games and entertainment will be built nearby.
7 Angels – when nature heals
7 Angels will offer not only state-of-the-art amenities, but also a close encounter with the healing powers of Rila.
The complex will be transformed into an excellent place for solitude and recreation amidst a healthy environment and crystal clear air. Borovets is a traditional place for treatment and rehabilitation for lung diseases, and the turbulent Bistritsa River, which flows near the 7 Angels location, additionally saturates the air with oxygen.
The energy of this special place will be combined with the expertise of proven healers practicing natural medicine, who will be regular guests in the two specially created offices. You will be able to benefit from the skills of specialists in Ayurveda, iris diagnostics, Yumeiho therapy and many others, which will turn the time spent at 7 Angels into an experience for the body and soul.
At 7 Angels, a journey into yourself awaits you, away from the noise of the city, surrounded by a centuries-old pine forest.
If active recreation is what you need, 7 Angels offers numerous sports opportunities nearby. A project is underway to build numerous bike paths in the area, which will offer cycling conditions in the resort and the mountains, and in winter the ski slope next to the complex is an ideal option for beginner skiers and children.
Possibility to purchase your own parking space in the complex's outdoor parking lot or in the indoor underground garage:
above-ground parking spaces - 8,000 Euros excluding VAT;
underground parking spaces - 12,000 Euros excluding VAT.
Standard payment scheme:
Reservation deposit - 7000 to 11000 Euros depending on the type of apartment (the deposit keeps the property reserved until the "first sod") - a Preliminary Contract is signed within 14 days after payment of the reservation deposit;
25% minus the deposit - upon signing a Preliminary Agreement;
25% with installed joinery;
30% with a facade installed;
20% on Act 16.
Payment plan with a small initial payment and a large final payment on Act 16 (1750 Euro/m2 excluding VAT):
Reservation deposit;
20% of the property price minus the deposit amount upon issuance of a Building Permit + officially opened construction site with a defined construction line and level, and a drawn up protocol indicating the regulatory and leveling benchmarks;
80% of the property price upon issuance of Act 16 and commissioning of the building, and acquisition of ownership of the property in notarial form.
Maintenance fee
The mandatory maintenance fee is fixed for the first 2 years at the rate of 15 Euro/m2 excluding VAT of the total area of the home including common areas.
With its sustainable and different concept, 7 Angels provides the opportunity to live in a healthy environment, with first-class amenities and close to the ski slopes and lifts of the resort. Contact us for more information and professional consultation!
Viewings
We are ready to organize a viewing of this property at a time convenient for you. Please contact the responsible estate agent and inform them when you would like to have viewings arranged. We can also help you with flight tickets and hotel booking, as well as with travel insurance.
Property reservation
You can reserve this property with a non-refundable deposit of 2,000 Euro, payable by credit card or by bank transfer to our company bank account. After receiving the deposit the property will be marked as reserved, no further viewings will be carried out with other potential buyers, and we will start the preparation of the necessary documents for completion of the deal. Please contact the responsible estate agent for more information about the purchase procedure and the payment methods.
After sale services
We are a reputable company with many years of experience in the real estate business. Thus, we will be with you not only during the purchase process, but also after the deal is completed, providing you with a wide range of additional services tailored to your requirements and needs, so that you can fully enjoy your property in Bulgaria. The after sale services we offer include property insurance, construction and repair works, furniture, accounting and legal assistance, renewal of contracts for electricity, water, telephone and many more.
Location on the map
MANDATE
Complex 7 Angels — newly built luxury apartments in Borovets
Borovets / Sofia / Bulgaria map
Building class: Luxurious
Scheduled start: May, 2025
Expected completion: December, 2026
Property prices: 165 472 - 730 439 € (excluding VAT)
Prices per m²: 1 600 - 1 700 €/m 2 (excluding VAT)
Select this option and we will notify you by email if there are any changes to the offer status, for example:
• Price change;
• The property entered into a promotional offer;
• The property is reserved or sold;
• Other news related to the property.
• The property is removed from sale;
You can easily unsubscribe from notifications whenever you want.• Changes to the terms of the offer;
• Change in the amount of the investment;
• The subject of the investment has been fully realized;
• The offer has expired.
You can easily unsubscribe if you decide in the future that you no longer want to follow this offer.
To receive absolutely correct information about the vacant properties available for sale in the project and their current prices, please contact our office at the contact information provided.
We make every effort to keep our price lists absolutely up-to-date and correct, but this is often impossible, given the large number of new projects in our catalog and the highly dynamic sales.
Thank you for your understanding!



...As a proven specialist, Stonehard PREMIER works on the market positioning and sales of numerous new construction projects, the implementation of which has been entrusted to us by leading entrepreneurial companies in Bulgaria and abroad...