Ref. Number: SOF-129165 / 3854
Location: Boyana / Sofia map
Building/complex type: Residential
Building/complex class: High standard
Housing areas: 76 m 2
Types of properties in the building/complex: 1-bedroom apartments
Ref. Number: SOF-129165
Location: Boyana / Sofia
Building/complex type: Жилищен
Building/complex class: High standard
Housing areas: 76 m 2
Types of properties in the building/complex: 1-bedroom apartments
Situated in the prestigious neighborhood, this complex combines an excellent location, high-quality materials and modern technologies, making it an ideal choice for people seeking a comfortable life in a well-organized urban environment with close proximity to nature. Thanks to the convenient access to Bulgaria Blvd. and the Ring Road, you can quickly reach the city center, while the proximity to Vitosha Park provides fresh air and beautiful views.
Property parameters
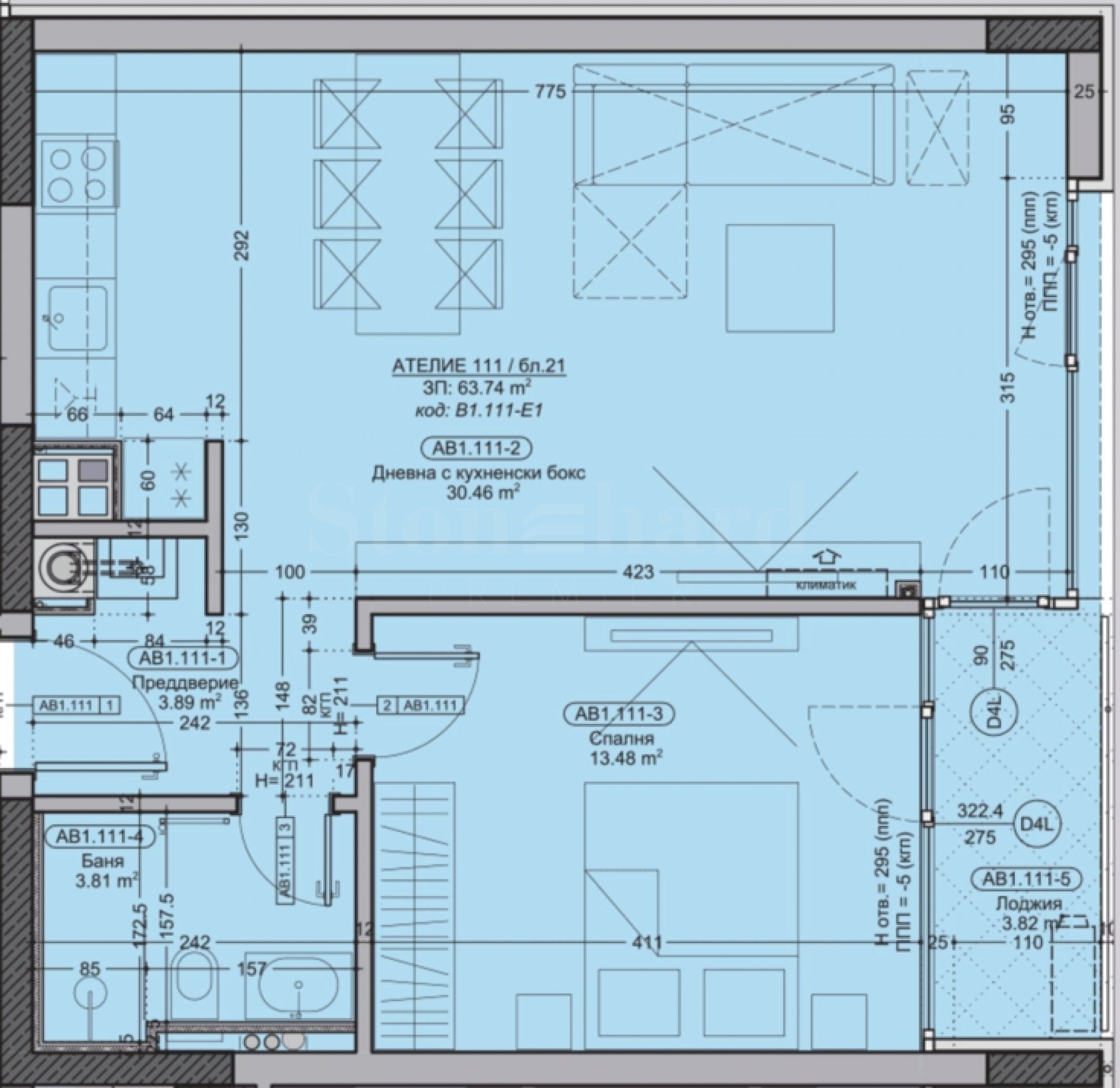
The apartment is located on the 1st floor, facing north/east and has a total area of 76.34 sq m. It consists of an entrance hall, bathroom with toilet, bedroom, living room with kitchen, loggia-type terrace, with access from the living room and bedroom.
Available in the following degree of completion according to BDS:
floors with Copersound P-TEX soundproofing;
Legrand Valena Life switches and sockets;
PVC windows with K?mmerling triple glazing;
gas heating with Bosch boiler and wiring for air conditioners;
Solid entrance door, model iDoor 20-23;
terrace with frost-resistant granite tiles. *Each apartment in the complex has a Smart Home ready system, allowing control of lighting, heating, air conditioning and security via a mobile device.
Additionally, an underground parking space can be purchased with the property at a price of 68,454 BGN (35,000 EUR) excluding VAT.
The indicated price is excluding VAT.
About the complex
The complex, consisting of 8 buildings with a total of 204 apartments and studios, is designed with functional layouts and panoramic views of the city and the mountains. The green spaces between the buildings are designed with gardens, walking paths, recreation areas and playgrounds. For additional comfort, a fitness center, restaurant, controlled access and live security are provided. The underground parking offers convenient parking spaces and garages.
The architecture of the complex is in harmony with the surrounding environment, and the facades are filled with natural materials such as wood and stone, providing a modern look, excellent insulation and durability.
Quality and sustainability in construction:
monolithic reinforced concrete structure;
partition walls made of Wienerberger ceramic bricks;
10 cm EPS thermal insulation and facade with natural stone and clinker;
XPS thermal insulation on the roof;
luxurious common areas with granite and Kone elevators for 8 people;
landscaping with an automatic irrigation system;
automatic garage door with remote control. We look forward to your inquiry.
If you would like to arrange a viewing of a property that interests you, or to visit one of our offices, please contact us. To arrange a day and time for a meeting or viewing, you can call the phone number listed in the ad or send an inquiry via e-mail. Our consultant will assist you with all the necessary details and will arrange a time convenient for you.
Are you looking for the right property for you?
Do not hesitate to contact us and tell us about your needs and preferences. Our team will conduct a thorough market research to offer you properties that exactly meet your criteria. We have an exceptional portfolio of high-quality and exclusive homes that are available only to our clients. To be the first to receive information about them – contact us.
Additional services
As a valued client of our company, you will have the privilege of using the services of our experienced legal team completely free of charge. In addition, we offer comprehensive solutions, including property insurance, free financial consulting, as well as favorable financing conditions. Our services also extend to the field of resale, rental and property management. We provide high-quality renovation and furniture through specialized companies that are part of our corporate group and are our long-standing professional partners.
Viewings
We are ready to organize a viewing of this property at a time convenient for you. Please contact the responsible estate agent and inform them when you would like to have viewings arranged. We can also help you with flight tickets and hotel booking, as well as with travel insurance.
Property reservation
You can reserve this property with a non-refundable deposit of 2,000 Euro, payable by credit card or by bank transfer to our company bank account. After receiving the deposit the property will be marked as reserved, no further viewings will be carried out with other potential buyers, and we will start the preparation of the necessary documents for completion of the deal. Please contact the responsible estate agent for more information about the purchase procedure and the payment methods.
After sale services
We are a reputable company with many years of experience in the real estate business. Thus, we will be with you not only during the purchase process, but also after the deal is completed, providing you with a wide range of additional services tailored to your requirements and needs, so that you can fully enjoy your property in Bulgaria. The after sale services we offer include property insurance, construction and repair works, furniture, accounting and legal assistance, renewal of contracts for electricity, water, telephone and many more.
Location on the map
Situated in the prestigious neighborhood, this complex combines an excellent location, high-quality materials and modern technologies, making it an ideal choice for people seeking a comfortable life in a well-organized urban environment with close proximity to nature. Thanks to the convenient access to Bulgaria Blvd. and the Ring Road, you can quickly reach the city center, while the proximity to Vitosha Park provides fresh air and beautiful views.
Property parameters
The apartment is located on the 1st floor, facing north/east and has a total area of 76.34 sq m. It consists of an entrance hall, bathroom with toilet, bedroom, living room with kitchen, loggia-type terrace, with access from the living room and bedroom.
Available in the following degree of completion according to BDS:
floors with Copersound P-TEX soundproofing;
Legrand Valena Life switches and sockets;
PVC windows with K?mmerling triple glazing;
gas heating with Bosch boiler and wiring for air conditioners;
Solid entrance door, model iDoor 20-23;
terrace with frost-resistant granite tiles. *Each apartment in the complex has a Smart Home ready system, allowing control of lighting, heating, air conditioning and security via a mobile device.
Additionally, an underground parking space can be purchased with the property at a price of 68,454 BGN (35,000 EUR) excluding VAT.
The indicated price is excluding VAT.
About the complex
The complex, consisting of 8 buildings with a total of 204 apartments and studios, is designed with functional layouts and panoramic views of the city and the mountains. The green spaces between the buildings are designed with gardens, walking paths, recreation areas and playgrounds. For additional comfort, a fitness center, restaurant, controlled access and live security are provided. The underground parking offers convenient parking spaces and garages.
The architecture of the complex is in harmony with the surrounding environment, and the facades are filled with natural materials such as wood and stone, providing a modern look, excellent insulation and durability.
Quality and sustainability in construction:
monolithic reinforced concrete structure;
partition walls made of Wienerberger ceramic bricks;
10 cm EPS thermal insulation and facade with natural stone and clinker;
XPS thermal insulation on the roof;
luxurious common areas with granite and Kone elevators for 8 people;
landscaping with an automatic irrigation system;
automatic garage door with remote control. We look forward to your inquiry.
If you would like to arrange a viewing of a property that interests you, or to visit one of our offices, please contact us. To arrange a day and time for a meeting or viewing, you can call the phone number listed in the ad or send an inquiry via e-mail. Our consultant will assist you with all the necessary details and will arrange a time convenient for you.
Are you looking for the right property for you?
Do not hesitate to contact us and tell us about your needs and preferences. Our team will conduct a thorough market research to offer you properties that exactly meet your criteria. We have an exceptional portfolio of high-quality and exclusive homes that are available only to our clients. To be the first to receive information about them – contact us.
Additional services
As a valued client of our company, you will have the privilege of using the services of our experienced legal team completely free of charge. In addition, we offer comprehensive solutions, including property insurance, free financial consulting, as well as favorable financing conditions. Our services also extend to the field of resale, rental and property management. We provide high-quality renovation and furniture through specialized companies that are part of our corporate group and are our long-standing professional partners.
Viewings
We are ready to organize a viewing of this property at a time convenient for you. Please contact the responsible estate agent and inform them when you would like to have viewings arranged. We can also help you with flight tickets and hotel booking, as well as with travel insurance.
Property reservation
You can reserve this property with a non-refundable deposit of 2,000 Euro, payable by credit card or by bank transfer to our company bank account. After receiving the deposit the property will be marked as reserved, no further viewings will be carried out with other potential buyers, and we will start the preparation of the necessary documents for completion of the deal. Please contact the responsible estate agent for more information about the purchase procedure and the payment methods.
After sale services
We are a reputable company with many years of experience in the real estate business. Thus, we will be with you not only during the purchase process, but also after the deal is completed, providing you with a wide range of additional services tailored to your requirements and needs, so that you can fully enjoy your property in Bulgaria. The after sale services we offer include property insurance, construction and repair works, furniture, accounting and legal assistance, renewal of contracts for electricity, water, telephone and many more.
Situated in the prestigious neighborhood, this complex combines an excellent location, high-quality materials and modern technologies, making it an ideal choice for people seeking a comfortable life in a well-organized urban environment with close proximity to nature. Thanks to the convenient access to Bulgaria Blvd. and the Ring Road, you can quickly reach the city center, while the proximity to Vitosha Park provides fresh air and beautiful views.
Property parameters
The apartment is located on the 1st floor, facing north/east and has a total area of 76.34 sq m. It consists of an entrance hall, bathroom with toilet, bedroom, living room with kitchen, loggia-type terrace, with access from the living room and bedroom.
Available in the following degree of completion according to BDS:
floors with Copersound P-TEX soundproofing;
Legrand Valena Life switches and sockets;
PVC windows with K?mmerling triple glazing;
gas heating with Bosch boiler and wiring for air conditioners;
Solid entrance door, model iDoor 20-23;
terrace with frost-resistant granite tiles. *Each apartment in the complex has a Smart Home ready system, allowing control of lighting, heating, air conditioning and security via a mobile device.
Additionally, an underground parking space can be purchased with the property at a price of 68,454 BGN (35,000 EUR) excluding VAT.
The indicated price is excluding VAT.
About the complex
The complex, consisting of 8 buildings with a total of 204 apartments and studios, is designed with functional layouts and panoramic views of the city and the mountains. The green spaces between the buildings are designed with gardens, walking paths, recreation areas and playgrounds. For additional comfort, a fitness center, restaurant, controlled access and live security are provided. The underground parking offers convenient parking spaces and garages.
The architecture of the complex is in harmony with the surrounding environment, and the facades are filled with natural materials such as wood and stone, providing a modern look, excellent insulation and durability.
Quality and sustainability in construction:
monolithic reinforced concrete structure;
partition walls made of Wienerberger ceramic bricks;
10 cm EPS thermal insulation and facade with natural stone and clinker;
XPS thermal insulation on the roof;
luxurious common areas with granite and Kone elevators for 8 people;
landscaping with an automatic irrigation system;
automatic garage door with remote control. We look forward to your inquiry.
If you would like to arrange a viewing of a property that interests you, or to visit one of our offices, please contact us. To arrange a day and time for a meeting or viewing, you can call the phone number listed in the ad or send an inquiry via e-mail. Our consultant will assist you with all the necessary details and will arrange a time convenient for you.
Are you looking for the right property for you?
Do not hesitate to contact us and tell us about your needs and preferences. Our team will conduct a thorough market research to offer you properties that exactly meet your criteria. We have an exceptional portfolio of high-quality and exclusive homes that are available only to our clients. To be the first to receive information about them – contact us.
Additional services
As a valued client of our company, you will have the privilege of using the services of our experienced legal team completely free of charge. In addition, we offer comprehensive solutions, including property insurance, free financial consulting, as well as favorable financing conditions. Our services also extend to the field of resale, rental and property management. We provide high-quality renovation and furniture through specialized companies that are part of our corporate group and are our long-standing professional partners.
Viewings
We are ready to organize a viewing of this property at a time convenient for you. Please contact the responsible estate agent and inform them when you would like to have viewings arranged. We can also help you with flight tickets and hotel booking, as well as with travel insurance.
Property reservation
You can reserve this property with a non-refundable deposit of 2,000 Euro, payable by credit card or by bank transfer to our company bank account. After receiving the deposit the property will be marked as reserved, no further viewings will be carried out with other potential buyers, and we will start the preparation of the necessary documents for completion of the deal. Please contact the responsible estate agent for more information about the purchase procedure and the payment methods.
After sale services
We are a reputable company with many years of experience in the real estate business. Thus, we will be with you not only during the purchase process, but also after the deal is completed, providing you with a wide range of additional services tailored to your requirements and needs, so that you can fully enjoy your property in Bulgaria. The after sale services we offer include property insurance, construction and repair works, furniture, accounting and legal assistance, renewal of contracts for electricity, water, telephone and many more.
MANDATE
SALE
PROJECT
Designer apartment with parking space in a luxury building OKINAWA
Malinova Dolina / Sofia / Sofia / Bulgaria map
Building/complex class: High standard
Area: 76.54 m 2
Price: 244 900 € /// 3 200 €/m 2
Apartments in Stage 1 of a modern complex near "Simeonovsko Shose"
Malinova Dolina / Sofia / Sofia / Bulgaria map
Property prices: 114 096 - 247 180 €
Prices per m²: 1 828 - 2 296 €/m 2
SALE
PROJECT
One-bedroom apartment on the 18th floor, with mountain and city views, in Smart Tower
Krustova Vada / Sofia / Sofia / Bulgaria map
Area: 88.62 m 2
Price: 350 000 € /// 3 949 €/m 2
Select this option and we will notify you by email if there are any changes to the offer status, for example:
• Price change;
• The property entered into a promotional offer;
• The property is reserved or sold;
• Other news related to the property.
• The property is removed from sale;
You can easily unsubscribe from notifications whenever you want.• Changes to the terms of the offer;
• Change in the amount of the investment;
• The subject of the investment has been fully realized;
• The offer has expired.
You can easily unsubscribe if you decide in the future that you no longer want to follow this offer.



...As a proven specialist, Stonehard PREMIER works on the market positioning and sales of numerous new construction projects, the implementation of which has been entrusted to us by leading entrepreneurial companies in Bulgaria and abroad...