Реф. Номер: SOF-129165
Местоположение: Бояна / София карта
Тип на сграда/комплекс: Жилищен
Клас на сградата/комплекса: Висок стандарт
Площи на жилищата: 76 м2
Типове имоти в сградата/комплекса: Двустайни апартаменти
Реф. Номер: SOF-129165
Местоположение: Бояна / София
Тип на сграда/комплекс: Жилищен
Клас на сградата/комплекса: Висок стандарт
Площи на жилищата: 76 м2
Типове имоти в сградата/комплекса: Двустайни апартаменти
Разположен в престижния квартал, този комплекс съчетава отлична локация, висококачествени материали и модерни технологии, което го прави идеален избор за хора, търсещи комфортен живот в уредена градска среда с близост до природата. Благодарение на удобния достъп до бул. "България" и Околовръстния път, можете бързо да достигнете центъра на града, докато близостта до парк "Витоша" осигурява чист въздух и красиви гледки.
Параметри на имота
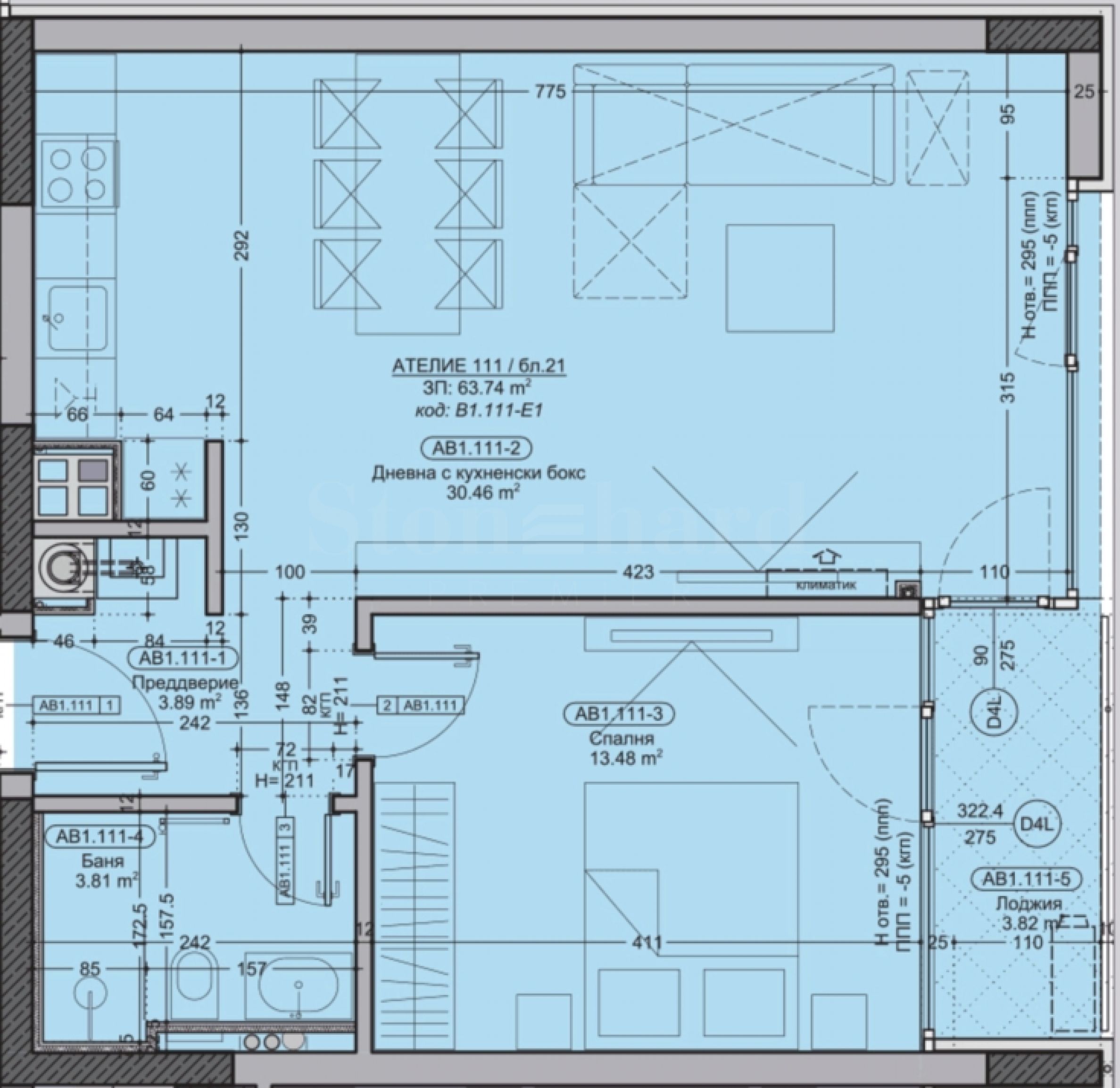
Апартаментът се намира на 1-ви етаж, с изложение север/изток и има обща площ 76.34 кв.м. Състои се от антре, баня с тоалетна, спалня, всекидневна с кухня, тераса тип лоджия, с излаз от дневната и спалнята.
Предлага се в степен на завършеност по БДС:
подове с шумоизолация Copersound P-TEX;
ключове и контакти Legrand Valena Life;
PVC дограма с троен стъклопакет Kömmerling;
отопление на газ с котел Bosch и окабеляване за климатици;
входна врата Solid, модел iDoor 20-23;
тераса с мразоустойчив гранитогрес. *Всеки апартамент в комплекса разполага със система Smart Home ready, позволяваща управление на осветлението, отоплението, климатизацията и сигурността чрез мобилно устройство.
Допълнително към имота може да се закупи подземно паркомясто на цена 68,454 лв. (35 000 евро) без ДДС.
Посочената цена е без ДДС.
За комплекса
Комплексът, състоящ се от 8 сгради с общо 204 апартамента и ателиета, е проектиран с функционални разпределения и панорамни гледки към града и планината. Зелените пространства между сградите са оформени с градини, алеи за разходки, зони за отдих и детски площадки. За допълнителен комфорт са предвидени фитнес, ресторант, контролиран достъп и жива охрана. Подземният паркинг предлага удобни паркоместа и гаражи.
Архитектурата на комплекса е в хармония със заобикалящата среда, а фасадите са изпълнени с естествени материали като дърво и камък, осигурявайки модерен облик, отлична изолация и дълготрайност.
Качество и устойчивост в строителството:
монолитна стоманобетонна конструкция;
преградни стени от керамични тухли Wienerberger;
10 см топлоизолация EPS и фасада с естествен камък и клинкер;
XPS топлоизолация на покрива;
луксозни общи части с гранит и асансьори Kone за 8 души;
озеленяване с автоматична поливна система;
автоматична гаражна врата с дистанционно управление. Очакваме Вашето запитване
Ако желаете да организирате оглед на имот, който Ви интересува, или да посетите някой от нашите офиси, моля свържете се с нас. За да уговорите ден и час за среща или оглед, можете да се обадите на посочения в обявата телефон или да изпратите запитване чрез електронната поща. Нашият консултант ще Ви съдейства с всички необходими подробности и ще уговори удобно за Вас време.
Търсите подходящия за Вас имот?
Не се колебайте да се свържете с нас и да ни разкажете за Вашите нужди и предпочитания. Нашият екип ще проведе задълбочено проучване на пазара, за да Ви предложи имоти, които точно отговарят на Вашите критерии. Разполагаме с изключително портфолио от висококачествени и ексклузивни жилища, които са достъпни само за нашите клиенти. За да сте първите, които ще получите информация за тях – свържете се с нас.
Допълнителни услуги
Като ценен клиент на нашата компания, Вие ще имате привилегията да ползвате напълно безплатно услугите на нашия опитен юридически екип. В допълнение, предлагаме комплексни решения, включващи имуществена застраховка, безплатна финансова консултация, както и изгодни условия за финансиране. Нашите услуги се разпростират и в сферата на препродажбата, отдаването под наем и управлението на имоти. Осигуряваме висококачествени ремонтни дейности и обзавеждане чрез специализирани фирми, които са част от нашата корпоративна група и са наши дългогодишни професионални партньори.
Местоположение на картата
Разположен в престижния квартал, този комплекс съчетава отлична локация, висококачествени материали и модерни технологии, което го прави идеален избор за хора, търсещи комфортен живот в уредена градска среда с близост до природата. Благодарение на удобния достъп до бул. "България" и Околовръстния път, можете бързо да достигнете центъра на града, докато близостта до парк "Витоша" осигурява чист въздух и красиви гледки.
Параметри на имота
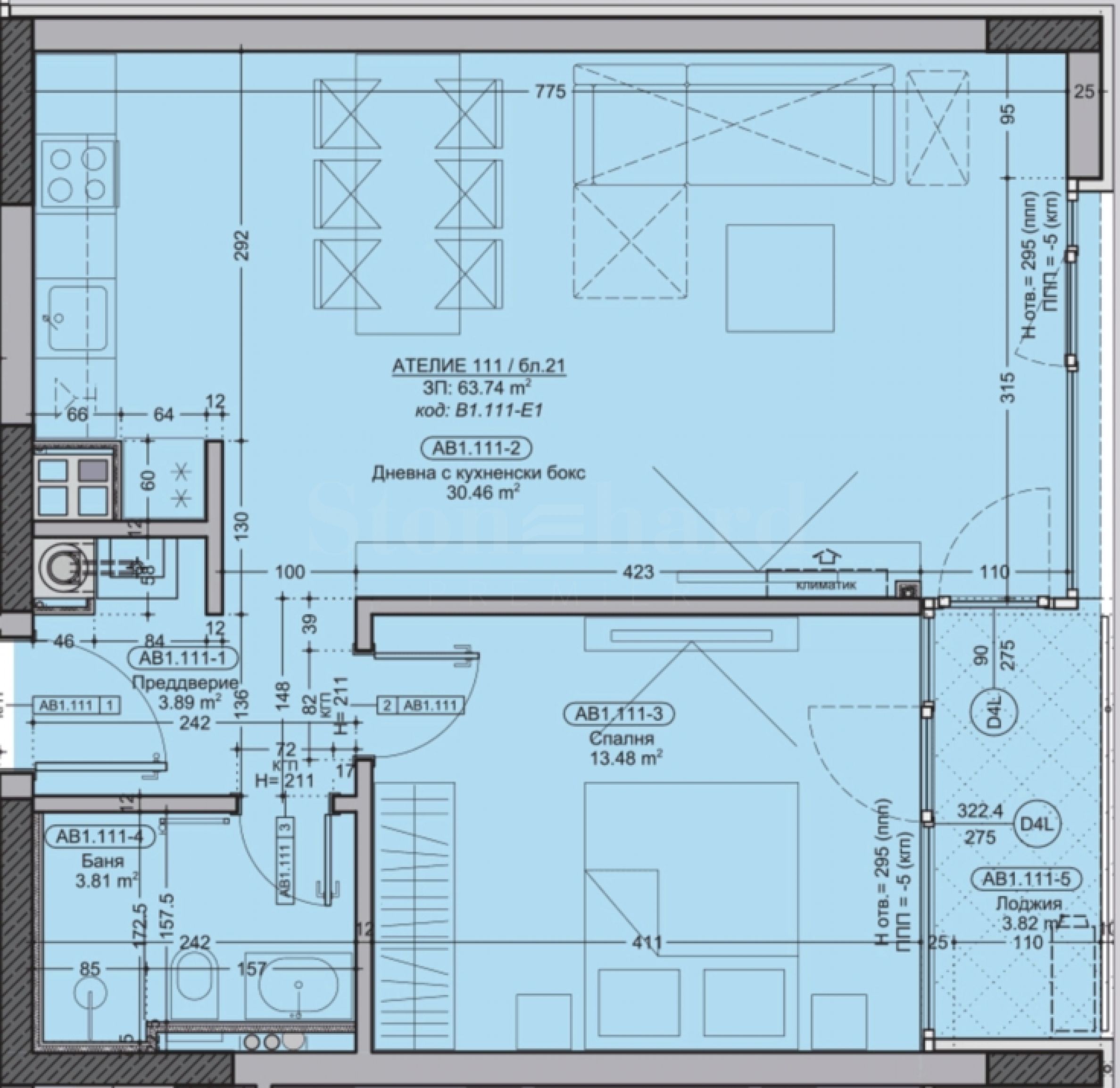
Апартаментът се намира на 1-ви етаж, с изложение север/изток и има обща площ 76.34 кв.м. Състои се от антре, баня с тоалетна, спалня, всекидневна с кухня, тераса тип лоджия, с излаз от дневната и спалнята.
Предлага се в степен на завършеност по БДС:
подове с шумоизолация Copersound P-TEX;
ключове и контакти Legrand Valena Life;
PVC дограма с троен стъклопакет Kömmerling;
отопление на газ с котел Bosch и окабеляване за климатици;
входна врата Solid, модел iDoor 20-23;
тераса с мразоустойчив гранитогрес. *Всеки апартамент в комплекса разполага със система Smart Home ready, позволяваща управление на осветлението, отоплението, климатизацията и сигурността чрез мобилно устройство.
Допълнително към имота може да се закупи подземно паркомясто на цена 68,454 лв. (35 000 евро) без ДДС.
Посочената цена е без ДДС.
За комплекса
Комплексът, състоящ се от 8 сгради с общо 204 апартамента и ателиета, е проектиран с функционални разпределения и панорамни гледки към града и планината. Зелените пространства между сградите са оформени с градини, алеи за разходки, зони за отдих и детски площадки. За допълнителен комфорт са предвидени фитнес, ресторант, контролиран достъп и жива охрана. Подземният паркинг предлага удобни паркоместа и гаражи.
Архитектурата на комплекса е в хармония със заобикалящата среда, а фасадите са изпълнени с естествени материали като дърво и камък, осигурявайки модерен облик, отлична изолация и дълготрайност.
Качество и устойчивост в строителството:
монолитна стоманобетонна конструкция;
преградни стени от керамични тухли Wienerberger;
10 см топлоизолация EPS и фасада с естествен камък и клинкер;
XPS топлоизолация на покрива;
луксозни общи части с гранит и асансьори Kone за 8 души;
озеленяване с автоматична поливна система;
автоматична гаражна врата с дистанционно управление. Очакваме Вашето запитване
Ако желаете да организирате оглед на имот, който Ви интересува, или да посетите някой от нашите офиси, моля свържете се с нас. За да уговорите ден и час за среща или оглед, можете да се обадите на посочения в обявата телефон или да изпратите запитване чрез електронната поща. Нашият консултант ще Ви съдейства с всички необходими подробности и ще уговори удобно за Вас време.
Търсите подходящия за Вас имот?
Не се колебайте да се свържете с нас и да ни разкажете за Вашите нужди и предпочитания. Нашият екип ще проведе задълбочено проучване на пазара, за да Ви предложи имоти, които точно отговарят на Вашите критерии. Разполагаме с изключително портфолио от висококачествени и ексклузивни жилища, които са достъпни само за нашите клиенти. За да сте първите, които ще получите информация за тях – свържете се с нас.
Допълнителни услуги
Като ценен клиент на нашата компания, Вие ще имате привилегията да ползвате напълно безплатно услугите на нашия опитен юридически екип. В допълнение, предлагаме комплексни решения, включващи имуществена застраховка, безплатна финансова консултация, както и изгодни условия за финансиране. Нашите услуги се разпростират и в сферата на препродажбата, отдаването под наем и управлението на имоти. Осигуряваме висококачествени ремонтни дейности и обзавеждане чрез специализирани фирми, които са част от нашата корпоративна група и са наши дългогодишни професионални партньори.
Разположен в престижния квартал, този комплекс съчетава отлична локация, висококачествени материали и модерни технологии, което го прави идеален избор за хора, търсещи комфортен живот в уредена градска среда с близост до природата. Благодарение на удобния достъп до бул. "България" и Околовръстния път, можете бързо да достигнете центъра на града, докато близостта до парк "Витоша" осигурява чист въздух и красиви гледки.
Параметри на имота
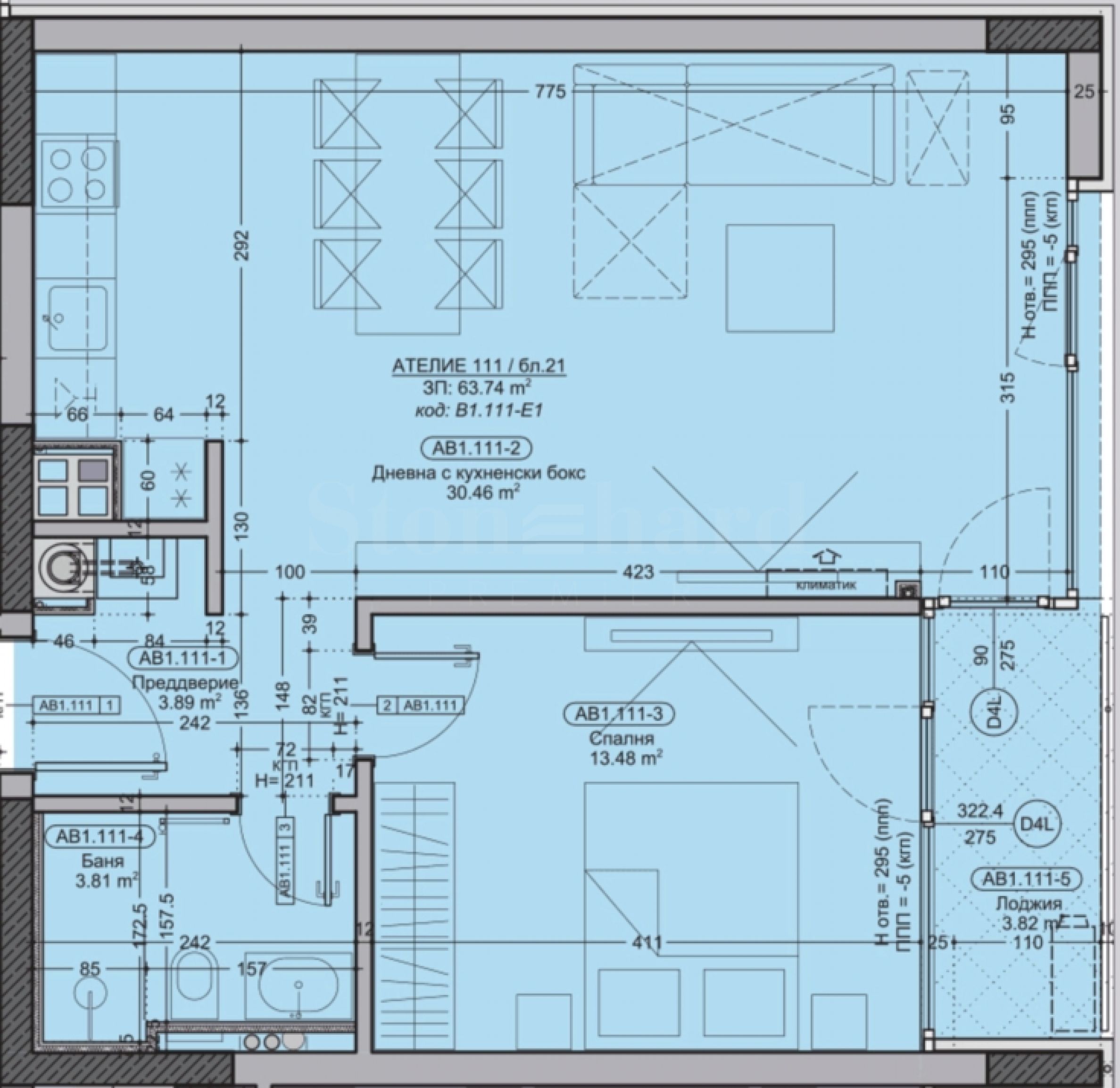
Апартаментът се намира на 1-ви етаж, с изложение север/изток и има обща площ 76.34 кв.м. Състои се от антре, баня с тоалетна, спалня, всекидневна с кухня, тераса тип лоджия, с излаз от дневната и спалнята.
Предлага се в степен на завършеност по БДС:
подове с шумоизолация Copersound P-TEX;
ключове и контакти Legrand Valena Life;
PVC дограма с троен стъклопакет Kömmerling;
отопление на газ с котел Bosch и окабеляване за климатици;
входна врата Solid, модел iDoor 20-23;
тераса с мразоустойчив гранитогрес. *Всеки апартамент в комплекса разполага със система Smart Home ready, позволяваща управление на осветлението, отоплението, климатизацията и сигурността чрез мобилно устройство.
Допълнително към имота може да се закупи подземно паркомясто на цена 68,454 лв. (35 000 евро) без ДДС.
Посочената цена е без ДДС.
За комплекса
Комплексът, състоящ се от 8 сгради с общо 204 апартамента и ателиета, е проектиран с функционални разпределения и панорамни гледки към града и планината. Зелените пространства между сградите са оформени с градини, алеи за разходки, зони за отдих и детски площадки. За допълнителен комфорт са предвидени фитнес, ресторант, контролиран достъп и жива охрана. Подземният паркинг предлага удобни паркоместа и гаражи.
Архитектурата на комплекса е в хармония със заобикалящата среда, а фасадите са изпълнени с естествени материали като дърво и камък, осигурявайки модерен облик, отлична изолация и дълготрайност.
Качество и устойчивост в строителството:
монолитна стоманобетонна конструкция;
преградни стени от керамични тухли Wienerberger;
10 см топлоизолация EPS и фасада с естествен камък и клинкер;
XPS топлоизолация на покрива;
луксозни общи части с гранит и асансьори Kone за 8 души;
озеленяване с автоматична поливна система;
автоматична гаражна врата с дистанционно управление. Очакваме Вашето запитване
Ако желаете да организирате оглед на имот, който Ви интересува, или да посетите някой от нашите офиси, моля свържете се с нас. За да уговорите ден и час за среща или оглед, можете да се обадите на посочения в обявата телефон или да изпратите запитване чрез електронната поща. Нашият консултант ще Ви съдейства с всички необходими подробности и ще уговори удобно за Вас време.
Търсите подходящия за Вас имот?
Не се колебайте да се свържете с нас и да ни разкажете за Вашите нужди и предпочитания. Нашият екип ще проведе задълбочено проучване на пазара, за да Ви предложи имоти, които точно отговарят на Вашите критерии. Разполагаме с изключително портфолио от висококачествени и ексклузивни жилища, които са достъпни само за нашите клиенти. За да сте първите, които ще получите информация за тях – свържете се с нас.
Допълнителни услуги
Като ценен клиент на нашата компания, Вие ще имате привилегията да ползвате напълно безплатно услугите на нашия опитен юридически екип. В допълнение, предлагаме комплексни решения, включващи имуществена застраховка, безплатна финансова консултация, както и изгодни условия за финансиране. Нашите услуги се разпростират и в сферата на препродажбата, отдаването под наем и управлението на имоти. Осигуряваме висококачествени ремонтни дейности и обзавеждане чрез специализирани фирми, които са част от нашата корпоративна група и са наши дългогодишни професионални партньори.
Апартаменти в Етап 1 на модерен комплекс близо до "Симеоновско шосе"
Малинова долина / София / София / България карта
Завършване: Март, 2028 г.
Цени на имотите: 114 096 - 247 180 €
Цени на м²: 1 828 - 2 296 €/м2
ПРОДАЖБА
ПРОЕКТ
Двустаен апартамент на 18-и етаж, с панорама към планината и града, в Smart Tower
Кръстова вада / София / София / България карта
Площ: 88.62 м2
Цена: 350 000 € /// 3 949 €/м2
Апартаменти до ул. "Проф. Крикор Азарян" в кв. "Малинова долина"
Малинова долина / София / София / България карта
Завършване: Октомври, 2026 г.
Цени на имотите: 187 575 - 396 363 €
Цени на м²: 2 330 - 3 881 €/м2
Изберете тази опция и ще Ви уведомяваме по имейла при настъпили промени по статуса на офертата, например:
• Промяна на цената;
• Имотът влезе в промоционално предложение;
• Имотът бъде резервран или продаден;
• Други новости, свързани с имота.
• Имотът бъде свален от продажба;
Може да се отпишете от нотификациите лесно, когато пожелаете.• Промени по условията на офертата;
• Промяна в сумата на инвестицията;
• Предметът на инвестицията е изцяло реализиран;
• Валидността на офертата е изтекла.
Може лесно да се отпишете, ако в бъдеще решите, че повече не желаете да следите тази оферта.



...В качеството си на доказан спецалист Stonehard PREMIER работи по пазарното позициониране и продажбите на множество проекти ново строителство, чиято реализация ни е поверена от водещи предприемачески компании в България и чужбина...