Ref. Number: SOF-127971 / 4031
Location: Krasna polyana 2 / Sofia map
Building/complex type: Residential
Housing areas: 86 m 2 - 135 m 2
Number of properties in the building/complex: 131
Available for sale: 9 (6%)
Types of properties in the building/complex: 2-bedroom apartments, 3-bedroom apartments
Ref. Number: SOF-127971
Location: Krasna polyana 2 / Sofia
Building/complex type: Жилищен
Building/complex class:
Housing areas: 86 m 2 - 135 m 2
Number of properties in the building/complex: 131
Available for sale: 9 (6%)
Types of properties in the building/complex: 2-bedroom apartments, 3-bedroom apartments
No commission from the buyer!
The building is at the "rough construction" stage, with planned completion in June 2026.
It is located in the southwestern part of Sofia, in optimal proximity to the new metro station "Ovcha Kupel", which facilitates access to some major higher education institutions such as NBU and Sofia University.
Near the building there are various supermarket chains, gyms, Nadezhda Hospital, "Rositsa" market, schools and kindergartens - PG in 123 "Stefan Stambolov" Secondary School, 51 SDY, DG №126 Tintyava, PG in 136 "Lyuben Karavelov" Primary School and PG 147. Also located near the area are Septemvri Stadium and Slavia, Western Park, St. Peter and Paul Park, "Khan Asparuh" equestrian center, Krasna Polyana karting, etc.
The neighborhood has a well-developed transport infrastructure and is served by all types of public transport: metro station, trams 4, 11, 22 and buses 11, 60 and 83.
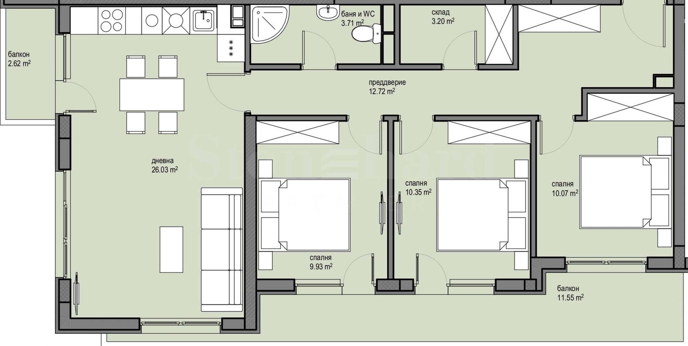
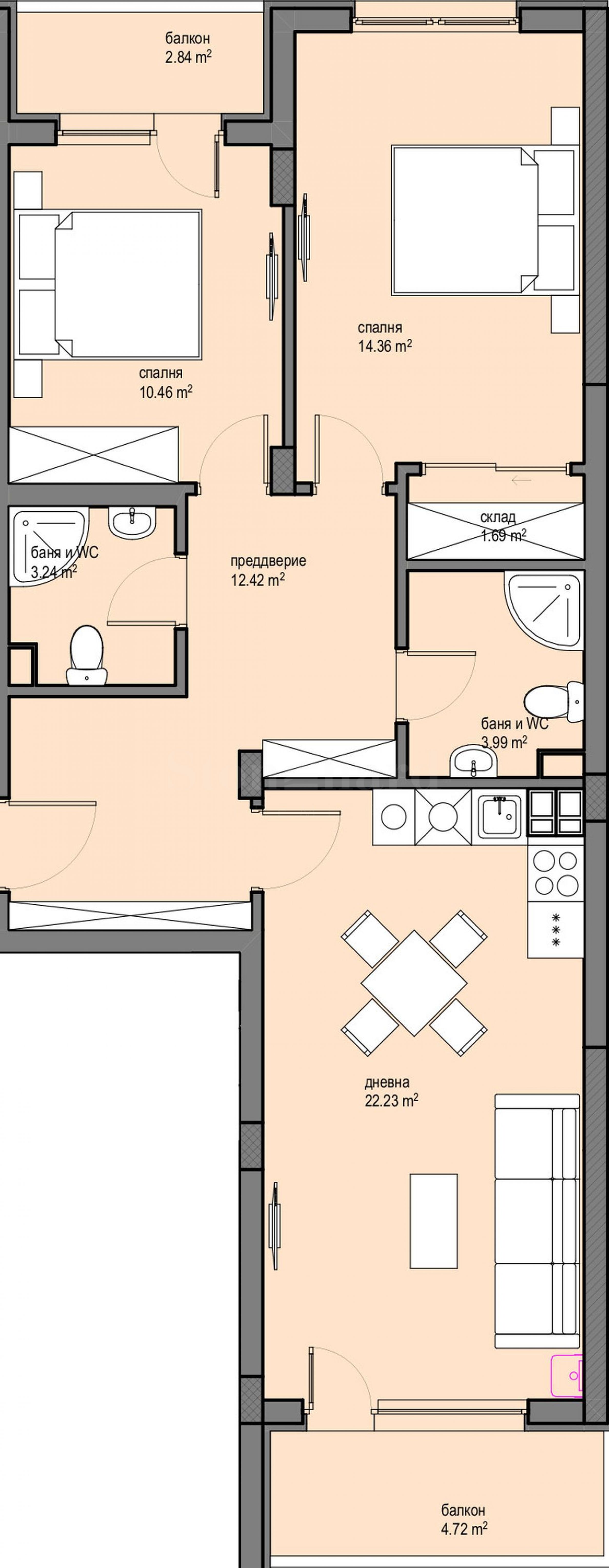
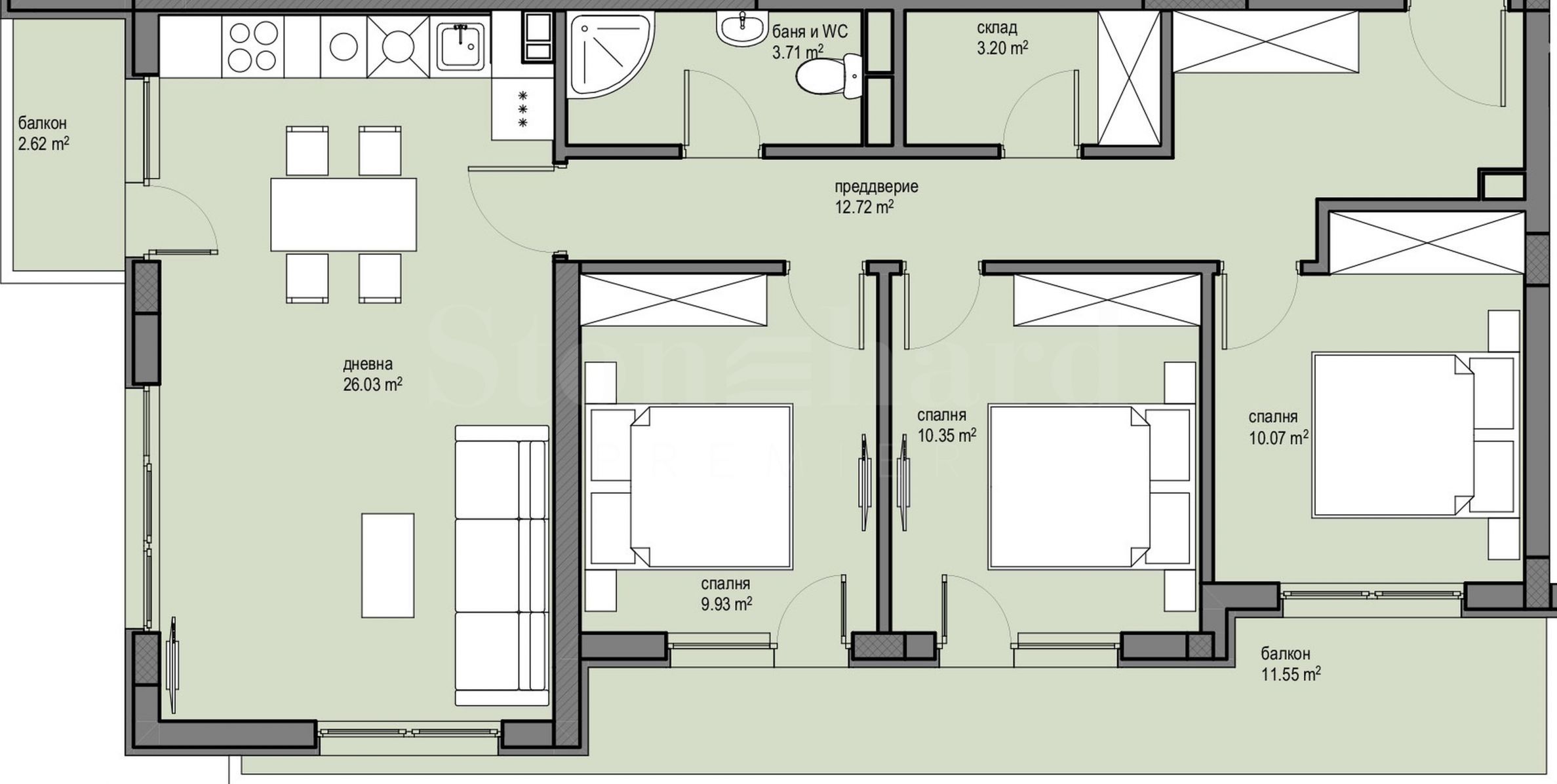
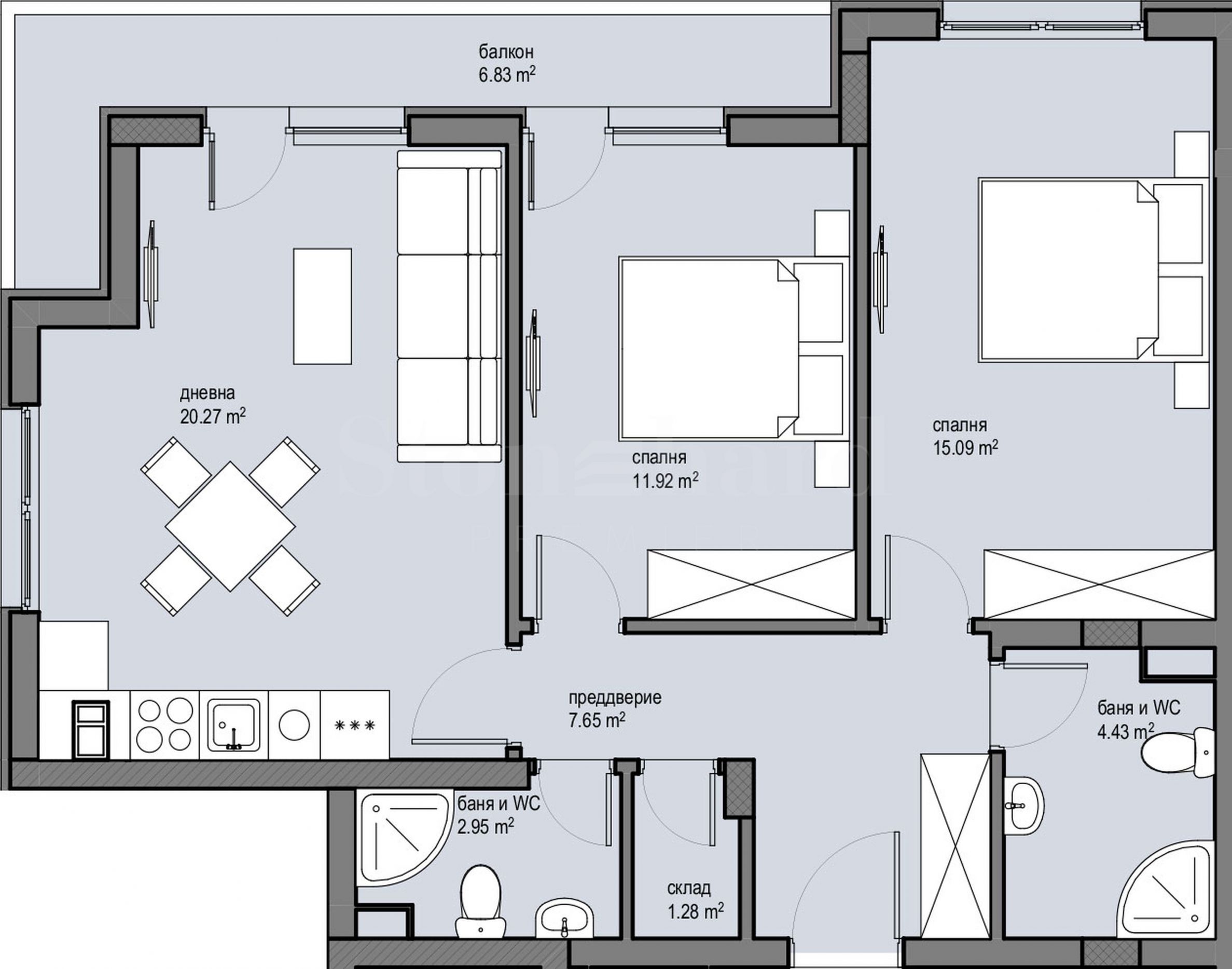
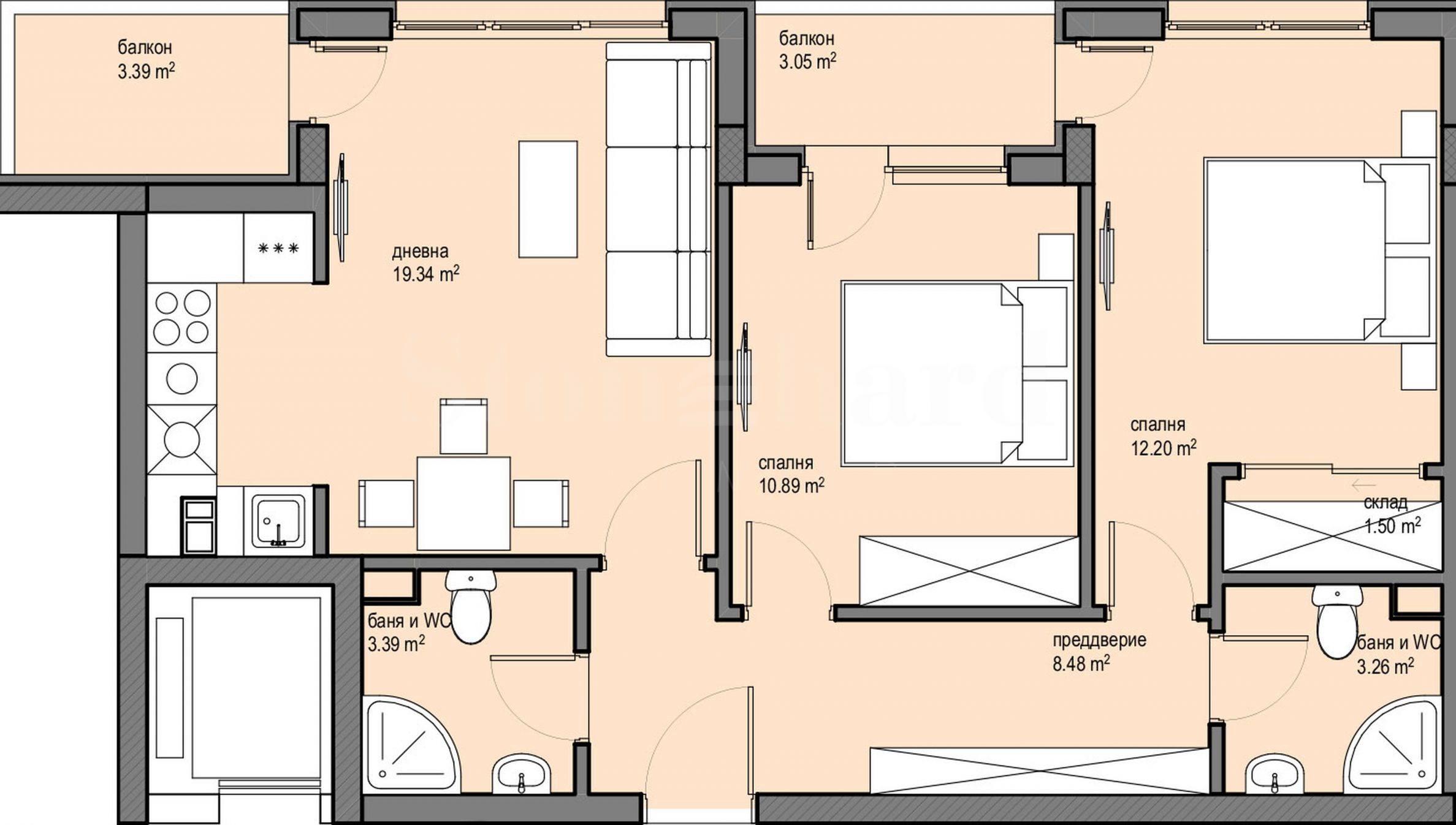
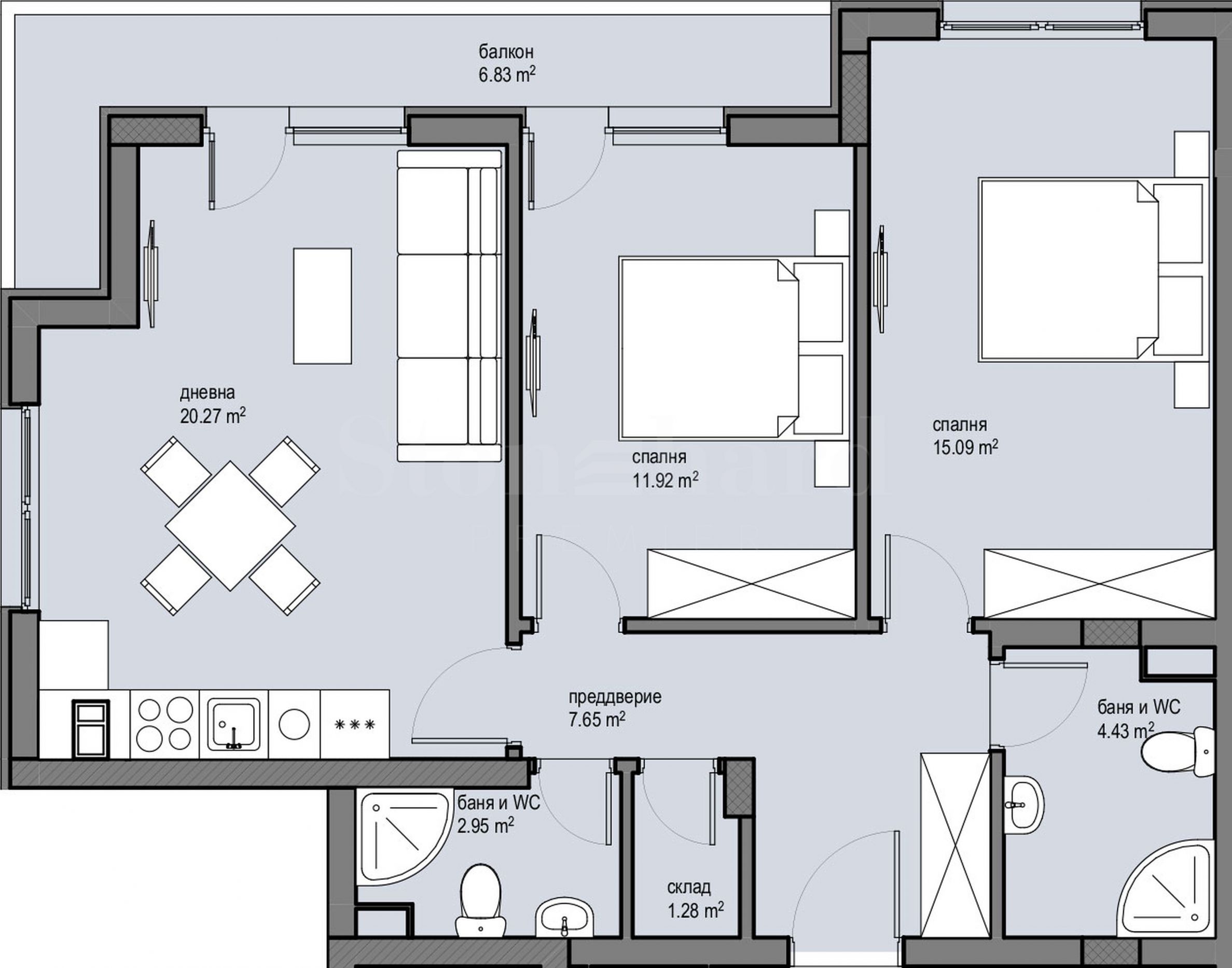
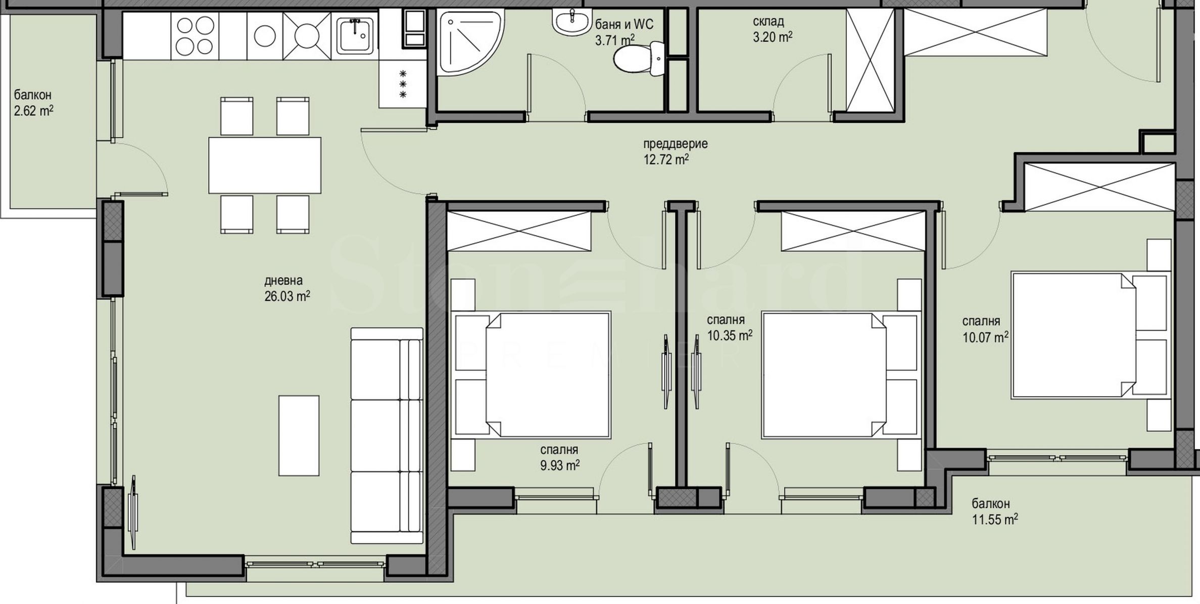
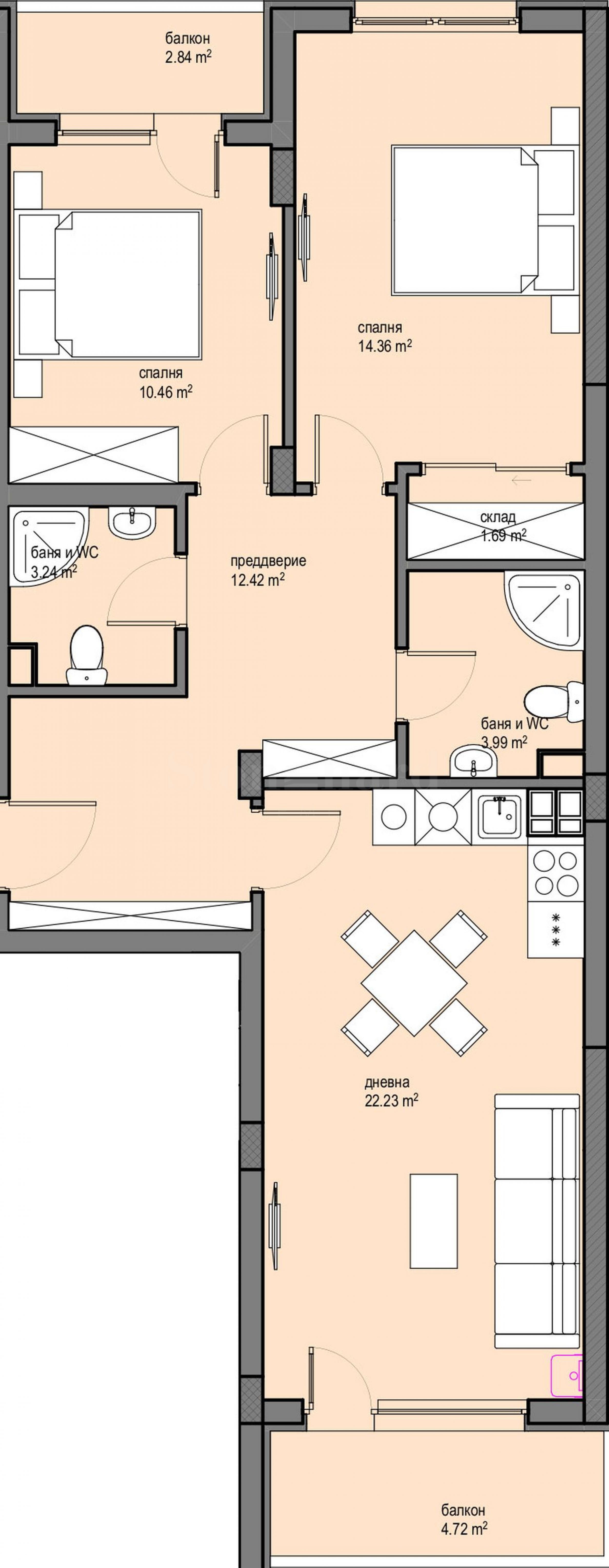
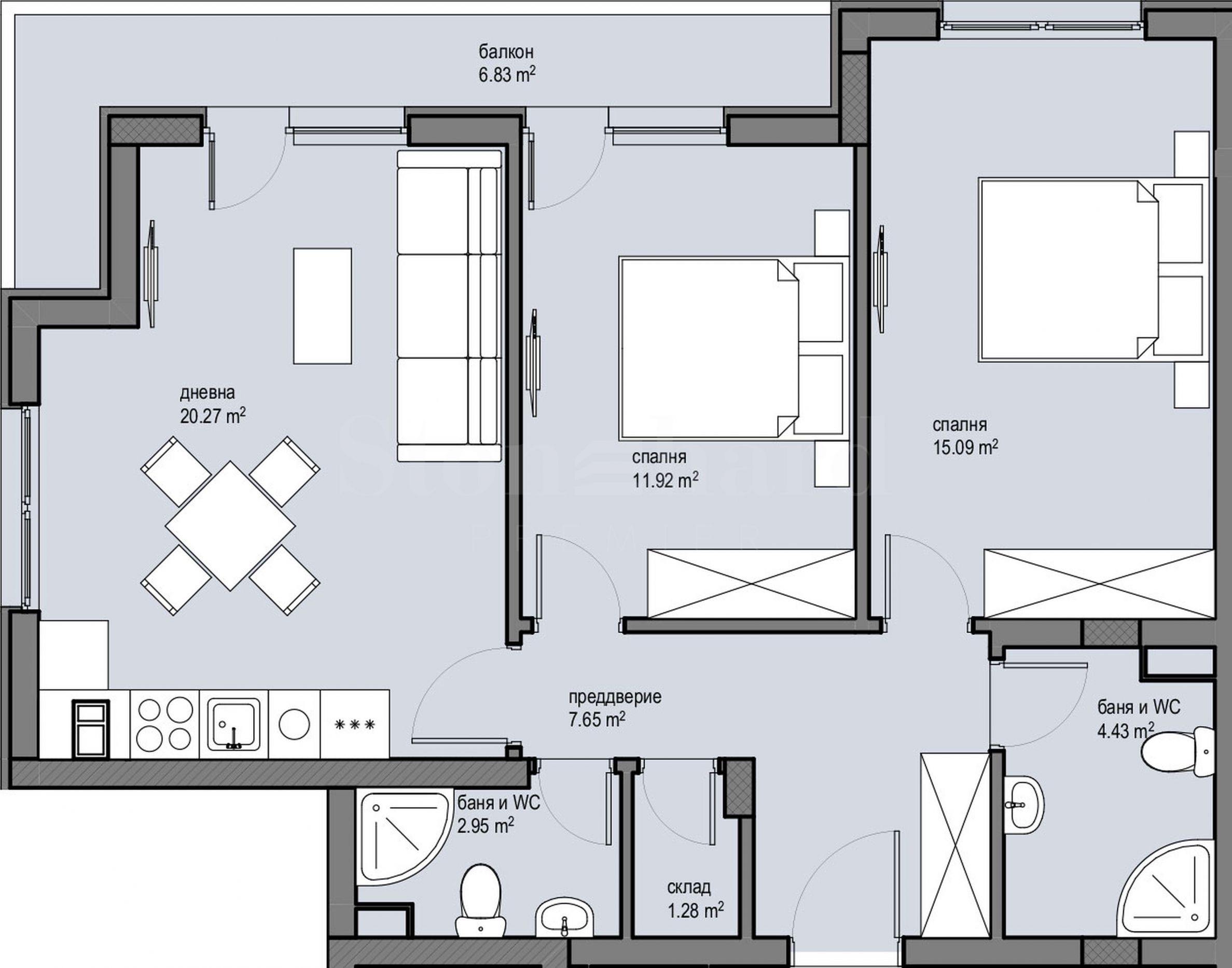
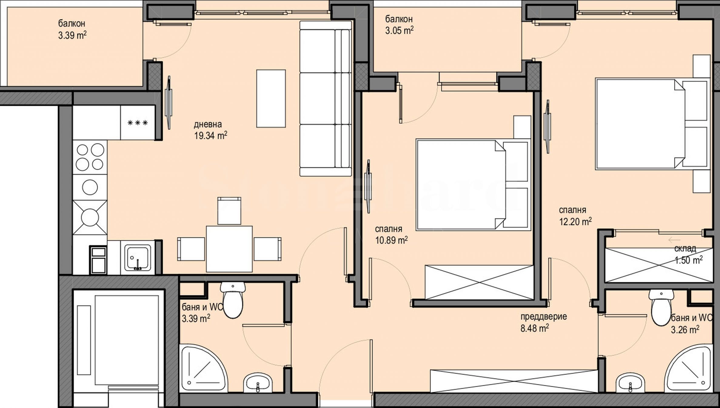
The 8-story building with 3 entrances will have an attractive clinker facade, offering a total of 131 apartments, with the available homes for sale being a limited number of three- and four-bedroom properties, with functional layouts and spacious rooms.
The apartments are issued in the following degree of completion according to Bulgarian Construction Standards:
PVC windows with six-chamber, German profile with triple glazing, with one low-emission glass;
entrance apartment door - armored, with a high-class secret lock;
heating - gas;
finished walls and ceilings up to gypsum plaster with aluminum corner protectors laid at the edges; ceilings of unheated rooms that border heated rooms, with thermal insulation made of XPS extruded polystyrene foam; in bathrooms, toilets and wet rooms with lime-cement plaster;
cement screed on the floor; terraces with granite tiles;
installed apartment panel, located near the entrance door of the home;
low-current installations – implemented according to the project with a low-current box installed at the entrance door;
wiring for security system in each apartment;
video intercom installation - wiring completed, video intercoms in the apartments and a video intercom panel installed next to the front door;
installed electricity meters. Technical characteristics of the building:
monolithic, reinforced concrete beamless foundation slab construction;
with waterproofing of the building foundations - Kryton international Inc. Krystol Waterstop System;
masonry with WIENERBERGER ceramic bricks;
external enclosing walls - Porotherm 25 cm ceramic bricks and thermal insulation system /expanded polystyrene EPS/;
for internal brick walls - Porotherm ceramic bricks 12 cm, with soundproofing between the apartments;
flat roof with layers laid in detail - vapor barrier, thermal insulation from extruded polystyrene foam - XPS, reinforced screed with a slope, two layers of rolled bitumen waterproofing; without thermal bridges on the structural elements;
common areas - granite tiles or natural stone;
elevators with luxury cabins with automatic doors. We look forward to your inquiry.
If you would like to arrange a viewing of a property that interests you, or to visit one of our offices, please contact us. To arrange a day and time for a meeting or viewing, you can call the phone number listed in the ad or send an inquiry via e-mail. Our consultant will assist you with all the necessary details and will arrange a time convenient for you.
Are you looking for the right property for you?
Do not hesitate to contact us and tell us about your needs and preferences. Our team will conduct a thorough market research to offer you properties that exactly meet your criteria. We have an exceptional portfolio of high-quality and exclusive homes that are available only to our clients. To be the first to receive information about them – contact us.
Additional services
As a valued client of our company, you will have the privilege of using the services of our experienced legal team completely free of charge. In addition, we offer comprehensive solutions, including property insurance, free financial consulting, as well as favorable financing conditions. Our services also extend to the field of resale, rental and property management. We provide high-quality renovation and furniture through specialized companies that are part of our corporate group and are our long-standing professional partners.
Viewings
We are ready to organize a viewing of this property at a time convenient for you. Please contact the responsible estate agent and inform them when you would like to have viewings arranged. We can also help you with flight tickets and hotel booking, as well as with travel insurance.
Property reservation
You can reserve this property with a non-refundable deposit of 2,000 Euro, payable by credit card or by bank transfer to our company bank account. After receiving the deposit the property will be marked as reserved, no further viewings will be carried out with other potential buyers, and we will start the preparation of the necessary documents for completion of the deal. Please contact the responsible estate agent for more information about the purchase procedure and the payment methods.
After sale services
We are a reputable company with many years of experience in the real estate business. Thus, we will be with you not only during the purchase process, but also after the deal is completed, providing you with a wide range of additional services tailored to your requirements and needs, so that you can fully enjoy your property in Bulgaria. The after sale services we offer include property insurance, construction and repair works, furniture, accounting and legal assistance, renewal of contracts for electricity, water, telephone and many more.
Location on the map
No commission from the buyer!
The building is at the "rough construction" stage, with planned completion in June 2026.
It is located in the southwestern part of Sofia, in optimal proximity to the new metro station "Ovcha Kupel", which facilitates access to some major higher education institutions such as NBU and Sofia University.
Near the building there are various supermarket chains, gyms, Nadezhda Hospital, "Rositsa" market, schools and kindergartens - PG in 123 "Stefan Stambolov" Secondary School, 51 SDY, DG №126 Tintyava, PG in 136 "Lyuben Karavelov" Primary School and PG 147. Also located near the area are Septemvri Stadium and Slavia, Western Park, St. Peter and Paul Park, "Khan Asparuh" equestrian center, Krasna Polyana karting, etc.
The neighborhood has a well-developed transport infrastructure and is served by all types of public transport: metro station, trams 4, 11, 22 and buses 11, 60 and 83.
The 8-story building with 3 entrances will have an attractive clinker facade, offering a total of 131 apartments, with the available homes for sale being a limited number of three- and four-bedroom properties, with functional layouts and spacious rooms.
The apartments are issued in the following degree of completion according to Bulgarian Construction Standards:
PVC windows with six-chamber, German profile with triple glazing, with one low-emission glass;
entrance apartment door - armored, with a high-class secret lock;
heating - gas;
finished walls and ceilings up to gypsum plaster with aluminum corner protectors laid at the edges; ceilings of unheated rooms that border heated rooms, with thermal insulation made of XPS extruded polystyrene foam; in bathrooms, toilets and wet rooms with lime-cement plaster;
cement screed on the floor; terraces with granite tiles;
installed apartment panel, located near the entrance door of the home;
low-current installations – implemented according to the project with a low-current box installed at the entrance door;
wiring for security system in each apartment;
video intercom installation - wiring completed, video intercoms in the apartments and a video intercom panel installed next to the front door;
installed electricity meters. Technical characteristics of the building:
monolithic, reinforced concrete beamless foundation slab construction;
with waterproofing of the building foundations - Kryton international Inc. Krystol Waterstop System;
masonry with WIENERBERGER ceramic bricks;
external enclosing walls - Porotherm 25 cm ceramic bricks and thermal insulation system /expanded polystyrene EPS/;
for internal brick walls - Porotherm ceramic bricks 12 cm, with soundproofing between the apartments;
flat roof with layers laid in detail - vapor barrier, thermal insulation from extruded polystyrene foam - XPS, reinforced screed with a slope, two layers of rolled bitumen waterproofing; without thermal bridges on the structural elements;
common areas - granite tiles or natural stone;
elevators with luxury cabins with automatic doors. We look forward to your inquiry.
If you would like to arrange a viewing of a property that interests you, or to visit one of our offices, please contact us. To arrange a day and time for a meeting or viewing, you can call the phone number listed in the ad or send an inquiry via e-mail. Our consultant will assist you with all the necessary details and will arrange a time convenient for you.
Are you looking for the right property for you?
Do not hesitate to contact us and tell us about your needs and preferences. Our team will conduct a thorough market research to offer you properties that exactly meet your criteria. We have an exceptional portfolio of high-quality and exclusive homes that are available only to our clients. To be the first to receive information about them – contact us.
Additional services
As a valued client of our company, you will have the privilege of using the services of our experienced legal team completely free of charge. In addition, we offer comprehensive solutions, including property insurance, free financial consulting, as well as favorable financing conditions. Our services also extend to the field of resale, rental and property management. We provide high-quality renovation and furniture through specialized companies that are part of our corporate group and are our long-standing professional partners.
Viewings
We are ready to organize a viewing of this property at a time convenient for you. Please contact the responsible estate agent and inform them when you would like to have viewings arranged. We can also help you with flight tickets and hotel booking, as well as with travel insurance.
Property reservation
You can reserve this property with a non-refundable deposit of 2,000 Euro, payable by credit card or by bank transfer to our company bank account. After receiving the deposit the property will be marked as reserved, no further viewings will be carried out with other potential buyers, and we will start the preparation of the necessary documents for completion of the deal. Please contact the responsible estate agent for more information about the purchase procedure and the payment methods.
After sale services
We are a reputable company with many years of experience in the real estate business. Thus, we will be with you not only during the purchase process, but also after the deal is completed, providing you with a wide range of additional services tailored to your requirements and needs, so that you can fully enjoy your property in Bulgaria. The after sale services we offer include property insurance, construction and repair works, furniture, accounting and legal assistance, renewal of contracts for electricity, water, telephone and many more.
No commission from the buyer!
The building is at the "rough construction" stage, with planned completion in June 2026.
It is located in the southwestern part of Sofia, in optimal proximity to the new metro station "Ovcha Kupel", which facilitates access to some major higher education institutions such as NBU and Sofia University.
Near the building there are various supermarket chains, gyms, Nadezhda Hospital, "Rositsa" market, schools and kindergartens - PG in 123 "Stefan Stambolov" Secondary School, 51 SDY, DG №126 Tintyava, PG in 136 "Lyuben Karavelov" Primary School and PG 147. Also located near the area are Septemvri Stadium and Slavia, Western Park, St. Peter and Paul Park, "Khan Asparuh" equestrian center, Krasna Polyana karting, etc.
The neighborhood has a well-developed transport infrastructure and is served by all types of public transport: metro station, trams 4, 11, 22 and buses 11, 60 and 83.
The 8-story building with 3 entrances will have an attractive clinker facade, offering a total of 131 apartments, with the available homes for sale being a limited number of three- and four-bedroom properties, with functional layouts and spacious rooms.
The apartments are issued in the following degree of completion according to Bulgarian Construction Standards:
PVC windows with six-chamber, German profile with triple glazing, with one low-emission glass;
entrance apartment door - armored, with a high-class secret lock;
heating - gas;
finished walls and ceilings up to gypsum plaster with aluminum corner protectors laid at the edges; ceilings of unheated rooms that border heated rooms, with thermal insulation made of XPS extruded polystyrene foam; in bathrooms, toilets and wet rooms with lime-cement plaster;
cement screed on the floor; terraces with granite tiles;
installed apartment panel, located near the entrance door of the home;
low-current installations – implemented according to the project with a low-current box installed at the entrance door;
wiring for security system in each apartment;
video intercom installation - wiring completed, video intercoms in the apartments and a video intercom panel installed next to the front door;
installed electricity meters. Technical characteristics of the building:
monolithic, reinforced concrete beamless foundation slab construction;
with waterproofing of the building foundations - Kryton international Inc. Krystol Waterstop System;
masonry with WIENERBERGER ceramic bricks;
external enclosing walls - Porotherm 25 cm ceramic bricks and thermal insulation system /expanded polystyrene EPS/;
for internal brick walls - Porotherm ceramic bricks 12 cm, with soundproofing between the apartments;
flat roof with layers laid in detail - vapor barrier, thermal insulation from extruded polystyrene foam - XPS, reinforced screed with a slope, two layers of rolled bitumen waterproofing; without thermal bridges on the structural elements;
common areas - granite tiles or natural stone;
elevators with luxury cabins with automatic doors. We look forward to your inquiry.
If you would like to arrange a viewing of a property that interests you, or to visit one of our offices, please contact us. To arrange a day and time for a meeting or viewing, you can call the phone number listed in the ad or send an inquiry via e-mail. Our consultant will assist you with all the necessary details and will arrange a time convenient for you.
Are you looking for the right property for you?
Do not hesitate to contact us and tell us about your needs and preferences. Our team will conduct a thorough market research to offer you properties that exactly meet your criteria. We have an exceptional portfolio of high-quality and exclusive homes that are available only to our clients. To be the first to receive information about them – contact us.
Additional services
As a valued client of our company, you will have the privilege of using the services of our experienced legal team completely free of charge. In addition, we offer comprehensive solutions, including property insurance, free financial consulting, as well as favorable financing conditions. Our services also extend to the field of resale, rental and property management. We provide high-quality renovation and furniture through specialized companies that are part of our corporate group and are our long-standing professional partners.
Viewings
We are ready to organize a viewing of this property at a time convenient for you. Please contact the responsible estate agent and inform them when you would like to have viewings arranged. We can also help you with flight tickets and hotel booking, as well as with travel insurance.
Property reservation
You can reserve this property with a non-refundable deposit of 2,000 Euro, payable by credit card or by bank transfer to our company bank account. After receiving the deposit the property will be marked as reserved, no further viewings will be carried out with other potential buyers, and we will start the preparation of the necessary documents for completion of the deal. Please contact the responsible estate agent for more information about the purchase procedure and the payment methods.
After sale services
We are a reputable company with many years of experience in the real estate business. Thus, we will be with you not only during the purchase process, but also after the deal is completed, providing you with a wide range of additional services tailored to your requirements and needs, so that you can fully enjoy your property in Bulgaria. The after sale services we offer include property insurance, construction and repair works, furniture, accounting and legal assistance, renewal of contracts for electricity, water, telephone and many more.
Apartments in Stage 2 of a modern complex near "Simeonovsko Shose"
Malinova Dolina / Sofia / Sofia / Bulgaria map
Property prices: 69 346 - 192 316 €
Prices per m²: 1 575 - 1 995 €/m 2
Apartments in Stage 1 of a modern complex near "Simeonovsko Shose"
Malinova Dolina / Sofia / Sofia / Bulgaria map
Property prices: 114 096 - 247 180 €
Prices per m²: 1 828 - 2 296 €/m 2
Apartments next to "Prof. Krikor Azaryan" Street in "Malinova Dolina" Quarter
Malinova Dolina / Sofia / Sofia / Bulgaria map
Property prices: 187 575 - 396 363 €
Prices per m²: 2 330 - 3 881 €/m 2
Select this option and we will notify you by email if there are any changes to the offer status, for example:
• Price change;
• The property entered into a promotional offer;
• The property is reserved or sold;
• Other news related to the property.
• The property is removed from sale;
You can easily unsubscribe from notifications whenever you want.• Changes to the terms of the offer;
• Change in the amount of the investment;
• The subject of the investment has been fully realized;
• The offer has expired.
You can easily unsubscribe if you decide in the future that you no longer want to follow this offer.



...As a proven specialist, Stonehard PREMIER works on the market positioning and sales of numerous new construction projects, the implementation of which has been entrusted to us by leading entrepreneurial companies in Bulgaria and abroad...